Размещено на портале Архи.ру (www.archi.ru)

20.01.2022

Промежуточная типология

Алина Измайлова

В норвежском Ульвике по проекту мастерской Rever & Drage построили гостевой дом-«сарай». Этим минималистичным коттеджем архитекторы попытались выразить свою признательность «архитектуре проселочных дорог».

Двухэтажный дом площадью 142 м2, построенный на берегу норвежского фьорда по проекту небольшого бюро из Осло Rever & Drage, сочетает в себе черты двух типологий: фермерского дома и сарая. Вдохновение столичные мастера нашли в работах швейцарского архитектора Рудольфа Ольджати, питавшего огромный интерес к исторической архитектуре, и норвежского художника романтического направления Ханса Гуде, чья профессиональная жизнь служит для Rever & Drage примером медленного, но постоянного развития.

Гостевой дом в Ульвике
Гостевой дом в Ульвике
Фото © Tom Auger

«Промежуточный» характер постройки – в каком-то смысле дань традиции, зародившейся в Ульвике в середине XX века: тогда в этом районе стали появляться гостевые домики, где отдыхали представители высшего среднего класса; уровень комфорта в таких хижинах балансировал где-то между насыщенностью полноценного загородного дома и функциональной бедностью неприспособленных к жизни амбаров.
Гостевой дом в Ульвике
Гостевой дом в Ульвике
Фото © Tom Auger

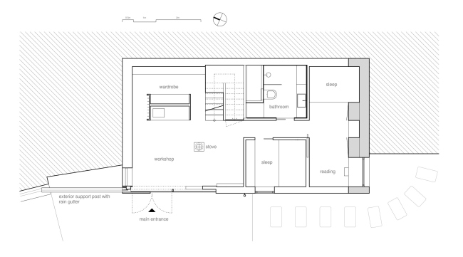
Дом в Ульвике нарушает привычную схему планировки: все «социальные» помещения – кухня, гостиная – расположены на втором этаже, а на первом уровне авторы разместили хозяйскую спальню и своего рода читальный зал.
 
Гостевой дом в Ульвике Фото © Tom Auger
Гостевой дом в Ульвике
Фото © Tom Auger
Гостевой дом в Ульвике Фото © Tom Auger
Гостевой дом в Ульвике
Фото © Tom Auger
Гостевой дом в Ульвике Фото © Tom Auger
Гостевой дом в Ульвике
Фото © Tom Auger
Гостевой дом в Ульвике Фото © Tom Auger
Гостевой дом в Ульвике
Фото © Tom Auger
Гостевой дом в Ульвике Фото © Tom Auger
Гостевой дом в Ульвике
Фото © Tom Auger
Гостевой дом в Ульвике Фото © Tom Auger
Гостевой дом в Ульвике
Фото © Tom Auger
Гостевой дом в Ульвике Фото © Tom Auger
Гостевой дом в Ульвике
Фото © Tom Auger

Охристо-желтый оттенок фасада помогает сооружению «затеряться» в осиновом лесу, толстые стены защищают постройку и ее обитателей от сильного ветра и дождя, а наклонная балка снаружи обеспечивает хижине дополнительную опору и одновременно с этим – служит поддержкой водосточной трубе. В диалог с балкой вступает тонкая и изящная бетонная арка, расположенная в интерьере первого этажа, но заметная снаружи благодаря остеклению: вместе они неожиданно заставляют вспомнить аркбутаны готических соборов.
Гостевой дом в Ульвике Фото © Tom Auger
Гостевой дом в Ульвике
Фото © Tom Auger
Гостевой дом в Ульвике Фото © Tom Auger
Гостевой дом в Ульвике
Фото © Tom Auger
Гостевой дом в Ульвике Фото © Tom Auger
Гостевой дом в Ульвике
Фото © Tom Auger

Комплекс также включает в себя небольшую постройку, соединенную с основным объемом дорогой.
Гостевой дом в Ульвике
Гостевой дом в Ульвике
Фото © Tom Auger

Торцевая часть дома, в которой располагается главный вход, представляет собой наиболее прямую отсылку к традиционным амбарам, о которых шла речь в начале текста. Здесь архитекторы используют отличное по цвету и фактуре дерево, укладывают обшивку горизонтально, а кровлю покрывают материалом, напоминающим сланец.  
Гостевой дом в Ульвике
Гостевой дом в Ульвике
Фото © Tom Auger

«[Композиционно] здание представляет собой скорее сочетание типичных [архитектурных] компонентов, нежели демонстрирует уникальность», – поясняют архитекторы Rever & Drage.
Гостевой дом в Ульвике
Гостевой дом в Ульвике
Фото © Tom Auger
Гостевой дом в Ульвике
Гостевой дом в Ульвике
Фото © Tom Auger
Гостевой дом в Ульвике
Гостевой дом в Ульвике
Фото © Tom Auger
Разрез. Гостевой дом в Ульвике
Разрез. Гостевой дом в Ульвике
Изображение © Rever & Drage
Северный фасад. Гостевой дом в Ульвике
Северный фасад. Гостевой дом в Ульвике
Изображение © Rever & Drage
Южный фасад. Гостевой дом в Ульвике
Южный фасад. Гостевой дом в Ульвике
Изображение © Rever & Drage
Западный фасад. Гостевой дом в Ульвике
Западный фасад. Гостевой дом в Ульвике
Изображение © Rever & Drage
Разрез. Гостевой дом в Ульвике
Разрез. Гостевой дом в Ульвике
Изображение © Rever & Drage
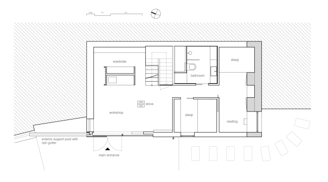
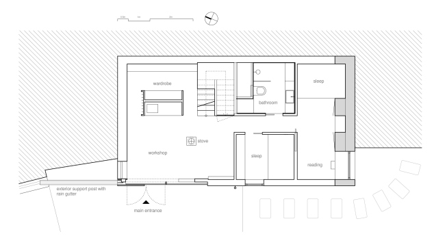
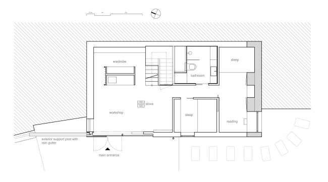
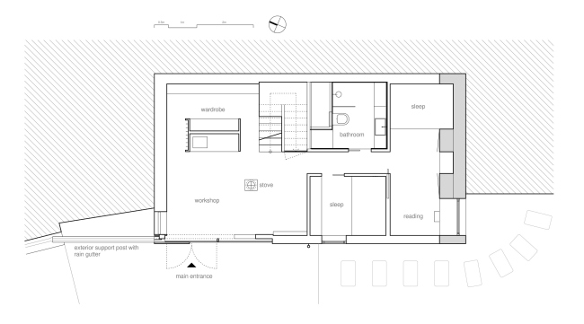
План первого этажа. Гостевой дом в Ульвике
План первого этажа. Гостевой дом в Ульвике
Изображение © Rever & Drage
План второго этажа. Гостевой дом в Ульвике
План второго этажа. Гостевой дом в Ульвике
Изображение © Rever & Drage
План местности. Гостевой дом в Ульвике
План местности. Гостевой дом в Ульвике
Изображение © Rever & Drage