Размещено на портале Архи.ру (www.archi.ru)

24.12.2021

Золотые изгибы

Нина Фролова
Объект:
Жилой комплекс The Golden House
Адрес:
Дания, None, Орхус.
Мастерская:
JDS

Жилой дом в Орхусе по проекту бюро JDS соединяет две разнородных здания в единый фронт улицы.

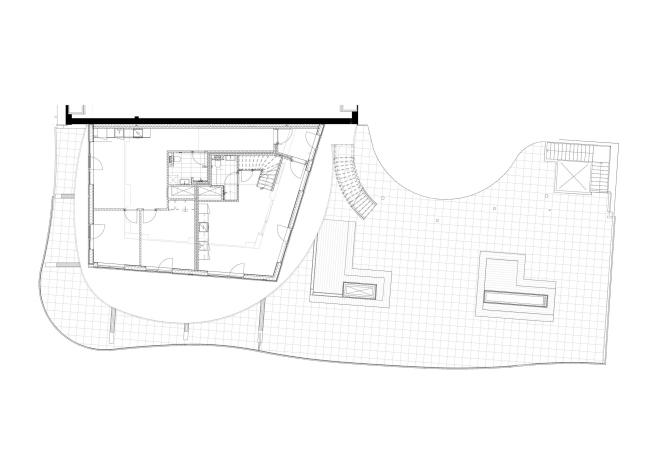
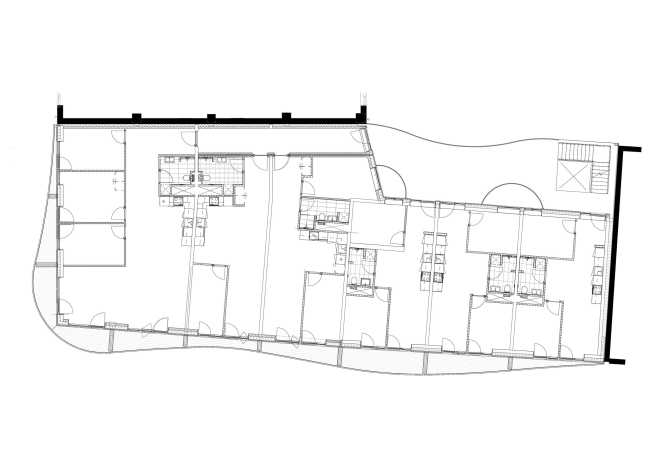
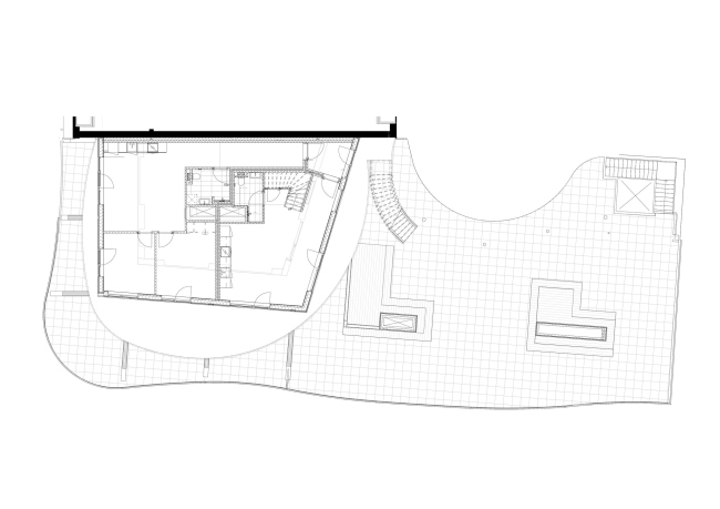
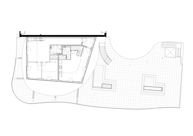
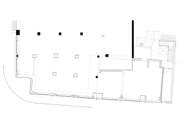
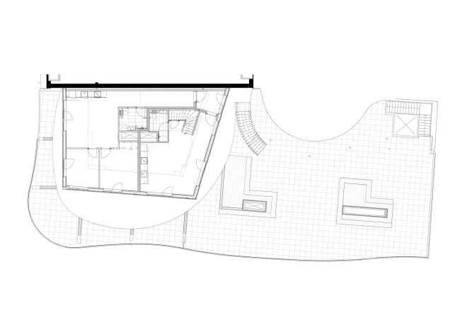
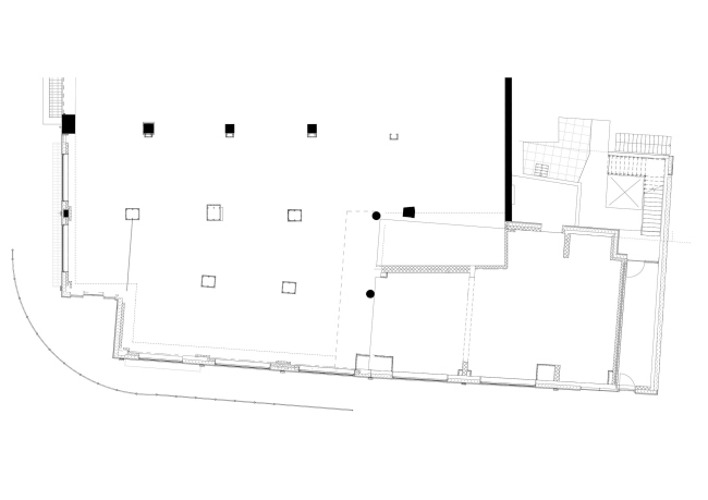
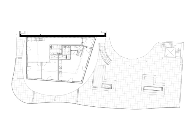
Угловой участок в центре Орхуса занимала маленькая полувременная постройка, к которой примыкали два солидных исторических здания, побольше и поменьше. Получалось, что застройка распадается на две части, возникал режущий глаз разрыв.
 

Жилой комплекс The Golden House
Жилой комплекс The Golden House
Фото © Jorton

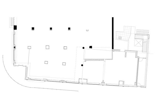
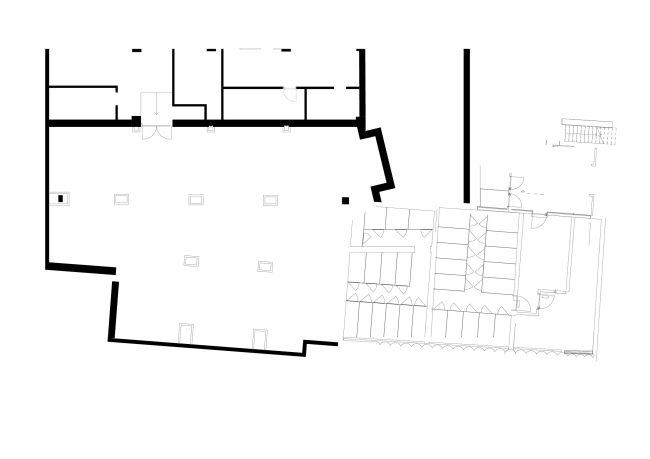
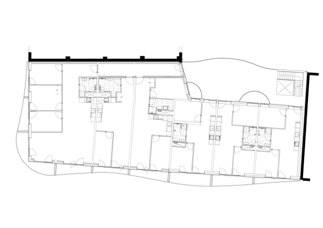
Архитекторы JDS закрыли эту лакуну своим жилым Golden House’ом, первый этаж которого, как по учебнику, заняли магазины. Два соседних здания – оба краснокирпичные, но очень разные, поэтому для нового дома был выбран совсем другой цвет – золотой с медным оттенком.
 
Жилой комплекс The Golden House
Жилой комплекс The Golden House
Фото © Jorton

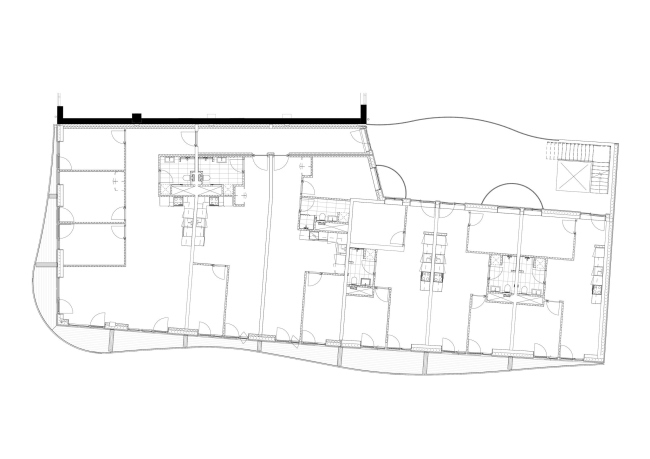
Вид дома тоже совсем иной: его мягкие линии балконов и разделяющих их экранов-перегородок создают тактичный по отношению к сложившейся среде облик, при этом запоминающийся и хорошо «держащий» угол.
 
Жилой комплекс The Golden House
Жилой комплекс The Golden House
Фото © Naja Kirkedal Jensen – Tækker

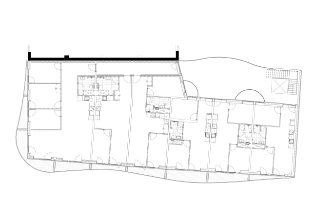
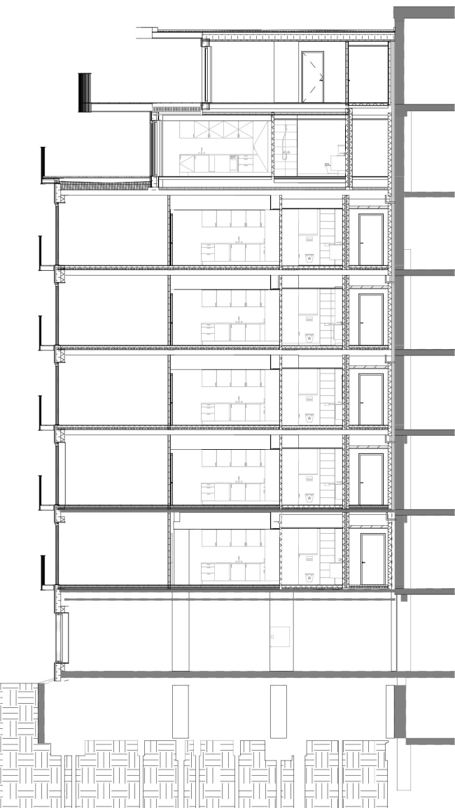
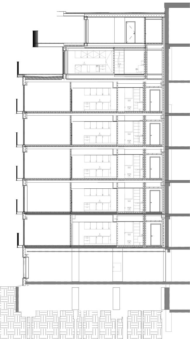
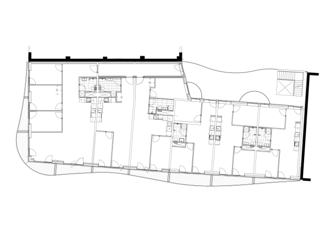
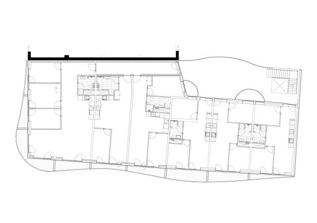
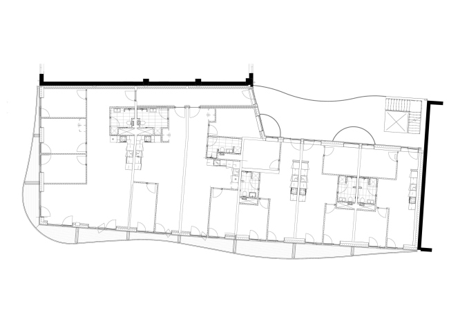
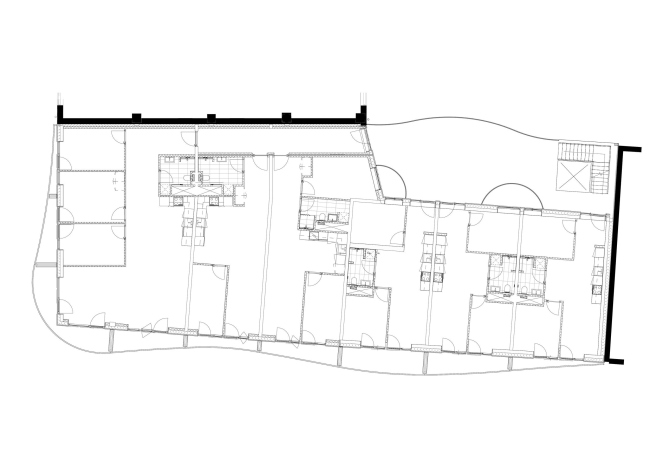
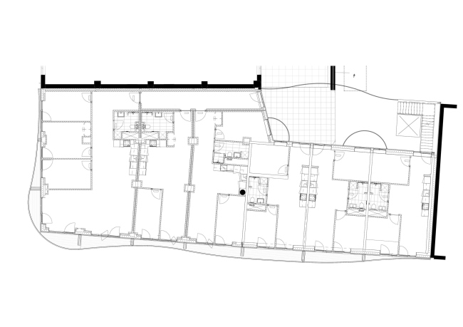
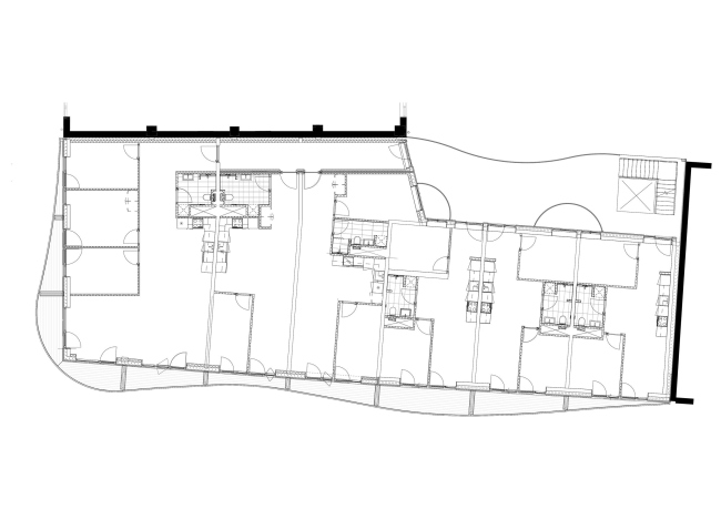
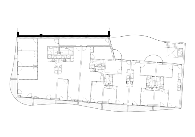
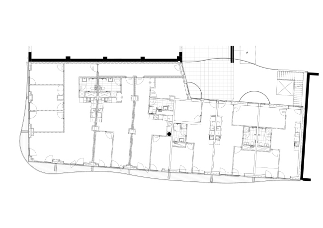
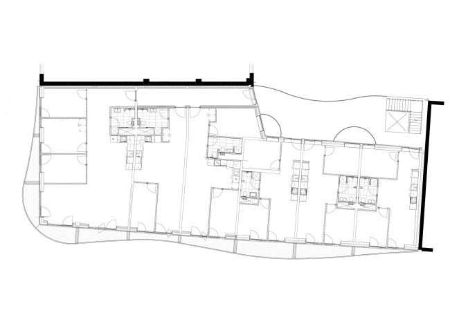
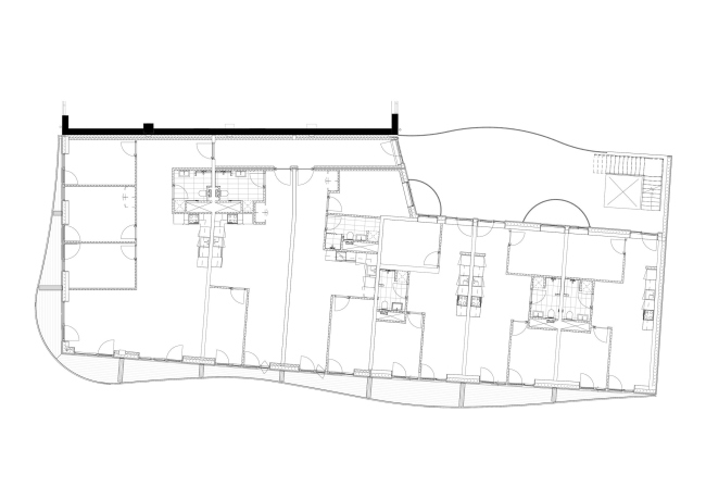
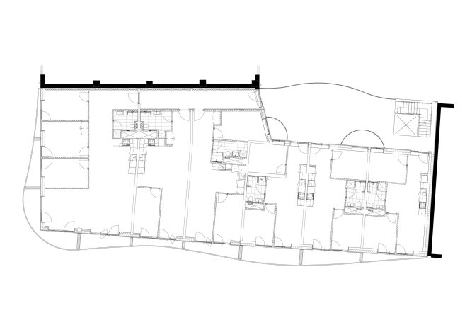
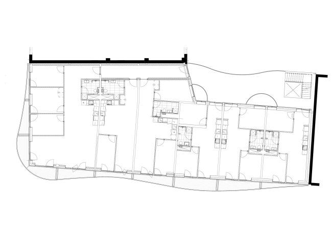
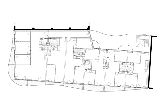
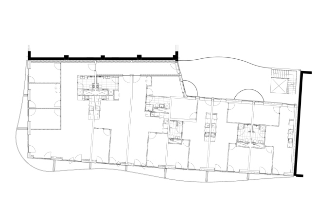
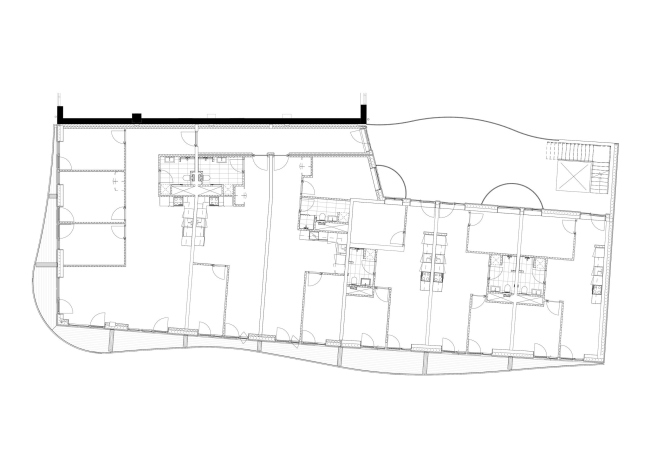
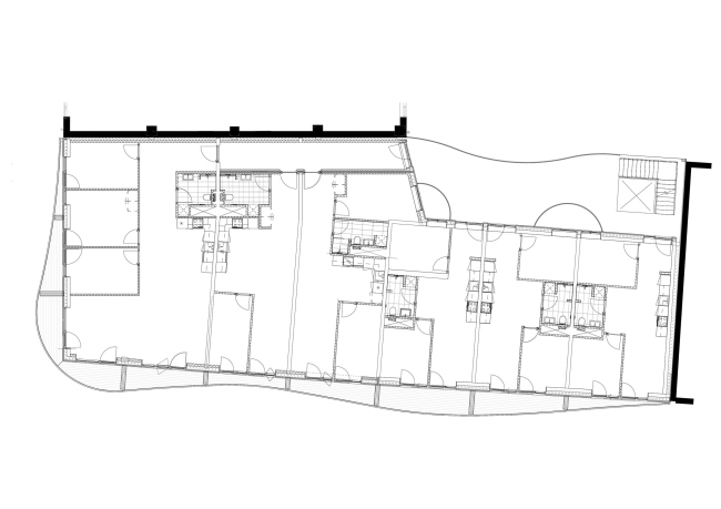
Однако это далеко не декоративное решение. Из-за угловой формы участка дворовый фасад получился затененным и небольшим, поэтому все балконы переместились на уличную сторону, а внутрь квартала обращены циркуляционные и общественные зоны. Там, в галереях-коридорах, прорезаны изящные полукруглые проемы.
 
Жилой комплекс The Golden House
Жилой комплекс The Golden House
Фото © Naja Kirkedal Jensen – Tækker

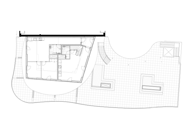
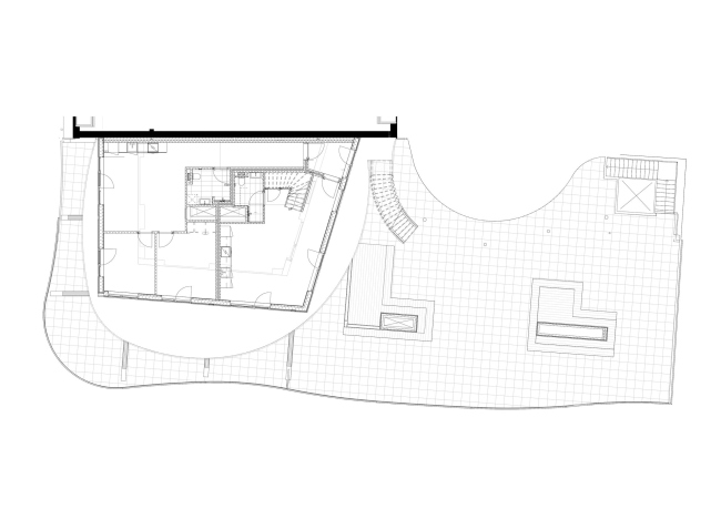
У квартир на верхнем этаже вместо балконов устроены террасы, а еще выше, на крыше, находится общественное пространство для всех жильцов.
Жилой комплекс The Golden House
Жилой комплекс The Golden House
Фото © Naja Kirkedal Jensen – Tækker
Жилой комплекс The Golden House
Жилой комплекс The Golden House
Фото © Jorton
Жилой комплекс The Golden House
Жилой комплекс The Golden House
Фото © Jorton
Жилой комплекс The Golden House
Жилой комплекс The Golden House
Фото © Jorton
Жилой комплекс The Golden House
Жилой комплекс The Golden House
Фото © Naja Kirkedal Jensen – Tækker
Жилой комплекс The Golden House
Жилой комплекс The Golden House
Фото © Jorton
Жилой комплекс The Golden House
Жилой комплекс The Golden House
Фото © Naja Kirkedal Jensen – Tækker
Жилой комплекс The Golden House
Жилой комплекс The Golden House
Фото © Naja Kirkedal Jensen – Tækker
Жилой комплекс The Golden House
Жилой комплекс The Golden House
Фото © Naja Kirkedal Jensen – Tækker
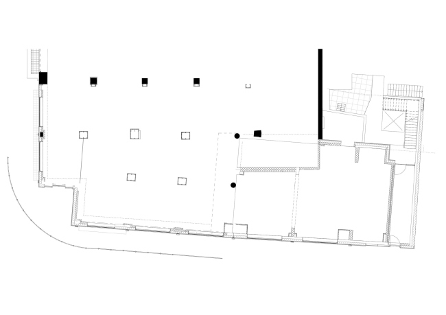
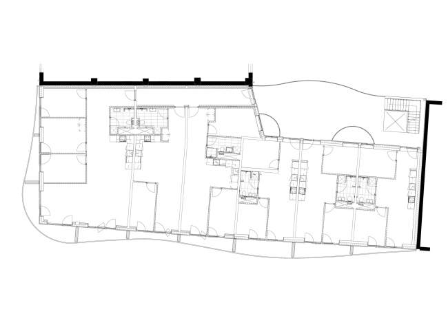
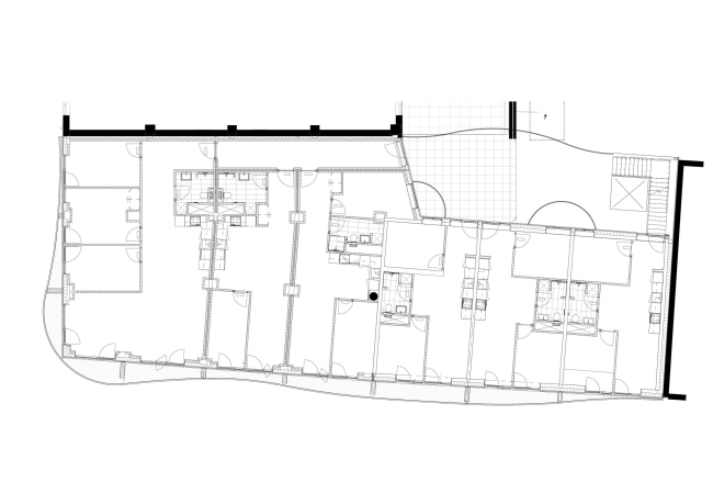
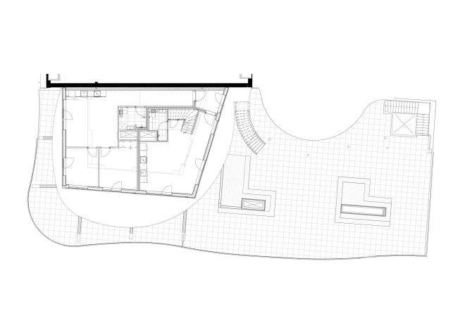
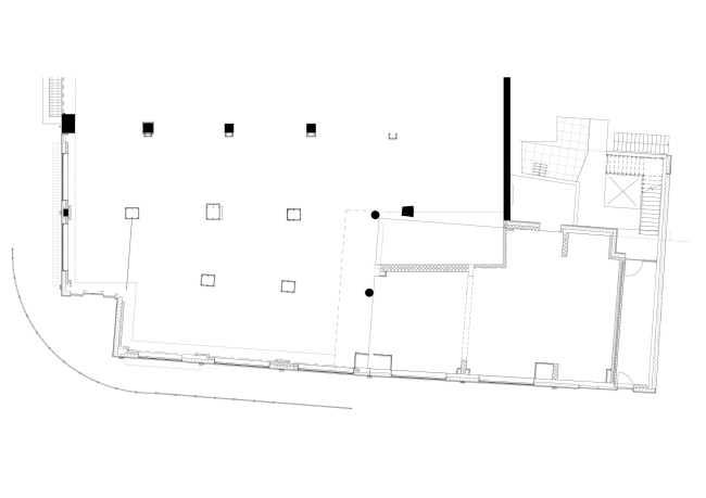
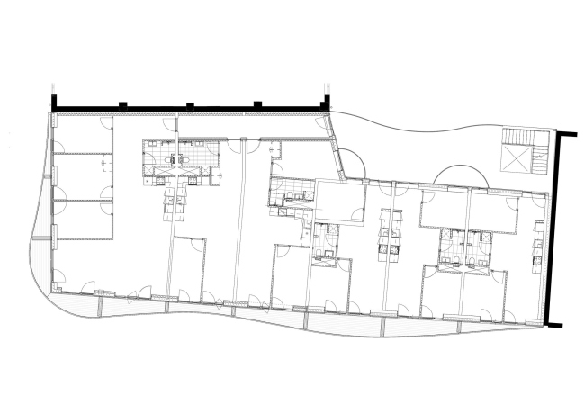
Жилой комплекс The Golden House
Жилой комплекс The Golden House
© JDS Architects
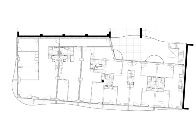
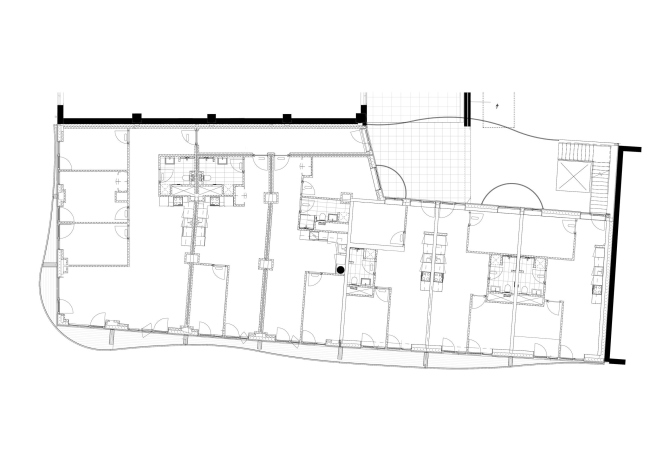
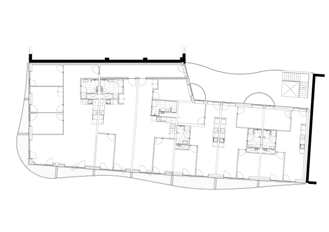
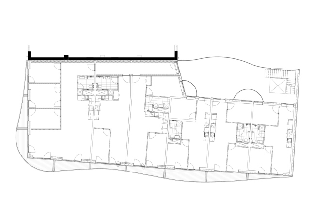
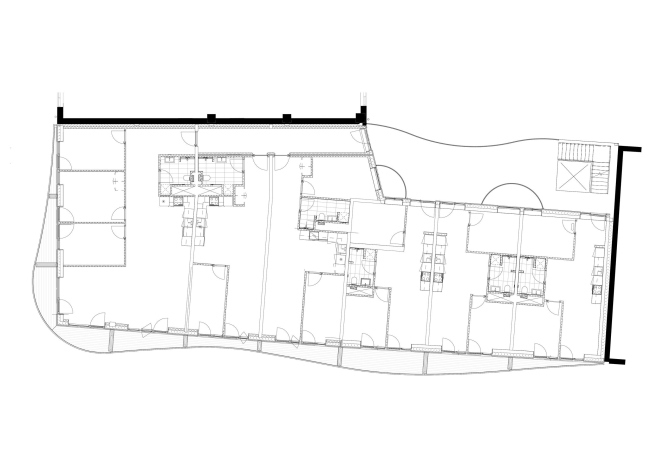
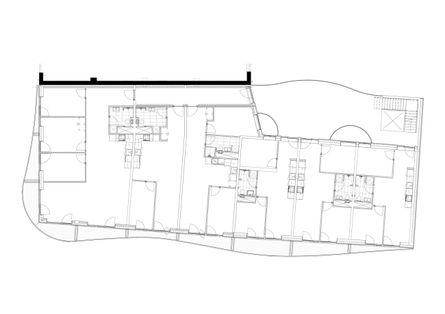
Жилой комплекс The Golden House
Жилой комплекс The Golden House
© JDS Architects
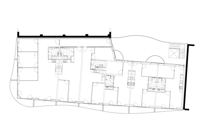
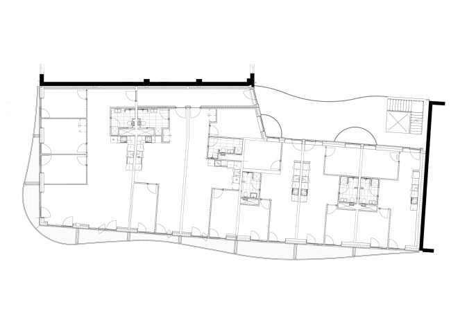
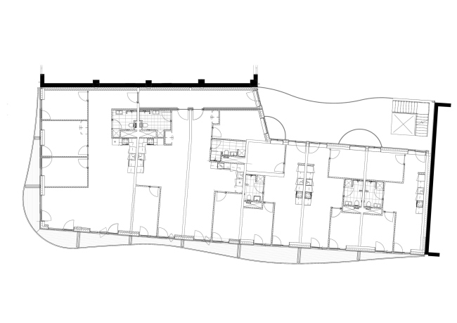
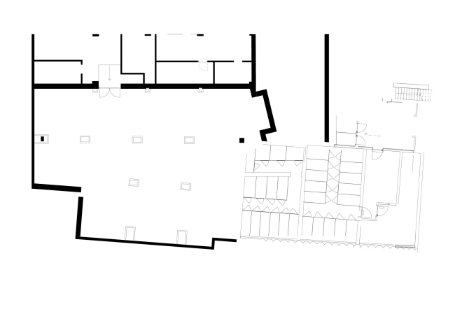
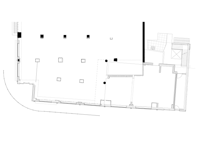
Жилой комплекс The Golden House
Жилой комплекс The Golden House
© JDS Architects
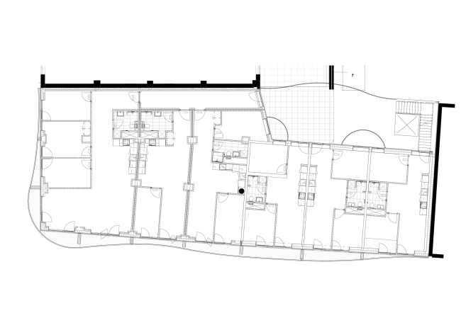
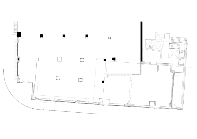
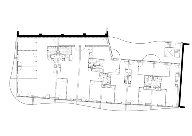
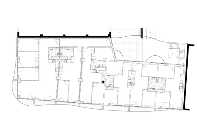
Жилой комплекс The Golden House
Жилой комплекс The Golden House
© JDS Architects
Жилой комплекс The Golden House
Жилой комплекс The Golden House
© JDS Architects
Жилой комплекс The Golden House
Жилой комплекс The Golden House
© JDS Architects
Жилой комплекс The Golden House
Жилой комплекс The Golden House
© JDS Architects
Жилой комплекс The Golden House
Жилой комплекс The Golden House
© JDS Architects
Жилой комплекс The Golden House
Жилой комплекс The Golden House
© JDS Architects
Жилой комплекс The Golden House
Жилой комплекс The Golden House
© JDS Architects
Жилой комплекс The Golden House
Жилой комплекс The Golden House
© JDS Architects
Жилой комплекс The Golden House
Жилой комплекс The Golden House
© JDS Architects
Жилой комплекс The Golden House
Жилой комплекс The Golden House
© JDS Architects
Жилой комплекс The Golden House
Жилой комплекс The Golden House
© JDS Architects
Жилой комплекс The Golden House
Жилой комплекс The Golden House
© JDS Architects