Размещено на портале Архи.ру (www.archi.ru)

21.12.2021

Стратиграфия на фасадах

Нина Фролова
Объект:
Музей Narbo Via
Адрес:
Франция, None, Нарбон.
Мастерская:
Foster + Partners

Музей римских древностей Narbo Via в Нарбоне по проекту Foster + Partners получил стены, напоминающие о глубоком и разнообразном культурном слое Южной Франции.

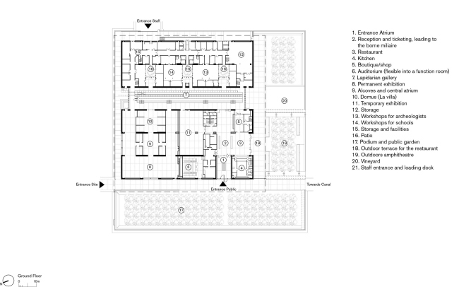
Новый музей расположен на окраине Нарбона, но одновременно совсем близко от его центра: их связывает проходящий по берегу канала Робин путь-бечевник для тащивших по нему баржи животных, а теперь ставший пешеходной тропой.
 

Музей Narbo Via
Музей Narbo Via
Фото © Nigel Young / Foster + Partners

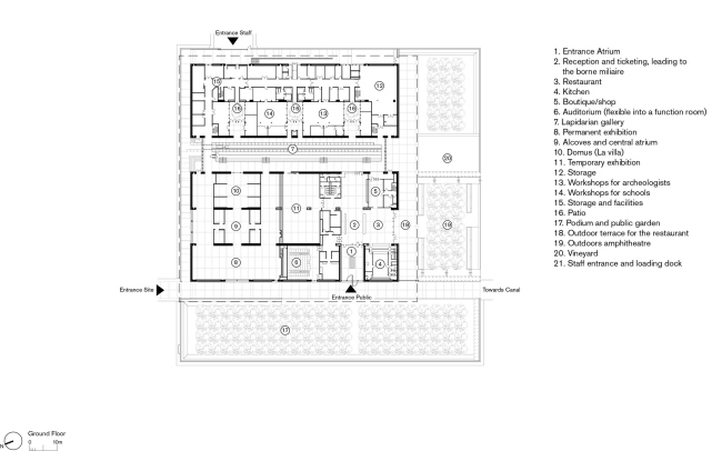
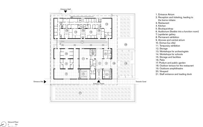
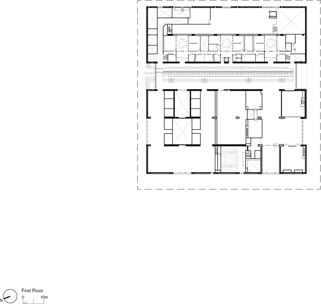
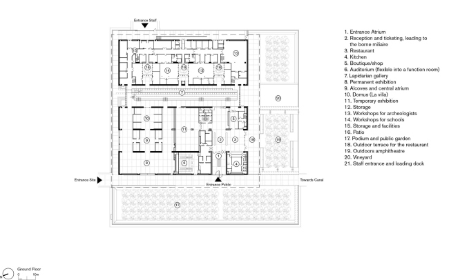
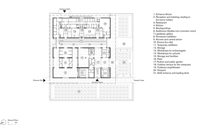
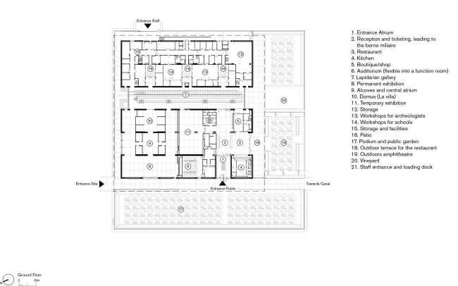
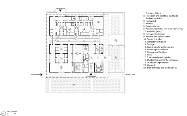
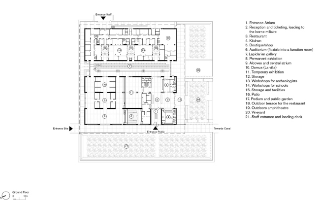
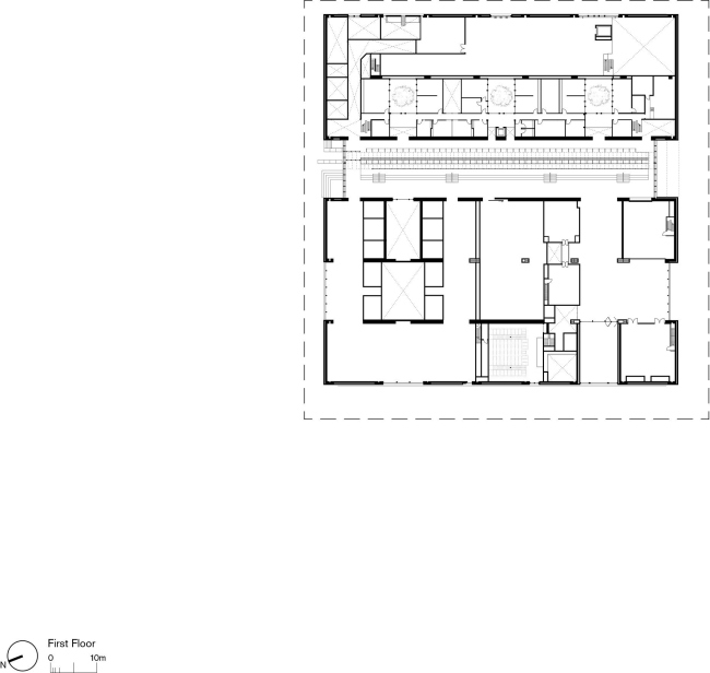
Посетителей встречает невысокое, но занимающее немалую площадь здание (91х86 м), окруженное озеленением, которое вдохновлено одновременно французским регулярным парком и садиком во дворе-перистиле древнеримского дома.
 
Музей Narbo Via
Музей Narbo Via
Фото © Philippe Chancel

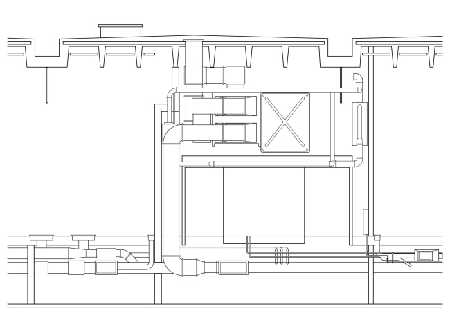
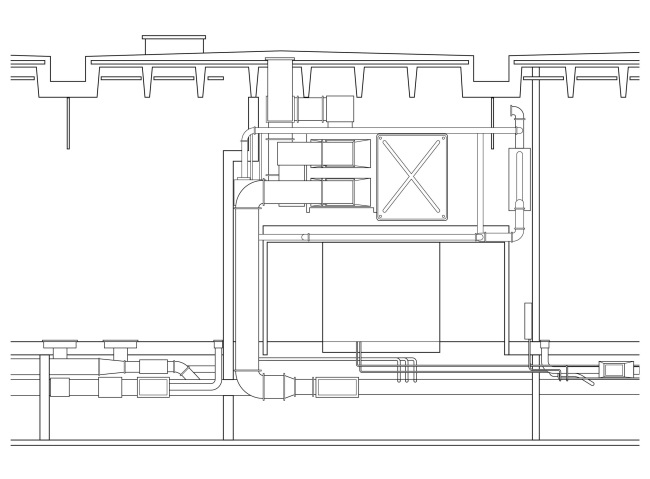
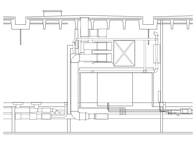
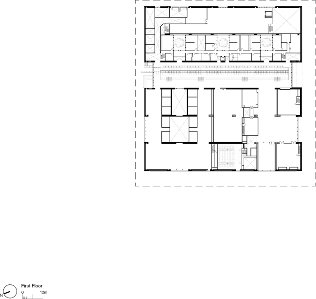
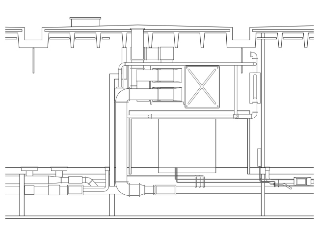
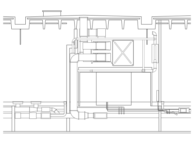
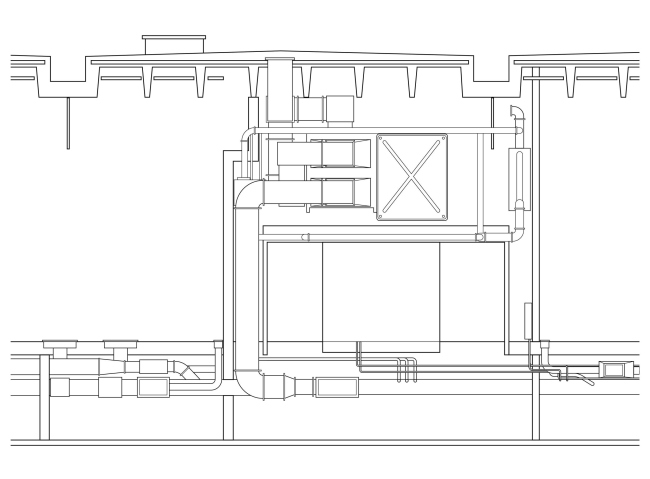
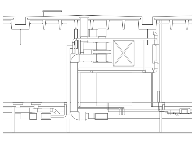
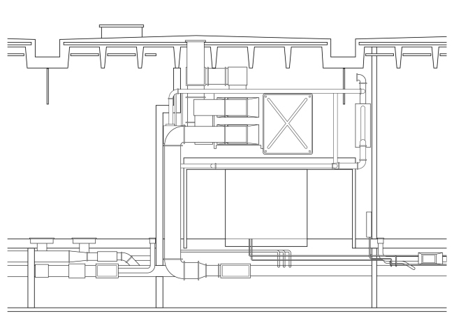
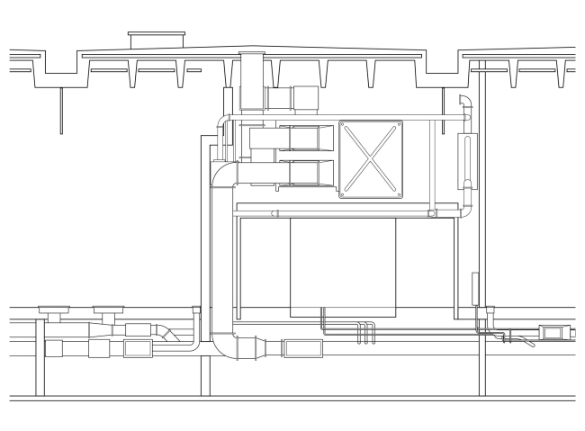
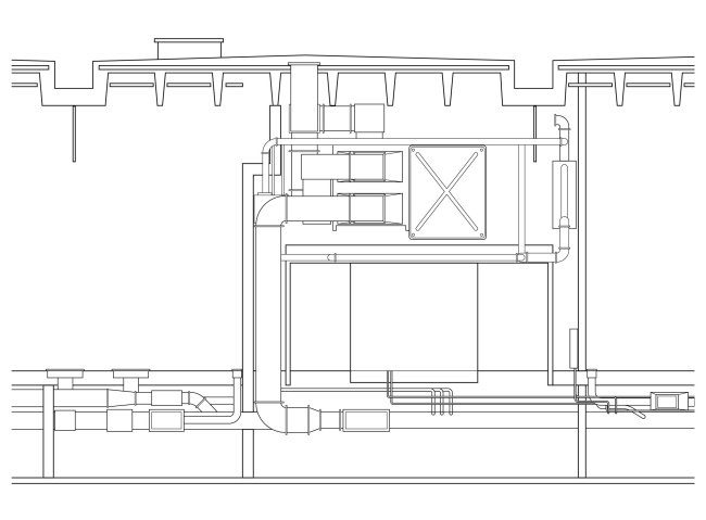
Музей поднят на платформу, куда ведут пандусы – от канала и от дороги. Для фасадов использован сухой окрашенный в массе бетон, который укладывали слоями, что придало ему «археологический» облик. Эти «страты» также напоминают о древнеримском бетоне. Большая кровля, приподнятая над верхним краем фасадов, чтобы внутрь попадало больше света, сделана из сборных бетонных деталей. Ее вынос при этом затеняет фасады и общественное пространство вокруг здания.
 
Музей Narbo Via
Музей Narbo Via
Фото © Nigel Young / Foster + Partners

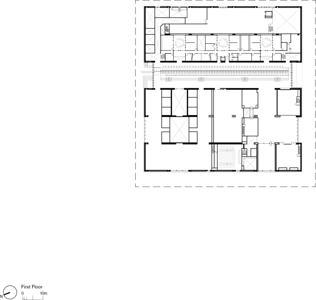
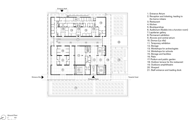
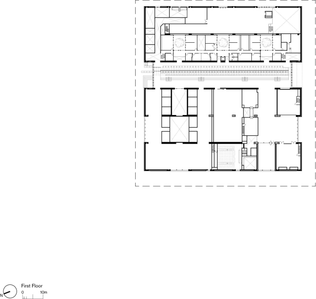
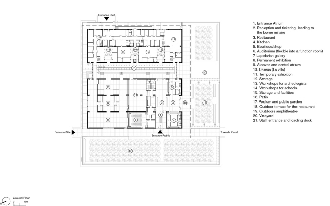
Внутри музей поделен надвое стеной-лапидарием: это ажурная структура, где размещены плиты с надписями и рельефами. В зависимости от образовательных и выставочных нужд их может перемещать специальный погрузчик: его работу можно посмотреть на видео. Эти экспонаты – основа археологического собрания Нарбона, в античные времена называвшегося «Нарбо-Марциус» и бывшего центром римской провинции Нарбонская Галлия. Они хранились с 1868 в готической церкви Нотр-Дам, а теперь соединены в одном собрании с другими античными памятниками.
 
Музей Narbo Via Фото © Nigel Young / Foster + Partners
Музей Narbo Via
Фото © Nigel Young / Foster + Partners
Музей Narbo Via Фото © Philippe Chancel
Музей Narbo Via
Фото © Philippe Chancel
Музей Narbo Via Фото © Nigel Young / Foster + Partners
Музей Narbo Via
Фото © Nigel Young / Foster + Partners
Музей Narbo Via Фото © Philippe Chancel
Музей Narbo Via
Фото © Philippe Chancel
Музей Narbo Via Фото © Philippe Chancel
Музей Narbo Via
Фото © Philippe Chancel
Музей Narbo Via Фото © Nigel Young / Foster + Partners
Музей Narbo Via
Фото © Nigel Young / Foster + Partners
Музей Narbo Via Фото © Nigel Young / Foster + Partners
Музей Narbo Via
Фото © Nigel Young / Foster + Partners
Музей Narbo Via Фото © Nigel Young / Foster + Partners
Музей Narbo Via
Фото © Nigel Young / Foster + Partners
Музей Narbo Via Фото © Nigel Young / Foster + Partners
Музей Narbo Via
Фото © Nigel Young / Foster + Partners

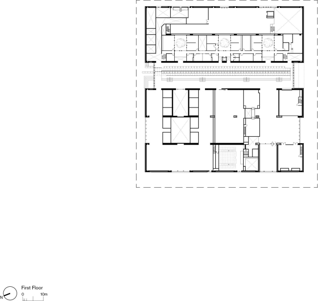
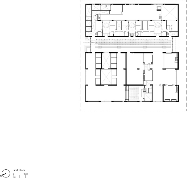
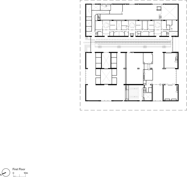
С одной стороны лапидария находятся выставочные залы и аудитория для конференций и лекций, с другой – реставрационные мастерские, которые немного видны посетителям сквозь ажурную конструкцию стены. Солнечным светом их обеспечивают небольшие дворики. Также в «закрытой» половине здания расположены исследовательский центр и запасник.
 
Музей Narbo Via
Музей Narbo Via
Фото © Philippe Chancel

Благодаря большому количеству открытых бетонных поверхностей, здание будет достаточно инертно с термальной точки зрения и потому даже летом потребует меньших, чем типично для такого сооружения, затрат на кондиционирование. Также в проекте широко использованы естественное освещение и вентиляция.
 
Музей Narbo Via
Музей Narbo Via
Фото © Nigel Young / Foster + Partners
Музей Narbo Via
Музей Narbo Via
Фото © Philippe Chancel
Музей Narbo Via
Музей Narbo Via
Фото © Philippe Chancel
Музей Narbo Via Фото © Philippe Chancel
Музей Narbo Via
Фото © Philippe Chancel
Музей Narbo Via Фото © Philippe Chancel
Музей Narbo Via
Фото © Philippe Chancel
Музей Narbo Via Фото © Philippe Chancel
Музей Narbo Via
Фото © Philippe Chancel
Музей Narbo Via Фото © Nigel Young / Foster + Partners
Музей Narbo Via
Фото © Nigel Young / Foster + Partners
Музей Narbo Via Фото © Nigel Young / Foster + Partners
Музей Narbo Via
Фото © Nigel Young / Foster + Partners
Музей Narbo Via Фото © Nigel Young / Foster + Partners
Музей Narbo Via
Фото © Nigel Young / Foster + Partners
Музей Narbo Via Фото © Nigel Young / Foster + Partners
Музей Narbo Via
Фото © Nigel Young / Foster + Partners
Музей Narbo Via Фото © Nigel Young / Foster + Partners
Музей Narbo Via
Фото © Nigel Young / Foster + Partners
Музей Narbo Via Фото © Nigel Young / Foster + Partners
Музей Narbo Via
Фото © Nigel Young / Foster + Partners
Музей Narbo Via
Музей Narbo Via
Фото © Nigel Young / Foster + Partners
Музей Narbo Via
Музей Narbo Via
Фото © Nigel Young / Foster + Partners
Музей Narbo Via
Музей Narbo Via
Фото © Nigel Young / Foster + Partners
Музей Narbo Via
Музей Narbo Via
Фото © Philippe Chancel
Музей Narbo Via
Музей Narbo Via
Фото © Philippe Chancel
Музей Narbo Via
Музей Narbo Via
Фото © Nigel Young / Foster + Partners
Музей Narbo Via
Музей Narbo Via
Фото © Nigel Young / Foster + Partners
Музей Narbo Via
Музей Narbo Via
Фото © Nigel Young / Foster + Partners
Музей Narbo Via
Музей Narbo Via
Фото © Nigel Young / Foster + Partners
Музей Narbo Via
Музей Narbo Via
© Hazel Eynon Cole / Cecilia Shiels / Charlotte Bywaters / Foster + Partners
Музей Narbo Via
Музей Narbo Via
© Hazel Eynon Cole / Cecilia Shiels / Charlotte Bywaters / Foster + Partners
Музей Narbo Via
Музей Narbo Via
© Hazel Eynon Cole / Cecilia Shiels / Charlotte Bywaters / Foster + Partners
Музей Narbo Via
Музей Narbo Via
© Foster + Partners
Музей Narbo Via
Музей Narbo Via
© Foster + Partners
Музей Narbo Via
Музей Narbo Via
© Foster + Partners
Музей Narbo Via
Музей Narbo Via
© Foster + Partners
Музей Narbo Via
Музей Narbo Via
© Foster + Partners
Музей Narbo Via
Музей Narbo Via
© Foster + Partners
Музей Narbo Via
Музей Narbo Via
© Foster + Partners
Музей Narbo Via
Музей Narbo Via
© Foster + Partners