Размещено на портале Архи.ру (www.archi.ru)

17.12.2021

Медь и зеркала

Нина Фролова
Объект:
Центр науки и инноваций Vizium
Адрес:
Латвия, None, Вентспилс. Rūpniecības iela 2
Мастерская:
Audrius Ambrasas Architects

Образовательный центр науки и инноваций Vizium в латвийском Вентспилсе по проекту вильнюсского бюро Audrius Ambrasas Architects.

Vizium расположен по оси моста через реку Вента в нейтральном «полупромышленном» окружении. Архитекторы могли бы создать там яркую достопримечательность, но предпочли контекстуальное, связанное с рельефом решение. В результате здание частично встроено в насыпной холм, а также разделено на две части, напоминая силуэтом седло. Поэтому оно не закрывает открывающуюся с моста перспективу.
 

Центр науки и инноваций Vizium
Центр науки и инноваций Vizium
Фото © Norbert Tukaj

Динамичную форму подчеркивают вертикальные медные ламели фасада, между которыми – панели зеркального стекла. В зависимости от угла зрения здание кажется то полностью металлическим, то зеркальным.
 
Центр науки и инноваций Vizium
Центр науки и инноваций Vizium
Фото © Norbert Tukaj

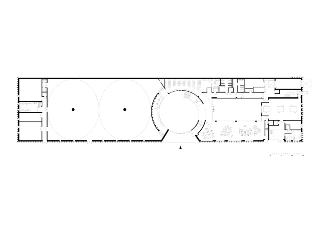
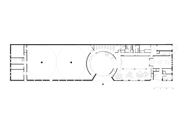
Более низкую часть занимает центр науки: здесь с помощью интерактивной экспозиции дошкольники и ученики средних школ могут больше узнать о естественных и точных науках, от строения Земли до строения человеческого тела, а также о информационных технологиях.
 
Центр науки и инноваций Vizium
Центр науки и инноваций Vizium
Фото © Norbert Tukaj

Шестиэтажная часть занята центром инноваций, где школьники и студенты смогут поработать в хай-тек-мастерских и лабораториях, посетить семинары и конференции. В целом, центр направлен на развитие у них интереса к профессиям инженера, исследователя в области химии, биологии и других наук, а также к сфере IT и связанному с ней предпринимательству.
 
Центр науки и инноваций Vizium
Центр науки и инноваций Vizium
Фото © Norbert Tukaj

Vizium также рассчитан на «взрослые» события в области цифровых индустрий и может в том числе функционировать как бизнес-инкубатор.
 
Центр науки и инноваций Vizium Фото © Norbert Tukaj
Центр науки и инноваций Vizium
Фото © Norbert Tukaj
Центр науки и инноваций Vizium Фото © Norbert Tukaj
Центр науки и инноваций Vizium
Фото © Norbert Tukaj
Центр науки и инноваций Vizium Фото © Norbert Tukaj
Центр науки и инноваций Vizium
Фото © Norbert Tukaj
Центр науки и инноваций Vizium Фото © Norbert Tukaj
Центр науки и инноваций Vizium
Фото © Norbert Tukaj
Центр науки и инноваций Vizium Фото © Norbert Tukaj
Центр науки и инноваций Vizium
Фото © Norbert Tukaj

В седловине кровле, к которой почти подступает склон холма, расположена терраса, куда выходят кафе и конференц-зал, оттуда же можно попасть и в главный вестибюль. На самом холме тоже можно устраивать мероприятия – или просто пикники.
Центр науки и инноваций Vizium
Центр науки и инноваций Vizium
Фото © Norbert Tukaj
Центр науки и инноваций Vizium Фото © Norbert Tukaj
Центр науки и инноваций Vizium
Фото © Norbert Tukaj
Центр науки и инноваций Vizium Фото © Norbert Tukaj
Центр науки и инноваций Vizium
Фото © Norbert Tukaj
Центр науки и инноваций Vizium Фото © Norbert Tukaj
Центр науки и инноваций Vizium
Фото © Norbert Tukaj
Центр науки и инноваций Vizium Фото © Norbert Tukaj
Центр науки и инноваций Vizium
Фото © Norbert Tukaj
Центр науки и инноваций Vizium Фото © Norbert Tukaj
Центр науки и инноваций Vizium
Фото © Norbert Tukaj
Центр науки и инноваций Vizium
Центр науки и инноваций Vizium
Фото © Norbert Tukaj
Центр науки и инноваций Vizium Фото © Norbert Tukaj
Центр науки и инноваций Vizium
Фото © Norbert Tukaj
Центр науки и инноваций Vizium Фото © Norbert Tukaj
Центр науки и инноваций Vizium
Фото © Norbert Tukaj
Центр науки и инноваций Vizium Фото © Norbert Tukaj
Центр науки и инноваций Vizium
Фото © Norbert Tukaj
Центр науки и инноваций Vizium Фото © Norbert Tukaj
Центр науки и инноваций Vizium
Фото © Norbert Tukaj
Центр науки и инноваций Vizium Фото © Norbert Tukaj
Центр науки и инноваций Vizium
Фото © Norbert Tukaj
Центр науки и инноваций Vizium Фото © Norbert Tukaj
Центр науки и инноваций Vizium
Фото © Norbert Tukaj
Центр науки и инноваций Vizium
Центр науки и инноваций Vizium
Фото © Norbert Tukaj
Центр науки и инноваций Vizium Фото © Norbert Tukaj
Центр науки и инноваций Vizium
Фото © Norbert Tukaj
Центр науки и инноваций Vizium Фото © Norbert Tukaj
Центр науки и инноваций Vizium
Фото © Norbert Tukaj
Центр науки и инноваций Vizium Фото © Norbert Tukaj
Центр науки и инноваций Vizium
Фото © Norbert Tukaj
Центр науки и инноваций Vizium Фото © Norbert Tukaj
Центр науки и инноваций Vizium
Фото © Norbert Tukaj
Центр науки и инноваций Vizium Фото © Norbert Tukaj
Центр науки и инноваций Vizium
Фото © Norbert Tukaj
Центр науки и инноваций Vizium Фото © Norbert Tukaj
Центр науки и инноваций Vizium
Фото © Norbert Tukaj
Центр науки и инноваций Vizium
Центр науки и инноваций Vizium
Фото © Norbert Tukaj
Центр науки и инноваций Vizium Фото © Norbert Tukaj
Центр науки и инноваций Vizium
Фото © Norbert Tukaj
Центр науки и инноваций Vizium Фото © Norbert Tukaj
Центр науки и инноваций Vizium
Фото © Norbert Tukaj
Центр науки и инноваций Vizium Фото © Norbert Tukaj
Центр науки и инноваций Vizium
Фото © Norbert Tukaj
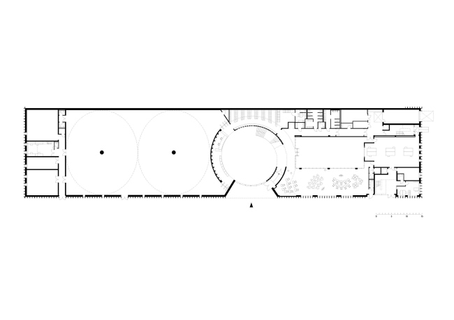
Центр науки и инноваций Vizium
Центр науки и инноваций Vizium
© Audrius Ambrasas Architects
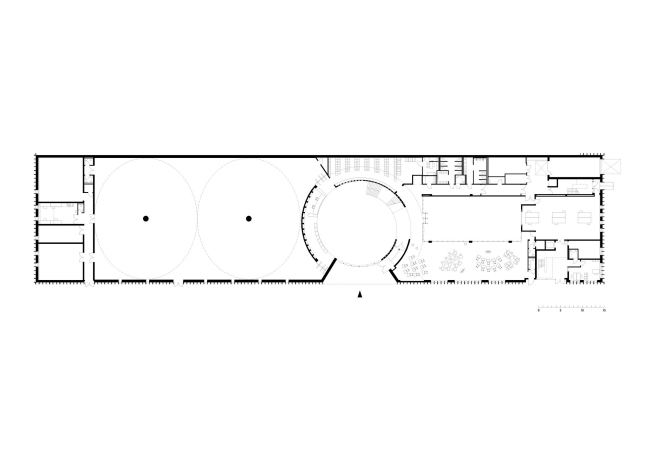
Центр науки и инноваций Vizium
Центр науки и инноваций Vizium
© Audrius Ambrasas Architects
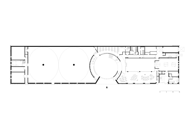
Центр науки и инноваций Vizium
Центр науки и инноваций Vizium
© Audrius Ambrasas Architects
Центр науки и инноваций Vizium
Центр науки и инноваций Vizium
© Audrius Ambrasas Architects
Центр науки и инноваций Vizium
Центр науки и инноваций Vizium
© Audrius Ambrasas Architects
Центр науки и инноваций Vizium
Центр науки и инноваций Vizium
© Audrius Ambrasas Architects
Центр науки и инноваций Vizium
Центр науки и инноваций Vizium
© Audrius Ambrasas Architects
Центр науки и инноваций Vizium
Центр науки и инноваций Vizium
© Audrius Ambrasas Architects