Размещено на портале Архи.ру (www.archi.ru)

08.12.2021

Ансамблевое решение

Нина Фролова
Объект:
Квартал Tafelhof Palais
Адрес:
Германия, None, Нюрнберг.

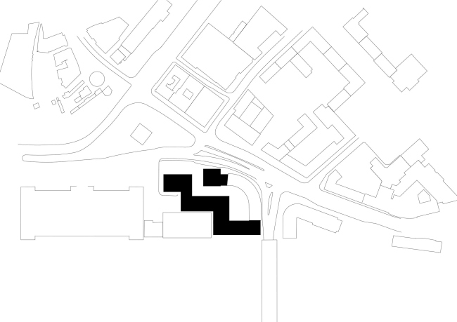
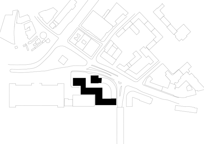
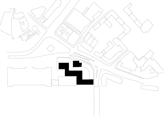
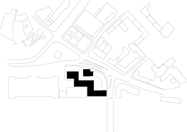
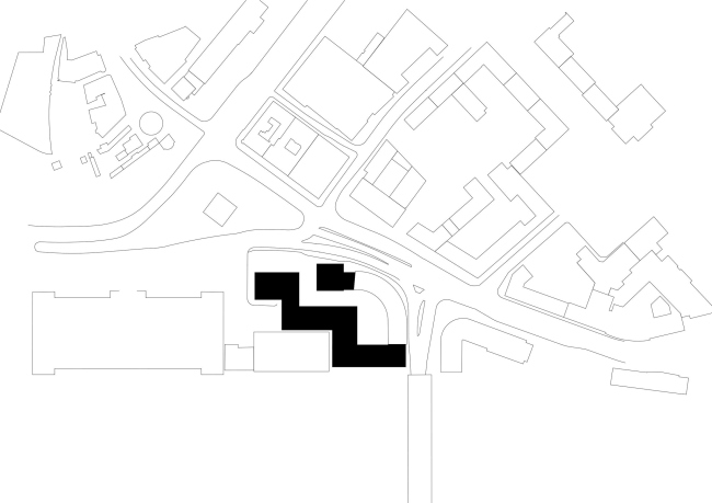
Квартал Tafelhof Palais по проекту бюро Макса Дудлера связал исторический центр Нюрнберга и более новые районы.

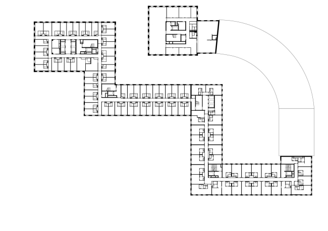
Tafelhof Palais с двумя башнями (более высокая достигает 15 этажей) стал новой доминантой на вокзальной площади, завершая ее ансамбль с востока. Квартал занял бывший хозяйственный двор главного почтамта: само его здание 1920-х годов сохранено и включено в состав Tafelhof Palais.
 

Квартал Tafelhof Palais
Квартал Tafelhof Palais
Фото © Stefan Müller

Название нового комплекса – «дворец Тафельхоф» – напоминает о названии района, начинающегося от существовавших здесь главных городских ворот как раз в месте расположения вокзала. Еще недавно он был вполне сельским и по-настоящему урбанизировался лишь после Второй мировой. Таким образом, вокзал и квартал по проекту Макса Дудлера отмечают его границу, а также вход в старый город и начало (или конец) улицы Кёнигштрассе, ведущей отсюда в самое сердце Нюрнберга.
 
Квартал Tafelhof Palais
Квартал Tafelhof Palais
Фото © Stefan Müller

По этой причине было важным заполнить лакуну в застройке, существовавшую 25 лет, задать акцент в важной точке города, но также остаться тактичным по отношению к сложившейся градостроительной ситуации.
 
Квартал Tafelhof Palais
Квартал Tafelhof Palais
Фото © Stefan Müller

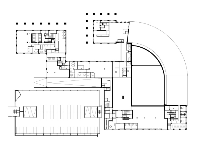
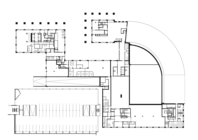
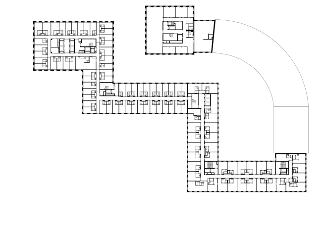
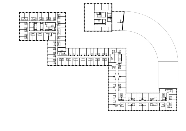
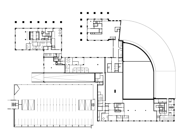
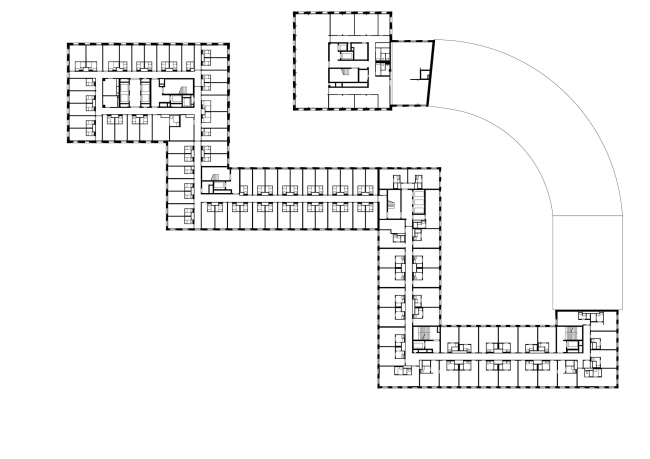
Поэтому новые прямоугольные корпуса, связанные между собой и с полукруглым зданием почтамта, сдержанны по архитектуре и должны создать полноценный фрагмент города с галереями первых этажей, переулками и лестницами с широкими ступенями, где можно отдохнуть в тишине.
 
Квартал Tafelhof Palais
Квартал Tafelhof Palais
Фото © Stefan Müller

В башнях расположены два отеля, более дорогой – сети Leonardo, и бюджетный Motel One. Два горизонтальных объема и почтамт заняли офисы, магазины и рестораны.
 
Квартал Tafelhof Palais
Квартал Tafelhof Palais
Фото © Stefan Müller

Решение фасада основано на выверенных пропорциях, декор сводится к вертикальным полосам бежевой штукатурки, которые становятся уже по мере возрастания высоты.
Квартал Tafelhof Palais
Квартал Tafelhof Palais
Фото © Stefan Müller
Квартал Tafelhof Palais
Квартал Tafelhof Palais
Фото © Stefan Müller
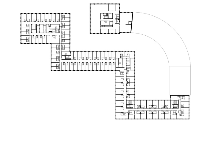
Квартал Tafelhof Palais
Квартал Tafelhof Palais
© Max Dudler GmbH
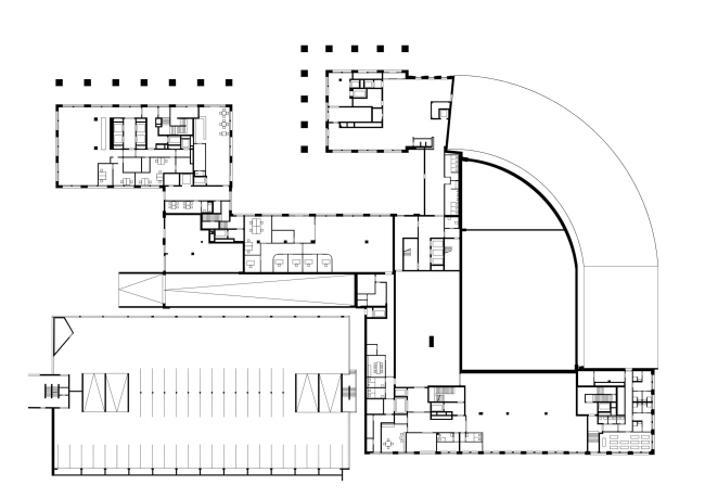
Квартал Tafelhof Palais
Квартал Tafelhof Palais
© Max Dudler GmbH
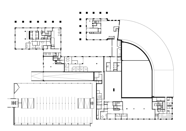
Квартал Tafelhof Palais
Квартал Tafelhof Palais
© Max Dudler GmbH
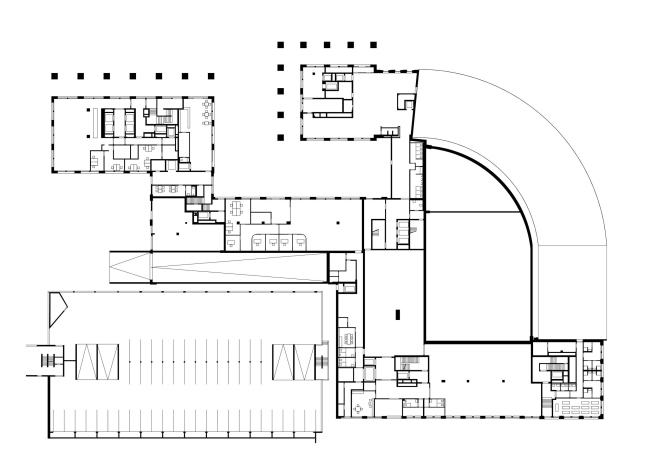
Квартал Tafelhof Palais
Квартал Tafelhof Palais
© Max Dudler GmbH
Квартал Tafelhof Palais
Квартал Tafelhof Palais
© Max Dudler GmbH
Квартал Tafelhof Palais
Квартал Tafelhof Palais
© Max Dudler GmbH
Квартал Tafelhof Palais
Квартал Tafelhof Palais
© Max Dudler GmbH