Размещено на портале Архи.ру (www.archi.ru)

08.12.2021

Береговые перископы

Анна Старостина
Объект:
Домики для отдыха La Loica и La Tagua
Адрес:
Чили,
Мастерская:
Croxatto & Opazo Arquitectos
Авторский коллектив:

Felipe Croxatto, Nicolas Opazo
Martin Dellatorre, Maximiliano Valle, Juan Quiroga | Daniela Marmol
Luis Della Valle

Архитекторы из Сантьяго-де-Чили Фелипе Кроксатто и Николас Опасо построили два крошечных домика для отдыха с видом на океанский прибой, скалистый остров, колонию морских львов и яркие крылья кайтов.

Деревушка Матансас коммуны Навидад расположена на тихоокеанском побережье Чили примерно в двух с половиной часах пути от Сантьяго. Сильные ветра и отличные волны превратили эти места в настоящий рай для серферов и кайтеров. Именно этот берег выбрали две молодые пары и заказали бюро из Сантьяго Croxatto & Opazo Arquitectos два совсем небольших дома, чтобы проводить там уик-энд. В качестве площадки под строительство присмотрели крутой прибрежный склон, обращенный в сторону эффектно выступающего из воды фрагмента скальной породы, который облюбовали морские львы.

Домики для отдыха La Loica и La Tagua
Домики для отдыха La Loica и La Tagua
Фотография © Cristobal Palma, предоставлено Croxatto & Opazo Arquitectos
Домики для отдыха La Loica и La Tagua
Домики для отдыха La Loica и La Tagua
Фотография © Cristobal Palma, предоставлено Croxatto & Opazo Arquitectos

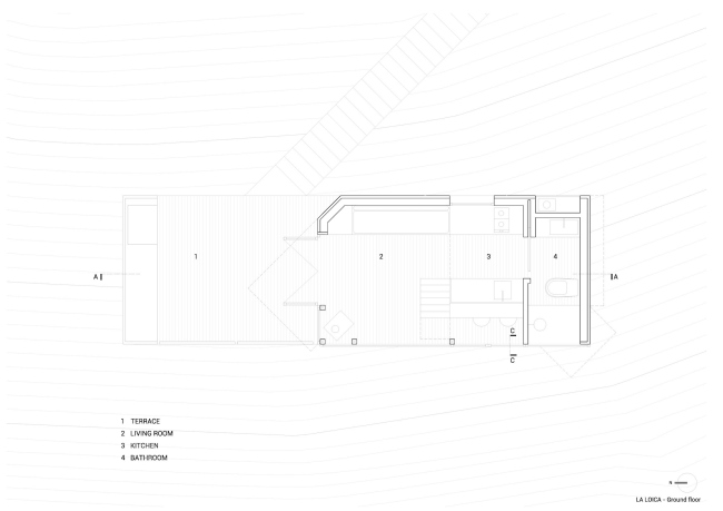
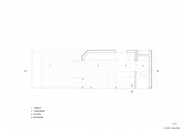
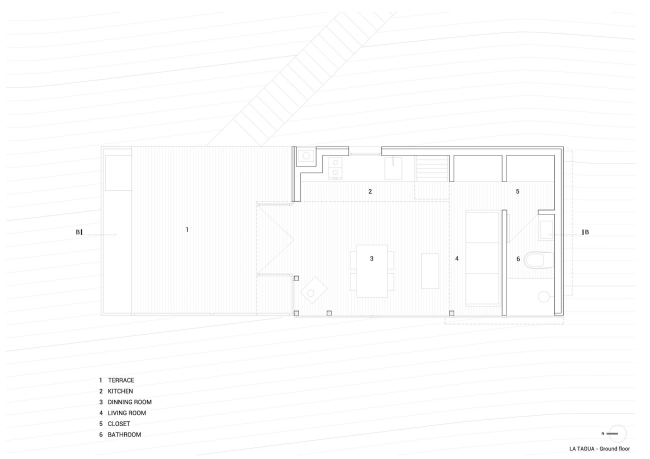
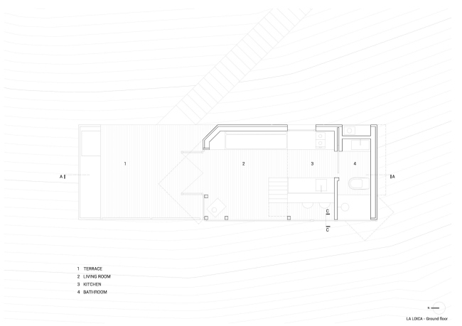
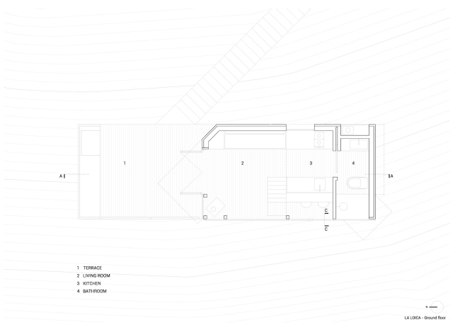
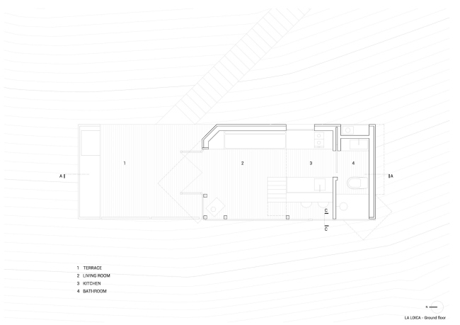
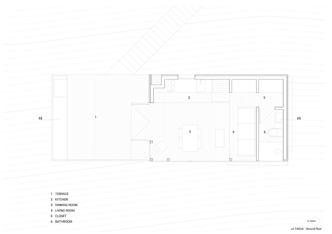
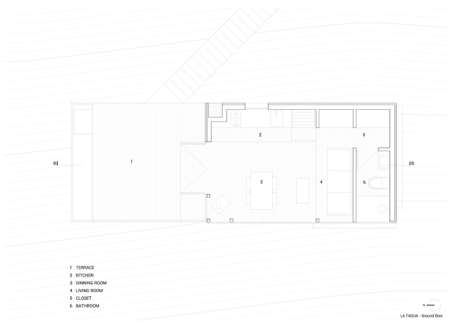
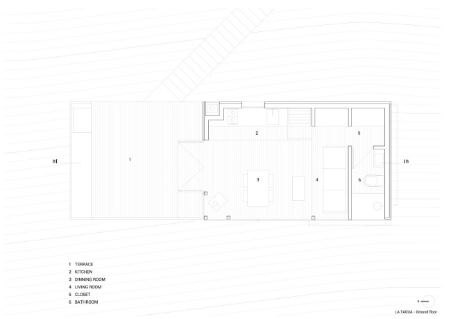
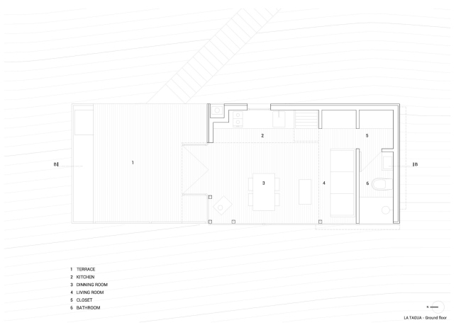
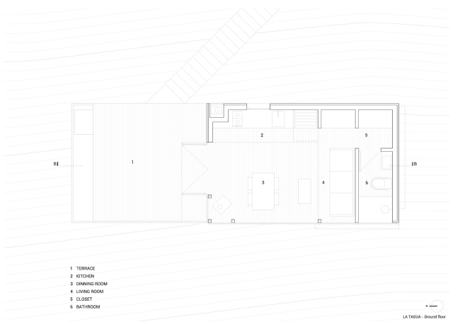
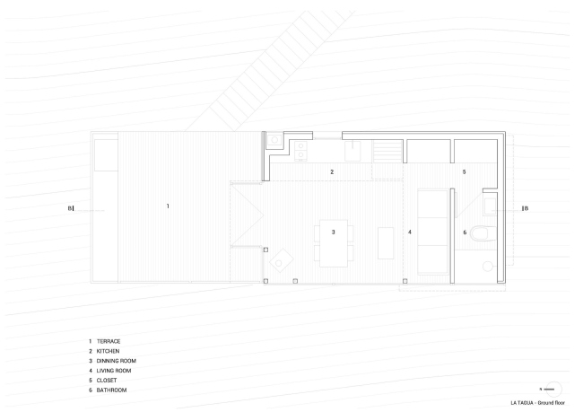
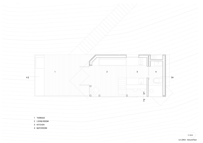
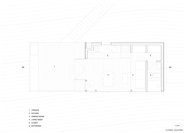
Предложенная архитекторами концепция включает в себя буквально все важные элементы окружающей среды. Два вертикальных объема представляют собой довольно долговечные конструкции из пропитанной и высушенной в специальных печах сосны. Они установлены на высоте около 80 метров над уровнем моря и связаны деревянной лестницей. Нижний, площадью 25 м2, получил название La Tagua в честь одного из местных видов лысух. Верхний чуть меньше – всего 20 м2. Его назвали La Loica, то есть длиннохвостый луговой трупиал – еще одна распространенная здесь птичка.
Домики для отдыха La Loica и La Tagua
Домики для отдыха La Loica и La Tagua
Фотография © Cristobal Palma, предоставлено Croxatto & Opazo Arquitectos
Домики для отдыха La Loica и La Tagua
Домики для отдыха La Loica и La Tagua
Фотография © Cristobal Palma, предоставлено Croxatto & Opazo Arquitectos

Собственно жилое пространство обоих домов поднято над склоном на небольшую платформу. Оно двухуровневое и имеет очень плотную планировку. В нижней части расположена двусветная гостиная, небольшая кухня и ванная комната. По очень крутой лестнице из гостиной можно забраться наверх, в спальню. Почти вся мебель здесь встроенная и является частью архитектурного решения, что позволило максимально эффективно использовать имеющуюся площадь. Важным элементом стали и окна во всю высоту помещений, которые развернуты так, что лесистые склоны и скалы, животные и птицы, сам океан и даже серферы превращаются в эффектнейшие картины в рамах. Ну а если распахнуть широкие входные двери, то можно расширить пространство гостиной, объединив его с небольшой открытой, но хорошо защищенной от сильных ветров террасой.
Домики для отдыха La Loica и La Tagua
Домики для отдыха La Loica и La Tagua
Фотография © Cristobal Palma, предоставлено Croxatto & Opazo Arquitectos
Домики для отдыха La Loica и La Tagua
Домики для отдыха La Loica и La Tagua
Фотография © Cristobal Palma, предоставлено Croxatto & Opazo Arquitectos
Домики для отдыха La Loica и La Tagua
Домики для отдыха La Loica и La Tagua
Фотография © Cristobal Palma, предоставлено Croxatto & Opazo Arquitectos

Для внутренней отделки выбрали доски из сосны толщиной 13 мм и шириной 76 мм. А снаружи объемы покрыли брусками вторично использованного дуба. Дерево защитили от внешнего воздействия, обработав его специальными минеральными маслами с антисептическим эффектом. В результате чужеродные и изначально противопоставленные склону объемы оказываются аккуратно вписаны в окружающий ландшафт.
Домики для отдыха La Loica и La Tagua
Домики для отдыха La Loica и La Tagua
Фотография © Cristobal Palma, предоставлено Croxatto & Opazo Arquitectos

Общая стоимость проекта составила около 100 000 долларов. В настоящий момент гостевые домики доступны и для индивидуального посуточного бронирования.
Домики для отдыха La Loica и La Tagua
Домики для отдыха La Loica и La Tagua
Фотография © Cristobal Palma, предоставлено Croxatto & Opazo Arquitectos
Домики для отдыха La Loica и La Tagua
Домики для отдыха La Loica и La Tagua
Фотография © Cristobal Palma, предоставлено Croxatto & Opazo Arquitectos
Домики для отдыха La Loica и La Tagua
Домики для отдыха La Loica и La Tagua
Фотография © Cristobal Palma, предоставлено Croxatto & Opazo Arquitectos
Домики для отдыха La Loica и La Tagua
Домики для отдыха La Loica и La Tagua
Фотография © Cristobal Palma, предоставлено Croxatto & Opazo Arquitectos
Домики для отдыха La Loica и La Tagua
Домики для отдыха La Loica и La Tagua
Фотография © Cristobal Palma, предоставлено Croxatto & Opazo Arquitectos
Домики для отдыха La Loica и La Tagua
Домики для отдыха La Loica и La Tagua
Фотография © Cristobal Palma, предоставлено Croxatto & Opazo Arquitectos
Домики для отдыха La Loica и La Tagua
Домики для отдыха La Loica и La Tagua
Фотография © Cristobal Palma, предоставлено Croxatto & Opazo Arquitectos
Домики для отдыха La Loica и La Tagua
Домики для отдыха La Loica и La Tagua
Фотография © Cristobal Palma, предоставлено Croxatto & Opazo Arquitectos
Домики для отдыха La Loica и La Tagua
Домики для отдыха La Loica и La Tagua
Фотография © Cristobal Palma, предоставлено Croxatto & Opazo Arquitectos
Домики для отдыха La Loica и La Tagua
Домики для отдыха La Loica и La Tagua
Фотография © Cristobal Palma, предоставлено Croxatto & Opazo Arquitectos
Домики для отдыха La Loica и La Tagua
Домики для отдыха La Loica и La Tagua
© Croxatto & Opazo Arquitectos
Домики для отдыха La Loica и La Tagua
Домики для отдыха La Loica и La Tagua
© Croxatto & Opazo Arquitectos
Домики для отдыха La Loica и La Tagua
Домики для отдыха La Loica и La Tagua
© Croxatto & Opazo Arquitectos
Домики для отдыха La Loica и La Tagua
Домики для отдыха La Loica и La Tagua
© Croxatto & Opazo Arquitectos
Домики для отдыха La Loica и La Tagua
Домики для отдыха La Loica и La Tagua
© Croxatto & Opazo Arquitectos
Домики для отдыха La Loica и La Tagua
Домики для отдыха La Loica и La Tagua
© Croxatto & Opazo Arquitectos
Домики для отдыха La Loica и La Tagua
Домики для отдыха La Loica и La Tagua
© Croxatto & Opazo Arquitectos
Домики для отдыха La Loica и La Tagua
Домики для отдыха La Loica и La Tagua
© Croxatto & Opazo Arquitectos
Домики для отдыха La Loica и La Tagua
Домики для отдыха La Loica и La Tagua
© Croxatto & Opazo Arquitectos
Домики для отдыха La Loica и La Tagua
Домики для отдыха La Loica и La Tagua
© Croxatto & Opazo Arquitectos
Домики для отдыха La Loica и La Tagua
Домики для отдыха La Loica и La Tagua
© Croxatto & Opazo Arquitectos
Домики для отдыха La Loica и La Tagua
Домики для отдыха La Loica и La Tagua
© Croxatto & Opazo Arquitectos
Домики для отдыха La Loica и La Tagua
Домики для отдыха La Loica и La Tagua
© Croxatto & Opazo Arquitectos
Домики для отдыха La Loica и La Tagua
Домики для отдыха La Loica и La Tagua
© Croxatto & Opazo Arquitectos
Домики для отдыха La Loica и La Tagua
Домики для отдыха La Loica и La Tagua
© Croxatto & Opazo Arquitectos
Домики для отдыха La Loica и La Tagua
Домики для отдыха La Loica и La Tagua
© Croxatto & Opazo Arquitectos