Размещено на портале Архи.ру (www.archi.ru)

19.11.2021

«Рабочий» домик в 24 м2 для кинорежиссера на берегу финского озера

Алина Измайлова

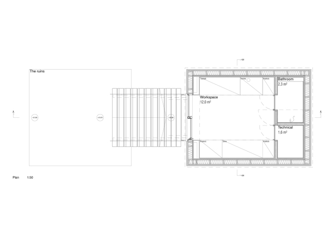
Пандемия заставила людей по-новому взглянуть на организацию рабочего пространства и соблюдение баланса между работой и личной жизнью. Так, один из кинорежиссеров пожелал обустроить свой «офис» на берегу озера Поровеси в Центральной Финляндии, чтобы по максимуму изолироваться от внешних раздражителей и дать свободу творческой фантазии. Финский тандем Pirinen & Salo спроектировал для него «рабочий» домик площадью 24 м2.

«Хижина режиссера»
«Хижина режиссера»
Фото © Marc Goodwin

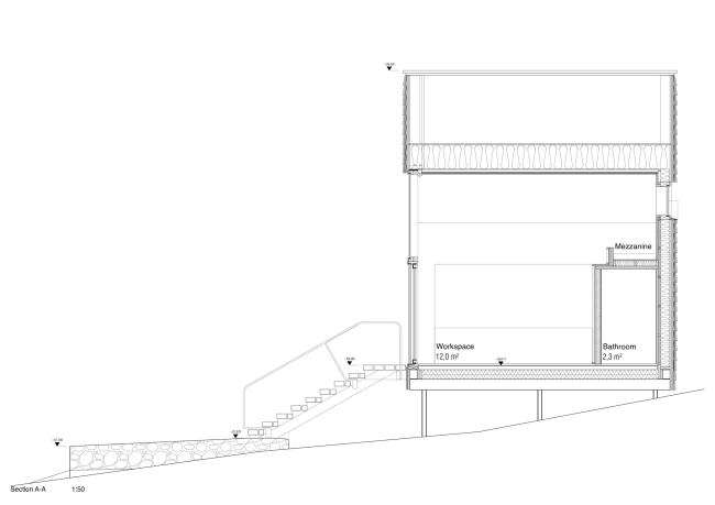
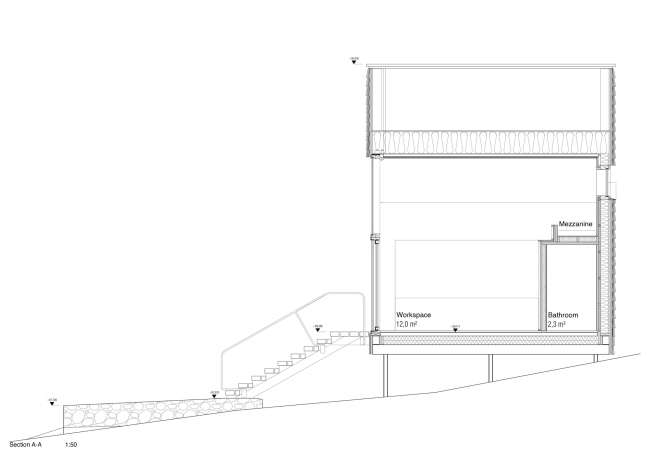
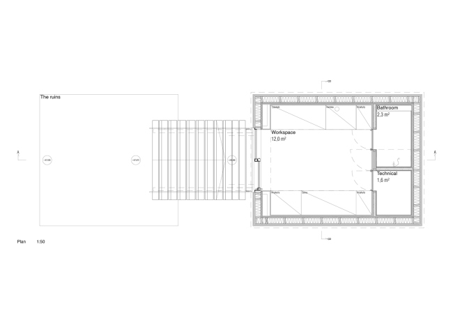
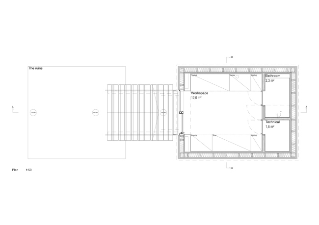
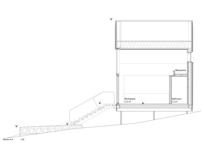
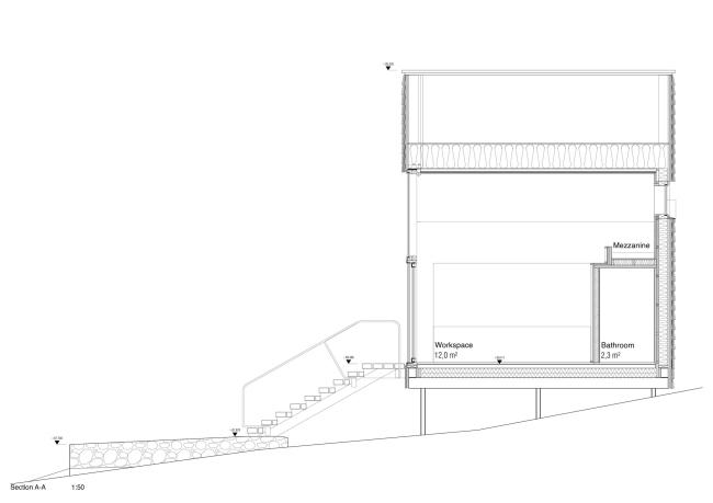
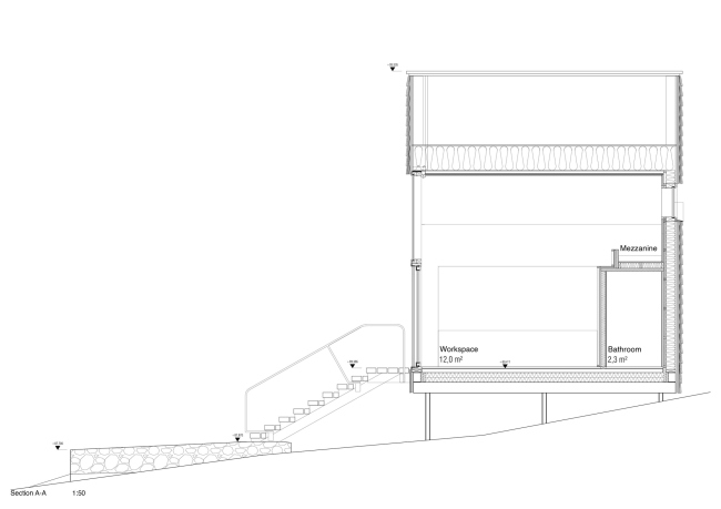
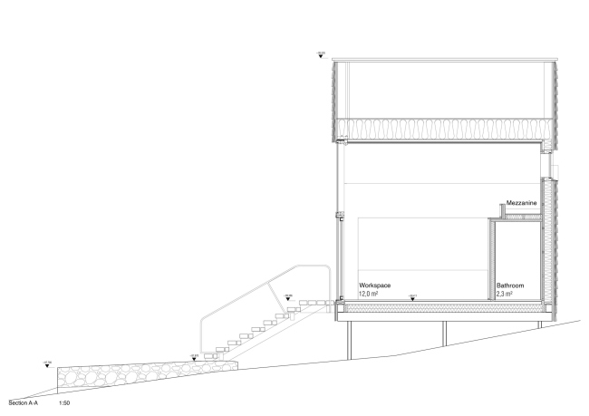
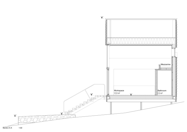
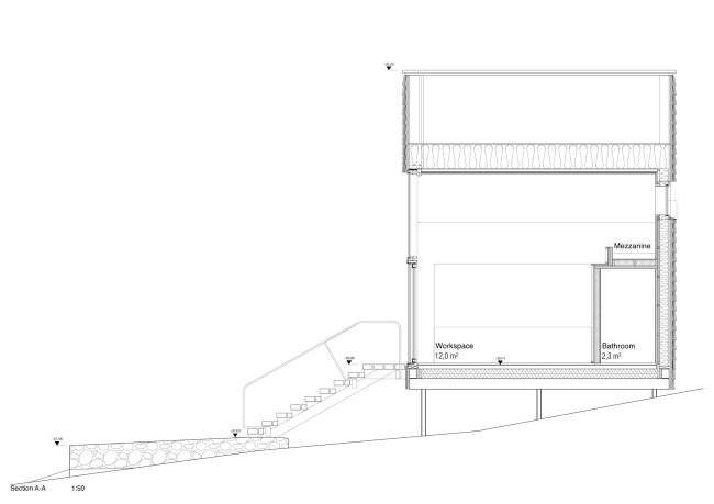
Путь к входу в дом пролегает вдоль береговой линии – деревянный настил служит своего рода символом перехода из мирской жизни в «возвышенный мир идей», дорога призвана помочь владельцу «хижины» отключиться от рутинных проблем и настроиться на рабочие процессы.
«Хижина режиссера» Фото © Marc Goodwin
«Хижина режиссера»
Фото © Marc Goodwin
«Хижина режиссера» Фото © Marc Goodwin
«Хижина режиссера»
Фото © Marc Goodwin
«Хижина режиссера» Фото © Marc Goodwin
«Хижина режиссера»
Фото © Marc Goodwin
«Хижина режиссера» Фото © Marc Goodwin
«Хижина режиссера»
Фото © Marc Goodwin
«Хижина режиссера» Фото © Marc Goodwin
«Хижина режиссера»
Фото © Marc Goodwin
«Хижина режиссера» Фото © Marc Goodwin
«Хижина режиссера»
Фото © Marc Goodwin

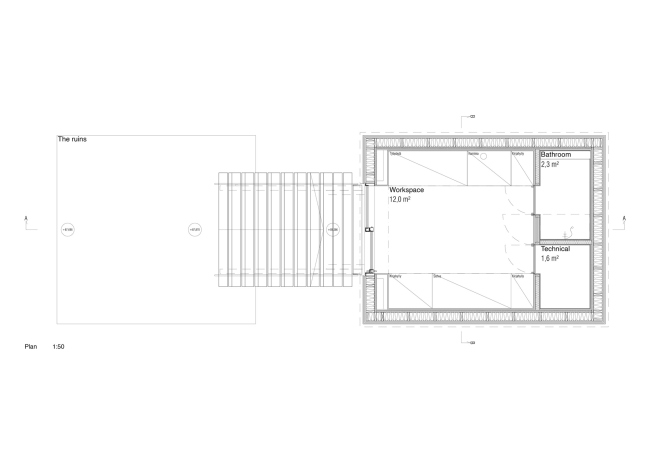
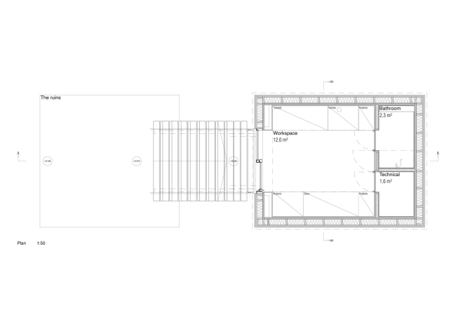
«Интровертивный» функционал постройки прочитывается в ее расположении: ее вход и главное окно обращены к озеру, расположенное всего в нескольких метрах, а с «тыла» глухой фасад прикрывают высокие сосны.
«Хижина режиссера» Фото © Marc Goodwin
«Хижина режиссера»
Фото © Marc Goodwin
«Хижина режиссера» Фото © Marc Goodwin
«Хижина режиссера»
Фото © Marc Goodwin
«Хижина режиссера» Фото © Marc Goodwin
«Хижина режиссера»
Фото © Marc Goodwin
«Хижина режиссера» Фото © Marc Goodwin
«Хижина режиссера»
Фото © Marc Goodwin

Со стороны дом выглядит старше, чем есть на самом деле; «вневременной» вид ему придает просмоленный гонт, которым обшиты фасады и кровля. Сочетание нарочито маленьких деревянных пластин и гиперболизировано большой двускатной крыши визуально делает жилище кинорежиссера крупнее.
«Хижина режиссера» Фото © Marc Goodwin
«Хижина режиссера»
Фото © Marc Goodwin
«Хижина режиссера» Фото © Marc Goodwin
«Хижина режиссера»
Фото © Marc Goodwin
«Хижина режиссера» Фото © Marc Goodwin
«Хижина режиссера»
Фото © Marc Goodwin
«Хижина режиссера» Фото © Marc Goodwin
«Хижина режиссера»
Фото © Marc Goodwin
«Хижина режиссера» Фото © Marc Goodwin
«Хижина режиссера»
Фото © Marc Goodwin

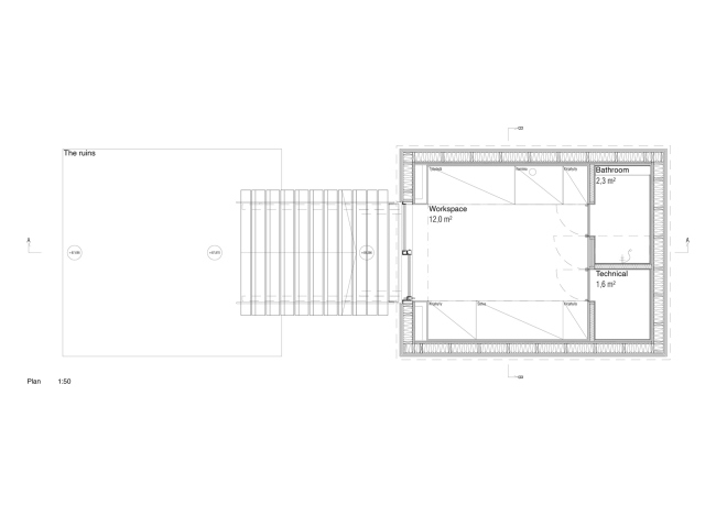
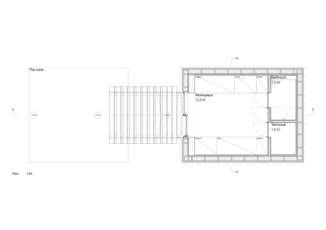
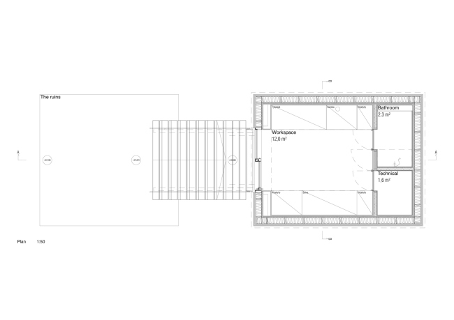
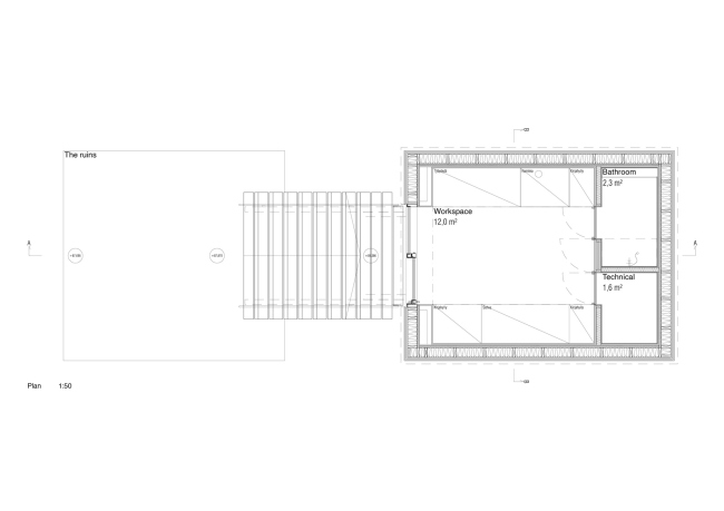
Дом упрощенно повторяет строение базилики: в поперечном разрезе отчетливо прочитываются главный и боковые нефы, вместо витражей и фресок с изображениями святых здесь – постеры к кинофильмам. Интерьер воспроизводит мистическую атмосферу средневековой церкви: стены и сводчатый потолок облицованы панелями из темного дуба, а пол покрыт грубыми каменными плитами. Авторы называют построенное по их проекту здание «храмом».
«Хижина режиссера» Фото © Marc Goodwin
«Хижина режиссера»
Фото © Marc Goodwin
«Хижина режиссера» Фото © Marc Goodwin
«Хижина режиссера»
Фото © Marc Goodwin
«Хижина режиссера» Фото © Marc Goodwin
«Хижина режиссера»
Фото © Marc Goodwin
«Хижина режиссера» Фото © Marc Goodwin
«Хижина режиссера»
Фото © Marc Goodwin

В ниши, образованные «боковыми нефами», встроена мебель – столешницы, книжные полки, диван и камин. Все рабочие поверхности выполнены из светлой древесины – по мысли специалистов из Pirinen & Salo, это должно помочь заказчику сконцентрироваться на выполнении творческих задач. В «апсиде» расположена антресоль с небольшим круглым окном, предназначенная для отдыха и размышлений. Все технические устройства, необходимые для комфортной жизни, спрятаны в стене под антресолью.
«Хижина режиссера»
«Хижина режиссера»
Фото © Marc Goodwin
«Хижина режиссера»
«Хижина режиссера»
Фото © Marc Goodwin
«Хижина режиссера»
«Хижина режиссера»
Фото © Marc Goodwin
«Хижина режиссера»
«Хижина режиссера»
Фото © Marc Goodwin
«Хижина режиссера»
«Хижина режиссера»
Фото © Marc Goodwin
«Хижина режиссера»
«Хижина режиссера»
Фото © Marc Goodwin
«Хижина режиссера»
«Хижина режиссера»
Фото © Marc Goodwin
«Хижина режиссера»
«Хижина режиссера»
Фото © Marc Goodwin
«Хижина режиссера»
«Хижина режиссера»
Фото © Marc Goodwin
«Хижина режиссера»
«Хижина режиссера»
Изображение © Pirinen & Salo
«Хижина режиссера»
«Хижина режиссера»
Изображение © Pirinen & Salo
«Хижина режиссера»
«Хижина режиссера»
Изображение © Pirinen & Salo
«Хижина режиссера»
«Хижина режиссера»
Изображение © Pirinen & Salo