Размещено на портале Архи.ру (www.archi.ru)

10.11.2021

«Восьмерка» над метро

Нина Фролова
Объект:
Комплекс Infinitus Plaza
Адрес:
Китай, None, Гуанчжоу.
Мастерская:
Zaha Hadid Architects
Авторский коллектив:
Design: Patrik Schumacher
ZHA Project Director: Satoshi Ohashi
ZHA Project Associates: Yang Jingwen, Juan Liu, Martin Pfleger, Dennis Brezina
ZHA Project Architect: Kai-Jui Tsao
ZHA Façade Lead: Xuexin Duan, Nan Jiang
ZHA Project Team: Congyue Wang, Feifei Fan, Lida Zhang, Eugene Leung, Lily Liu, Qi Cao, Shu Hashimoto, Xiaoyu Zhang, Ying Xia, Zhe Xing
ZHA Competition Project Directors: Satoshi Ohashi, Paulo Flores
ZHA Competition Associate: Yang Jingwen
ZHA Competition Team: Anat Stern, Chaoxiong Huang, Damiano Rizzini, Harry Spraiter, Marius Cernica, Tommaso Casucci, Xuexin Duan, Lida Zhang, Shu Hashimoto
ZHA Interior Architecture Project Directors: Satoshi Ohashi, Kar-Hwa Ho, Melodie Leung
ZHA Interior Architecture Associates: Torsten Broeder, Yang Jingwen, Juan Liu
ZHA Interior Architecture Competition Team: Aleksandra Mnich-Spraiter, Emily Rohrer, Evgeniya Yatsyuk, William Colenso, Iliana Capsali, Martin Pfleger, Mercedes Sarua, Olga Yatsyuk, Philipp Siedler, Silviya Barzakova, Soungmin Yu, Uli Blum, Fei-Fei Fan, Juan Liu, Kai-Jui Tsao, Nan Jiang, Xuexin Duan, Zhe Xing
ZHA Interior Architecture Project Team: Aleksandra Mnich-Spraiter, Amittai Antoine, Dieter Matuschke, William Colenso, Iliana Capsali, Magda Smolinska, Mercedes Sarua, Philipp Siedler, Uli Blum, Conyue Wang, Fei-Fei Fan, Juan Liu, Kai-Jui Tsao, Nan Jiang, , Xuexin Duan, Zhe Xing

Штаб-квартира компании Infinitus по проекту Zaha Hadid Architects талией своего объема-«восьмерки» перекинута через тоннель метро в Гуанчжоу.

Infinitus China – крупная компания по производству пищевых добавок из традиционных для Китая лекарственных трав – расположила свою штаб-квартиру в деловом районе «Новый город Байюнь» в Гуанчжоу. Туда ведет линия метро 2, неглубокий тоннель которой значительно повлиял на решение здания Zaha Hadid Architects.
 

Комплекс Guangzhou Infinitus Plaza
Комплекс Guangzhou Infinitus Plaza
Фото © Liang Xue

Оно оказалось разделенным на два схожих по облику и размеру объема, между которыми на разных этажах перекинуты мостики: все вместе образует подобие цифры 8 или же знака бесконечности ∞, что особенно уместно для компании с названием Infinitus.
 
Комплекс Guangzhou Infinitus Plaza
Комплекс Guangzhou Infinitus Plaza
Фото © Liang Xue

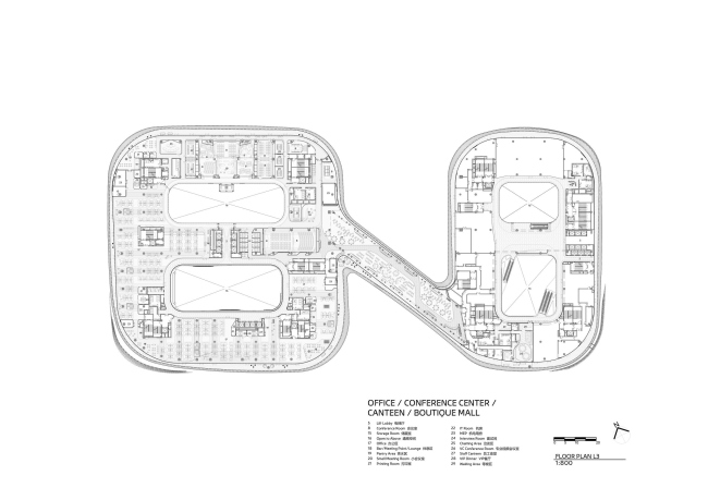
Внутри, на площади в 185 тыс. м2, расположены офисы, лаборатории и образовательный центр, где будут проходить выставки и конференции. Мостики между двумя объемами вмещают спортзалы, рекреационные пространства, кафе и ресторан для сотрудников. На кровле мостиков устроены сады, то же самое касается и основных крыш, где также есть беговая и прогулочные дорожки.
 
Комплекс Guangzhou Infinitus Plaza
Комплекс Guangzhou Infinitus Plaza
Фото © Felix Amiss

В проекте есть много эко-компонентов и помимо озелененных крыш, защищающих здание от перегрева. Такую же роль играют солнцезащитные алюминиевые экраны с мелкой перфорацией и двойное остекление, самозатеняющиеся террасы. Продуманная конструкция потребовала при строительстве меньших затрат бетона и позволила увеличить пропорцию материалов, которые можно использовать повторно. В самом проекте применено 25 тонн вторично использованного «сырья» – сталь, медь, стекло, профили из сплавов алюминия и т.д. (какую эти тонны составляют долю от всего затраченного при строительстве объема, не сообщается).
 
Комплекс Guangzhou Infinitus Plaza
Комплекс Guangzhou Infinitus Plaza
Фото © Liang Xue

Системами здания управляет «умная» программа, здесь есть солнечные батареи, а воду нагревают солнечные коллекторы. Собранную дождевую воду разбрызгивают на перекрытия атриумов – полимерные мембраны, наполненные воздухом, когда они нагреваются до 35 градусов – по 3-4 минуты каждые полчаса. Верхняя поверхность мембран при этом охлаждается на 14 градусов, а интерьер – на пять градусов.
 
Комплекс Guangzhou Infinitus Plaza
Комплекс Guangzhou Infinitus Plaza
Фото © Liang Xue
Комплекс Guangzhou Infinitus Plaza
Комплекс Guangzhou Infinitus Plaza
Фото © Liang Xue
Комплекс Guangzhou Infinitus Plaza
Комплекс Guangzhou Infinitus Plaza
Фото © Liang Xue
Комплекс Guangzhou Infinitus Plaza
Комплекс Guangzhou Infinitus Plaza
Фото © Felix Amiss
Комплекс Guangzhou Infinitus Plaza
Комплекс Guangzhou Infinitus Plaza
Фото © Felix Amiss
Комплекс Guangzhou Infinitus Plaza
Комплекс Guangzhou Infinitus Plaza
Фото © Liang Xue
Комплекс Guangzhou Infinitus Plaza
Комплекс Guangzhou Infinitus Plaza
Фото © Liang Xue
Комплекс Guangzhou Infinitus Plaza
Комплекс Guangzhou Infinitus Plaza
Фото © Liang Xue
Комплекс Guangzhou Infinitus Plaza
Комплекс Guangzhou Infinitus Plaza
Фото © Liang Xue
Комплекс Guangzhou Infinitus Plaza
Комплекс Guangzhou Infinitus Plaza
Фото © Liang Xue
Комплекс Guangzhou Infinitus Plaza
Комплекс Guangzhou Infinitus Plaza
Фото © Liang Xue
Комплекс Guangzhou Infinitus Plaza
Комплекс Guangzhou Infinitus Plaza
Фото © Liang Xue
Комплекс Guangzhou Infinitus Plaza
Комплекс Guangzhou Infinitus Plaza
Фото © Liang Xue
Комплекс Guangzhou Infinitus Plaza
Комплекс Guangzhou Infinitus Plaza
Фото © Felix Amiss
Комплекс Guangzhou Infinitus Plaza
Комплекс Guangzhou Infinitus Plaza
Фото © Felix Amiss
Комплекс Guangzhou Infinitus Plaza
Комплекс Guangzhou Infinitus Plaza
Фото © Felix Amiss
Комплекс Guangzhou Infinitus Plaza
Комплекс Guangzhou Infinitus Plaza
Фото © Felix Amiss
Комплекс Guangzhou Infinitus Plaza
Комплекс Guangzhou Infinitus Plaza
© Zaha Hadid Architects
Комплекс Guangzhou Infinitus Plaza
Комплекс Guangzhou Infinitus Plaza
© Zaha Hadid Architects
Комплекс Guangzhou Infinitus Plaza
Комплекс Guangzhou Infinitus Plaza
© Zaha Hadid Architects
Комплекс Guangzhou Infinitus Plaza
Комплекс Guangzhou Infinitus Plaza
© Zaha Hadid Architects
Комплекс Guangzhou Infinitus Plaza
Комплекс Guangzhou Infinitus Plaza
© Zaha Hadid Architects
Комплекс Guangzhou Infinitus Plaza
Комплекс Guangzhou Infinitus Plaza
© Zaha Hadid Architects
Комплекс Guangzhou Infinitus Plaza
Комплекс Guangzhou Infinitus Plaza
© Zaha Hadid Architects
Комплекс Guangzhou Infinitus Plaza
Комплекс Guangzhou Infinitus Plaza
© Zaha Hadid Architects
Комплекс Guangzhou Infinitus Plaza
Комплекс Guangzhou Infinitus Plaza
© Zaha Hadid Architects
Комплекс Guangzhou Infinitus Plaza
Комплекс Guangzhou Infinitus Plaza
© Zaha Hadid Architects
Комплекс Guangzhou Infinitus Plaza
Комплекс Guangzhou Infinitus Plaza
© Zaha Hadid Architects
Комплекс Guangzhou Infinitus Plaza
Комплекс Guangzhou Infinitus Plaza
© Zaha Hadid Architects
Комплекс Guangzhou Infinitus Plaza
Комплекс Guangzhou Infinitus Plaza
© Zaha Hadid Architects
Комплекс Guangzhou Infinitus Plaza
Комплекс Guangzhou Infinitus Plaza
© Zaha Hadid Architects