Размещено на портале Архи.ру (www.archi.ru)

03.11.2021

Чувство ритма на фасаде

Нина Фролова
Объект:
Студенческое общежитие HAINBASE
Адрес:
Германия, None, Ганновер. Schulenburger Landstraße 114, D-30165

Студенческое общежитие по проекту Макса Дудлера отмечает въезд в Ганновер с севера и начало нового района – преображенной промзоны.

Общежитие получило название HAINBASE – по району Хайнхольц, где оно расположено. В 2001 здесь началось превращение промзоны в территорию смешанной застройки, где было важным создать в том числе и социальное разнообразие. В наши дни жилье для студентов дополнило уже существующие здесь квартиры для пожилых и обычные дома. Кроме того, проект Макса Дудлера вписывается в стратегию «оживления» района с помощью качественной современной архитектуры.
 

Студенческое общежитие HAINBASE
Студенческое общежитие HAINBASE
Фото © Stefan Müller

HAINBASE стоит на углу магистрали, отмечая въезд в город и северо-западный край района Хайнхольц. Роль «маяка» играет 13-этажная башня, от которой в обе стороны понижается высота здания. Выходящий на магистраль торец «спускается вниз» в два приема-ступени, на которых созданы террасы. Продольная сторона постройки сначала снижается до пяти этажей, потом «выравнивается» до семи.
 
Студенческое общежитие HAINBASE
Студенческое общежитие HAINBASE
Фото © Stefan Müller

Все фасады отмечены мощным скосом оконного откоса, который в зависимости от этажа помещен справа или слева от проема. Этот ритм объединяет все части здания и придает динамику его облику. Особенно ярко он проявлен в глухих нишах брандмауэра и обращенных к террасам участках фасада.
 
Студенческое общежитие HAINBASE
Студенческое общежитие HAINBASE
Фото © Stefan Müller

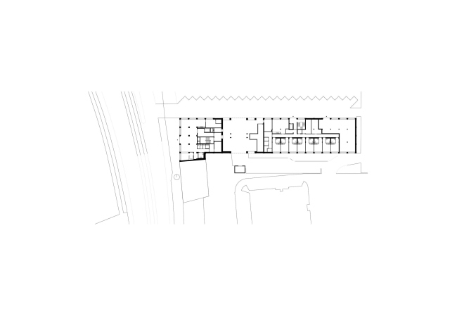
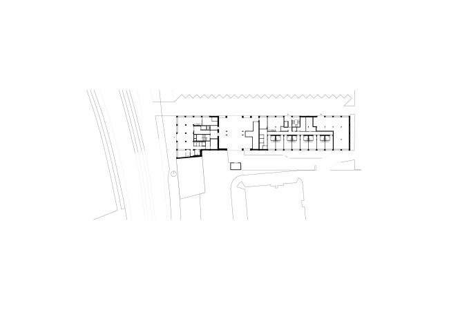
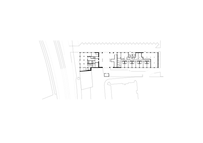
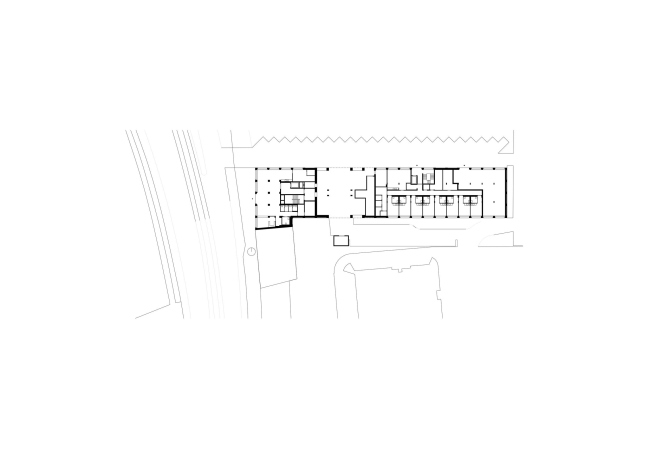
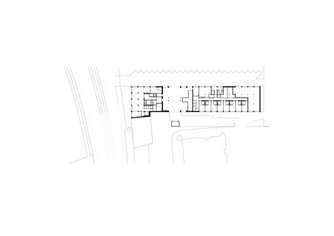
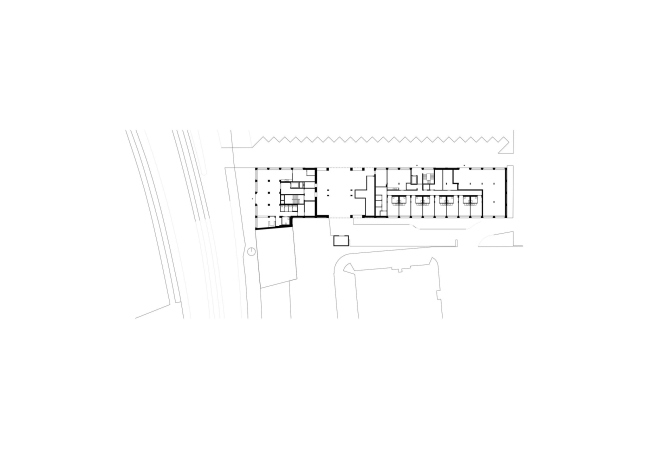
241 квартиры на одного или двух студентов включают и безбарьерные жилища, помещенные на первом этаже со стороны двора.
 
Студенческое общежитие HAINBASE
Студенческое общежитие HAINBASE
Фото © Stefan Müller

Клинкер на фасаде – дань уважения северогерманской и конкретно ганноверской традиции кирпичной архитектуры, в частности – отсылка к Маринебау, заводскому корпусу 1927 года, знаковому для города сооружению.
Студенческое общежитие HAINBASE. Брандмауэр
Студенческое общежитие HAINBASE. Брандмауэр
Фото © Stefan Müller
Студенческое общежитие HAINBASE
Студенческое общежитие HAINBASE
Фото © Stefan Müller
Студенческое общежитие HAINBASE. Терраса на крыше
Студенческое общежитие HAINBASE. Терраса на крыше
Фото © Stefan Müller
Студенческое общежитие HAINBASE
Студенческое общежитие HAINBASE
Фото © Stefan Müller
Студенческое общежитие HAINBASE
Студенческое общежитие HAINBASE
© Max Dudler
Студенческое общежитие HAINBASE
Студенческое общежитие HAINBASE
© Max Dudler
Студенческое общежитие HAINBASE
Студенческое общежитие HAINBASE
© Max Dudler
Студенческое общежитие HAINBASE
Студенческое общежитие HAINBASE
© Max Dudler
Студенческое общежитие HAINBASE
Студенческое общежитие HAINBASE
© Max Dudler
Студенческое общежитие HAINBASE
Студенческое общежитие HAINBASE
© Max Dudler