Размещено на портале Архи.ру (www.archi.ru)

01.11.2021

Дух общинности

Нина Фролова
Объект:
Церковь Санкт-Фиделис – реконструкция
Адрес:
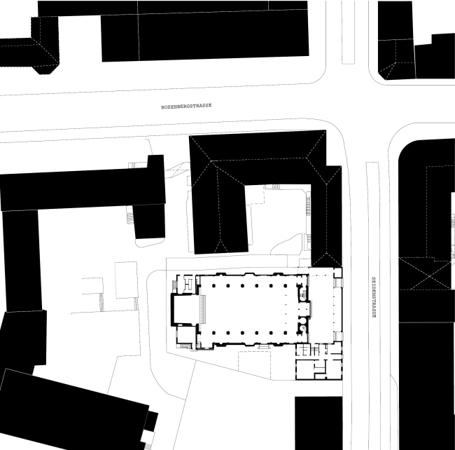
Германия, None, Штутгарт.
Мастерская:
schleicher.ragaller architekten

Реконструкция католической церкви Санкт-Фиделис в Штутгарте по проекту schleicher.ragaller architekten.

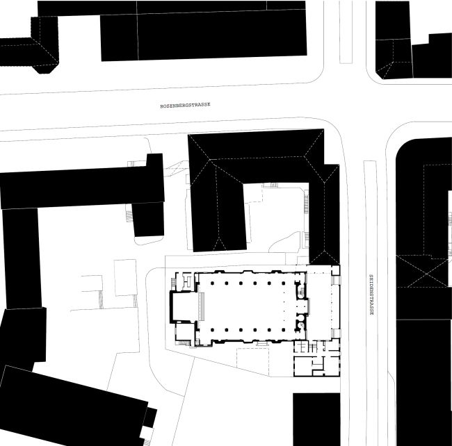
Церковь Санкт-Фиделис, Святого Фиделиса, была построена сравнительно недавно, в 1924–1925, по проекту Клеменса Хуммеля – в подражание итальянским романским базиликам, но и под влиянием набирающего силу модернизма. В войну от нее остались лишь стены, но вскоре она была восстановлена. В 1964 выдающийся специалист по храмовой архитектуре Рудольф Шварц и его жена и соавтор Мария изменили интерьер согласно решениям Второго Ватиканского собора – в том числе выдвинули алтарь вперед, ближе к верующим. Тогда же в церкви появились витражи и изображения Крестного пути авторства Георга Майстермана.
 

Церковь Санкт-Фиделис – реконструкция
Церковь Санкт-Фиделис – реконструкция
Фото © Zooey Braun www.zooeybraun.de

В наши дни храм пережил очередное обновление – в соответствии с меняющимся обществом. Архитекторы schleicher.ragaller сделали его новый интерьер более ясным, светлым, открытым – в том числе для тех, кто пока не принадлежит к пастве, но ищет духовной пищи. Было учтено и частое использование церкви для проведения концертов.
 
Церковь Санкт-Фиделис – реконструкция
Церковь Санкт-Фиделис – реконструкция
Фото © Zooey Braun www.zooeybraun.de

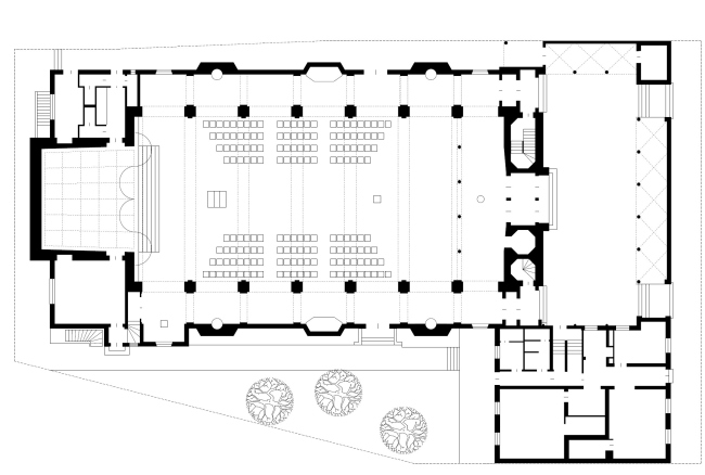
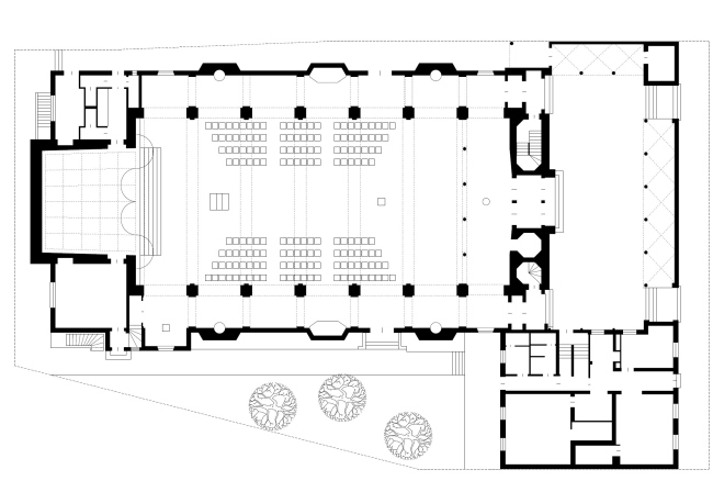
Широко использовано светлое дерево – как в напоминающих о кессонах перекрытиях, так и в лаконичных сидениях для верующих. В эту колористическую тему вписан и травертин пола.
 
Церковь Санкт-Фиделис – реконструкция
Церковь Санкт-Фиделис – реконструкция
Фото © Zooey Braun www.zooeybraun.de

Мария Шварц скончалась в 2018, однако успела проконсультировать авторов проекта, обратив их внимание на тему общинности. Поэтому ряды сидений для верующих поставлены вдоль главного нефа, а не поперек, как обычно принято: в результате, прихожане располагаются лицом друг к другу.
 
Церковь Санкт-Фиделис – реконструкция
Церковь Санкт-Фиделис – реконструкция
Фото © Zooey Braun www.zooeybraun.de

Архитекторы учли, что Санкт-Фиделис стоит на оживленной улице и потому особенно важно создать внутри пространство тишины, где человек мог бы забыть о повседневной суете. Дополнительное уединение дает деревянное пространство в хоре церкви, освободившемся после перемещения алтаря в 1964: оно может быть полностью закрыто от внешнего мира, но его двери можно и распахнуть в пространство храма.
 
Церковь Санкт-Фиделис – реконструкция Фото © Zooey Braun
<noindex><a href=http://www.zooeybraun.de target=www.zooeybraun.de" title="Церковь Санкт-Фиделис – реконструкция Фото © Zooey Braun www.zooeybraun.de">
Церковь Санкт-Фиделис – реконструкция
Фото © Zooey Braun www.zooeybraun.de
Церковь Санкт-Фиделис – реконструкция Фото © Zooey Braun
<noindex><a href=http://www.zooeybraun.de target=www.zooeybraun.de" title="Церковь Санкт-Фиделис – реконструкция Фото © Zooey Braun www.zooeybraun.de">
Церковь Санкт-Фиделис – реконструкция
Фото © Zooey Braun www.zooeybraun.de
Церковь Санкт-Фиделис – реконструкция Фото © Zooey Braun
<noindex><a href=http://www.zooeybraun.de target=www.zooeybraun.de" title="Церковь Санкт-Фиделис – реконструкция Фото © Zooey Braun www.zooeybraun.de">
Церковь Санкт-Фиделис – реконструкция
Фото © Zooey Braun www.zooeybraun.de
Церковь Санкт-Фиделис – реконструкция Фото © Zooey Braun
<noindex><a href=http://www.zooeybraun.de target=www.zooeybraun.de" title="Церковь Санкт-Фиделис – реконструкция Фото © Zooey Braun www.zooeybraun.de">
Церковь Санкт-Фиделис – реконструкция
Фото © Zooey Braun www.zooeybraun.de

Алтарь, проповедническую кафедру и литургические предметы выполнены из цельного блока известняка художником Мартином Бруно Шмидом.
Церковь Санкт-Фиделис – реконструкция
Церковь Санкт-Фиделис – реконструкция
Фото © Zooey Braun www.zooeybraun.de
Церковь Санкт-Фиделис – реконструкция Фото © Zooey Braun
<a href=http://www.zooeybraun.de>www.zooeybraun.de</a>
Церковь Санкт-Фиделис – реконструкция
Фото © Zooey Braun www.zooeybraun.de
Церковь Санкт-Фиделис – реконструкция Фото © Zooey Braun
<a href=http://www.zooeybraun.de>www.zooeybraun.de</a>
Церковь Санкт-Фиделис – реконструкция
Фото © Zooey Braun www.zooeybraun.de
Церковь Санкт-Фиделис – реконструкция Фото © Zooey Braun
<a href=http://www.zooeybraun.de>www.zooeybraun.de</a>
Церковь Санкт-Фиделис – реконструкция
Фото © Zooey Braun www.zooeybraun.de
Церковь Санкт-Фиделис – реконструкция Фото © Zooey Braun
<a href=http://www.zooeybraun.de>www.zooeybraun.de</a>
Церковь Санкт-Фиделис – реконструкция
Фото © Zooey Braun www.zooeybraun.de
Церковь Санкт-Фиделис – реконструкция
Церковь Санкт-Фиделис – реконструкция
Фото © Zooey Braun www.zooeybraun.de
Церковь Санкт-Фиделис – реконструкция
Церковь Санкт-Фиделис – реконструкция
Фото © Zooey Braun www.zooeybraun.de
Церковь Санкт-Фиделис – реконструкция
Церковь Санкт-Фиделис – реконструкция
Фото © Zooey Braun www.zooeybraun.de
Церковь Санкт-Фиделис – реконструкция
Церковь Санкт-Фиделис – реконструкция
Фото © Zooey Braun www.zooeybraun.de
Церковь Санкт-Фиделис – реконструкция
Церковь Санкт-Фиделис – реконструкция
Фото © Zooey Braun www.zooeybraun.de
Церковь Санкт-Фиделис – реконструкция
Церковь Санкт-Фиделис – реконструкция
Фото © Zooey Braun www.zooeybraun.de
Церковь Санкт-Фиделис – реконструкция
Церковь Санкт-Фиделис – реконструкция
Фото © Zooey Braun www.zooeybraun.de
Церковь Санкт-Фиделис – реконструкция
Церковь Санкт-Фиделис – реконструкция
Фото © Zooey Braun www.zooeybraun.de
Церковь Санкт-Фиделис – реконструкция Фото © Zooey Braun
<a href=http://www.zooeybraun.de>www.zooeybraun.de</a>
Церковь Санкт-Фиделис – реконструкция
Фото © Zooey Braun www.zooeybraun.de
Церковь Санкт-Фиделис – реконструкция Фото © Zooey Braun
<a href=http://www.zooeybraun.de>www.zooeybraun.de</a>
Церковь Санкт-Фиделис – реконструкция
Фото © Zooey Braun www.zooeybraun.de
Церковь Санкт-Фиделис – реконструкция Фото © Zooey Braun
<a href=http://www.zooeybraun.de>www.zooeybraun.de</a>
Церковь Санкт-Фиделис – реконструкция
Фото © Zooey Braun www.zooeybraun.de
Церковь Санкт-Фиделис – реконструкция
Церковь Санкт-Фиделис – реконструкция
Фото © Zooey Braun www.zooeybraun.de
Церковь Санкт-Фиделис – реконструкция
Церковь Санкт-Фиделис – реконструкция
Фото © Zooey Braun www.zooeybraun.de
Церковь Санкт-Фиделис – реконструкция
Церковь Санкт-Фиделис – реконструкция
Фото © Zooey Braun www.zooeybraun.de
Церковь Санкт-Фиделис – реконструкция
Церковь Санкт-Фиделис – реконструкция
Фото © Zooey Braun www.zooeybraun.de
Церковь Санкт-Фиделис – реконструкция
Церковь Санкт-Фиделис – реконструкция
Фото © Zooey Braun www.zooeybraun.de
Церковь Санкт-Фиделис – реконструкция
Церковь Санкт-Фиделис – реконструкция
© schleicher.ragaller architekten
Церковь Санкт-Фиделис – реконструкция
Церковь Санкт-Фиделис – реконструкция
© schleicher.ragaller architekten
Церковь Санкт-Фиделис – реконструкция
Церковь Санкт-Фиделис – реконструкция
© schleicher.ragaller architekten
Церковь Санкт-Фиделис – реконструкция
Церковь Санкт-Фиделис – реконструкция
© schleicher.ragaller architekten
Церковь Санкт-Фиделис – реконструкция
Церковь Санкт-Фиделис – реконструкция
© schleicher.ragaller architekten