Размещено на портале Архи.ру (www.archi.ru)

26.10.2021

Театральное производство

Нина Фролова
Объект:
Новое здание театра Comédie de Genève
Адрес:
Швейцария, None, Женева. Esplanade Alice Bailly 1 Gare des Eaux-Vives
Мастерская:
FRES

Новое здание женевского театра Comédie de Genève по проекту FRES architectes.

Драматический театр Comédie de Genève переехал из исторического здания в не самое очевидное место: в квартал вокзала О-Вив, недавно полностью перестроенного в подземный. Этот островок новейших сооружений окружен парком Ла-Гранж и послевоенной жилой застройкой, чуть дальше – исторические доходные дома и зеленый район вилл.
 

Новое здание театра Comédie de Genève
Новое здание театра Comédie de Genève
Фото © yves-andre.ch

Это разнообразное окружение давало достаточно свободы авторам проекта, и они остановились на схеме «театра-фабрики», где спектакли «производятся». Такая идея поддержана функциональной программой, куда входит большая мастерская по изготовлению декораций и костюмов (2400 м2).
 
Новое здание театра Comédie de Genève
Новое здание театра Comédie de Genève
Фото © yves-andre.ch




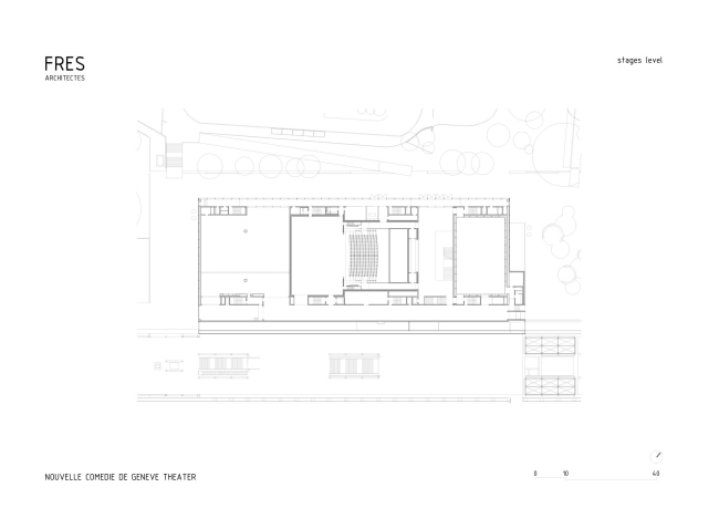
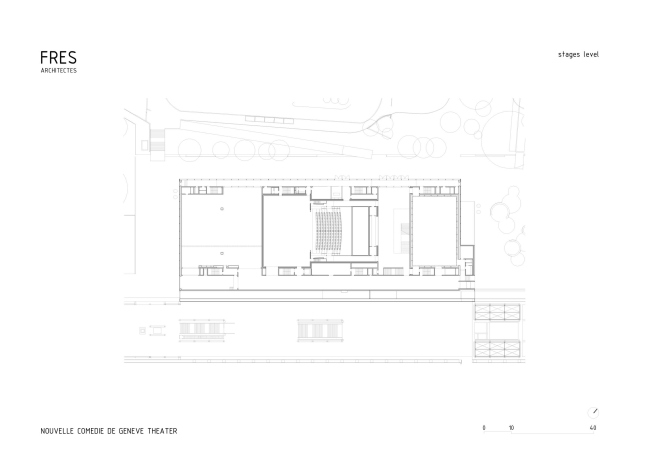
Поэтому Comédie de Genève совсем не похож на привычный театр ни формой, ни материалами. Вместо цельного объема, где главную роль играет башнеобразное пространство сцены, архитекторы предложили зубчатую форму, где наравне выступают – в прямом и переносном смысле – два зрительных зала и декорационная мастерская.
 
Новое здание театра Comédie de Genève
Новое здание театра Comédie de Genève
Фото © yves-andre.ch

Нейтральный в дневные часы фасад из перфорированных панелей и стекла в сумерках превращается в медиа-спектакль из ярких цветов.
 
Новое здание театра Comédie de Genève
Новое здание театра Comédie de Genève
Фото © yves-andre.ch

В интерьере широко использован архитектурный бетон, фойе просторны и вмещают, помимо прочего, кафе-ресторан, откуда посетители могут хорошо видеть мастерскую.
 
Новое здание театра Comédie de Genève
Новое здание театра Comédie de Genève
Фото © yves-andre.ch

Главный зал на 500 зрителей получил традиционную форму-коробку; о роскошных театрах прошлого напоминает трехмерная обшивка стен из золотистой сетки. Второй, модульный зал типа black box (250 мест) облицован панелями из фибробетона, обеспечивающими оптимальную акустику. Также в программе – два репетиционных зала и административные помещения. Бюджет строительства – 65 млн швейцарских франков, общий бюджет проекта – 98 млн. Общая площадь здания – 16 000 м2.
Новое здание театра Comédie de Genève
Новое здание театра Comédie de Genève
Фото © yves-andre.ch
Новое здание театра Comédie de Genève Фото © yves-andre.ch
Новое здание театра Comédie de Genève
Фото © yves-andre.ch
Новое здание театра Comédie de Genève Фото © yves-andre.ch
Новое здание театра Comédie de Genève
Фото © yves-andre.ch
Новое здание театра Comédie de Genève Фото © yves-andre.ch
Новое здание театра Comédie de Genève
Фото © yves-andre.ch
Новое здание театра Comédie de Genève Фото © yves-andre.ch
Новое здание театра Comédie de Genève
Фото © yves-andre.ch
Новое здание театра Comédie de Genève Фото © yves-andre.ch
Новое здание театра Comédie de Genève
Фото © yves-andre.ch
Новое здание театра Comédie de Genève
Новое здание театра Comédie de Genève
Фото © yves-andre.ch
Новое здание театра Comédie de Genève Фото © yves-andre.ch
Новое здание театра Comédie de Genève
Фото © yves-andre.ch
Новое здание театра Comédie de Genève Фото © yves-andre.ch
Новое здание театра Comédie de Genève
Фото © yves-andre.ch
Новое здание театра Comédie de Genève Фото © yves-andre.ch
Новое здание театра Comédie de Genève
Фото © yves-andre.ch
Новое здание театра Comédie de Genève Фото © yves-andre.ch
Новое здание театра Comédie de Genève
Фото © yves-andre.ch
Новое здание театра Comédie de Genève Фото © yves-andre.ch
Новое здание театра Comédie de Genève
Фото © yves-andre.ch
Новое здание театра Comédie de Genève Фото © yves-andre.ch
Новое здание театра Comédie de Genève
Фото © yves-andre.ch
Новое здание театра Comédie de Genève
Новое здание театра Comédie de Genève
Фото © yves-andre.ch
Новое здание театра Comédie de Genève
Новое здание театра Comédie de Genève
Фото © yves-andre.ch
Новое здание театра Comédie de Genève
Новое здание театра Comédie de Genève
Фото © yves-andre.ch
Новое здание театра Comédie de Genève
Новое здание театра Comédie de Genève
Фото © yves-andre.ch
Новое здание театра Comédie de Genève
Новое здание театра Comédie de Genève
Фото © yves-andre.ch
Новое здание театра Comédie de Genève
Новое здание театра Comédie de Genève
Фото © yves-andre.ch
Новое здание театра Comédie de Genève
Новое здание театра Comédie de Genève
Фото © yves-andre.ch
Новое здание театра Comédie de Genève
Новое здание театра Comédie de Genève
Фото © yves-andre.ch
Новое здание театра Comédie de Genève
Новое здание театра Comédie de Genève
Фото © yves-andre.ch
Новое здание театра Comédie de Genève
Новое здание театра Comédie de Genève
Фото © yves-andre.ch
Новое здание театра Comédie de Genève
Новое здание театра Comédie de Genève
Фото © yves-andre.ch
Новое здание театра Comédie de Genève
Новое здание театра Comédie de Genève
Фото © yves-andre.ch
Новое здание театра Comédie de Genève
Новое здание театра Comédie de Genève
Фото © yves-andre.ch
Новое здание театра Comédie de Genève
Новое здание театра Comédie de Genève
Фото © yves-andre.ch
Новое здание театра Comédie de Genève
Новое здание театра Comédie de Genève
© FRES architectes
Новое здание театра Comédie de Genève
Новое здание театра Comédie de Genève
© FRES architectes
Новое здание театра Comédie de Genève
Новое здание театра Comédie de Genève
© FRES architectes
Новое здание театра Comédie de Genève
Новое здание театра Comédie de Genève
© FRES architectes
Новое здание театра Comédie de Genève
Новое здание театра Comédie de Genève
© FRES architectes
Новое здание театра Comédie de Genève
Новое здание театра Comédie de Genève
© FRES architectes
Новое здание театра Comédie de Genève
Новое здание театра Comédie de Genève
© FRES architectes
Новое здание театра Comédie de Genève
Новое здание театра Comédie de Genève
© FRES architectes
Новое здание театра Comédie de Genève
Новое здание театра Comédie de Genève
© FRES architectes
Новое здание театра Comédie de Genève
Новое здание театра Comédie de Genève
© FRES architectes
Новое здание театра Comédie de Genève
Новое здание театра Comédie de Genève
© FRES architectes
Новое здание театра Comédie de Genève
Новое здание театра Comédie de Genève
© FRES architectes
Новое здание театра Comédie de Genève
Новое здание театра Comédie de Genève
© FRES architectes
Новое здание театра Comédie de Genève
Новое здание театра Comédie de Genève
© FRES architectes
Новое здание театра Comédie de Genève
Новое здание театра Comédie de Genève
© FRES architectes
Новое здание театра Comédie de Genève
Новое здание театра Comédie de Genève
© FRES architectes
Новое здание театра Comédie de Genève
Новое здание театра Comédie de Genève
© FRES architectes
Новое здание театра Comédie de Genève
Новое здание театра Comédie de Genève
© FRES architectes