Размещено на портале Архи.ру (www.archi.ru)

25.10.2021

Минус дает плюс

Нина Фролова
Объект:
Культурный центр «Сара»
Адрес:
Швеция, None, Шеллефтео.
Мастерская:
White

«Углеродно негативный» культурный центр в Шеллефтео на севере Швеции построен из местного дерева, включая 20-этажный гостиничный корпус. Авторы проекта – бюро White.

Архитекторы White возвели в городе Шеллефтео в Шведской Лапландии, чуть южнее полярного круга одно из самых высоких на текущий момент деревянных зданий в мире. Но их интересовали не столько рекорды (75 м), сколько эксперименты с разными типами материала, модульным строительством и функциональным назначением сооружений из дерева. Однако главная цель вновь была другой: максимально продвинуться по пути углеродно нейтрального или даже негативного строительства, потому что именно на эту сферу приходится львиная доля выбросов CO2 в атмосферу; это движение было важным сделать «образцовым», пригодным к распространению и повторению в разных условиях и масштабах.
 

Культурный центр «Сара»
Культурный центр «Сара»
Фото © Patrick Degerman

«Углеродно негативным» культурный центр «Сара» может называться потому, что использованная в нем древесина (исключительно местная, заготовленная на лесопилке в 50 км от стройплощадки) успела за время своего существования в виде деревьев захватить из атмосферы почти 10 000 тонн углерода. Использованные при строительстве деревья не доживут до дряхлости и не вернут этот CO2 обратно в окружающую среду при гниении, поэтому строительство из дерева по умолчанию является экологичным – не считая того, что это возобновляемый ресурс. Срок службы нового здания – порядка 100 лет, затем почти все его части можно будет переработать или сразу использовать вторично.
 
Культурный центр «Сара»
Культурный центр «Сара»
Фото © Åke E:son Lindman

«Положительный» углеродный след проекта – 5631 тонн (за первые 50 лет существования), туда входит бетон фундамента, стекло фасадов, стальные детали, заготовка и транспортировка древесины, собственно строительство, электричество сверх полученного с помощью солнечных батарей на кровле (эти батареи дают около тысячи тонн сэкономленного углерода в баланс проекта).
 
Культурный центр «Сара»
Культурный центр «Сара»
Фото © Jonas Westling

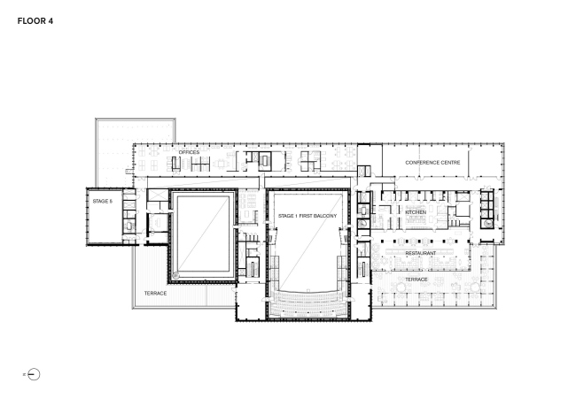
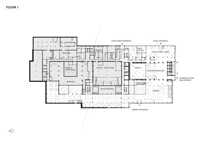
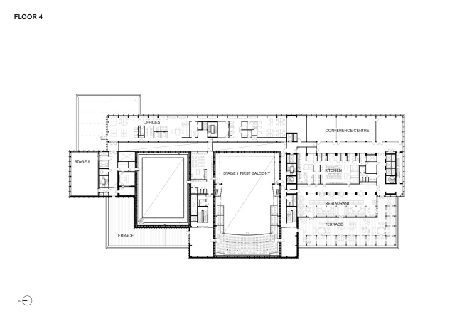
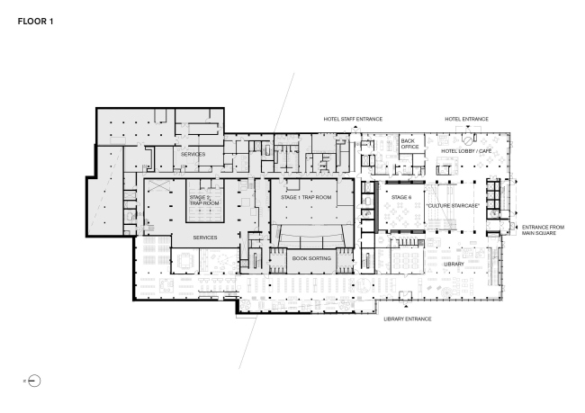
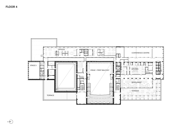
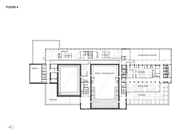
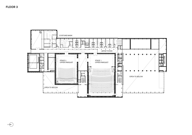
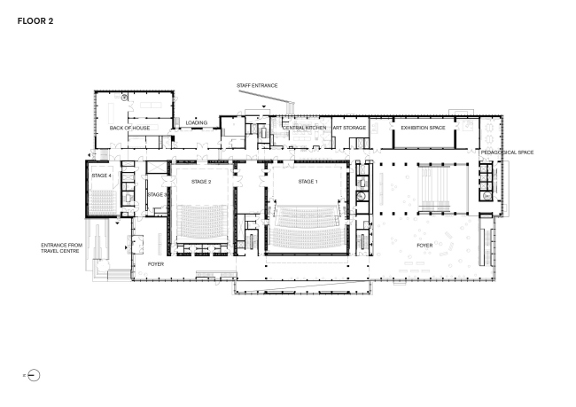
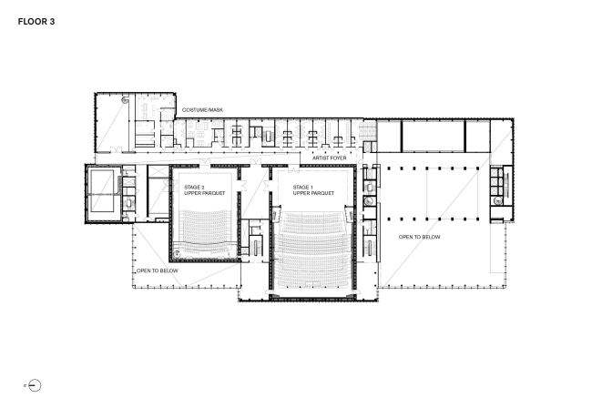
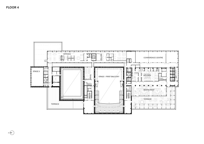
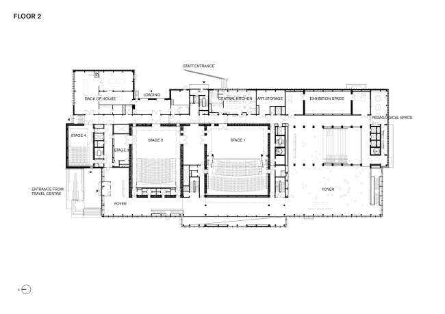
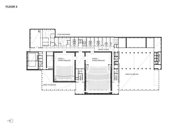
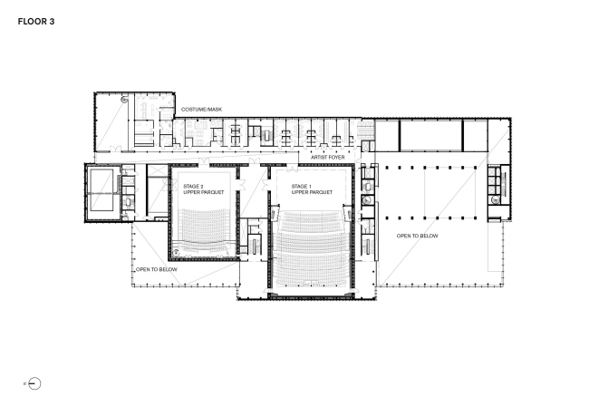
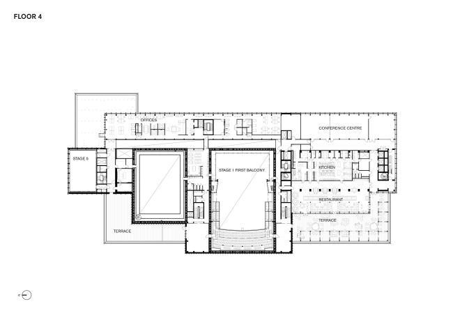
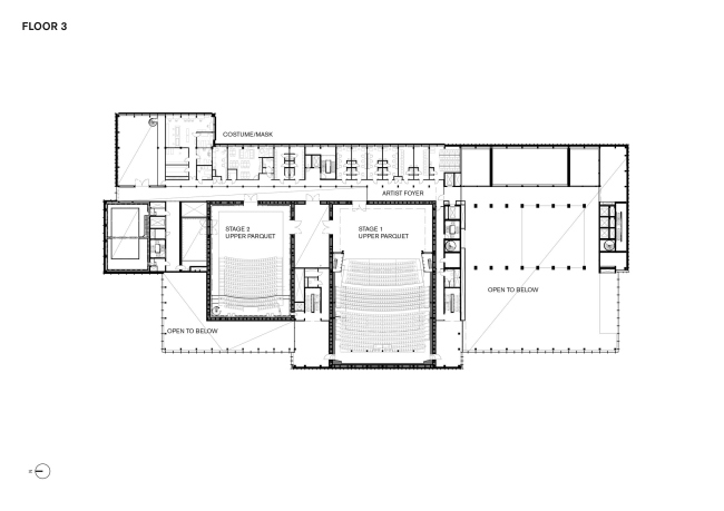
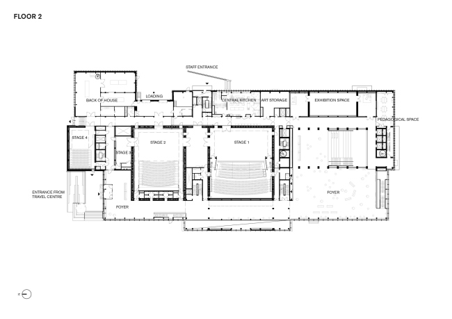
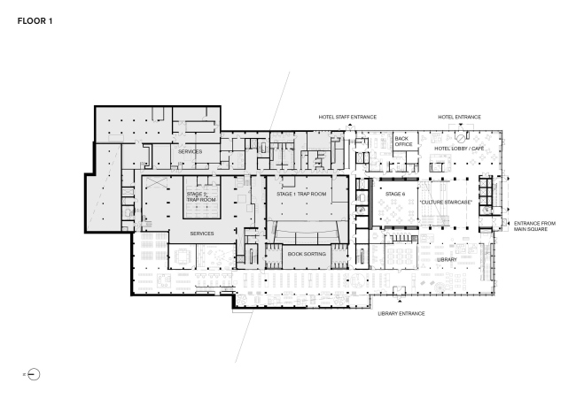
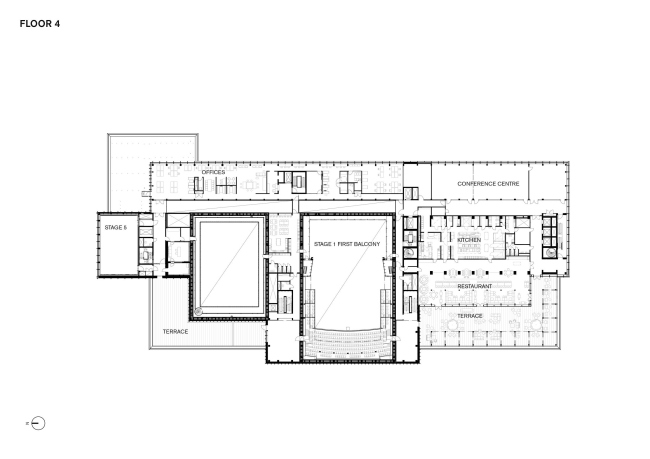
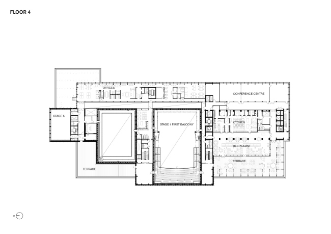
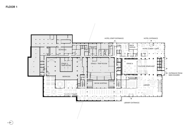
Башня гостиницы выстроена из модулей, изготовленных из перекрестно-клееной древесины (CLT), лестнично-лифтовые узлы тоже полностью сделаны из CLT. Балки и колонны в невысоком культурном центре выполнены из клееной древесины (GLT), циркуляционные узлы и стены жесткости (shear walls) – из CLT. Продуманное конструктивное решение сделало ненужным бетонный каркас, что не только позволило уменьшить выброс углерода, но и ускорило строительство. Перекрытия в обширных фойе центра сделаны гибридными, с использованием стали.
 
Культурный центр «Сара»
Культурный центр «Сара»
Фото © Åke E:son Lindman

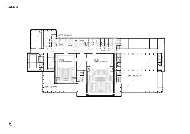
В культурном центре общественные пространства расположены по периметру, а зрительные залы – посередине. Обильное использование двойного остекления снаружи позволяет привлечь внимание прохожих – в том числе тех, кто никогда еще здесь не был. По тому же принципу стекло на фасаде гостиницы демонстрирует ее конструкцию, то есть помогает «рекламировать» постройки из дерева.
 
Культурный центр «Сара»
Культурный центр «Сара»
Фото © Jonas Westling

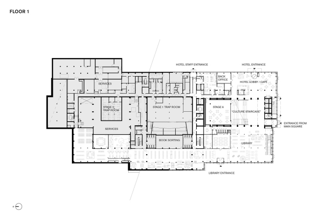
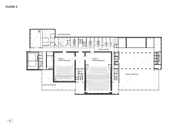
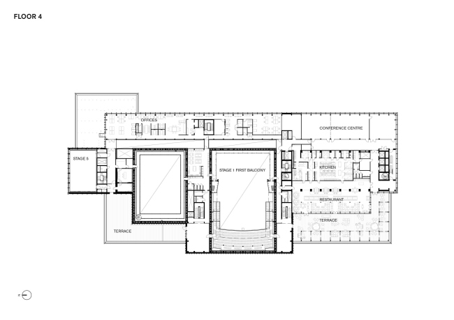
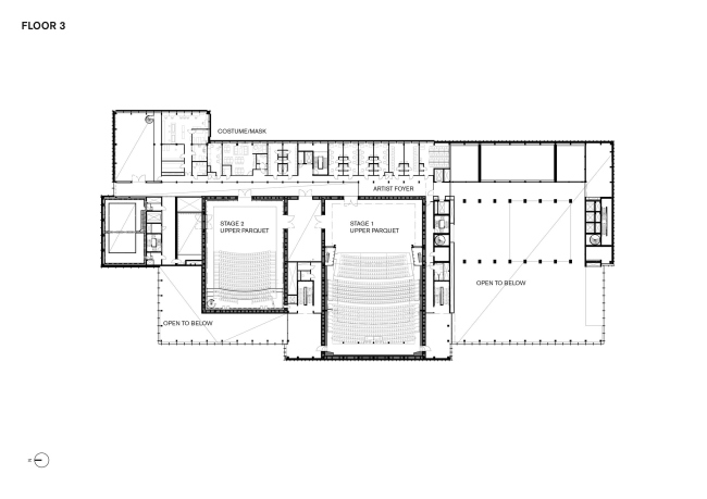
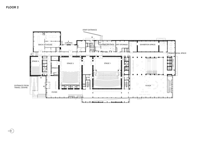
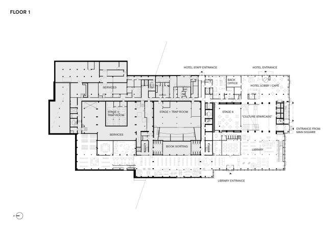
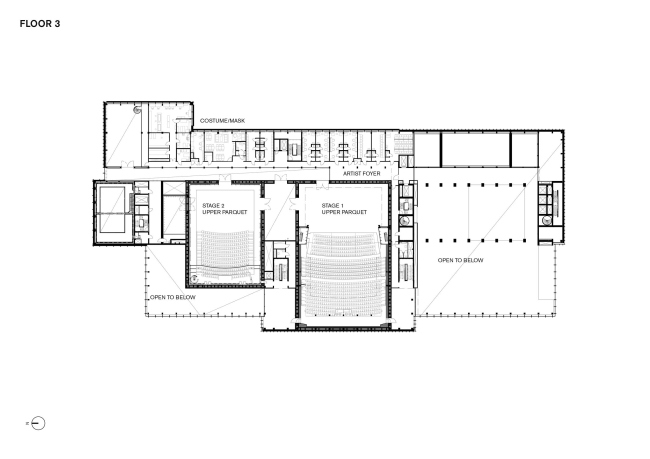
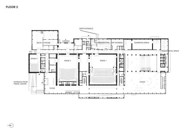
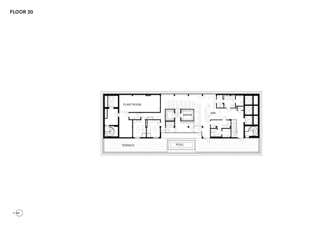
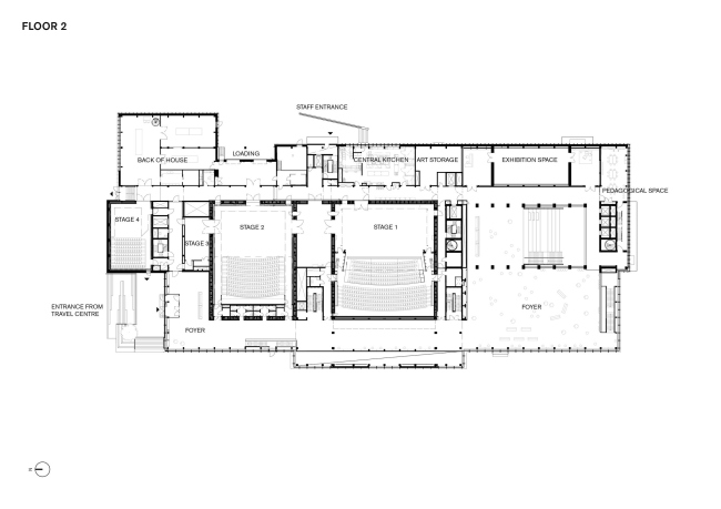
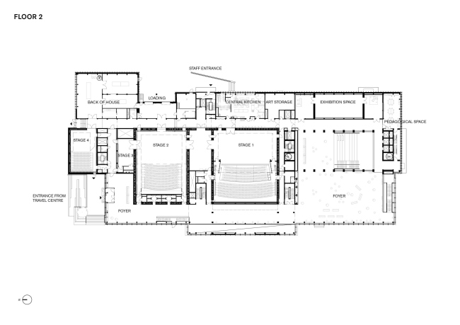
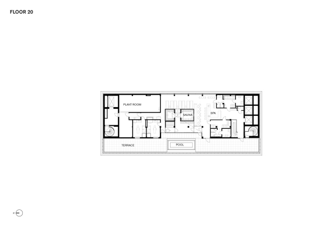
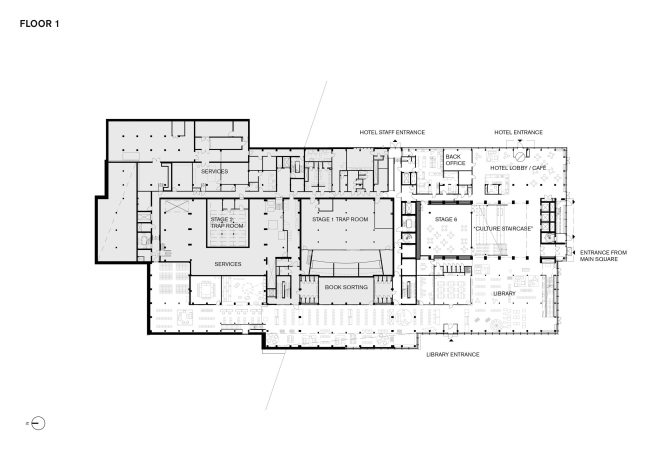
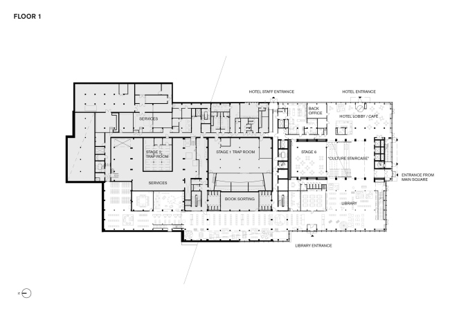
Функциональная программа (почти 28 тыс. м2) включает в себя художественную галерею Шеллефтео с ее филиалом – музеем Анны Нордландер, Театр провинции Вестерботтен, городскую библиотеку и гостиницу The Wood Hotel с рестораном, спа и конференц-центром.
Культурный центр «Сара»
Культурный центр «Сара»
Фото © Jonas Westling
Культурный центр «Сара» Фото © Åke E:son Lindman
Культурный центр «Сара»
Фото © Åke E:son Lindman
Культурный центр «Сара» Фото © Jonas Westling
Культурный центр «Сара»
Фото © Jonas Westling
Культурный центр «Сара» Фото © Jonas Westling
Культурный центр «Сара»
Фото © Jonas Westling
Культурный центр «Сара» Фото © Sven Burman / Visit Skellefteå
Культурный центр «Сара»
Фото © Sven Burman / Visit Skellefteå
Культурный центр «Сара»
Культурный центр «Сара»
Фото © Åke E:son Lindman
Культурный центр «Сара»
Культурный центр «Сара»
Фото © Åke E:son Lindman
Культурный центр «Сара»
Культурный центр «Сара»
Фото © Åke E:son Lindman
Культурный центр «Сара»
Культурный центр «Сара»
Фото © Åke E:son Lindman
Культурный центр «Сара»
Культурный центр «Сара»
Фото © Patrick Degerman
Культурный центр «Сара»
Культурный центр «Сара»
Фото © Åke E:son Lindman
Культурный центр «Сара»
Культурный центр «Сара»
Фото © Åke E:son Lindman
Культурный центр «Сара» Фото © Åke E:son Lindman
Культурный центр «Сара»
Фото © Åke E:son Lindman
Культурный центр «Сара» Фото © Åke E:son Lindman
Культурный центр «Сара»
Фото © Åke E:son Lindman
Культурный центр «Сара» Фото © Jonas Westling
Культурный центр «Сара»
Фото © Jonas Westling
Культурный центр «Сара» Фото © Patrick Degerman
Культурный центр «Сара»
Фото © Patrick Degerman
Культурный центр «Сара» Фото © Åke E:son Lindman
Культурный центр «Сара»
Фото © Åke E:son Lindman
Культурный центр «Сара»
Культурный центр «Сара»
Фото © Åke E:son Lindman
Культурный центр «Сара»
Культурный центр «Сара»
Фото © Åke E:son Lindman
Культурный центр «Сара»
Культурный центр «Сара»
Фото © Åke E:son Lindman
Культурный центр «Сара»
Культурный центр «Сара»
Фото © Åke E:son Lindman
Культурный центр «Сара»
Культурный центр «Сара»
Фото © Patrick Degerman
Культурный центр «Сара» © White
Культурный центр «Сара»
© White
Культурный центр «Сара» © White
Культурный центр «Сара»
© White
Культурный центр «Сара» © White
Культурный центр «Сара»
© White
Культурный центр «Сара» © White
Культурный центр «Сара»
© White
Культурный центр «Сара»
Культурный центр «Сара»
Фото © White
Культурный центр «Сара»
Культурный центр «Сара»
© White
Культурный центр «Сара»
Культурный центр «Сара»
© White
Культурный центр «Сара»
Культурный центр «Сара»
© White
Культурный центр «Сара»
Культурный центр «Сара»
© White
Культурный центр «Сара»
Культурный центр «Сара»
© White
Культурный центр «Сара»
Культурный центр «Сара»
© White
Культурный центр «Сара»
Культурный центр «Сара»
© White
Культурный центр «Сара»
Культурный центр «Сара»
© White
Культурный центр «Сара»
Культурный центр «Сара»
© White
Культурный центр «Сара»
Культурный центр «Сара»
© White
Культурный центр «Сара»
Культурный центр «Сара»
© White
Культурный центр «Сара»
Культурный центр «Сара»
© White