Размещено на портале Архи.ру (www.archi.ru)

11.10.2021

Школа особого режима

Нина Фролова
Объект:
Британская школа в Амстердаме
Адрес:
Нидерланды, None, Амстердам. Havenstraat 6, Amsterdam
Мастерская:
Atelier PRO

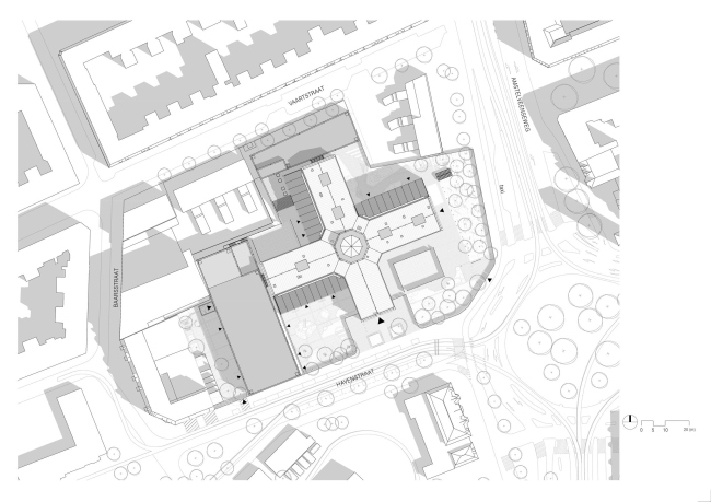
Престижная Амстердамская британская школа заняла бывший комплекс тюрьмы конца XIX века. Авторы проекта реконструкции – Atelier PRO.

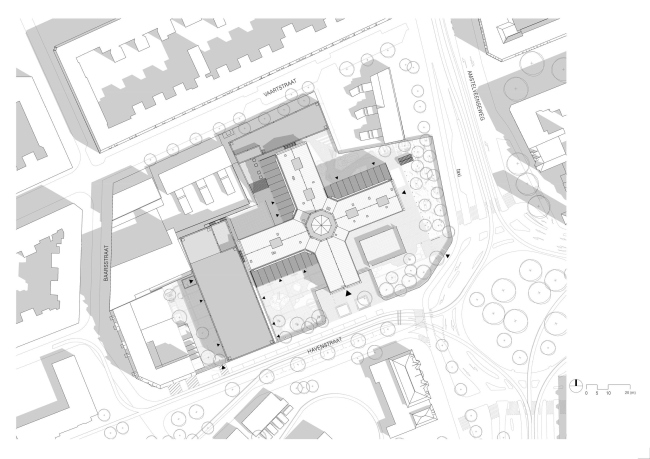
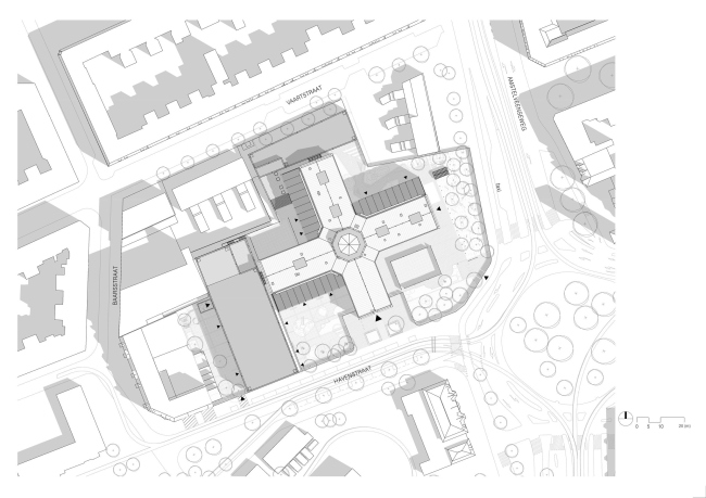
Существующая с 1978 Амстердамская британская школа обучает по английским стандартам детей с трех до восемнадцати лет. Общее число учеников – 900, и еще недавно они были рассредоточены по трем зданиям в разных частях города. Но идея объединения витала в воздухе, и в 2016 руководство этого учреждения заказало план превращения исторической тюрьмы (1888–1891) в школьное здание, где бы поместились все учащиеся и преподаватели. Бюджет проекта составил 23 млн евро.
 

Британская школа в Амстердаме
Британская школа в Амстердаме
Фото © Eva Bloem

Архитекторы Atelier PRO работали совместно с реставраторами Van Hoogevest Architecten и ландшафтными архитекторами Buro Sant en Co: роль последних была особенно важной, так как для школы требовались обширные и удобные игровые и рекреационные пространства под открытым небом.
 
Британская школа в Амстердаме
Британская школа в Амстердаме
Фото © Eva Bloem

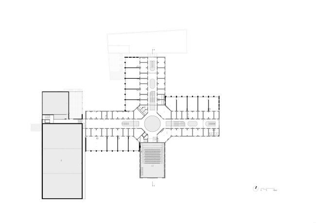
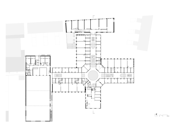
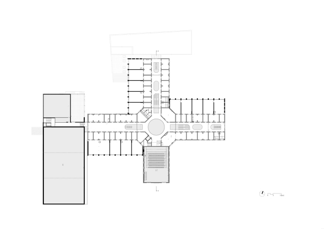
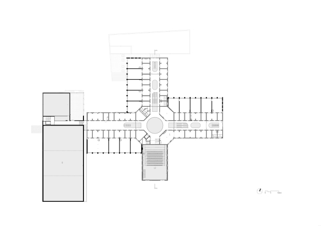
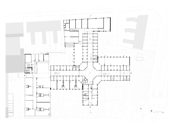
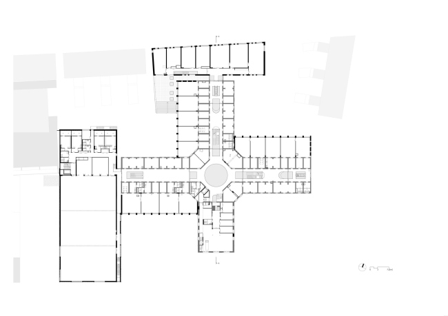
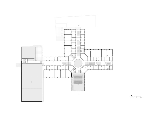
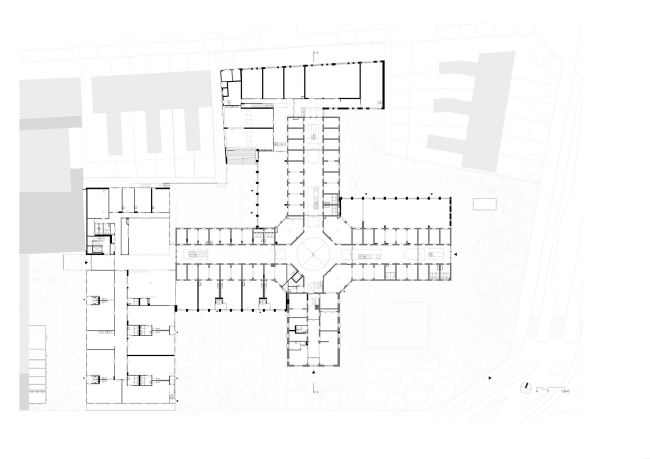
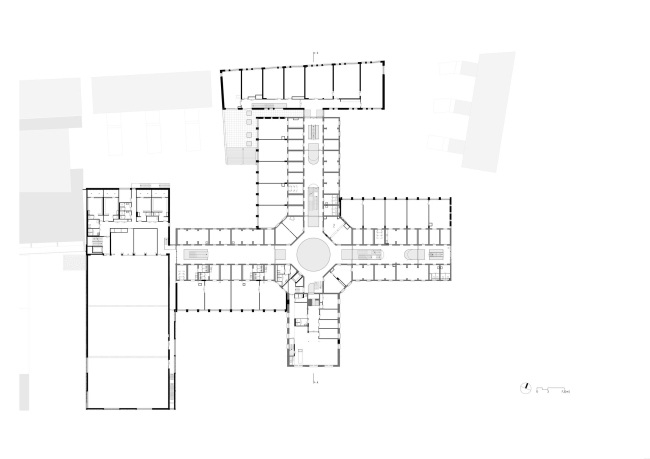
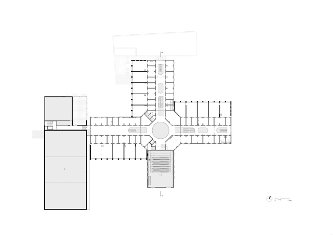
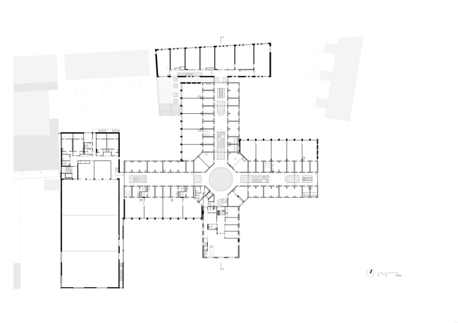
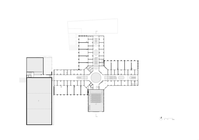
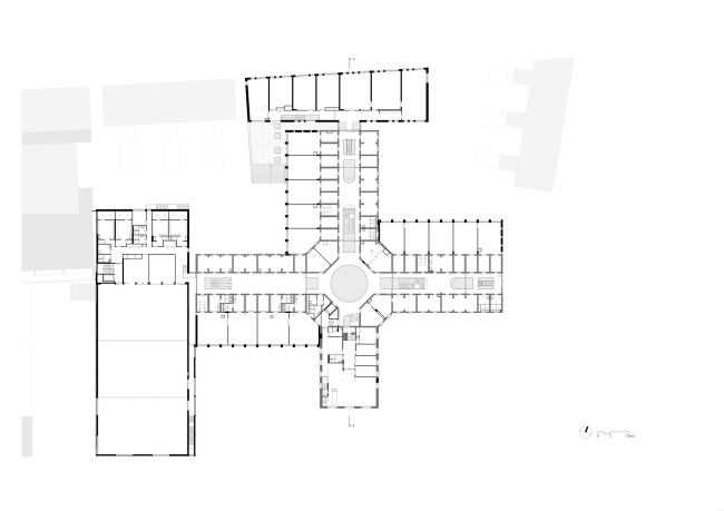
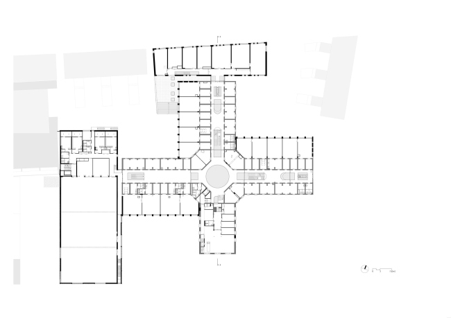
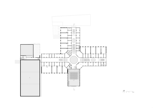
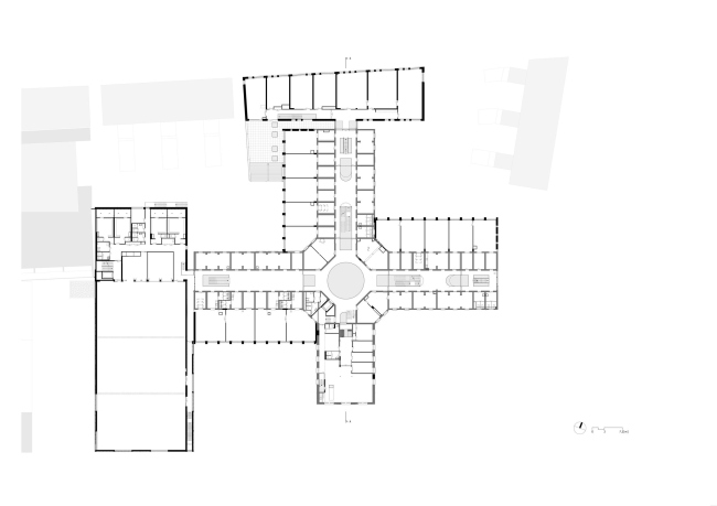
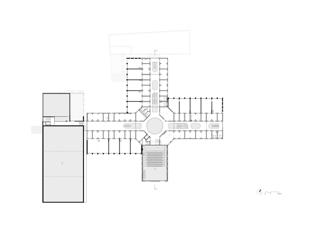
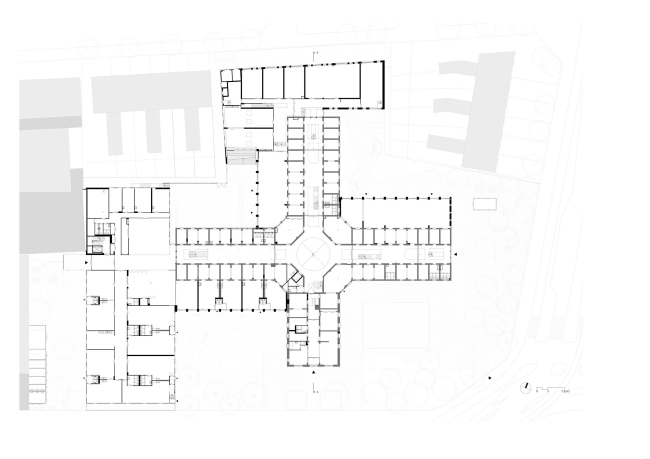
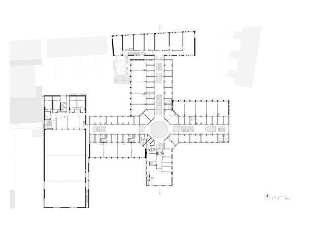
Характерный крестообразный план тюрьмы подходил для трех блоков, на которых делит учеников Британская школа: ранняя (3–6 лет), младшая (6–11) и старшая (11–18) школы. Четвертый рукав креста занят общими помещениями, включая актовый зал.




 
Британская школа в Амстердаме
Британская школа в Амстердаме
Фото © Eva Bloem

К каждому из «учебных» корпусов пристроена новая часть с более свободной планировкой, хотя и историческая схема с галереями и камерами оказалась – после определенной перестройки – вполне подходящей для нужд среднего образования.
 
Британская школа в Амстердаме
Британская школа в Амстердаме
Фото © Eva Bloem

Новые части выполнены из кирпича, как и старые: подчеркнутая вертикальной и ажурной кладкой материальность фасадов напоминает о богатых традициях нидерландской кирпичной архитектуры.
 
Британская школа в Амстердаме
Британская школа в Амстердаме
Фото © Eva Bloem
Британская школа в Амстердаме
Британская школа в Амстердаме
Фото © Eva Bloem
Британская школа в Амстердаме
Британская школа в Амстердаме
Фото © Eva Bloem
Британская школа в Амстердаме
Британская школа в Амстердаме
Фото © Eva Bloem
Британская школа в Амстердаме
Британская школа в Амстердаме
Фото © Eva Bloem
Британская школа в Амстердаме
Британская школа в Амстердаме
Фото © Eva Bloem
Британская школа в Амстердаме
Британская школа в Амстердаме
Фото © Eva Bloem
Британская школа в Амстердаме
Британская школа в Амстердаме
Фото © Eva Bloem
Британская школа в Амстердаме
Британская школа в Амстердаме
Фото © Eva Bloem
Британская школа в Амстердаме
Британская школа в Амстердаме
Фото © Eva Bloem
Британская школа в Амстердаме
Британская школа в Амстердаме
Фото © Eva Bloem
Британская школа в Амстердаме
Британская школа в Амстердаме
Фото © Eva Bloem
Британская школа в Амстердаме
Британская школа в Амстердаме
Фото © Eva Bloem
Британская школа в Амстердаме
Британская школа в Амстердаме
Фото © Eva Bloem
Британская школа в Амстердаме
Британская школа в Амстердаме
Фото © Eva Bloem
Британская школа в Амстердаме
Британская школа в Амстердаме
Фото © Eva Bloem
Британская школа в Амстердаме
Британская школа в Амстердаме
Фото © Eva Bloem
Британская школа в Амстердаме
Британская школа в Амстердаме
© Atelier PRO
Британская школа в Амстердаме
Британская школа в Амстердаме
© Atelier PRO
Британская школа в Амстердаме
Британская школа в Амстердаме
© Atelier PRO
Британская школа в Амстердаме
Британская школа в Амстердаме
© Atelier PRO
Британская школа в Амстердаме
Британская школа в Амстердаме
© Atelier PRO