Размещено на портале Архи.ру (www.archi.ru)

29.09.2021

Преемственность силуэта

Нина Фролова
Объект:
Комплекс Astoriahuset & Nybrogatan 17
Адрес:
Швеция, None, Стокгольм.
Мастерская:
3XN
АРХИТАЙЛ/ ARCHITILE

Доходный дом «Астория» в центре Стокгольма реконструирован архитекторами 3XN, которые добавили к нему новый корпус со схожим профилем кровли.

«Астория» (Astoriahuset) была построена как доходный дом в 1870-е, но в начале XXI века вмещала офисы и кинотеатр. В ходе реконструкции архитекторы 3XN заняли офисными площадями новое здание – Nybrogatan 17, а историческому вернули изначальную функцию: теперь там 18 квартир. Место кинотеатра забрал ресторан, сохранив при этом его фойе.
 

Комплекс Astoriahuset & Nybrogatan 17
Комплекс Astoriahuset & Nybrogatan 17
Фото © Rasmus Hjortshøj – COAST Studio

Связь между зданиями XIX века и нашего времени осуществлена «через крышу»: ломаный силуэт кровли «Астории» Nybrogatan 17 сначала продолжает, а потом плавно трансформирует в более современную форму, позволившую также устроить сверху террасу для отдыха сотрудников.
 
Комплекс Astoriahuset & Nybrogatan 17
Комплекс Astoriahuset & Nybrogatan 17
Фото © Rasmus Hjortshøj – COAST Studio

Новое здание не копирует окружающую застройку второй половины XIX века, но следует за ней в своем разнообразном оформлении фасадов. Асимметричное расположение окон подчеркнуто металлическими декоративными решетками. Их узор в свою очередь повторяет вертикальную кирпичную кладку из вытянутого, ригельного кирпича.
 
Комплекс Astoriahuset & Nybrogatan 17
Комплекс Astoriahuset & Nybrogatan 17
Фото © Rasmus Hjortshøj – COAST Studio

Это материал датского – как само бюро 3XN – завода Petersen Tegl: красно-коричневая Kolumba K43 ручной работы с органической поверхностью. Насыщенный, темный цвет был важен для архитекторов: так их здание сразу опознается как современное, ведь старый кирпич обычно светлей.
 
Комплекс Astoriahuset & Nybrogatan 17
Комплекс Astoriahuset & Nybrogatan 17
Фото © Rasmus Hjortshøj – COAST Studio

На уровне земли дом получил золотистые решетчатые панели, со стороны двора его фасады остеклены, чтобы обеспечить интерьер солнечным светом.
 
Комплекс Astoriahuset & Nybrogatan 17
Комплекс Astoriahuset & Nybrogatan 17
Фото © Rasmus Hjortshøj – COAST Studio

Внутри Nybrogatan 17 историческая пышность позапрошлого века трансформировалась в мраморные полы и лестницу, а также нарядные металлические детали.
Комплекс Astoriahuset & Nybrogatan 17
Комплекс Astoriahuset & Nybrogatan 17
Фото © Rasmus Hjortshøj – COAST Studio
Комплекс Astoriahuset & Nybrogatan 17
Комплекс Astoriahuset & Nybrogatan 17
Фото © Rasmus Hjortshøj – COAST Studio
Комплекс Astoriahuset & Nybrogatan 17
Комплекс Astoriahuset & Nybrogatan 17
Фото © Rasmus Hjortshøj – COAST Studio
Комплекс Astoriahuset & Nybrogatan 17
Комплекс Astoriahuset & Nybrogatan 17
Фото © Rasmus Hjortshøj – COAST Studio
Комплекс Astoriahuset & Nybrogatan 17
Комплекс Astoriahuset & Nybrogatan 17
Фото © Rasmus Hjortshøj – COAST Studio
Комплекс Astoriahuset & Nybrogatan 17
Комплекс Astoriahuset & Nybrogatan 17
Фото © Rasmus Hjortshøj – COAST Studio
Комплекс Astoriahuset & Nybrogatan 17
Комплекс Astoriahuset & Nybrogatan 17
Фото © Rasmus Hjortshøj – COAST Studio
Комплекс Astoriahuset & Nybrogatan 17
Комплекс Astoriahuset & Nybrogatan 17
Фото © Rasmus Hjortshøj – COAST Studio
Комплекс Astoriahuset & Nybrogatan 17
Комплекс Astoriahuset & Nybrogatan 17
Фото © Rasmus Hjortshøj – COAST Studio
Комплекс Astoriahuset & Nybrogatan 17
Комплекс Astoriahuset & Nybrogatan 17
Фото © Rasmus Hjortshøj – COAST Studio
Комплекс Astoriahuset & Nybrogatan 17
Комплекс Astoriahuset & Nybrogatan 17
Фото © Rasmus Hjortshøj – COAST Studio
Комплекс Astoriahuset & Nybrogatan 17
Комплекс Astoriahuset & Nybrogatan 17
Фото © Rasmus Hjortshøj – COAST Studio
Комплекс Astoriahuset & Nybrogatan 17
Комплекс Astoriahuset & Nybrogatan 17
Фото © Rasmus Hjortshøj – COAST Studio
Комплекс Astoriahuset & Nybrogatan 17
Комплекс Astoriahuset & Nybrogatan 17
Фото © Rasmus Hjortshøj – COAST Studio
Комплекс Astoriahuset & Nybrogatan 17
Комплекс Astoriahuset & Nybrogatan 17
Фото © Rasmus Hjortshøj – COAST Studio
Комплекс Astoriahuset & Nybrogatan 17
Комплекс Astoriahuset & Nybrogatan 17
Фото © Rasmus Hjortshøj – COAST Studio
Комплекс Astoriahuset & Nybrogatan 17
Комплекс Astoriahuset & Nybrogatan 17
Фото © Rasmus Hjortshøj – COAST Studio
Комплекс Astoriahuset & Nybrogatan 17
Комплекс Astoriahuset & Nybrogatan 17
Фото © Rasmus Hjortshøj – COAST Studio
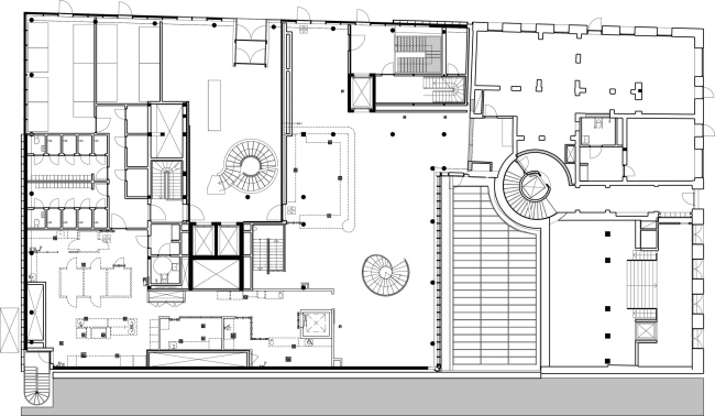
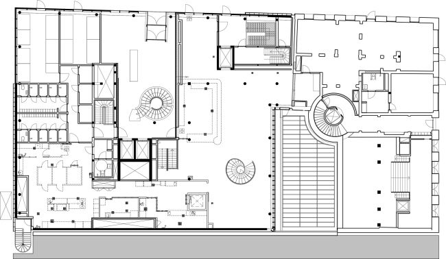
Комплекс Astoriahuset & Nybrogatan 17 © 3XN
Комплекс Astoriahuset & Nybrogatan 17
© 3XN
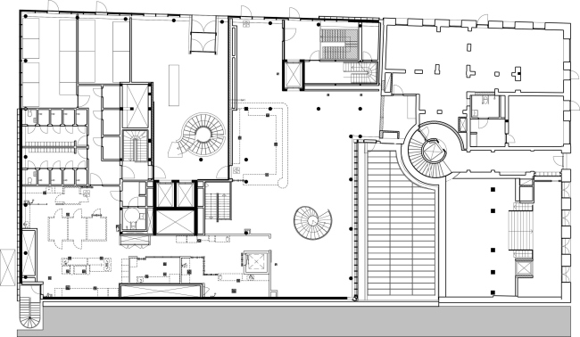
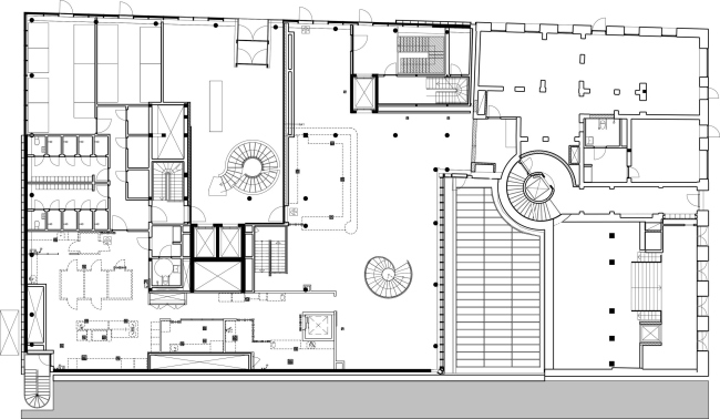
Комплекс Astoriahuset & Nybrogatan 17 © 3XN
Комплекс Astoriahuset & Nybrogatan 17
© 3XN
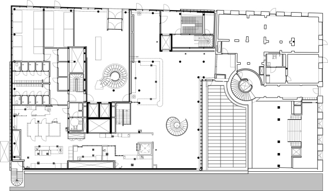
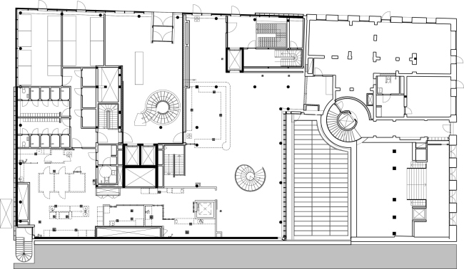
Комплекс Astoriahuset & Nybrogatan 17 © 3XN
Комплекс Astoriahuset & Nybrogatan 17
© 3XN
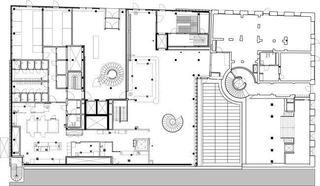
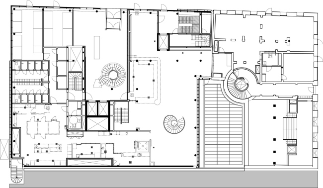
Комплекс Astoriahuset & Nybrogatan 17 © 3XN
Комплекс Astoriahuset & Nybrogatan 17
© 3XN
Комплекс Astoriahuset & Nybrogatan 17 © 3XN
Комплекс Astoriahuset & Nybrogatan 17
© 3XN
Комплекс Astoriahuset & Nybrogatan 17 © 3XN
Комплекс Astoriahuset & Nybrogatan 17
© 3XN
Комплекс Astoriahuset & Nybrogatan 17 © 3XN
Комплекс Astoriahuset & Nybrogatan 17
© 3XN
Комплекс Astoriahuset & Nybrogatan 17 © 3XN
Комплекс Astoriahuset & Nybrogatan 17
© 3XN
Комплекс Astoriahuset & Nybrogatan 17
Комплекс Astoriahuset & Nybrogatan 17
© 3XN
Комплекс Astoriahuset & Nybrogatan 17
Комплекс Astoriahuset & Nybrogatan 17
© 3XN
Комплекс Astoriahuset & Nybrogatan 17
Комплекс Astoriahuset & Nybrogatan 17
© 3XN
Комплекс Astoriahuset & Nybrogatan 17
Комплекс Astoriahuset & Nybrogatan 17
© 3XN