Размещено на портале Архи.ру (www.archi.ru)

21.09.2021

Длинный дом

Нина Фролова
Объект:
Общественный центр в Гросвайкердорфе
Адрес:
Австрия, None,
Мастерская:
smartvoll

Общественный центр по проекту бюро smartvoll должен вернуть оживление в сердце австрийской деревни Гросвайкердорф.

Архитекторы smartvoll обосновывают важность своего проекта, рассказывая об «эффекте пончика-доната»: даже в небольших австрийских поселениях точки притяжения (прежде всего, учреждения торговли) перемещаются на периферию, а центр пустеет и ветшает. Именно для противодействия этому процессу городские власти решили построить рядом с церковью новый общественный центр, который соединяет в себе ратушу, клуб для местных жителей и медицинское учреждение.
 

Общественный центр в Гросвайкердорфе
Общественный центр в Гросвайкердорфе
Фото © Dimitar Gamizov

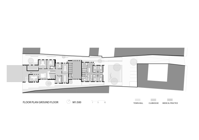
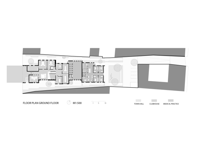
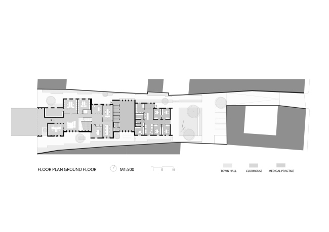
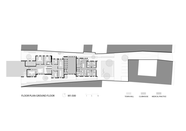
Новое здание вписано в традиционную застройку благодаря своей двускатной крыше и привычному силуэту. При этом оно заняло место трех обветшавших домов, а выглядит как целых шесть таких построек, соединенных торцами. Каждый блок чуть сдвинут относительно соседних, и так возникают ниши, где размещены входы и небольшие общественные пространства. Позади сооружения устроена детская площадка.
 
Общественный центр в Гросвайкердорфе
Общественный центр в Гросвайкердорфе
Фото © Romana Fürnkranz

Здание – деревянное, но кровля и продольные фасады у него покрыты черепицей, опять же напоминая о местных традициях. Внутри много пространств для местных жителей – как в ратуше, так и в полностью предназначенном для них клубе. В медицинском центре могут одновременно принимать пациентов пять врачей.
Общественный центр в Гросвайкердорфе
Общественный центр в Гросвайкердорфе
Фото © Jörg Seiler
Общественный центр в Гросвайкердорфе
Общественный центр в Гросвайкердорфе
Фото © Romana Fürnkranz
Общественный центр в Гросвайкердорфе
Общественный центр в Гросвайкердорфе
Фото © Romana Fürnkranz
Общественный центр в Гросвайкердорфе
Общественный центр в Гросвайкердорфе
Фото © Romana Fürnkranz
Общественный центр в Гросвайкердорфе
Общественный центр в Гросвайкердорфе
Фото © Jörg Seiler
Общественный центр в Гросвайкердорфе
Общественный центр в Гросвайкердорфе
Фото © Wienerberger/Andreas Hafenscher
Общественный центр в Гросвайкердорфе
Общественный центр в Гросвайкердорфе
Фото © Wienerberger/Andreas Hafenscher
Общественный центр в Гросвайкердорфе
Общественный центр в Гросвайкердорфе
Фото © Romana Fürnkranz
Общественный центр в Гросвайкердорфе
Общественный центр в Гросвайкердорфе
Фото © Dimitar Gamizov
Общественный центр в Гросвайкердорфе
Общественный центр в Гросвайкердорфе
Фото © Dimitar Gamizov
Общественный центр в Гросвайкердорфе
Общественный центр в Гросвайкердорфе
Фото © Dimitar Gamizov
Общественный центр в Гросвайкердорфе
Общественный центр в Гросвайкердорфе
Фото © Dimitar Gamizov
Общественный центр в Гросвайкердорфе
Общественный центр в Гросвайкердорфе
Фото © Dimitar Gamizov
Общественный центр в Гросвайкердорфе
Общественный центр в Гросвайкердорфе
Фото © Dimitar Gamizov
Общественный центр в Гросвайкердорфе
Общественный центр в Гросвайкердорфе
Фото © Dimitar Gamizov
Общественный центр в Гросвайкердорфе
Общественный центр в Гросвайкердорфе
Фото © Dimitar Gamizov
Общественный центр в Гросвайкердорфе
Общественный центр в Гросвайкердорфе
Фото © Dimitar Gamizov
Общественный центр в Гросвайкердорфе
Общественный центр в Гросвайкердорфе
Фото © Jörg Seiler
Общественный центр в Гросвайкердорфе
Общественный центр в Гросвайкердорфе
© smartvoll
Общественный центр в Гросвайкердорфе
Общественный центр в Гросвайкердорфе
© smartvoll
Общественный центр в Гросвайкердорфе
Общественный центр в Гросвайкердорфе
© smartvoll
Общественный центр в Гросвайкердорфе
Общественный центр в Гросвайкердорфе
© smartvoll
Общественный центр в Гросвайкердорфе
Общественный центр в Гросвайкердорфе
© smartvoll
Общественный центр в Гросвайкердорфе
Общественный центр в Гросвайкердорфе
© smartvoll
Общественный центр в Гросвайкердорфе
Общественный центр в Гросвайкердорфе
© smartvoll
Общественный центр в Гросвайкердорфе
Общественный центр в Гросвайкердорфе
© smartvoll
Общественный центр в Гросвайкердорфе
Общественный центр в Гросвайкердорфе
© smartvoll
Общественный центр в Гросвайкердорфе
Общественный центр в Гросвайкердорфе
© smartvoll
Общественный центр в Гросвайкердорфе
Общественный центр в Гросвайкердорфе
© smartvoll
Общественный центр в Гросвайкердорфе
Общественный центр в Гросвайкердорфе
© smartvoll
Общественный центр в Гросвайкердорфе
Общественный центр в Гросвайкердорфе
© smartvoll