Размещено на портале Архи.ру (www.archi.ru)

15.09.2021

Кирпичный текстиль

Нина Фролова
Объект:
Офисное здание Three New Bailey
Адрес:
Великобритания, None, Солфорд.
Мастерская:
Make

На фасадах офисного здания по проекту Make Architects в Солфорде – кирпичная кладка, имитирующая традиционные для этого города ткани.

Офисный корпус Three New Bailey расположен в новом районе на месте бывшей промзоны и парковки в центре Солфорда, города в агломерации Манчестера. Именно он встречает пассажиров, выходящих из здания вокзала, поэтому было особенно важным придать ему оригинальный облик. Так как в Солфорде работало немало текстильных фабрик, а также есть много кирпичных индустриальных зданий XIX века, логичным показалось объединить эти два факта.
 

Офисное здание Three New Bailey
Офисное здание Three New Bailey
Фото © Paul Karalius

Поэтому на торцевых фасадах кирпич образует плетение «рогожка», а на продольных – саржевое. При этом вертикальные «нити» – почти гладкие, там применена ложковая кладка, а вот горизонтальные – рельефные и узорчатые. Ключевой задачей было отделить кирпичную поверхность от стеклянной, подчеркнув трехмерность фасада: разница между ними колеблется от 100 до 400 мм. Вентиляционные и другие устройства на кровле скрыты за рядом панелей с ажурной фламандской кладкой. Такая же кладка, но не ажурная, а рельефная, применена на фасадах не требующих окон лестнично-лифтовых узлов.
 
Офисное здание Three New Bailey
Офисное здание Three New Bailey
Фото © Paul Karalius

Конечно, такую сложную кладку выполняли на панелях, в которые затем «одели» здание.
 
Офисное здание Three New Bailey
Офисное здание Three New Bailey
Фото © Paul Karalius

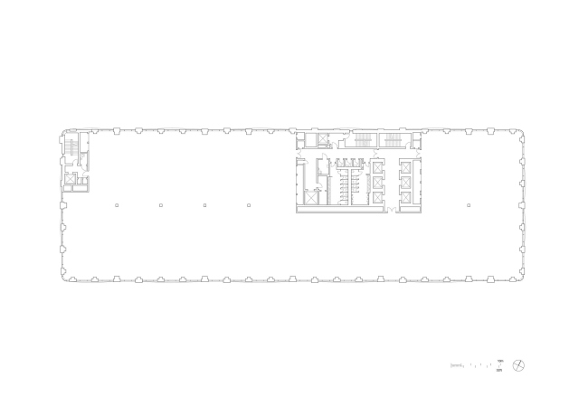
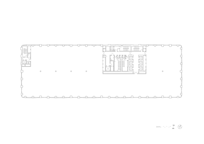
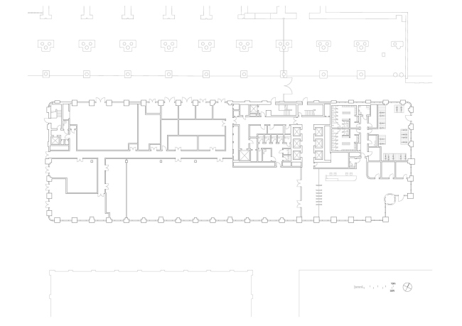
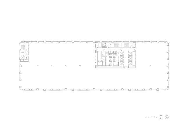
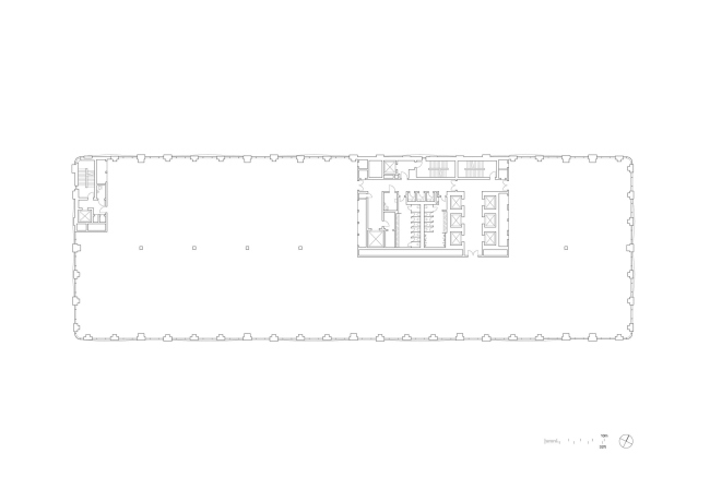
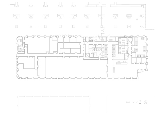
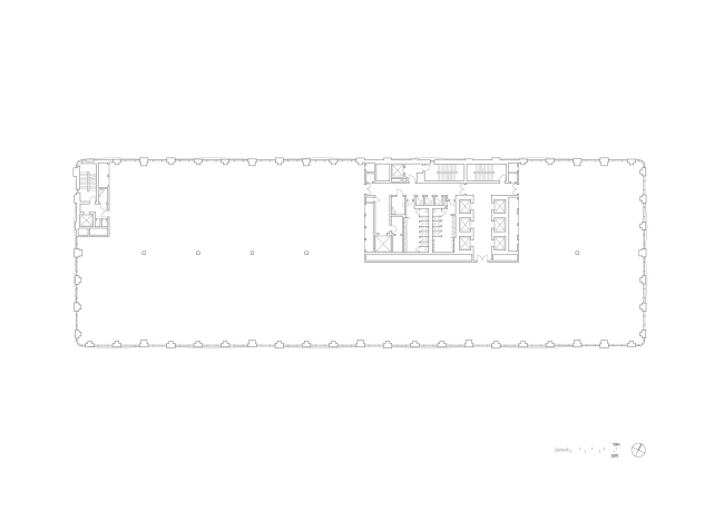
Внутри планировки максимально простые и гибкие, повторяющиеся почти точно на всех семи этажах (общая площадь – почти 15 тыс. м2): здание предназначено для государственного Управления по налоговым и таможенным сборам. В интерьере общественных зон также применена кирпичная кладка – гладкая и рельефная.
Офисное здание Three New Bailey
Офисное здание Three New Bailey
Фото © Paul Karalius
Офисное здание Three New Bailey Фото © Paul Karalius
Офисное здание Three New Bailey
Фото © Paul Karalius
Офисное здание Three New Bailey Фото © Paul Karalius
Офисное здание Three New Bailey
Фото © Paul Karalius
Офисное здание Three New Bailey Фото © Paul Karalius
Офисное здание Three New Bailey
Фото © Paul Karalius
Офисное здание Three New Bailey
Офисное здание Three New Bailey
Фото © Paul Karalius
Офисное здание Three New Bailey Фото © Paul Karalius
Офисное здание Three New Bailey
Фото © Paul Karalius
Офисное здание Three New Bailey Фото © Paul Karalius
Офисное здание Three New Bailey
Фото © Paul Karalius
Офисное здание Three New Bailey Фото © Paul Karalius
Офисное здание Three New Bailey
Фото © Paul Karalius
Офисное здание Three New Bailey
Офисное здание Three New Bailey
Фото © Paul Karalius
Офисное здание Three New Bailey
Офисное здание Three New Bailey
Фото © Paul Karalius
Офисное здание Three New Bailey
Офисное здание Three New Bailey
Фото © Paul Karalius
Офисное здание Three New Bailey
Офисное здание Three New Bailey
Фото © Paul Karalius
Офисное здание Three New Bailey
Офисное здание Three New Bailey
Фото © Paul Karalius
Офисное здание Three New Bailey
Офисное здание Three New Bailey
Фото © Paul Karalius
Офисное здание Three New Bailey
Офисное здание Three New Bailey
Фото © Paul Karalius
Офисное здание Three New Bailey
Офисное здание Three New Bailey
© Make Architects
Офисное здание Three New Bailey
Офисное здание Three New Bailey
© Make Architects
Офисное здание Three New Bailey
Офисное здание Three New Bailey
© Make Architects
Офисное здание Three New Bailey
Офисное здание Three New Bailey
© Make Architects
Офисное здание Three New Bailey
Офисное здание Three New Bailey
© Make Architects
Офисное здание Three New Bailey
Офисное здание Three New Bailey
© Make Architects
Офисное здание Three New Bailey
Офисное здание Three New Bailey
© Make Architects
Офисное здание Three New Bailey
Офисное здание Three New Bailey
© Make Architects
Офисное здание Three New Bailey
Офисное здание Three New Bailey
© Make Architects
Офисное здание Three New Bailey
Офисное здание Three New Bailey
© Make Architects