Размещено на портале Архи.ру (www.archi.ru)

08.09.2021

Домики в кронах

Нина Фролова
Объект:
Гостиница «Лэбэй»
Адрес:
Китай, None, Гуйлинь.
Мастерская:
aoe

Свайные гостевые домики по проекту бюро aoe обеспечивают постояльцам близость к природе и уединение.

Гостиница «Лэбэй» из 13 домиков пяти типов расположилась в популярном своими видами среди туристов городе Гуйлинь на юге Китая. Ее участок порос деревьями, рядом протекает речка.

Гостиница «Лэбэй»
Гостиница «Лэбэй»
© Zhu Runzi
 
Архитекторы пекинского бюро aoe стремились обеспечить гостям приватность и близость к природе, поэтому образцом для них стали древние свайные жилища, где люди были в полной безопасности и могли обозревать окрестности.
 
Гостиница «Лэбэй»
Гостиница «Лэбэй»
© Zhu Runzi

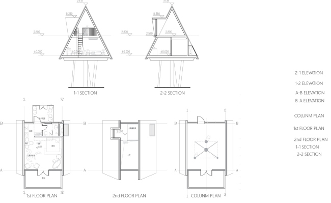
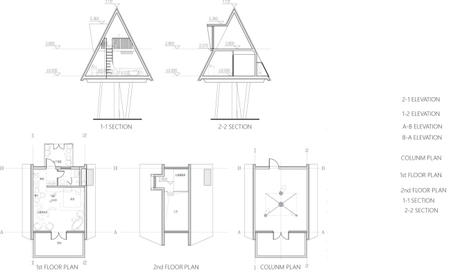
В Гуйлине гостям тоже обеспечена панорама, а также обилие зелени вокруг. Каждый домик имеет два уровня, нижний – для взрослых, верхний – для детей, причем связаны они не только обычными лесенками, но и горками и подобными аттракционами. Площадь домиков варьируется от 27 до 45 м2.
 
Гостиница «Лэбэй»
Гостиница «Лэбэй»
© Zhu Runzi

На уровне земли устроены террасы и качели; их можно встретить и на мостиках-переходах, которые связывают домики между собой.

Материалы для публикации предоставлены V2COM.
Гостиница «Лэбэй»
Гостиница «Лэбэй»
© Zhu Runzi
Гостиница «Лэбэй»
Гостиница «Лэбэй»
© Zhu Runzi
Гостиница «Лэбэй»
Гостиница «Лэбэй»
© Zhu Runzi
Гостиница «Лэбэй»
Гостиница «Лэбэй»
© Zhu Runzi
Гостиница «Лэбэй»
Гостиница «Лэбэй»
© Zhu Runzi
Гостиница «Лэбэй»
Гостиница «Лэбэй»
© Zhu Runzi
Гостиница «Лэбэй»
Гостиница «Лэбэй»
© Zhu Runzi
Гостиница «Лэбэй»
Гостиница «Лэбэй»
© Zhu Runzi
Гостиница «Лэбэй»
Гостиница «Лэбэй»
© Zhu Runzi
Гостиница «Лэбэй»
Гостиница «Лэбэй»
© Zhu Runzi
Гостиница «Лэбэй»
Гостиница «Лэбэй»
© Zhu Runzi
Гостиница «Лэбэй»
Гостиница «Лэбэй»
© Zhu Runzi
Гостиница «Лэбэй»
Гостиница «Лэбэй»
© aoe
Гостиница «Лэбэй»
Гостиница «Лэбэй»
© aoe
Гостиница «Лэбэй»
Гостиница «Лэбэй»
© aoe
Гостиница «Лэбэй»
Гостиница «Лэбэй»
© aoe