Размещено на портале Архи.ру (www.archi.ru)

02.09.2021

Медь и камень

Нина Фролова
Объект:
Монастырь Сен-Франсуа – реконструкция
Адрес:
Франция, None, Сент-Люси-де-Таллано.
Мастерская:
Amelia Tavella Architectes

Реконструкция монастыря Сен-Франсуа на острове Корсика по проекту Amelia Tavella Architectes.

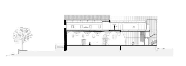
Монастырь Сен-Франсуа находится в горном массиве Альта-Рока в южной части Корсики. Он был основан в конце XV века на месте замка, и в XVI–XVII столетиях процветал как францисканская обитель. Но в годы Великой французской революции его закрыли, а комплекс – национализировали, что в итоге привело к его медленному ветшанию.
 

Монастырь Сен-Франсуа – реконструкция
Монастырь Сен-Франсуа – реконструкция
Фото © Thibaut Dini

В наши дни разные части монастырского комплекса по-прежнему принадлежат государству – муниципалитету Сент-Люси-де-Таллано, где он расположен, и «уникальной территориальной общности» Корсика. С 1980 это охраняемый объект наследия, но, если церковь находится в достойном состоянии, то монастырский корпус был руинирован.
 
Монастырь Сен-Франсуа – реконструкция
Монастырь Сен-Франсуа – реконструкция
Фото © Thibaut Dini

Сен-Франсуа принимает концерты и другие мероприятия на открытом воздухе, там есть сцена. Правительство Корсики приняло решение развить эту составляющую и, реконструировав полуразрушенный монастырский корпус, превратить его в культурный центр.
 
Монастырь Сен-Франсуа – реконструкция
Монастырь Сен-Франсуа – реконструкция
Фото © Thibaut Dini

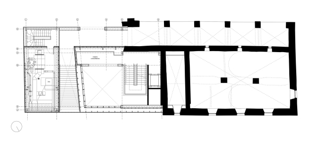
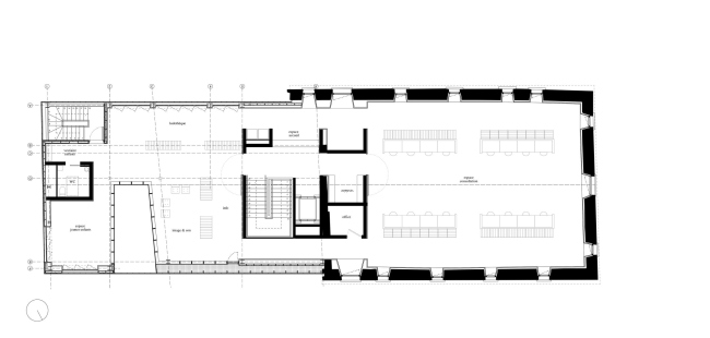
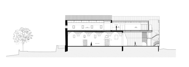
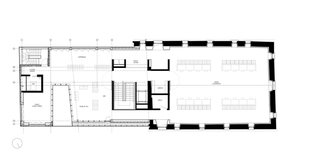
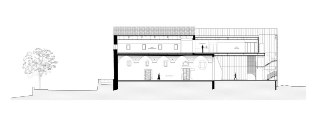
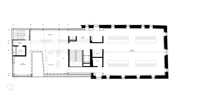
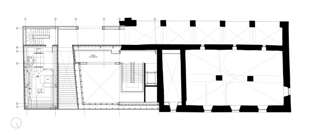
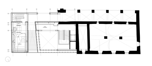
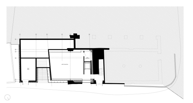
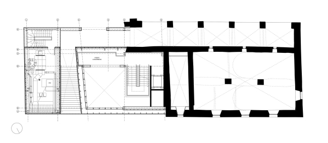
Эта задача была поручена уроженке Корсики архитектору Амелии Тавелла. Она максимально сохранила облик руинированной части (изначально – XVII века) из камня, несущего следы времени. Объем здания восстановлен в первоначальных размерах и форме, причем как материал для «достройки» выбрана медь, которая выступает как «мягкая» альтернатива грубому камню. Перфорированные панели в духе решеток-машрабия исламской архитектуры преображают проникающий внутрь свет не меньше, чем витражи, считает автор проекта.
 
Монастырь Сен-Франсуа – реконструкция Фото © Thibaut Dini
Монастырь Сен-Франсуа – реконструкция
Фото © Thibaut Dini
Монастырь Сен-Франсуа – реконструкция Фото © Thibaut Dini
Монастырь Сен-Франсуа – реконструкция
Фото © Thibaut Dini
Монастырь Сен-Франсуа – реконструкция Фото © Thibaut Dini
Монастырь Сен-Франсуа – реконструкция
Фото © Thibaut Dini
Монастырь Сен-Франсуа – реконструкция Фото © Thibaut Dini
Монастырь Сен-Франсуа – реконструкция
Фото © Thibaut Dini

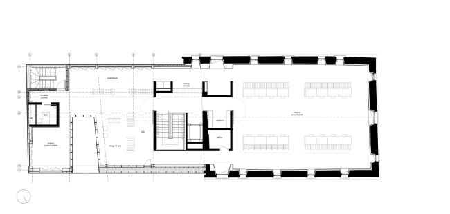
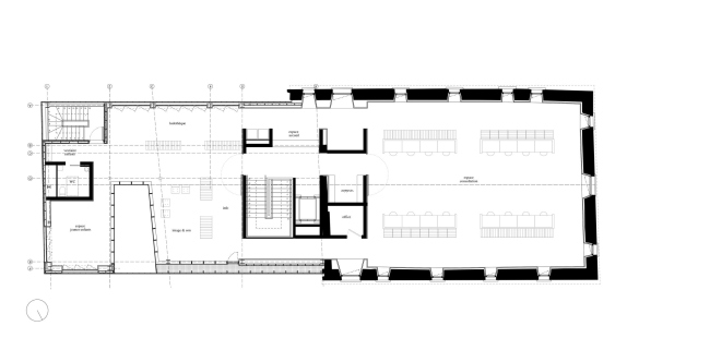
Программа культурного центра включает в себя выставочный зал, учебные зоны, игротеку и пространство для маленьких детей, в исторической части размещен лекторий.
 
Монастырь Сен-Франсуа – реконструкция Фото © Thibaut Dini
Монастырь Сен-Франсуа – реконструкция
Фото © Thibaut Dini
Монастырь Сен-Франсуа – реконструкция Фото © Thibaut Dini
Монастырь Сен-Франсуа – реконструкция
Фото © Thibaut Dini
Монастырь Сен-Франсуа – реконструкция Фото © Thibaut Dini
Монастырь Сен-Франсуа – реконструкция
Фото © Thibaut Dini
Монастырь Сен-Франсуа – реконструкция Фото © Thibaut Dini
Монастырь Сен-Франсуа – реконструкция
Фото © Thibaut Dini
Монастырь Сен-Франсуа – реконструкция Фото © Thibaut Dini
Монастырь Сен-Франсуа – реконструкция
Фото © Thibaut Dini
Монастырь Сен-Франсуа – реконструкция Фото © Thibaut Dini
Монастырь Сен-Франсуа – реконструкция
Фото © Thibaut Dini
Монастырь Сен-Франсуа – реконструкция
Монастырь Сен-Франсуа – реконструкция
Фото © Thibaut Dini
Монастырь Сен-Франсуа – реконструкция Фото © Thibaut Dini
Монастырь Сен-Франсуа – реконструкция
Фото © Thibaut Dini
Монастырь Сен-Франсуа – реконструкция Фото © Thibaut Dini
Монастырь Сен-Франсуа – реконструкция
Фото © Thibaut Dini
Монастырь Сен-Франсуа – реконструкция Фото © Thibaut Dini
Монастырь Сен-Франсуа – реконструкция
Фото © Thibaut Dini
Монастырь Сен-Франсуа – реконструкция Фото © Thibaut Dini
Монастырь Сен-Франсуа – реконструкция
Фото © Thibaut Dini
Монастырь Сен-Франсуа – реконструкция Фото © Thibaut Dini
Монастырь Сен-Франсуа – реконструкция
Фото © Thibaut Dini
Монастырь Сен-Франсуа – реконструкция Фото © Thibaut Dini
Монастырь Сен-Франсуа – реконструкция
Фото © Thibaut Dini
Монастырь Сен-Франсуа – реконструкция Фото © Thibaut Dini
Монастырь Сен-Франсуа – реконструкция
Фото © Thibaut Dini
Монастырь Сен-Франсуа – реконструкция
Монастырь Сен-Франсуа – реконструкция
Фото © Thibaut Dini
Монастырь Сен-Франсуа – реконструкция Фото © Thibaut Dini
Монастырь Сен-Франсуа – реконструкция
Фото © Thibaut Dini
Монастырь Сен-Франсуа – реконструкция Фото © Thibaut Dini
Монастырь Сен-Франсуа – реконструкция
Фото © Thibaut Dini
Монастырь Сен-Франсуа – реконструкция Фото © Thibaut Dini
Монастырь Сен-Франсуа – реконструкция
Фото © Thibaut Dini
Монастырь Сен-Франсуа – реконструкция Фото © Thibaut Dini
Монастырь Сен-Франсуа – реконструкция
Фото © Thibaut Dini
Монастырь Сен-Франсуа – реконструкция Фото © Thibaut Dini
Монастырь Сен-Франсуа – реконструкция
Фото © Thibaut Dini
Монастырь Сен-Франсуа – реконструкция Фото © Thibaut Dini
Монастырь Сен-Франсуа – реконструкция
Фото © Thibaut Dini
Монастырь Сен-Франсуа – реконструкция
Монастырь Сен-Франсуа – реконструкция
Фото © Thibaut Dini
Монастырь Сен-Франсуа – реконструкция Фото © Thibaut Dini
Монастырь Сен-Франсуа – реконструкция
Фото © Thibaut Dini
Монастырь Сен-Франсуа – реконструкция Фото © Thibaut Dini
Монастырь Сен-Франсуа – реконструкция
Фото © Thibaut Dini
Монастырь Сен-Франсуа – реконструкция Фото © Thibaut Dini
Монастырь Сен-Франсуа – реконструкция
Фото © Thibaut Dini
Монастырь Сен-Франсуа – реконструкция
Монастырь Сен-Франсуа – реконструкция
Фото © Thibaut Dini
Монастырь Сен-Франсуа – реконструкция Фото © Thibaut Dini
Монастырь Сен-Франсуа – реконструкция
Фото © Thibaut Dini
Монастырь Сен-Франсуа – реконструкция Фото © Thibaut Dini
Монастырь Сен-Франсуа – реконструкция
Фото © Thibaut Dini
Монастырь Сен-Франсуа – реконструкция Фото © Thibaut Dini
Монастырь Сен-Франсуа – реконструкция
Фото © Thibaut Dini
Монастырь Сен-Франсуа – реконструкция Фото © Thibaut Dini
Монастырь Сен-Франсуа – реконструкция
Фото © Thibaut Dini
Монастырь Сен-Франсуа – реконструкция Фото © Thibaut Dini
Монастырь Сен-Франсуа – реконструкция
Фото © Thibaut Dini
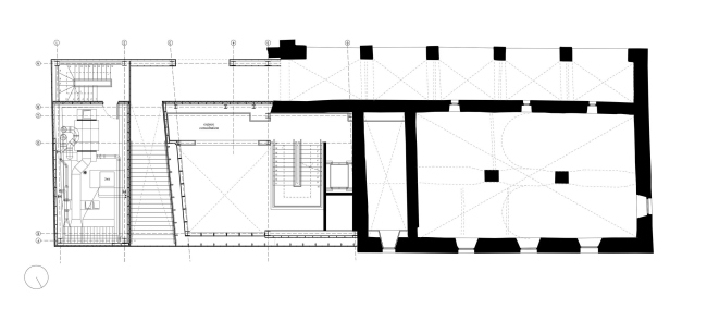
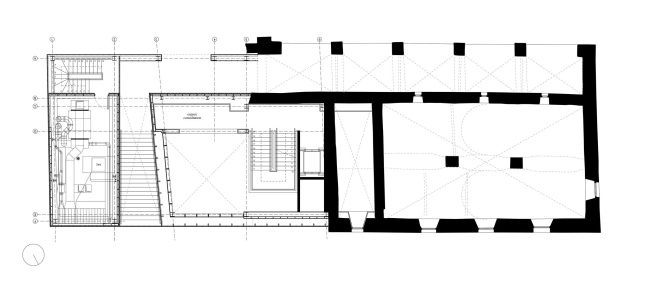
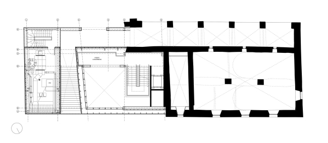
Монастырь Сен-Франсуа – реконструкция
Монастырь Сен-Франсуа – реконструкция
© Amelia Tavella Architectes
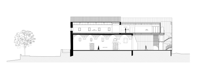
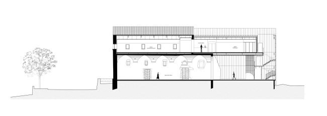
Монастырь Сен-Франсуа – реконструкция
Монастырь Сен-Франсуа – реконструкция
© Amelia Tavella Architectes
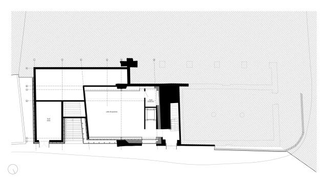
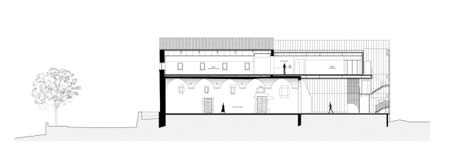
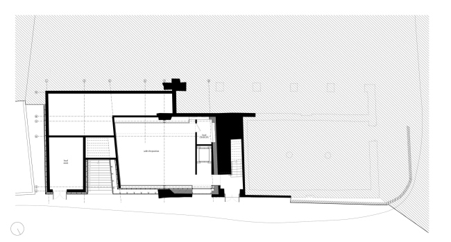
Монастырь Сен-Франсуа – реконструкция
Монастырь Сен-Франсуа – реконструкция
© Amelia Tavella Architectes
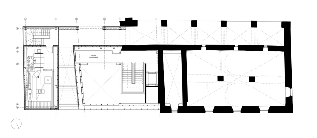
Монастырь Сен-Франсуа – реконструкция
Монастырь Сен-Франсуа – реконструкция
© Amelia Tavella Architectes
Монастырь Сен-Франсуа – реконструкция
Монастырь Сен-Франсуа – реконструкция
© Amelia Tavella Architectes
Монастырь Сен-Франсуа – реконструкция
Монастырь Сен-Франсуа – реконструкция
© Amelia Tavella Architectes
Монастырь Сен-Франсуа – реконструкция
Монастырь Сен-Франсуа – реконструкция
© Amelia Tavella Architectes
Монастырь Сен-Франсуа – реконструкция
Монастырь Сен-Франсуа – реконструкция
© Amelia Tavella Architectes
Монастырь Сен-Франсуа – реконструкция
Монастырь Сен-Франсуа – реконструкция
© Amelia Tavella Architectes
Монастырь Сен-Франсуа – реконструкция
Монастырь Сен-Франсуа – реконструкция
© Amelia Tavella Architectes
Монастырь Сен-Франсуа – реконструкция
Монастырь Сен-Франсуа – реконструкция
© Amelia Tavella Architectes
Монастырь Сен-Франсуа – реконструкция
Монастырь Сен-Франсуа – реконструкция
© Amelia Tavella Architectes