Размещено на портале Архи.ру (www.archi.ru)

30.08.2021

Исправление градостроительной ошибки

Нина Фролова
Объект:
Офисное здание De Walvis
Адрес:
Нидерланды, None, Амстердам. Grote Bickersstraat 74-76
Мастерская:
KAAN Architecten

KAAN Architecten реконструировали в Амстердаме офисное здание, чье строительство в 1960-е вызвало протесты и даже изменение градостроительной политики.

De Walvis, то есть «кит», получило свое название в честь располагавшейся неподалеку верфи. Это офисное здание площадью порядка 10 000 м2 было типичным примером послевоенного модернизма, чрезмерно крупным для застройки острова Бикерсейланд в центре Амстердама. Девелопер в начале 1960-х планировал превратить эту часть города в «маленький Манхэттен», но протесты против De Walvis (хотя его все же построили в 1964) в итоге привели к изменению градостроительной политики – от постоянного увеличения масштаба к вниманию к сложившемуся сообществу и его нуждам.
 

Офисное здание De Walvis
Офисное здание De Walvis
Фото © Sebastian van Damme

Несмотря на эти перемены, в наши дни окружение De Walvis значительно крупней прежней застройки, поэтому и само здание не настолько выделяется, хотя так и не полюбилось горожанам. Сделать его более привлекательным и соответствующим контексту – месту и времени – и было задачей KAAN Architecten.
 
Офисное здание De Walvis
Офисное здание De Walvis
Фото © Sebastian van Damme

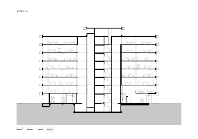
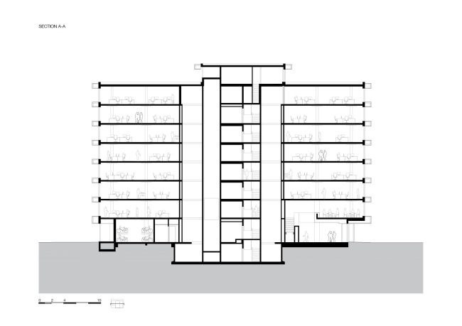
Прежде единый, объем здания теперь разбит выступающими межэтажными перекрытиями (на самом деле это декоративный прием, «консоли» сделаны из легкого металла). Чтобы тройное остекление с почти незаметными профилями не выглядело при этом хрупким, в нем сделали «иллюминаторы» – напоминание о близкой воде и судостроительном прошлом территории, но также и вполне рабочие форточки, которые можно при необходимости открыть.
 
Офисное здание De Walvis
Офисное здание De Walvis
Фото © Sebastian van Damme

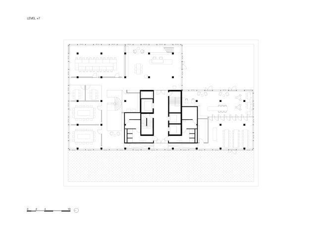
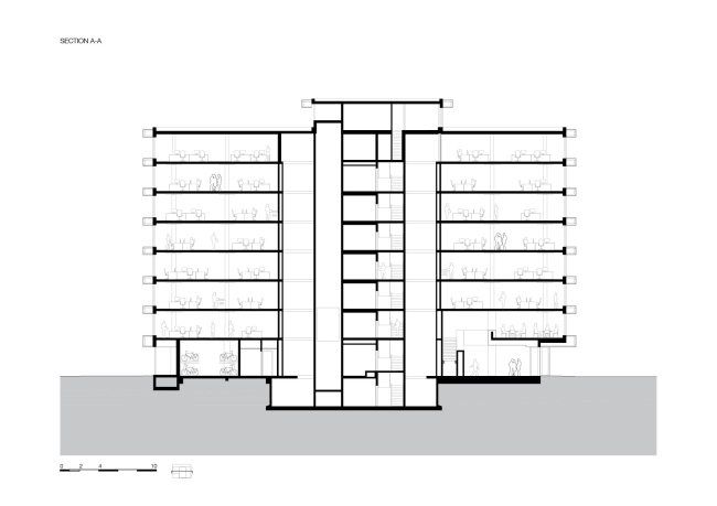
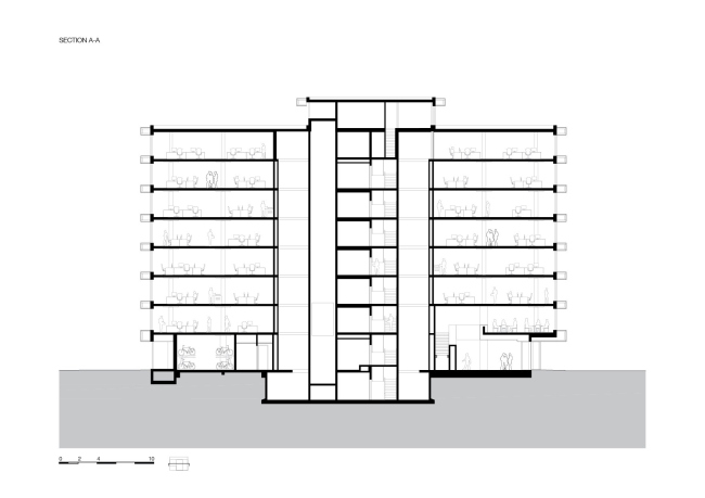
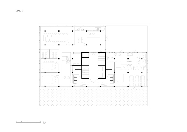
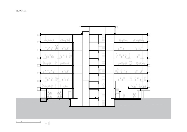
Изначальная высота этажей в три метра не позволяет проложить сети под полом или за навесным потолком, но в остальном архитекторы максимально разгрузили интерьер, открыли его солнечному свету и видам города.
 
Офисное здание De Walvis
Офисное здание De Walvis
© KAAN Architecten

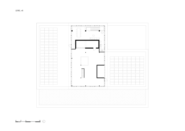
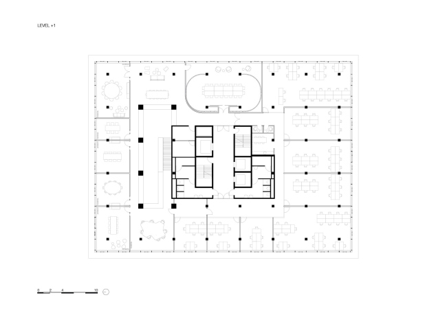
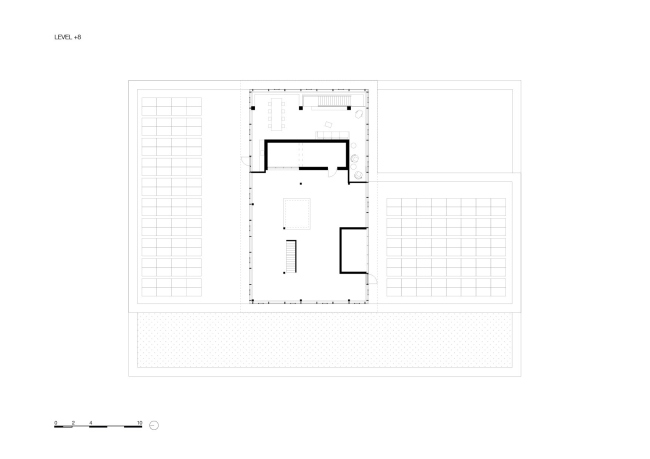
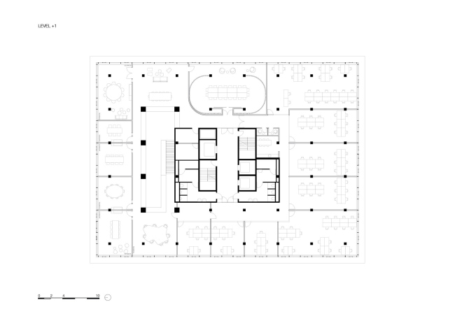
Первый этаж с мраморным вестибюлем уменьшен в размерах, а завершавший здание тяжелый «антаблемент», как его называют архитекторы, полностью убран. Вместо него часть кровли сделали зеленой.
 
Офисное здание De Walvis Фото © Sebastian van Damme
Офисное здание De Walvis
Фото © Sebastian van Damme
Офисное здание De Walvis Фото © Sebastian van Damme
Офисное здание De Walvis
Фото © Sebastian van Damme
Офисное здание De Walvis Фото © Sebastian van Damme
Офисное здание De Walvis
Фото © Sebastian van Damme
Офисное здание De Walvis Фото © Sebastian van Damme
Офисное здание De Walvis
Фото © Sebastian van Damme
Офисное здание De Walvis
Офисное здание De Walvis
© KAAN Architecten
Офисное здание De Walvis Фото © Sebastian van Damme
Офисное здание De Walvis
Фото © Sebastian van Damme
Офисное здание De Walvis Фото © Sebastian van Damme
Офисное здание De Walvis
Фото © Sebastian van Damme
Офисное здание De Walvis Фото © Sebastian van Damme
Офисное здание De Walvis
Фото © Sebastian van Damme
Офисное здание De Walvis Фото © Dominique Panhuysen
Офисное здание De Walvis
Фото © Dominique Panhuysen
Офисное здание De Walvis Фото © Sebastian van Damme
Офисное здание De Walvis
Фото © Sebastian van Damme
Офисное здание De Walvis Фото © Sebastian van Damme
Офисное здание De Walvis
Фото © Sebastian van Damme
Офисное здание De Walvis
Офисное здание De Walvis
Фото © Sebastian van Damme
Офисное здание De Walvis
Офисное здание De Walvis
Фото © Sebastian van Damme
Офисное здание De Walvis
Офисное здание De Walvis
Фото © Sebastian van Damme
Офисное здание De Walvis
Офисное здание De Walvis
Фото © Dominique Panhuysen
Офисное здание De Walvis
Офисное здание De Walvis
Фото © Dominique Panhuysen
Офисное здание De Walvis Фото © Sebastian van Damme
Офисное здание De Walvis
Фото © Sebastian van Damme
Офисное здание De Walvis Фото © Dominique Panhuysen
Офисное здание De Walvis
Фото © Dominique Panhuysen
Офисное здание De Walvis Фото © Dominique Panhuysen
Офисное здание De Walvis
Фото © Dominique Panhuysen
Офисное здание De Walvis
Офисное здание De Walvis
Фото © Dominique Panhuysen
Офисное здание De Walvis
Офисное здание De Walvis
Фото © Sebastian van Damme
Офисное здание De Walvis
Офисное здание De Walvis
Фото © Sebastian van Damme
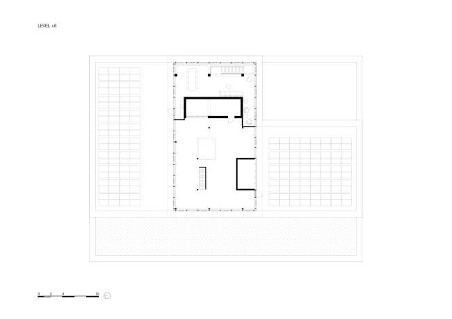
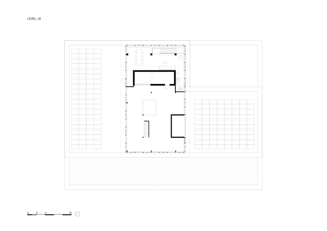
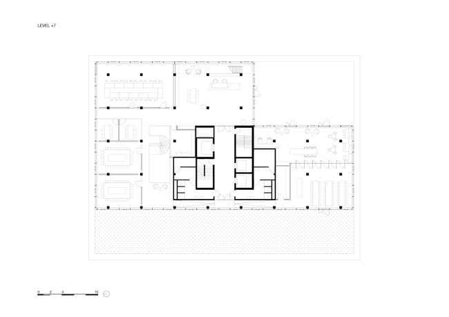
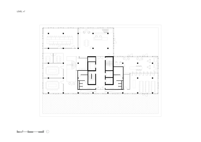
Офисное здание De Walvis
Офисное здание De Walvis
© KAAN Architecten
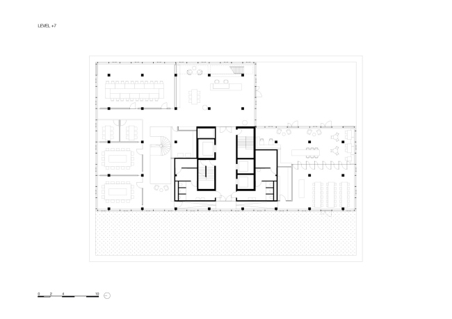
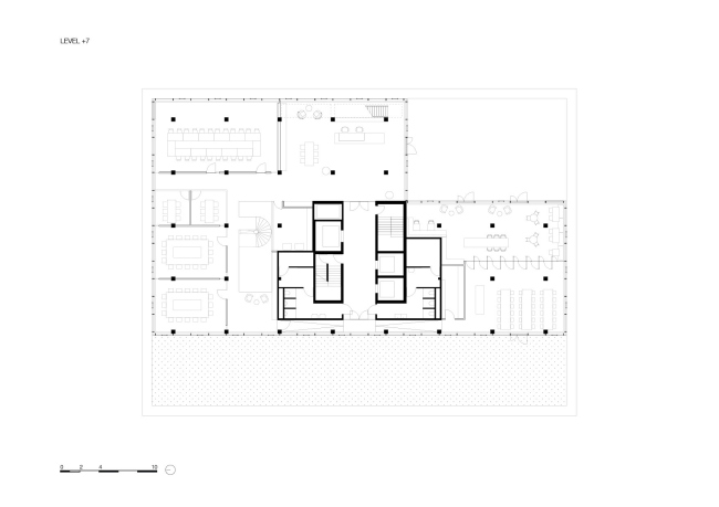
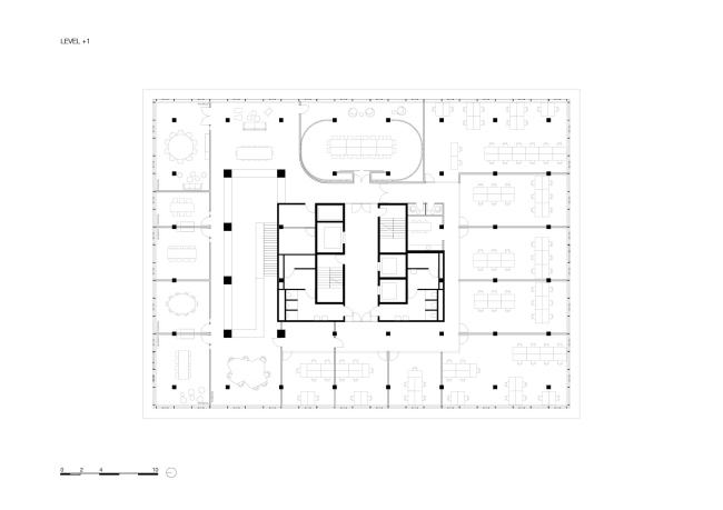
Офисное здание De Walvis
Офисное здание De Walvis
© KAAN Architecten
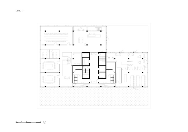
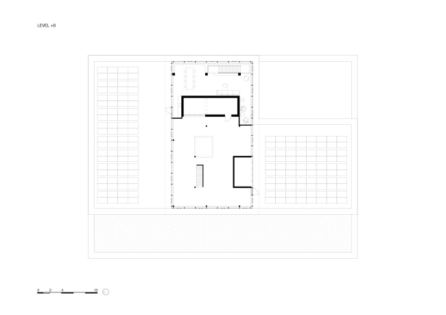
Офисное здание De Walvis
Офисное здание De Walvis
© KAAN Architecten
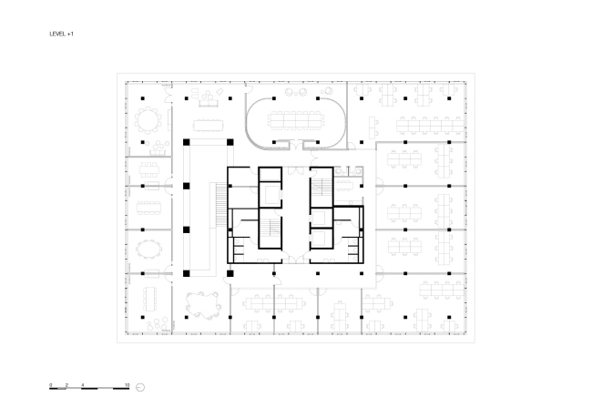
Офисное здание De Walvis
Офисное здание De Walvis
© KAAN Architecten
Офисное здание De Walvis
Офисное здание De Walvis
© KAAN Architecten
Офисное здание De Walvis
Офисное здание De Walvis
© KAAN Architecten
Офисное здание De Walvis
Офисное здание De Walvis
© KAAN Architecten
Офисное здание De Walvis
Офисное здание De Walvis
© KAAN Architecten
Офисное здание De Walvis
Офисное здание De Walvis
© KAAN Architecten
Офисное здание De Walvis
Офисное здание De Walvis
© KAAN Architecten
Офисное здание De Walvis
Офисное здание De Walvis
© KAAN Architecten
Офисное здание De Walvis
Офисное здание De Walvis
© KAAN Architecten
Офисное здание De Walvis
Офисное здание De Walvis
© KAAN Architecten