Размещено на портале Архи.ру (www.archi.ru)

20.08.2021

Острые профили

Нина Фролова
Объект:
Жилой комплекс Kannai Blade Residence
Адрес:
Япония, None, Иокогама.
Мастерская:
Akira Koyama + Key Operation Inc. / Architects

На фасадах жилого дома в Иокогаме тонкие панели из преднапряженного бетона защищают интерьер от солнца, разделяют балконы соседних квартир и кадрируют виды города. Авторы проекта – Akira Koyama + Key Operation Inc. / Architects.

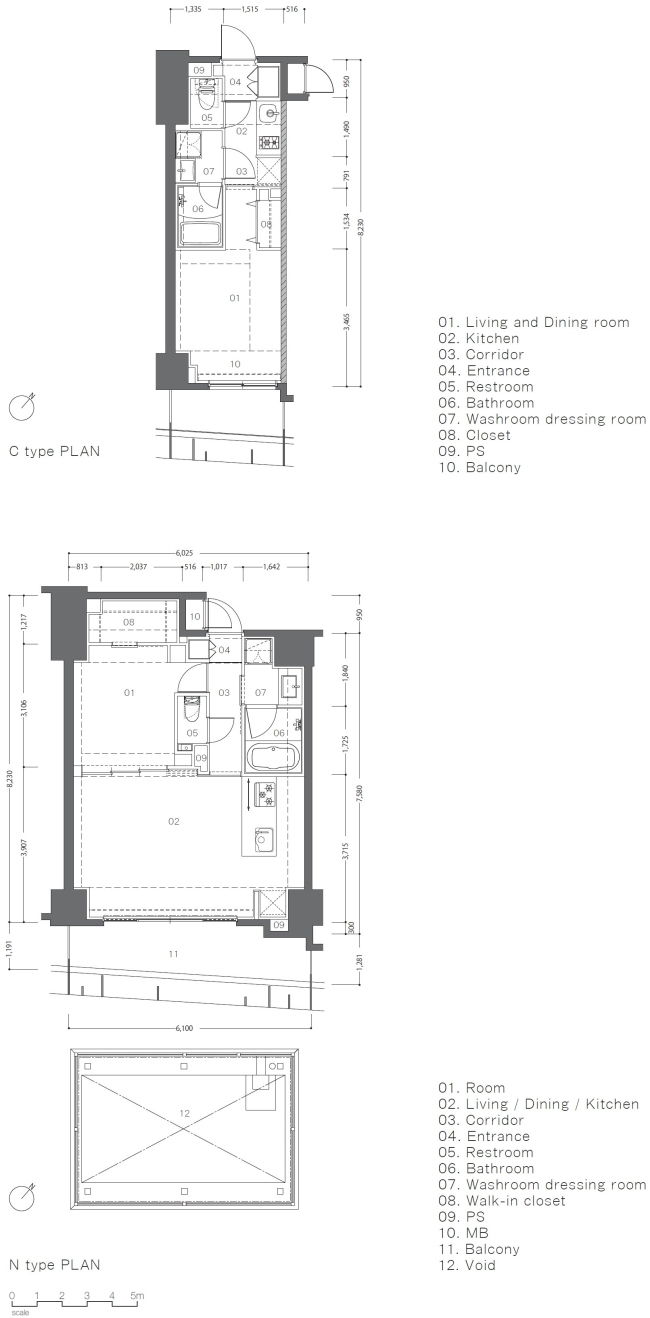
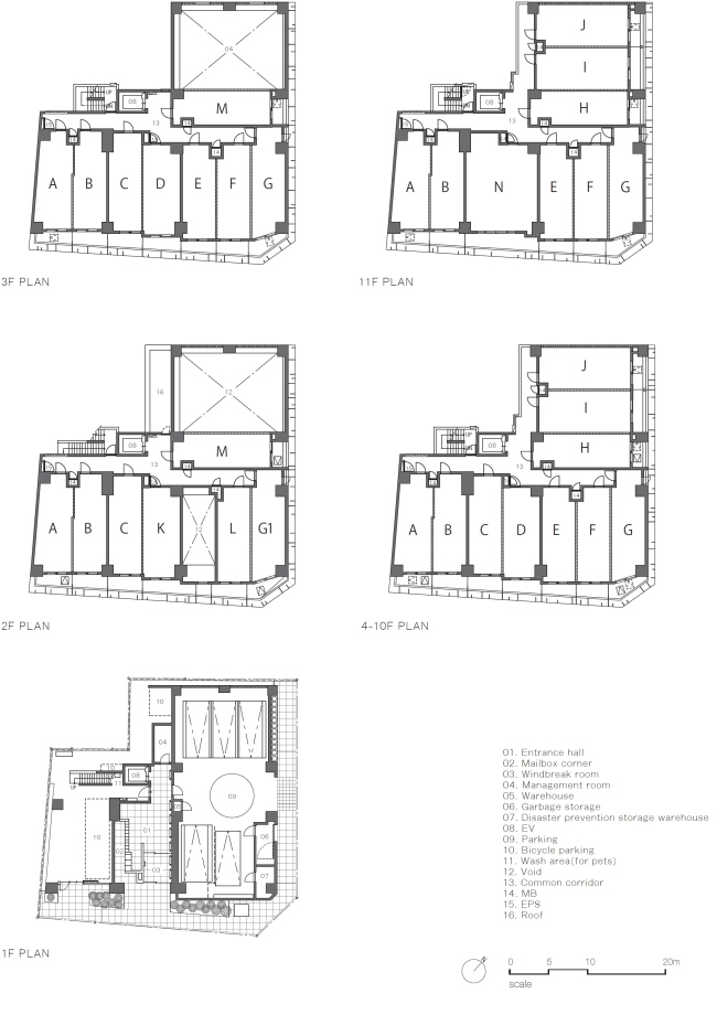
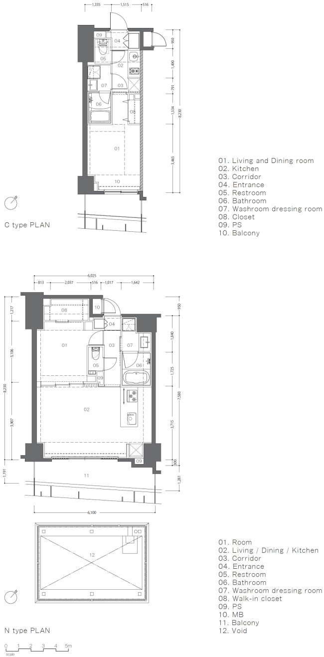
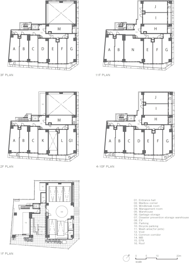
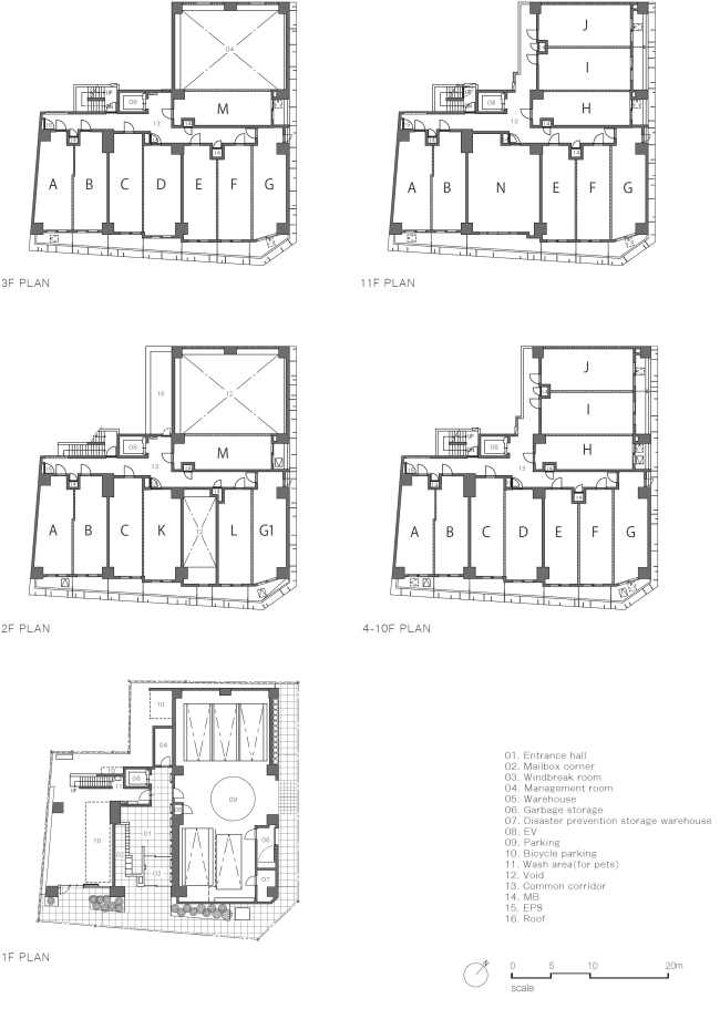
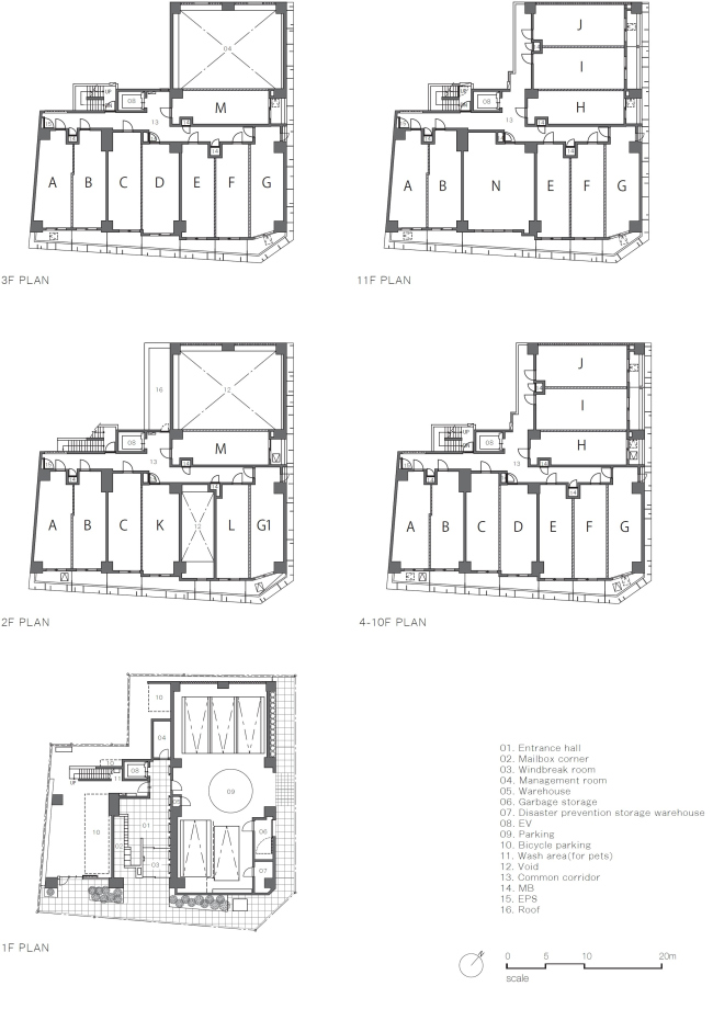
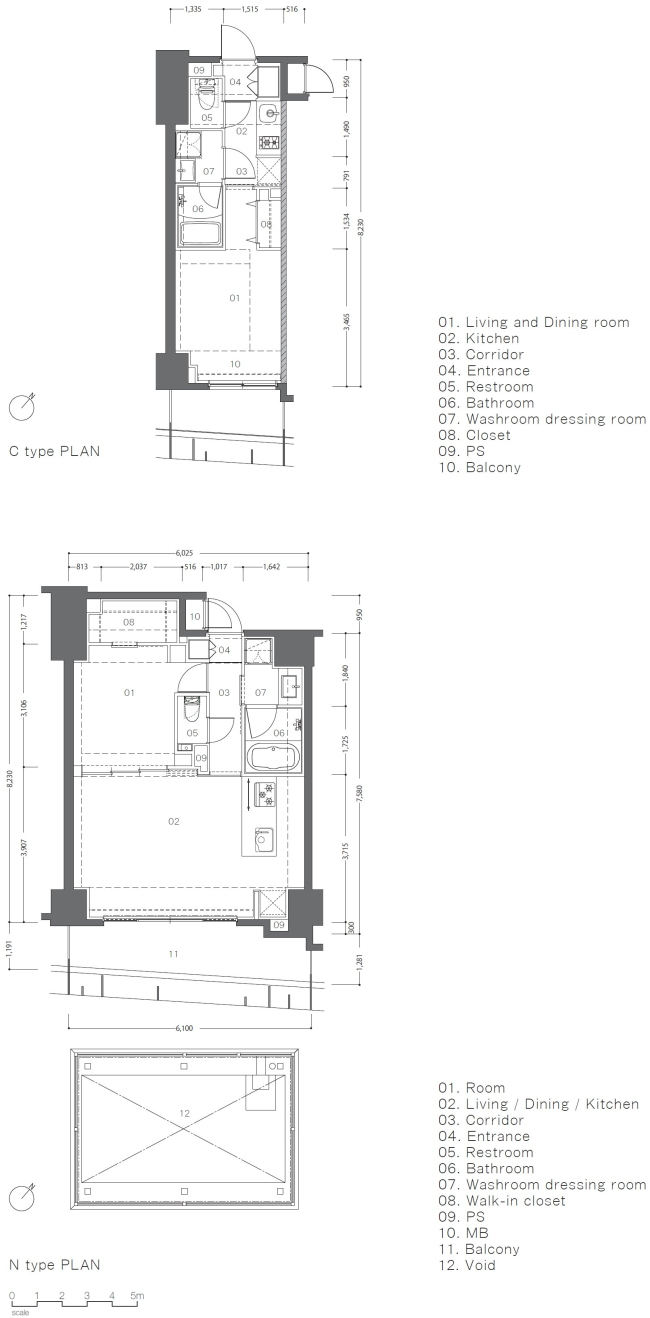
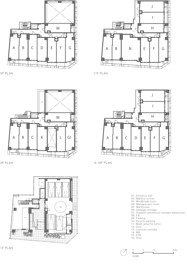
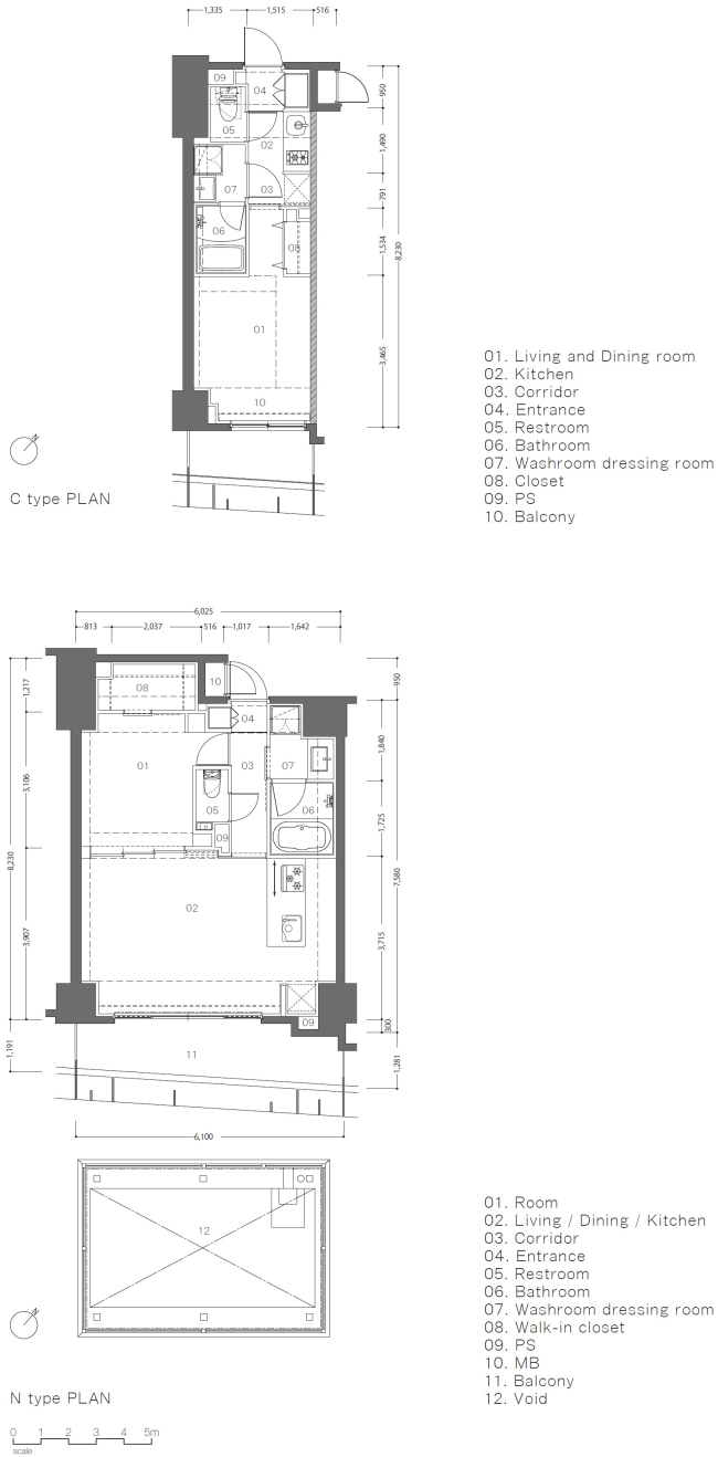
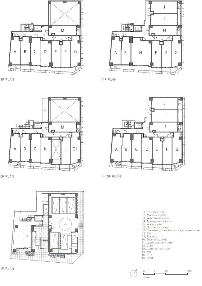
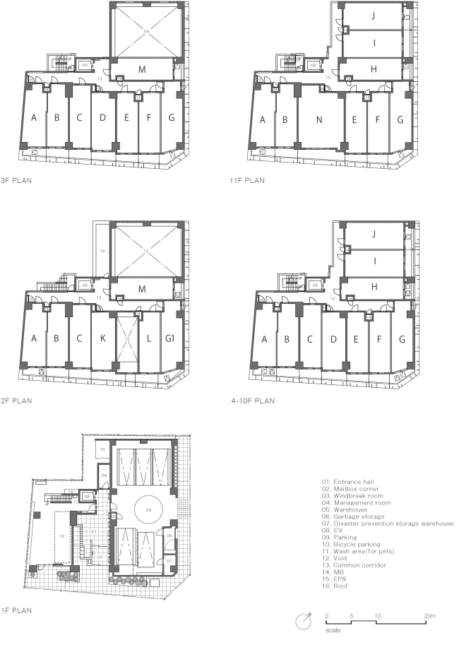
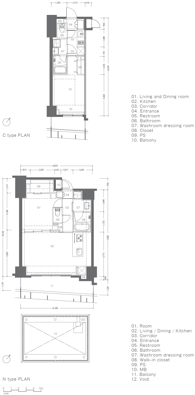
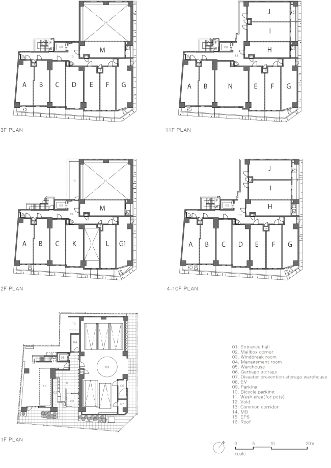
11-этажный Kannai Blade Residence, или ЖК Zoom, состоит из 94 квартир-студий площадью от 22 до 47 м: такое жилье рассчитано на одного человека или молодую пару без детей. Район Каннай, как Иокогама в целом, сильно пострадал в ходе Второй мировой войны, был после нее застроен заново, а в наши дни вновь переживает реконструкцию, так как прежние здания обветшали или устарели, например, не соответствуют современным требованиям сейсмической безопасности. В ходе этих перемен и появился этот жилой комплекс, сменив четырехэтажное офисное здание.
 

Жилой комплекс Kannai Blade Residence
Жилой комплекс Kannai Blade Residence
Фото © Toshiyuki Yano

Вокруг все же сохраняется немало послевоенных сооружений, поэтому архитекторы учли их особенности в своем проекте: подчеркнутые горизонтальные линии и скошенный угол. Но важным также было придать облику дома живость и даже игривость. С этой целью были использованы панели из гибридного преднапряженного бетона (Hybrid Prestressed Concrete, HPC), где вместо стальной арматуры использованы сплетенный в сеть углеродный кабель и полипропиленовые волокна. Такие панели могут при толщине 40 мм достигать высоты 5 метров и использоваться для несущих конструкций, но пока японские СНиПы этого не позволяют.
 
Жилой комплекс Kannai Blade Residence
Жилой комплекс Kannai Blade Residence
Фото © Toshiyuki Yano

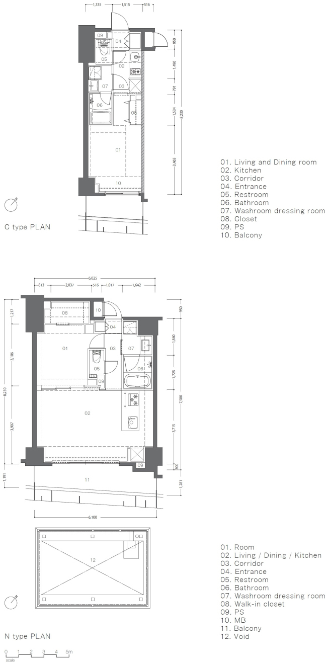
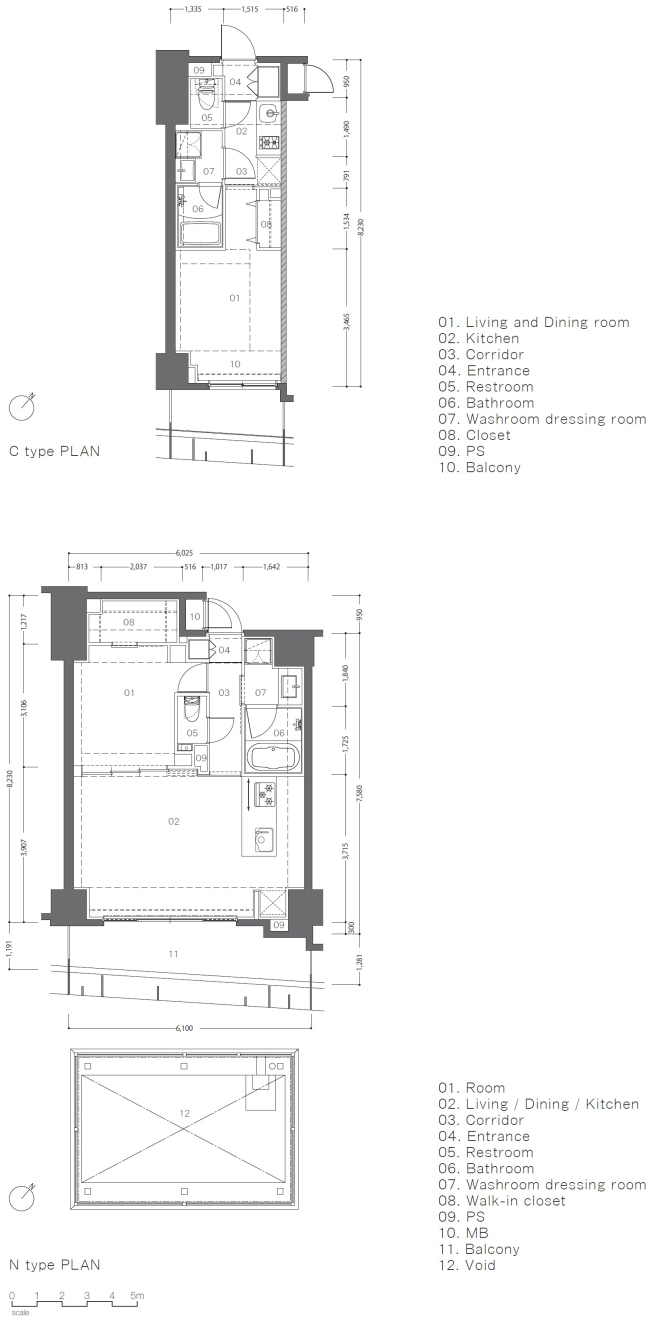
В случае Kannai Blade Residence панели толщиной 40 мм играют роль разделителей на балконах между квартирами (каждая – шириной всего 2,9 м), «солнцерезов» или же кадрируют виды Иокогамы. В зависимости от функции их глубина колеблется от 200 до 900 мм.
 
Жилой комплекс Kannai Blade Residence
Жилой комплекс Kannai Blade Residence
Фото © Toshiyuki Yano

Их небольшая толщина позволяет сравнение с мечом, лезвием, и отсюда происходит название проекта – Kannai Blade Residence.
Жилой комплекс Kannai Blade Residence Фото © Toshiyuki Yano
Жилой комплекс Kannai Blade Residence
Фото © Toshiyuki Yano
Жилой комплекс Kannai Blade Residence Фото © Toshiyuki Yano
Жилой комплекс Kannai Blade Residence
Фото © Toshiyuki Yano
Жилой комплекс Kannai Blade Residence Фото © Toshiyuki Yano
Жилой комплекс Kannai Blade Residence
Фото © Toshiyuki Yano
Жилой комплекс Kannai Blade Residence Фото © Toshiyuki Yano
Жилой комплекс Kannai Blade Residence
Фото © Toshiyuki Yano
Жилой комплекс Kannai Blade Residence Фото © Toshiyuki Yano
Жилой комплекс Kannai Blade Residence
Фото © Toshiyuki Yano

Панели имеют естественный серый цвет бетона, и чтобы оттенить их, архитекторы окрасили интерьеры и ограждения балконов в черный цвет. При этом пожарные лестницы скрыты за специальными панелями (в Японии балконы почти обязательны в каждом жилом доме именно из-за этой эвакуационной функции); внешние блоки кондиционеров и бойлеры, которые тоже традиционно располагаются на балконах, тоже тщательно скрыты от глаз прохожих.

Жилой комплекс Kannai Blade Residence
Жилой комплекс Kannai Blade Residence
Фото © Toshiyuki Yano
Жилой комплекс Kannai Blade Residence Фото © Toshiyuki Yano
Жилой комплекс Kannai Blade Residence
Фото © Toshiyuki Yano
Жилой комплекс Kannai Blade Residence Фото © Toshiyuki Yano
Жилой комплекс Kannai Blade Residence
Фото © Toshiyuki Yano
Жилой комплекс Kannai Blade Residence Фото © Toshiyuki Yano
Жилой комплекс Kannai Blade Residence
Фото © Toshiyuki Yano
Жилой комплекс Kannai Blade Residence Фото © Toshiyuki Yano
Жилой комплекс Kannai Blade Residence
Фото © Toshiyuki Yano
Жилой комплекс Kannai Blade Residence
Жилой комплекс Kannai Blade Residence
Фото © Toshiyuki Yano


Жилой комплекс Kannai Blade Residence Фото © Toshiyuki Yano
Жилой комплекс Kannai Blade Residence
Фото © Toshiyuki Yano
Жилой комплекс Kannai Blade Residence Фото © Toshiyuki Yano
Жилой комплекс Kannai Blade Residence
Фото © Toshiyuki Yano
Жилой комплекс Kannai Blade Residence Фото © Toshiyuki Yano
Жилой комплекс Kannai Blade Residence
Фото © Toshiyuki Yano
Жилой комплекс Kannai Blade Residence Фото © Toshiyuki Yano
Жилой комплекс Kannai Blade Residence
Фото © Toshiyuki Yano
Жилой комплекс Kannai Blade Residence Фото © Toshiyuki Yano
Жилой комплекс Kannai Blade Residence
Фото © Toshiyuki Yano
Жилой комплекс Kannai Blade Residence Фото © Toshiyuki Yano
Жилой комплекс Kannai Blade Residence
Фото © Toshiyuki Yano
Жилой комплекс Kannai Blade Residence Фото © Toshiyuki Yano
Жилой комплекс Kannai Blade Residence
Фото © Toshiyuki Yano
Жилой комплекс Kannai Blade Residence Фото © Toshiyuki Yano
Жилой комплекс Kannai Blade Residence
Фото © Toshiyuki Yano
Жилой комплекс Kannai Blade Residence Фото © Toshiyuki Yano
Жилой комплекс Kannai Blade Residence
Фото © Toshiyuki Yano
Жилой комплекс Kannai Blade Residence Фото © Toshiyuki Yano
Жилой комплекс Kannai Blade Residence
Фото © Toshiyuki Yano
Жилой комплекс Kannai Blade Residence Фото © Toshiyuki Yano
Жилой комплекс Kannai Blade Residence
Фото © Toshiyuki Yano
Жилой комплекс Kannai Blade Residence Фото © Toshiyuki Yano
Жилой комплекс Kannai Blade Residence
Фото © Toshiyuki Yano
Жилой комплекс Kannai Blade Residence Фото © Toshiyuki Yano
Жилой комплекс Kannai Blade Residence
Фото © Toshiyuki Yano
Жилой комплекс Kannai Blade Residence Фото © Toshiyuki Yano
Жилой комплекс Kannai Blade Residence
Фото © Toshiyuki Yano
Жилой комплекс Kannai Blade Residence Фото © Toshiyuki Yano
Жилой комплекс Kannai Blade Residence
Фото © Toshiyuki Yano
Жилой комплекс Kannai Blade Residence Фото © Toshiyuki Yano
Жилой комплекс Kannai Blade Residence
Фото © Toshiyuki Yano
Жилой комплекс Kannai Blade Residence Фото © Toshiyuki Yano
Жилой комплекс Kannai Blade Residence
Фото © Toshiyuki Yano
Жилой комплекс Kannai Blade Residence Фото © Toshiyuki Yano
Жилой комплекс Kannai Blade Residence
Фото © Toshiyuki Yano
Жилой комплекс Kannai Blade Residence Фото © Toshiyuki Yano
Жилой комплекс Kannai Blade Residence
Фото © Toshiyuki Yano
Жилой комплекс Kannai Blade Residence Фото © Toshiyuki Yano
Жилой комплекс Kannai Blade Residence
Фото © Toshiyuki Yano
Жилой комплекс Kannai Blade Residence Фото © Toshiyuki Yano
Жилой комплекс Kannai Blade Residence
Фото © Toshiyuki Yano
Жилой комплекс Kannai Blade Residence Фото © Toshiyuki Yano
Жилой комплекс Kannai Blade Residence
Фото © Toshiyuki Yano
Жилой комплекс Kannai Blade Residence Фото © Toshiyuki Yano
Жилой комплекс Kannai Blade Residence
Фото © Toshiyuki Yano
Жилой комплекс Kannai Blade Residence Фото © Toshiyuki Yano
Жилой комплекс Kannai Blade Residence
Фото © Toshiyuki Yano
Жилой комплекс Kannai Blade Residence Фото © Toshiyuki Yano
Жилой комплекс Kannai Blade Residence
Фото © Toshiyuki Yano
Жилой комплекс Kannai Blade Residence Фото © Toshiyuki Yano
Жилой комплекс Kannai Blade Residence
Фото © Toshiyuki Yano
Жилой комплекс Kannai Blade Residence
Жилой комплекс Kannai Blade Residence
Фото © Toshiyuki Yano
Жилой комплекс Kannai Blade Residence
Жилой комплекс Kannai Blade Residence
Фото © Toshiyuki Yano
Жилой комплекс Kannai Blade Residence
Жилой комплекс Kannai Blade Residence
Фото © Toshiyuki Yano
Жилой комплекс Kannai Blade Residence
Жилой комплекс Kannai Blade Residence
© Akira Koyama + Key Operation Inc./ Architects
Жилой комплекс Kannai Blade Residence
Жилой комплекс Kannai Blade Residence
© Akira Koyama + Key Operation Inc./ Architects
Жилой комплекс Kannai Blade Residence
Жилой комплекс Kannai Blade Residence
© Akira Koyama + Key Operation Inc./ Architects
Жилой комплекс Kannai Blade Residence © Akira Koyama + Key Operation Inc./ Architects
Жилой комплекс Kannai Blade Residence
© Akira Koyama + Key Operation Inc./ Architects
Жилой комплекс Kannai Blade Residence © Akira Koyama + Key Operation Inc./ Architects
Жилой комплекс Kannai Blade Residence
© Akira Koyama + Key Operation Inc./ Architects
Жилой комплекс Kannai Blade Residence © Akira Koyama + Key Operation Inc./ Architects
Жилой комплекс Kannai Blade Residence
© Akira Koyama + Key Operation Inc./ Architects
Жилой комплекс Kannai Blade Residence
Жилой комплекс Kannai Blade Residence
© Akira Koyama + Key Operation Inc./ Architects
Жилой комплекс Kannai Blade Residence
Жилой комплекс Kannai Blade Residence
© Akira Koyama + Key Operation Inc./ Architects
Жилой комплекс Kannai Blade Residence
Жилой комплекс Kannai Blade Residence
© Akira Koyama + Key Operation Inc./ Architects