Размещено на портале Архи.ру (www.archi.ru)

19.08.2021

«Любимый пациент»

Нина Фролова
Объект:
Новая национальная галерея – реконструкция
Адрес:
Германия, None, Берлин.

В Берлине открывается после реконструкции и реставрации по проекту David Chipperfield Architects Новая национальная галерея – позднее творение Людвига Мис ван дер Роэ.

Изначально открывшаяся в 1968 галерея была задумана как символ новой ФРГ: пространство для современного искусства авторства самого знаменитого немецкого архитектора. Людвиг Мис ван дер Роэ работал над этим зданием – единственным построенным им в Европе после эмиграции – вместе со своим внуком, Дирком Лоханом. Новая национальная галерея, часть комплекса Культурфорум, западноберлинского «акрополя», должна была стать знаком будущего, но, скорее, завершила эпоху, став одной из последних построек – как своего автора, так и классического модернизма.
 

Новая Национальная галерея в Берлине – реконструкция
Новая Национальная галерея в Берлине – реконструкция
Проект David Chipperfield Architects. Фотография © Simon Menges

В случае этого здания Мис, как и всегда, стремился к точному воплощению своего замысла – идеальной точности и завершенности форм и пропорций. Этого достигли в ущерб функциональности, что стало причиной определенных технических проблем, сделавших музей сложным в эксплуатации. Кроме того, свою роль сыграло время, расположение в центре мегаполиса, использование типичных для своего времени материалов или, напротив, новых, еще не опробованных по-настоящему методов. В начале XXI века все изначальные и возникшие постепенно проблемы требовали решения, которое и было поручено найти бюро Дэвида Чипперфильда.
 
Новая Национальная галерея – реконструкция
Новая Национальная галерея – реконструкция
Фото © Simon Menges

Тот сравнивает свою работу с хирургическим вмешательством, в результате чего «любимый пациент» вернулся в прежнем виде, но с лучшей работой всех систем. Подход заключался в решении технических проблем, но также в сохранении всех следов времени (более ярко такой метод проявился при работе DCA в Новом музее). Поэтому, например, гранит облицовки подиума не был очищен до состоянии новизны, а новые плиты, которыми пришлось заменить не поддающиеся реставрации, были тонированы в цвет сохранившихся. То же самое касалось бронзовых и деревянных деталей.
 
Новая Национальная галерея – реконструкция
Новая Национальная галерея – реконструкция
Фото © Simon Menges

Здание было поделено на две части со смысловой точки зрения. Вневременная форма храма на подиуме, сталь и бронза, стекло, древесина дуба, гранит и мрамор сочетаются со свидетельствами времени: характерными для 1960-х светильниками и дизайном санузлов, шторами, ковровым покрытием (его пришлось восстановить по фотографиям, так как его давно убрали), полимерными напольными плитами, теплым тоном освещения, фактурными обоями под покраску и т.д. Максимально сохранялось и то, и другое, даже изначальные инженерные системы, чья замена была совершенно необходима, были оставлены фрагментарно как часть подлинного памятника, уже без всякой функции. Такую же роль играют настенные телефонные аппараты и выключатели: это знаки эпохи, дополняющие образ памятника архитектуры. Вентиляционные решетки и светильники (теперь со светодиодными лампами) продолжили свою «работу», грузовой лифт для экспонатов и система крепления штор тоже сохранены и используются.
 
Вид Новой национальной галереи в 1968 Фото © Archiv Neue Nationalgalerie, Nationalgalerie,
Staatliche Museen zu Berlin, Reinhard Friedrich
Вид Новой национальной галереи в 1968
Фото © Archiv Neue Nationalgalerie, Nationalgalerie, Staatliche Museen zu Berlin, Reinhard Friedrich
Установка стальной кровли. 5 апреля 1967 года Фото © Landesarchiv Berlin,
фотограф: Ludwig Ehlers
Установка стальной кровли. 5 апреля 1967 года
Фото © Landesarchiv Berlin, фотограф: Ludwig Ehlers
Вид Новой национальной галереи в 1968 Фото © Landesarchiv Berlin,
фотограф: Horst Siegmann
Вид Новой национальной галереи в 1968
Фото © Landesarchiv Berlin, фотограф: Horst Siegmann
Вид Новой национальной галереи в 1968 Фото © Landesarchiv Berlin,
фотограф: Horst Siegmann
Вид Новой национальной галереи в 1968
Фото © Landesarchiv Berlin, фотограф: Horst Siegmann
Вид Новой национальной галереи в 1968 Фото © Staatliche Museen zu Berlin,
Zentralarchiv, Reinhard Friedrich
Вид Новой национальной галереи в 1968
Фото © Staatliche Museen zu Berlin, Zentralarchiv, Reinhard Friedrich
Вид Новой национальной галереи в 1968 Фото © Staatliche Museen zu Berlin, Zentralarchiv, Reinhard Friedrich
Вид Новой национальной галереи в 1968
Фото © Staatliche Museen zu Berlin, Zentralarchiv, Reinhard Friedrich

Архитекторы сохранили «кожу» и «кости», однако исчезло – незаметно для посетителей – немало «мяса»: изоляционных материалов, в том числе опасных – асбеста и искусственной минваты, стяжка, штукатурка и т.д. Инженерные системы заменены, при этом восстановлена система отопления под поверхностью пола, ныне дополненная системой охлаждения. Она стала протекать и давать сбои вскоре после сдачи здания, поэтому ее отключили и расставили в залах батареи, которые теперь убраны.
 
Новая Национальная галерея – реконструкция
Новая Национальная галерея – реконструкция
Фото © Simon Menges

Отдельную проблему представлял герметичный фасад, который сильно запотевал при температуре ниже 4 градусов выше нуля. Конденсат архитекторы сочли уже привычной частью памятника, поэтому он продолжит скапливаться, но в меньших количествах, и все части фасада теперь защищены от коррозии. Фасад остался герметичным с одним слоем остекления из двухслойного ламинированного безосколочного стекла (2х12 мм, вдвое толще прежнего). В прошлом стеклянные панели нередко выпадали и разбивались (опасность для публики стала одной из причин реконструкции), так как структура фасада не учитывала его сжатие и растяжение при перепадах температуры, а размеры стекла были недостаточными. Сейчас, благодаря обновленным узлам, все части фасада стали подвижными и эта проблема тоже решена.
 
Новая Национальная галерея – реконструкция Фото © Simon Menges
Новая Национальная галерея – реконструкция
Фото © Simon Menges
Новая Национальная галерея – реконструкция Фото © Simon Menges
Новая Национальная галерея – реконструкция
Фото © Simon Menges
Новая Национальная галерея – реконструкция Фото © Simon Menges
Новая Национальная галерея – реконструкция
Фото © Simon Menges
Новая Национальная галерея – реконструкция Фото © Simon Menges
Новая Национальная галерея – реконструкция
Фото © Simon Menges

Бетонный подиум покрыт гранитными плитами по схеме вентилируемого фасада: это был один из первых «каменных» примеров такой системы в Германии, поэтому было важно сохранить и ее саму. При этом были ликвидированы добавленные позже деформационные швы, их заменили стандартные по ширине, 6-миллиметровые. В ходе работ плиты были демонтированы, а затем возвращены каждая на свое прежнее место.
 
Новая Национальная галерея – реконструкция
Новая Национальная галерея – реконструкция
Фото © Simon Menges

Состояние здания на момент открытия восстановлено и в планировках нижнего уровня, где гардероб и книжный магазин помещены на место запасника живописи и скульптуры, а экспонаты теперь хранятся в бывших технических помещениях (где также готовят произведения к выставкам) и в новом пространстве под террасой подиума. Новое пространство получили и инженерные системы. К юго-восточной лестнице добавили пандус: теперь галерея стала безбарьерной.
 
Новая Национальная галерея – реконструкция Фото © Simon Menges
Новая Национальная галерея – реконструкция
Фото © Simon Menges
Новая Национальная галерея – реконструкция Фото © Simon Menges
Новая Национальная галерея – реконструкция
Фото © Simon Menges
Новая Национальная галерея – реконструкция Фото © Simon Menges
Новая Национальная галерея – реконструкция
Фото © Simon Menges
Новая Национальная галерея – реконструкция Фото © Simon Menges
Новая Национальная галерея – реконструкция
Фото © Simon Menges
Новая Национальная галерея – реконструкция Фото © Simon Menges
Новая Национальная галерея – реконструкция
Фото © Simon Menges
Новая Национальная галерея – реконструкция Фото © Simon Menges
Новая Национальная галерея – реконструкция
Фото © Simon Menges

По отношению к этому проекту бюро Дэвида Чипперфильда называет себя «невидимыми архитекторами»: они трактовали Новую национальную галерею как настоящий памятник наследия и соблюдали все принятые реставрационные нормы несмотря на то, что ее здания-ровесники чаще идут под снос, чем тщательно восстанавливаются. Проведенные работы должны обеспечить музею успешное функционирование на ближайшие 40–50 лет.
Новая Национальная галерея – реконструкция
Новая Национальная галерея – реконструкция
Фото © Simon Menges
Новая Национальная галерея – реконструкция Фото © Simon Menges
Новая Национальная галерея – реконструкция
Фото © Simon Menges
Новая Национальная галерея – реконструкция Фото © Simon Menges
Новая Национальная галерея – реконструкция
Фото © Simon Menges
Новая Национальная галерея – реконструкция Фото © Simon Menges
Новая Национальная галерея – реконструкция
Фото © Simon Menges
Новая Национальная галерея – реконструкция
Новая Национальная галерея – реконструкция
© David Chipperfield Architects for Bundesamt für Bauwesen und Raumordnung
Плиты подиума после их демонтажа Фото © Christian Martin
Плиты подиума после их демонтажа
Фото © Christian Martin
Новая Национальная галерея в ходе реконструкции Фото © Thomas Bruns for
David Chipperfield Architects
Новая Национальная галерея в ходе реконструкции
Фото © Thomas Bruns for David Chipperfield Architects
Новая Национальная галерея в ходе реконструкции Фото © Ute Zscharnt for David Chipperfield Architects
Новая Национальная галерея в ходе реконструкции
Фото © Ute Zscharnt for David Chipperfield Architects
Новая Национальная галерея в ходе реконструкции Фото © Ute Zscharnt for David Chipperfield Architects
Новая Национальная галерея в ходе реконструкции
Фото © Ute Zscharnt for David Chipperfield Architects
Новая Национальная галерея в ходе реконструкции Фото © Ute Zscharnt for David Chipperfield Architects
Новая Национальная галерея в ходе реконструкции
Фото © Ute Zscharnt for David Chipperfield Architects
Новая Национальная галерея в ходе реконструкции Фото © Ute Zscharnt for David Chipperfield Architects
Новая Национальная галерея в ходе реконструкции
Фото © Ute Zscharnt for David Chipperfield Architects
Новая Национальная галерея в ходе реконструкции Фото © Ute Zscharnt for David Chipperfield Architects
Новая Национальная галерея в ходе реконструкции
Фото © Ute Zscharnt for David Chipperfield Architects
Новая Национальная галерея – реконструкция
Новая Национальная галерея – реконструкция
© David Chipperfield Architects for Bundesamt für Bauwesen und Raumordnung
Новая Национальная галерея – реконструкция
Новая Национальная галерея – реконструкция
© David Chipperfield Architects for Bundesamt für Bauwesen und Raumordnung
Новая Национальная галерея – реконструкция
Новая Национальная галерея – реконструкция
© David Chipperfield Architects for Bundesamt für Bauwesen und Raumordnung
Новая Национальная галерея – реконструкция
Новая Национальная галерея – реконструкция
© David Chipperfield Architects for Bundesamt für Bauwesen und Raumordnung
Новая Национальная галерея – реконструкция
Новая Национальная галерея – реконструкция
© David Chipperfield Architects for Bundesamt für Bauwesen und Raumordnung
Новая Национальная галерея – реконструкция
Новая Национальная галерея – реконструкция
© David Chipperfield Architects for Bundesamt für Bauwesen und Raumordnung
Новая Национальная галерея – реконструкция
Новая Национальная галерея – реконструкция
© David Chipperfield Architects for Bundesamt für Bauwesen und Raumordnung
Новая Национальная галерея – реконструкция
Новая Национальная галерея – реконструкция
© David Chipperfield Architects for Bundesamt für Bauwesen und Raumordnung
Новая Национальная галерея – реконструкция
Новая Национальная галерея – реконструкция
© David Chipperfield Architects for Bundesamt für Bauwesen und Raumordnung
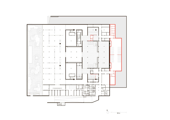
Новая Национальная галерея – реконструкция. Красным показаны изменения исторического здания при реконструкции
Новая Национальная галерея – реконструкция. Красным показаны изменения исторического здания при реконструкции
© David Chipperfield Architects for Bundesamt für Bauwesen und Raumordnung
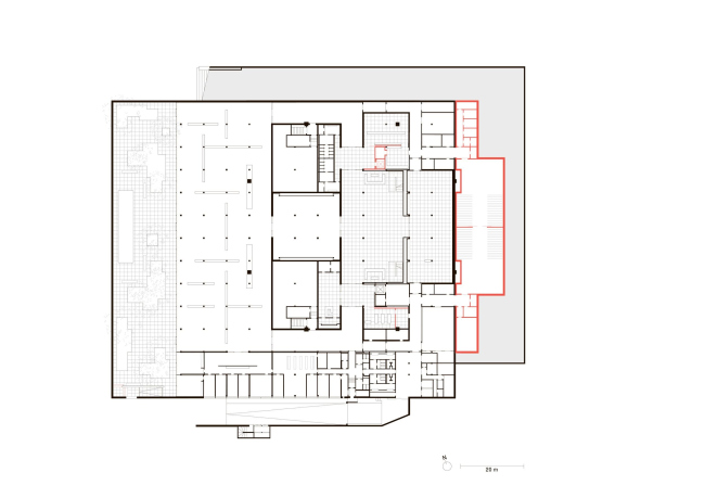
Новая Национальная галерея – реконструкция. Красным показаны изменения исторического здания при реконструкции
Новая Национальная галерея – реконструкция. Красным показаны изменения исторического здания при реконструкции
© David Chipperfield Architects for Bundesamt für Bauwesen und Raumordnung
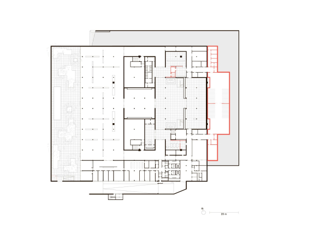
Новая Национальная галерея – реконструкция. Красным показаны изменения исторического здания при реконструкции
Новая Национальная галерея – реконструкция. Красным показаны изменения исторического здания при реконструкции
© David Chipperfield Architects for Bundesamt für Bauwesen und Raumordnung
Новая Национальная галерея – реконструкция. Красным показаны изменения исторического здания при реконструкции
Новая Национальная галерея – реконструкция. Красным показаны изменения исторического здания при реконструкции
© David Chipperfield Architects for Bundesamt für Bauwesen und Raumordnung
Новая Национальная галерея – реконструкция. Красным показаны изменения исторического здания при реконструкции
Новая Национальная галерея – реконструкция. Красным показаны изменения исторического здания при реконструкции
© David Chipperfield Architects for Bundesamt für Bauwesen und Raumordnung
Новая Национальная галерея – реконструкция. Красным показаны изменения исторического здания при реконструкции
Новая Национальная галерея – реконструкция. Красным показаны изменения исторического здания при реконструкции
© David Chipperfield Architects for Bundesamt für Bauwesen und Raumordnung
Новая Национальная галерея – реконструкция
Новая Национальная галерея – реконструкция
© David Chipperfield Architects for Bundesamt für Bauwesen und Raumordnung
Новая Национальная галерея – реконструкция
Новая Национальная галерея – реконструкция
© David Chipperfield Architects for Bundesamt für Bauwesen und Raumordnung
Новая Национальная галерея – реконструкция
Новая Национальная галерея – реконструкция
© David Chipperfield Architects for Bundesamt für Bauwesen und Raumordnung