Размещено на портале Архи.ру (www.archi.ru)

27.07.2021

Арт-трансформер

Нина Фролова
Объект:
Art Barn
Адрес:
Великобритания, None,

Art Barn, архив, хранилище работ и рисовальная студия британского скульптора Питера Рэндалла-Пейджа в холмах Девона, способен менять форму в зависимости от текущих нужд, а также сам себя обеспечивает электричеством. Автор проекта – Томас Рэндалл-Пейдж.

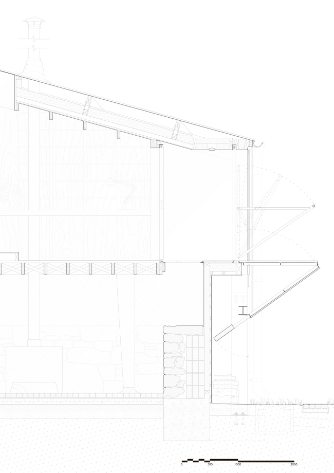
Art Barn, то есть «художественный сарай», – перестроенный коровник на границе сельскохозяйственных угодий и поросшей лесом долины реки Тейн в национальном парке Дартмур в графстве Девон. Скульптор Питер Рэндалл-Пейдж приобрел это строение еще в 2011, и затем шесть лет его сын, архитектор Томас Рэндалл-Пейдж, разрабатывал проект реконструкции (строительство началось только в 2017). Они в деталях обсуждали необходимые для архива, хранения скульптур, их периодической экспозиции и занятия рисованием аспекты будущей студии, хотя задание заказчика было изначально лаконичным: сохранить сдержанный и закрытый облик сарая, при этом наполнив его солнечным светом.
 

Art Barn
Art Barn
Фото © Jim Stephenson

Свет поступает внутрь сквозь проемы в кровле, но также можно раздвинуть «ворота» в продольных стенах, оставив стеклянные створки или же полностью раскрыть интерьер наружу. Кроме того, там есть и «откидной» балкон, позволяющий любоваться видами местности. Однако при отъезде Art Barn можно придать скромный, почти герметичный вид, напоминающий о его утилитарном происхождении.
 
Art Barn
Art Barn
Фото © Jim Stephenson

Здание поделено поперек на три части. Самая маленькая – это архив и «запасник», единственное помещение, где есть «настоящее» отопление и климат-контроль, причем очень тщательный. Самая просторная и светлая доля рассчитана на менее уязвимые работы, которые не требуют поддержания стабильной температуры. Третья часть находится ниже других, так как следует за перепадом рельефа. В ней помещена «Зимняя студия» из темной пробки на ножках: она и зона отдыха под ней отапливаются дровяными печами, причем встроенную поленницу проект тоже предусматривает.
 
Art Barn Фото © Jim Stephenson
Art Barn
Фото © Jim Stephenson
Art Barn Фото © Jim Stephenson
Art Barn
Фото © Jim Stephenson
Art Barn Фото © Jim Stephenson
Art Barn
Фото © Jim Stephenson
Art Barn Фото © Jim Stephenson
Art Barn
Фото © Jim Stephenson

Важным соображением при разработке проекта была его экологичность. Поэтому была максимально сохранена древесина коровника, к ней добавилось местное дерево – дуб, пихта Дугласа и кедр, гранит из отвала закрытой каменоломни в двух милях от места строительства, а также оцинкованная сталь. Из нее, например, сделан цоколь, чтобы защитить дерево от дождя.
 
Art Barn
Art Barn
Фото © Jim Stephenson

Кроме почти отсутствующей отопительной системы, Art Barn сам обеспечивает себя энергией с помощью солнечных батарей, к электросети он не подключен.
 
Art Barn
Art Barn
Фото © Jim Stephenson
Art Barn Фото © Jim Stephenson
Art Barn
Фото © Jim Stephenson
Art Barn Фото © Jim Stephenson
Art Barn
Фото © Jim Stephenson
Art Barn Фото © Jim Stephenson
Art Barn
Фото © Jim Stephenson
Art Barn Фото © Jim Stephenson
Art Barn
Фото © Jim Stephenson
Art Barn
Art Barn
Фото © Jim Stephenson
Art Barn
Art Barn
Фото © Jim Stephenson
Art Barn
Art Barn
Фото © Jim Stephenson
Art Barn
Art Barn
Фото © Jim Stephenson
Art Barn
Art Barn
Фото © Jim Stephenson
Art Barn Фото © Jim Stephenson
Art Barn
Фото © Jim Stephenson
Art Barn Фото © Jim Stephenson
Art Barn
Фото © Jim Stephenson
Art Barn Фото © Jim Stephenson
Art Barn
Фото © Jim Stephenson
Art Barn
Art Barn
Фото © Jim Stephenson
Art Barn
Art Barn
Фото © Jim Stephenson
Art Barn Фото © Jim Stephenson
Art Barn
Фото © Jim Stephenson
Art Barn Фото © Jim Stephenson
Art Barn
Фото © Jim Stephenson
Art Barn Фото © Jim Stephenson
Art Barn
Фото © Jim Stephenson
Art Barn Фото © Jim Stephenson
Art Barn
Фото © Jim Stephenson
Art Barn
Art Barn
Фото © Jim Stephenson
Art Barn
Art Barn
Фото © Jim Stephenson
Art Barn
Art Barn
Фото © Jim Stephenson
Art Barn
Art Barn
Фото © Jim Stephenson
Art Barn
Art Barn
Фото © Jim Stephenson
Art Barn
Art Barn
Фото © Jim Stephenson
Art Barn
Art Barn
Фото © Jim Stephenson
Art Barn
Art Barn
Фото © Jim Stephenson
Art Barn
Art Barn
Фото © Jim Stephenson
Art Barn
Art Barn
Фото © Jim Stephenson
Art Barn
Art Barn
© Thomas Randall-Page
Art Barn
Art Barn
© Thomas Randall-Page
Art Barn
Art Barn
© Thomas Randall-Page
Art Barn
Art Barn
© Thomas Randall-Page
Art Barn
Art Barn
© Thomas Randall-Page
Art Barn
Art Barn
© Thomas Randall-Page
Art Barn
Art Barn
© Thomas Randall-Page