Размещено на портале Архи.ру (www.archi.ru)

21.07.2021

Плавная консоль

Нина Фролова
Объект:
Региональная штаб-квартира Lebanese Swiss Bank (LSB)
Адрес:
Ливан, None, Сур.
Мастерская:
Domaine Public Architects

У здания банка в окрестностях ливанского города Сура нет привычных ограждений, а еще Domaine Public Architects удалось добавить в проект небольшую площадь.

Город Сур – древний финикийский Тир – страдал от хаотичного строительства в годы гражданской войны, но даже по ее окончании в 1991 новые нормы не решили проблему. Они были направлены на более интенсивную, в том числе точечную застройку в ущерб общественным пространствам, но остановить расползание не смогли.
 

Региональная штаб-квартира Lebanese Swiss Bank
Региональная штаб-квартира Lebanese Swiss Bank
Фото © Ieva Saudargaite

Здание банка LSB (Lebanese Swiss Bank) отмечает место нового квартала – бывшие сельскохозяйственные угодья, то есть на архитекторах лежала двойная ответственность: задать тон для построек, которые позже появятся рядом, и вернуть горожанам хотя бы часть занятого участка.
 
Региональная штаб-квартира Lebanese Swiss Bank
Региональная штаб-квартира Lebanese Swiss Bank
Фото © Ieva Saudargaite

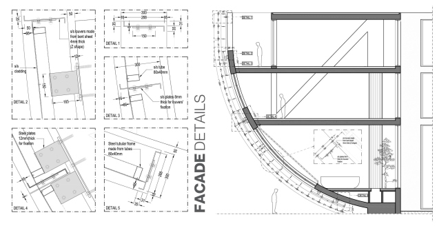
Выходом стала 9-метровая консоль, которая затеняет небольшую площадь, где можно устраивать выставки, концерты и другие мероприятия. Этот фасад – главный, при этом он обращен на юг, то есть сильней всего нагревается солнцем. Его изгиб в сочетании со стальным солнцезащитным экраном позволяет избежать основного жара летом, не закрывая при этом интерьер от низкого зимнего солнца. Стальные профили также и в прямом смысле защищают остекление, поэтому в проекте удалось обойтись без ограды, на которой настаивал заказчик.
 
Региональная штаб-квартира Lebanese Swiss Bank
Региональная штаб-квартира Lebanese Swiss Bank
Фото © Ieva Saudargaite

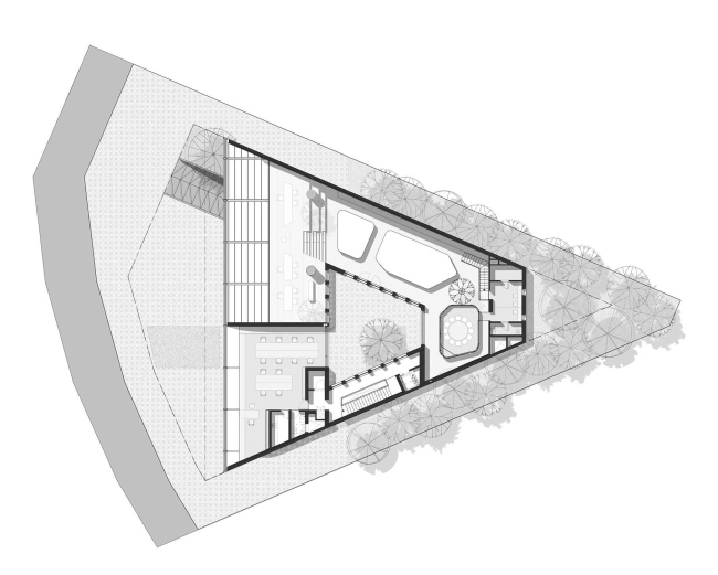
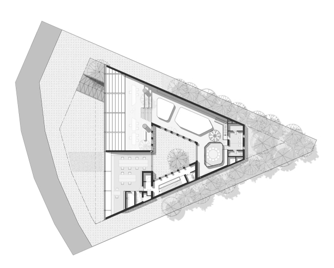
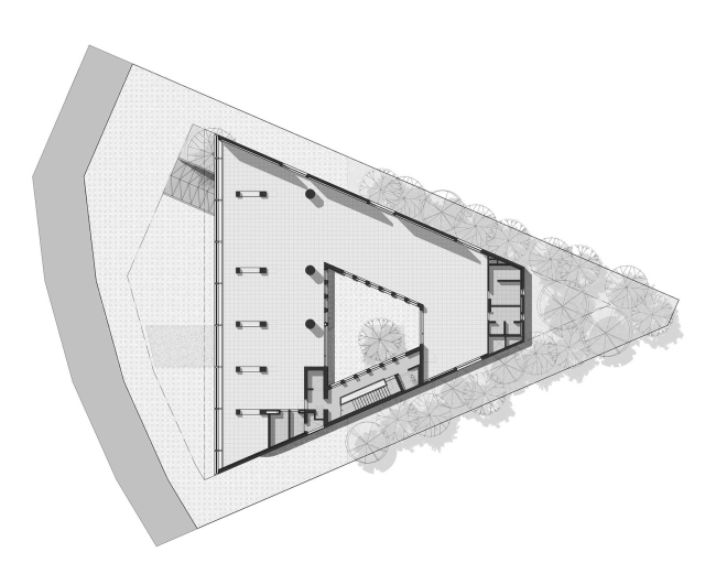
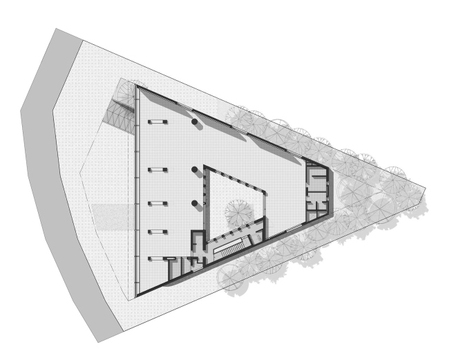
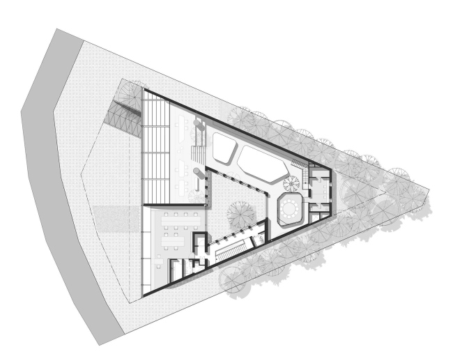
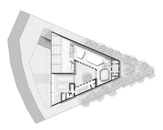
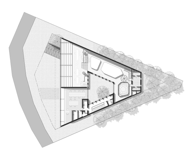
Трапециевидный внутренний двор обеспечивает в интерьерах естественное освещение и сквозную вентиляцию, что особенно важно, так как все фасады, кроме упомянутого южного, – почти монолитные и выполнены из бетона.
 
Региональная штаб-квартира Lebanese Swiss Bank
Региональная штаб-квартира Lebanese Swiss Bank
Фото © Ieva Saudargaite

Важным аспектом проекта стало «взаимодействие» со СНиПами: согласно действующим нормам, любое перекрытое пространство считается интерьерным и учитывается в доле застроенной площади участка, но так как не приносит дохода, оборачивается убытком для заказчика. Компенсацией за площадь под консолью стало создание внутреннего двора и открытой террасы на верхнем, четвертом этаже: эти пространства, напротив, вычитаются из площади интерьера.
 
Региональная штаб-квартира Lebanese Swiss Bank
Региональная штаб-квартира Lebanese Swiss Bank
Фото © Ieva Saudargaite

Материалы для публикации предоставлены V2COM.
Региональная штаб-квартира Lebanese Swiss Bank
Региональная штаб-квартира Lebanese Swiss Bank
Фото © Ieva Saudargaite
Региональная штаб-квартира Lebanese Swiss Bank
Региональная штаб-квартира Lebanese Swiss Bank
Фото © Ieva Saudargaite
Региональная штаб-квартира Lebanese Swiss Bank
Региональная штаб-квартира Lebanese Swiss Bank
Фото © Ieva Saudargaite
Региональная штаб-квартира Lebanese Swiss Bank
Региональная штаб-квартира Lebanese Swiss Bank
Фото © Ieva Saudargaite
Региональная штаб-квартира Lebanese Swiss Bank
Региональная штаб-квартира Lebanese Swiss Bank
Фото © Ieva Saudargaite
Региональная штаб-квартира Lebanese Swiss Bank
Региональная штаб-квартира Lebanese Swiss Bank
Фото © Ieva Saudargaite
Региональная штаб-квартира Lebanese Swiss Bank
Региональная штаб-квартира Lebanese Swiss Bank
Фото © Ieva Saudargaite
Региональная штаб-квартира Lebanese Swiss Bank
Региональная штаб-квартира Lebanese Swiss Bank
© Domaine Public Architects
Региональная штаб-квартира Lebanese Swiss Bank
Региональная штаб-квартира Lebanese Swiss Bank
© Domaine Public Architects
Региональная штаб-квартира Lebanese Swiss Bank
Региональная штаб-квартира Lebanese Swiss Bank
© Domaine Public Architects
Региональная штаб-квартира Lebanese Swiss Bank
Региональная штаб-квартира Lebanese Swiss Bank
© Domaine Public Architects
Региональная штаб-квартира Lebanese Swiss Bank
Региональная штаб-квартира Lebanese Swiss Bank
© Domaine Public Architects
Региональная штаб-квартира Lebanese Swiss Bank
Региональная штаб-квартира Lebanese Swiss Bank
© Domaine Public Architects
Региональная штаб-квартира Lebanese Swiss Bank
Региональная штаб-квартира Lebanese Swiss Bank
© Domaine Public Architects
Региональная штаб-квартира Lebanese Swiss Bank
Региональная штаб-квартира Lebanese Swiss Bank
© Domaine Public Architects