Размещено на портале Архи.ру (www.archi.ru)

20.07.2021

Открытое пространство как ценность

Нина Фролова
Объект:
Центр культуры, искусства и контента TEO
Адрес:
Израиль, None, Герцлия.
Мастерская:
A. Lerman Architects
Авторский коллектив:
Principal architect: Asaf Lerman
Project architects: Danielle Nagila, Nimrod Schenkelbach, Itai Bachor

Культурный центр TEO в Герцлии близ Тель-Авива по проекту A. Lerman Architects.

Культурный центр TEO, то есть имени Теодора Герцля, расположен среди дорогих вилл названного в его честь города, недалеко от берега моря. Плотная застройка, в том числе с высокими оградами, делает свободное пространство здесь особой ценностью. И именно на этом обстоятельстве основан проект.
 

Центр культуры, искусства и контента TEO
Центр культуры, искусства и контента TEO
Фото © Amit Geron

Одноэтажное здание с небольшим по площади вторым этажом открывает перспективы города и моря и служит своего рода «окном» в городской ткани.
 
Центр культуры, искусства и контента TEO
Центр культуры, искусства и контента TEO
Фото © Nimrod Levy

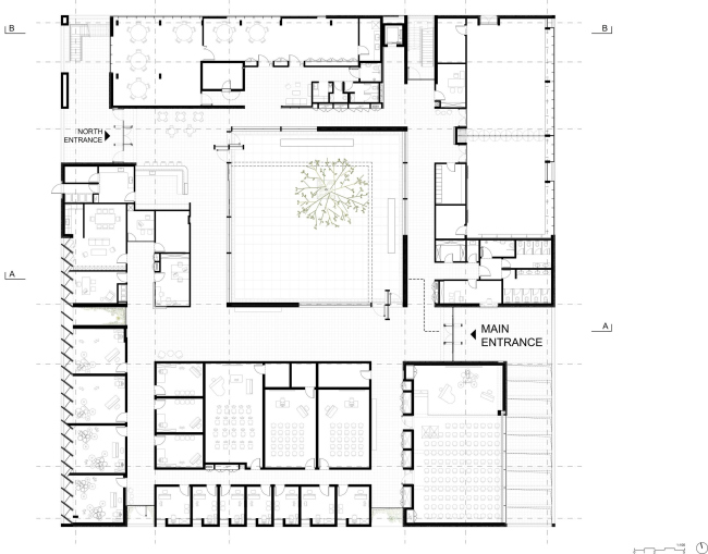
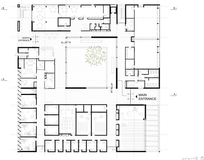
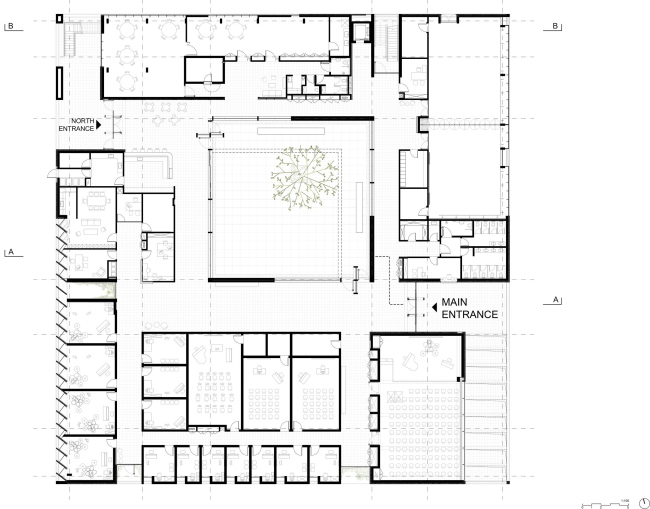
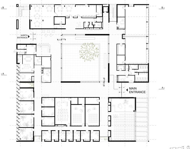
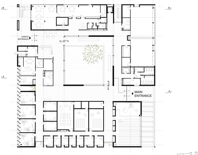
Квадрат 50 х 50 м снабжен внутренним двором (292 м2) в центре. Второй этаж совсем не велик по площади, и значительную площадь кровли (300 м2) занимает открытая терраса.
 
Центр культуры, искусства и контента TEO
Центр культуры, искусства и контента TEO
Фото © Amit Geron

В программу включены музыкальная школа, школа танца, студии для занятий изобразительным искусством и керамикой, выставочный зал, рекреационный центр для пожилых и кафе. На втором ярусе устроена библиотека.
 
Центр культуры, искусства и контента TEO
Центр культуры, искусства и контента TEO
Фото © Amit Geron

Палитра материалов очень сдержана: снаружи и внутри это бетон (монолитный и сборные детали), текстурированное стекло, металл. Особое внимание уделено защите от дождей, которые здесь могут быть не менее сильными, чем солнце. Плоская кровля дополнительно изолирована, что при этом не нарушило выверенных пропорций, двор с единственным дубом в центре проницаем для дождевой воды.
Центр культуры, искусства и контента TEO
Центр культуры, искусства и контента TEO
Фото © Nimrod Levy

Материалы для публикации предоставлены V2COM.
Центр культуры, искусства и контента TEO
Центр культуры, искусства и контента TEO
Фото © Nimrod Levy
Центр культуры, искусства и контента TEO
Центр культуры, искусства и контента TEO
Фото © Nimrod Levy
Центр культуры, искусства и контента TEO
Центр культуры, искусства и контента TEO
Фото © Nimrod Levy
Центр культуры, искусства и контента TEO
Центр культуры, искусства и контента TEO
Фото © Nimrod Levy
Центр культуры, искусства и контента TEO
Центр культуры, искусства и контента TEO
Фото © Nimrod Levy
Центр культуры, искусства и контента TEO
Центр культуры, искусства и контента TEO
Фото © Amit Geron
Центр культуры, искусства и контента TEO
Центр культуры, искусства и контента TEO
Фото © Nimrod Levy
Центр культуры, искусства и контента TEO
Центр культуры, искусства и контента TEO
Фото © Nimrod Levy
Центр культуры, искусства и контента TEO
Центр культуры, искусства и контента TEO
Фото © Nimrod Levy
Центр культуры, искусства и контента TEO
Центр культуры, искусства и контента TEO
Фото © Nimrod Levy
Центр культуры, искусства и контента TEO
Центр культуры, искусства и контента TEO
Фото © Nimrod Levy
Центр культуры, искусства и контента TEO
Центр культуры, искусства и контента TEO
Фото © Amit Geron
Центр культуры, искусства и контента TEO
Центр культуры, искусства и контента TEO
© A. Lerman Architects
Центр культуры, искусства и контента TEO
Центр культуры, искусства и контента TEO
© A. Lerman Architects
Центр культуры, искусства и контента TEO
Центр культуры, искусства и контента TEO
© A. Lerman Architects