Размещено на портале Архи.ру (www.archi.ru)

14.07.2021

Общественное дело

Нина Фролова
Объект:
Амстердамский суд
Адрес:
Нидерланды, None, Амстердам. Parnassusweg 280
Мастерская:
KAAN Architecten

Новое здание Амстердамского суда по проекту KAAN Architecten.

Построенный в амстердамском районе Зёйдас судебный комплекс по своему образу не очень отличается от окружающих его офисных зданий. Таким и был замысел его авторов: по мнению KAAN Architecten, при главенстве закона в государстве правосудие – это общественное, публичное дело, вплетенное в ткань повседневной жизни.
 

Амстердамский суд
Амстердамский суд
Фото © Fernando Guerra FG+SG

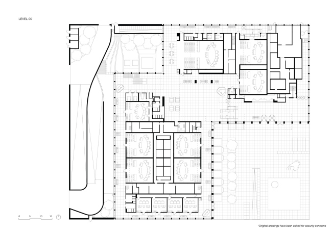
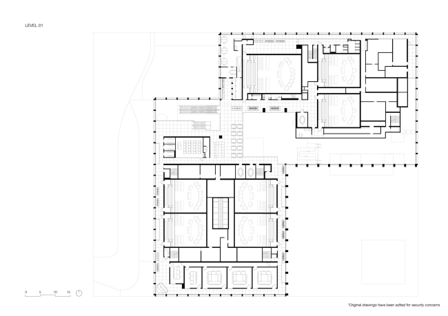
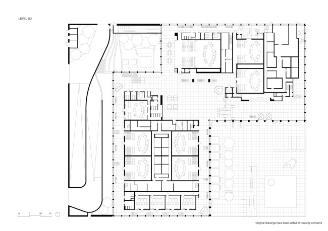
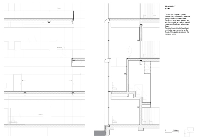
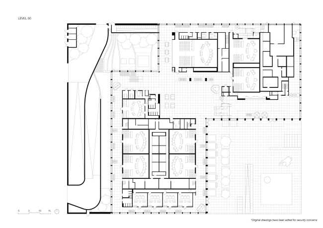
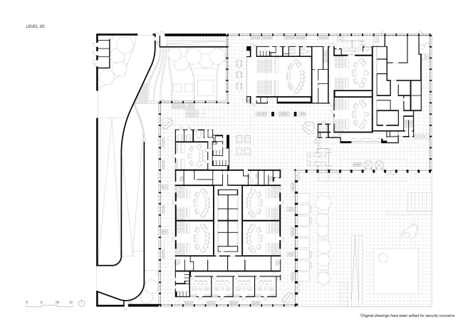
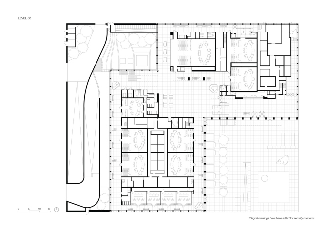
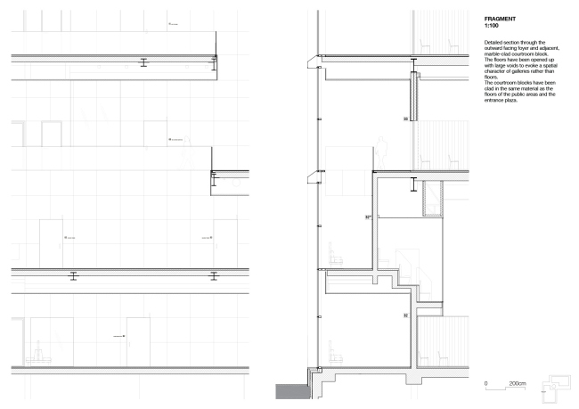
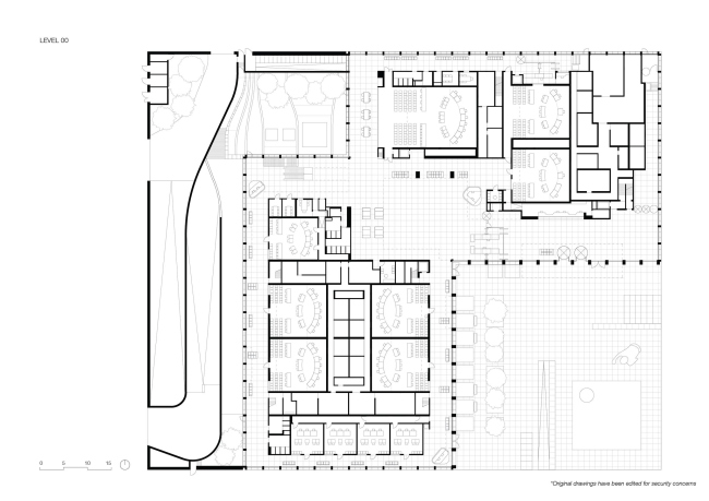
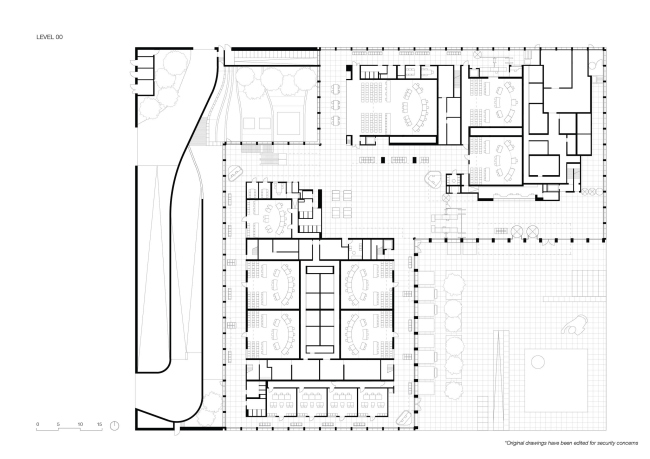
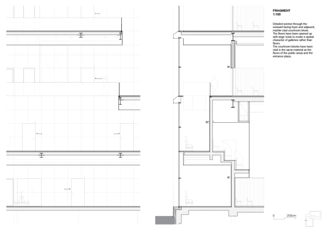
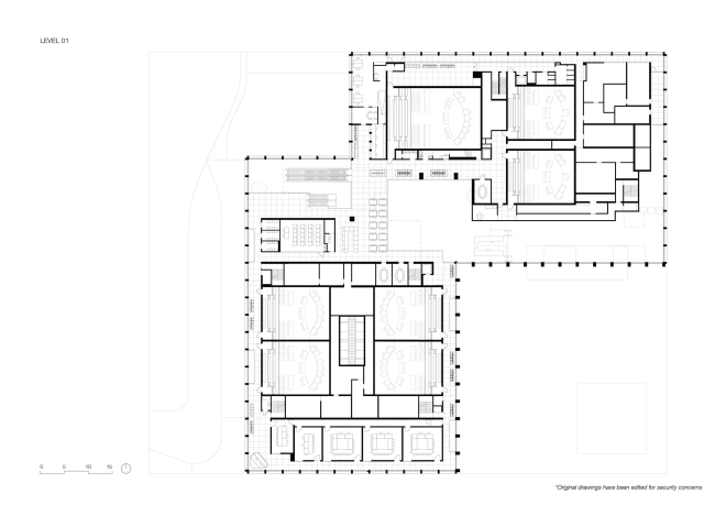
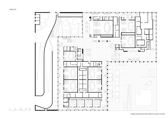
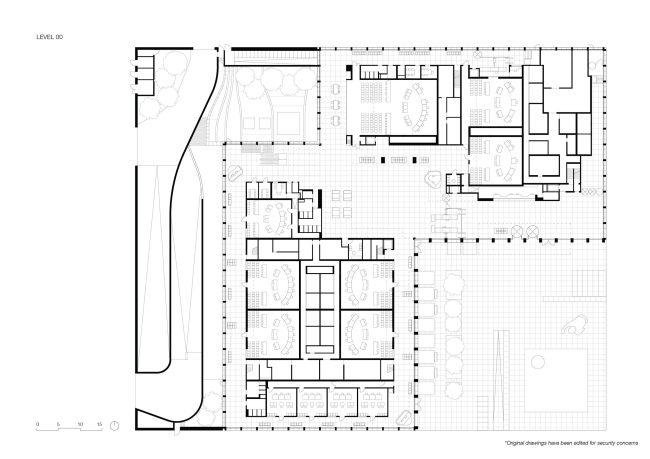
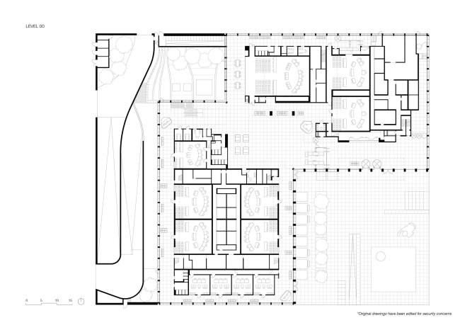
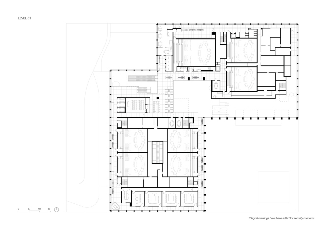
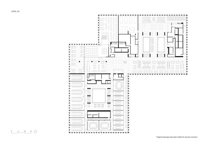
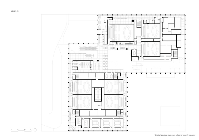
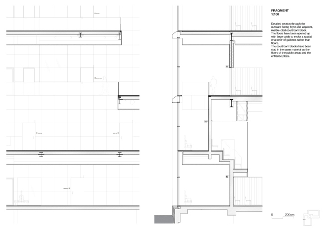
Поэтому 50-метровая постройка подчеркнуто открыта и прозрачна, а еще выглядит совершенно не претенциозно. Остекленные фасады позволяют заглянуть внутрь, особенно на уровне земли, где устроена просторная площадь в половину футбольного поля размером (она занимает четверть участка под строительство). Она вымощена тем же камнем, как пол в вестибюле, и скамьи там стоят такие же, и даже козырек входа выдается одинаково наружу и в интерьер. Так смягчается граница между судебным зданием и городским окружением. Даже обеспечивающие безопасность «пандусы»-ограды сделаны насколько возможно незаметными, зато высажены деревья цветущих весной видов.
 
Амстердамский суд
Амстердамский суд
Фото © Fernando Guerra FG+SG

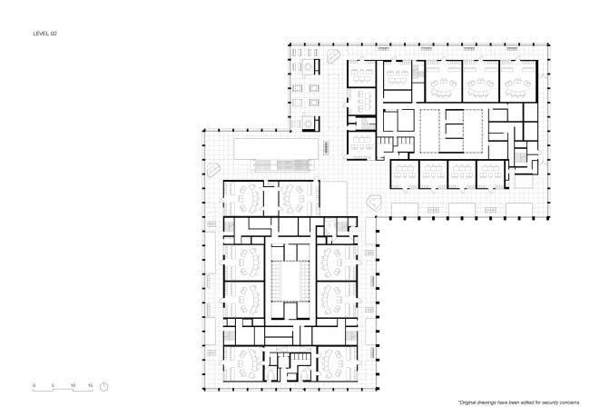
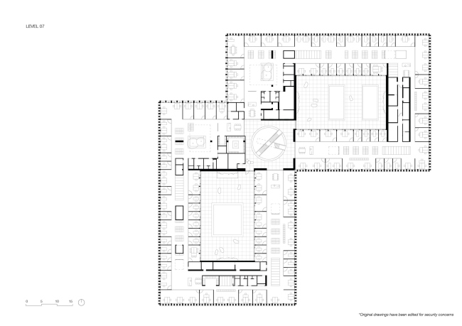
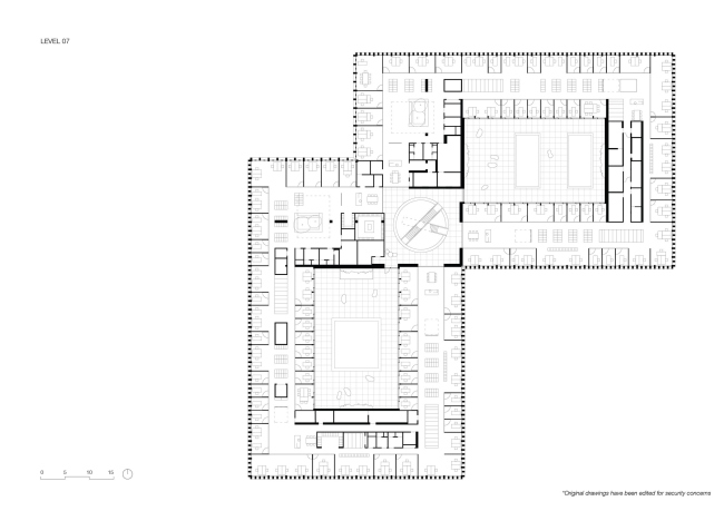
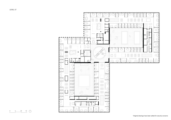
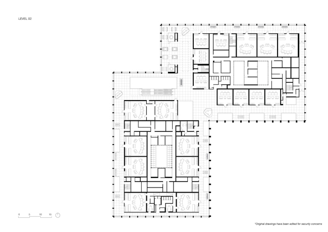
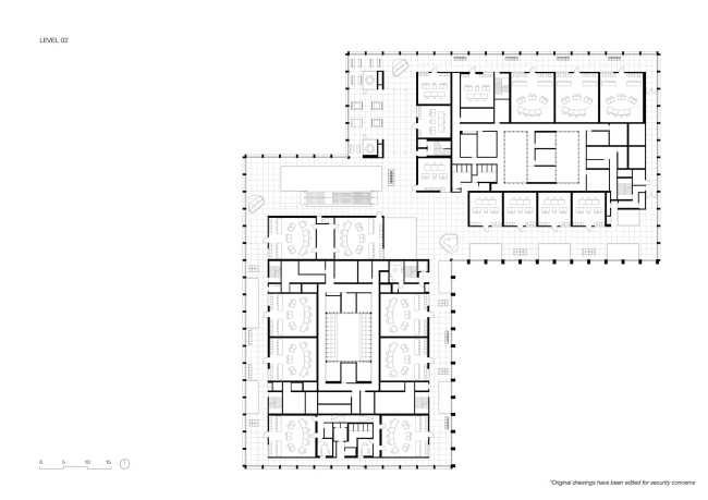
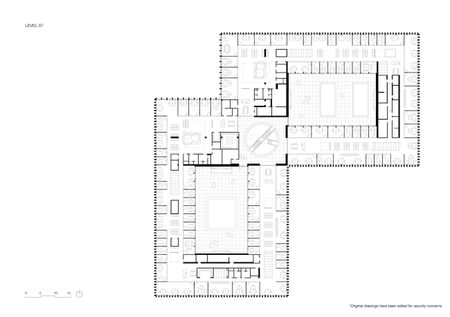
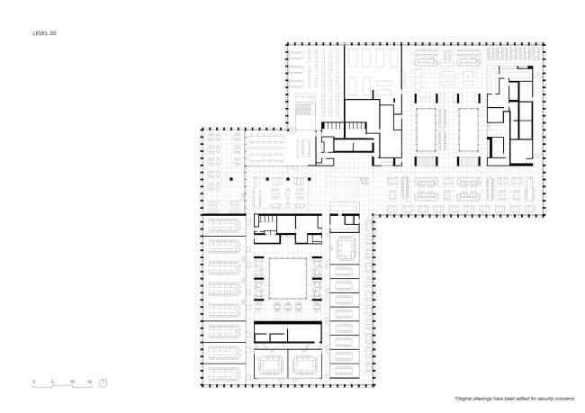
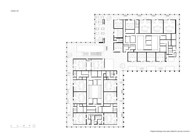
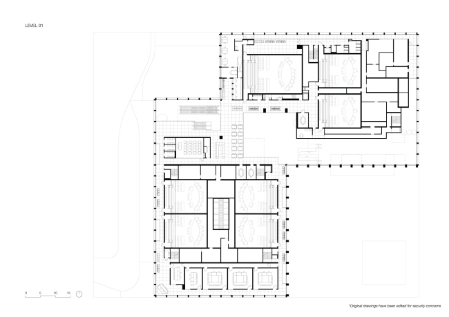
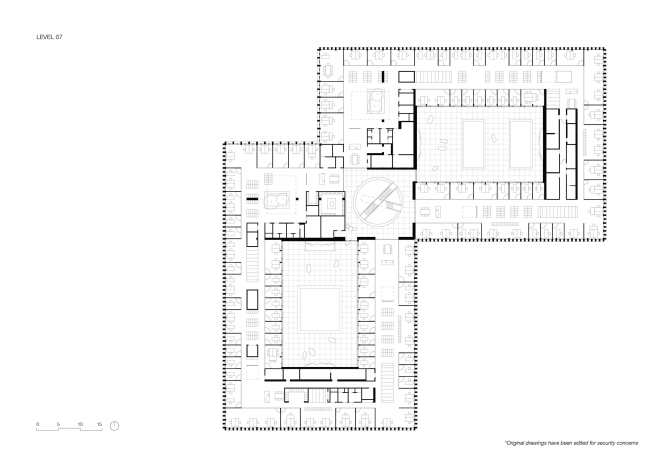
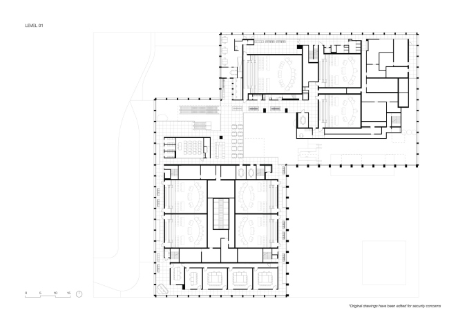
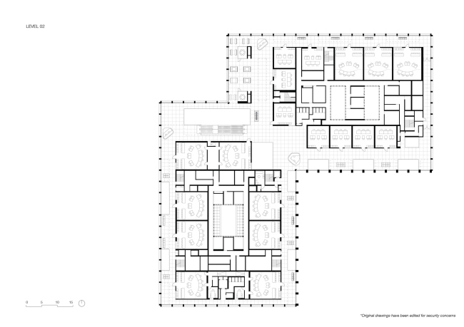
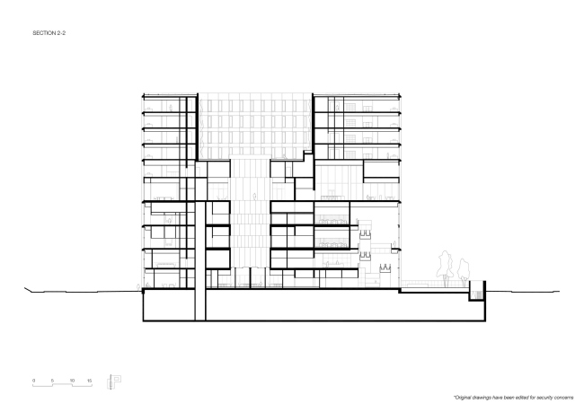
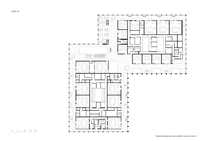
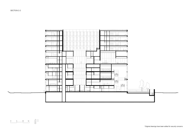
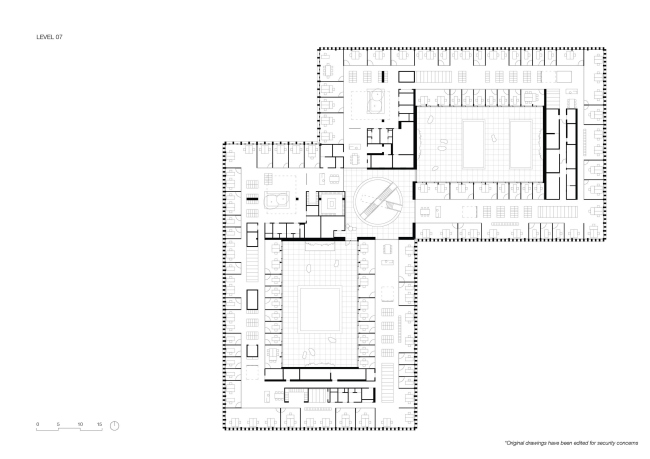
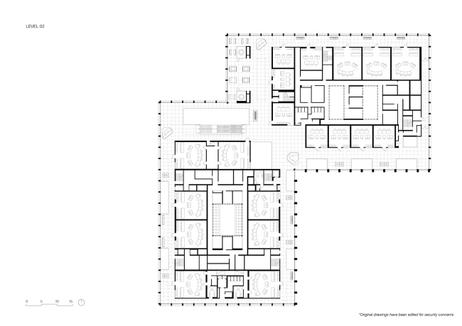
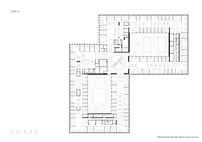
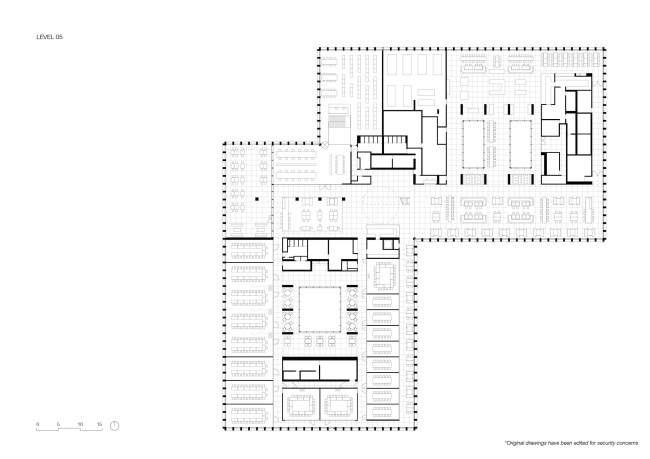
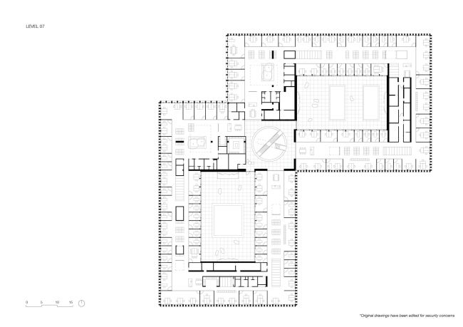
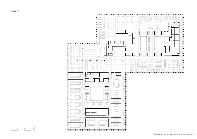
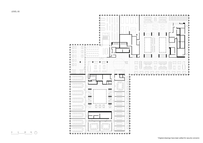
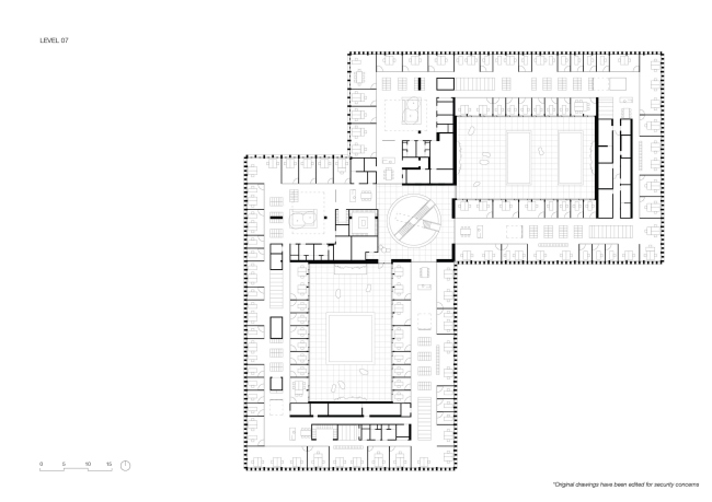
Внутри здание наполнено светом, отовсюду открываются виды города. В центре каждого из двух корпусов устроен внутренний двор, дополнительно обеспечивающий естественное освещение в интерьере.
 
Амстердамский суд
Амстердамский суд
Фото © Fernando Guerra FG+SG

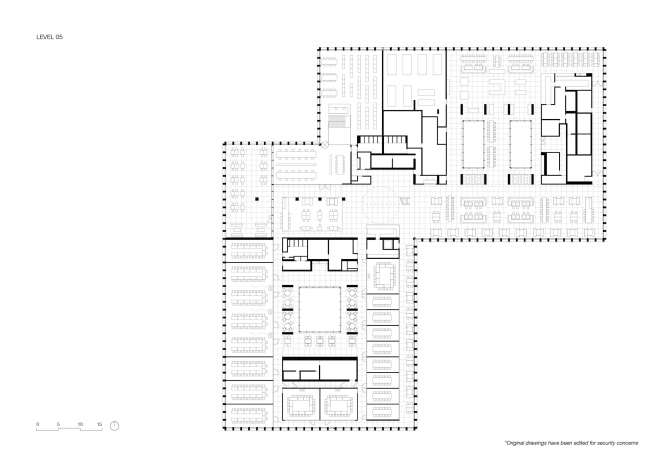
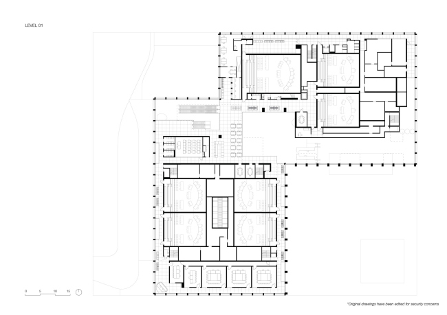
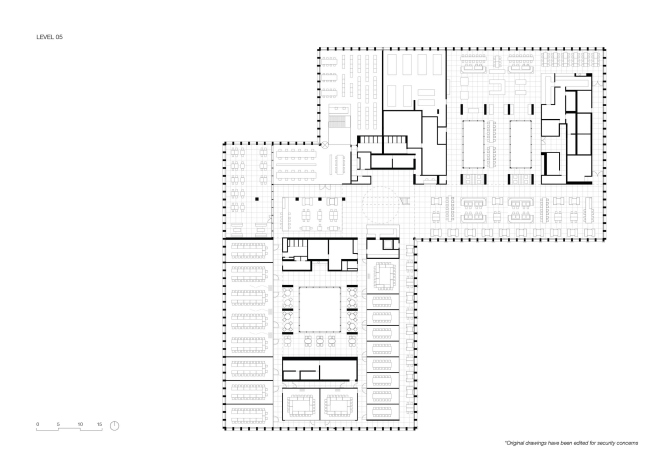
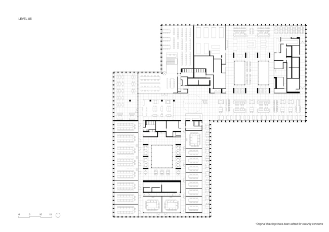
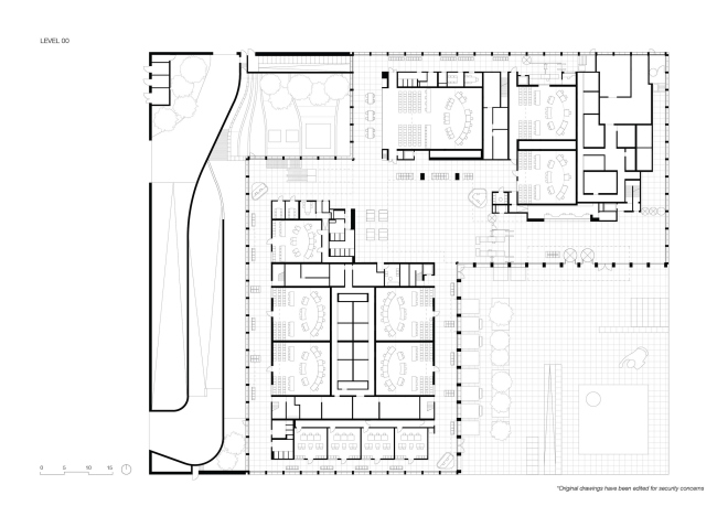
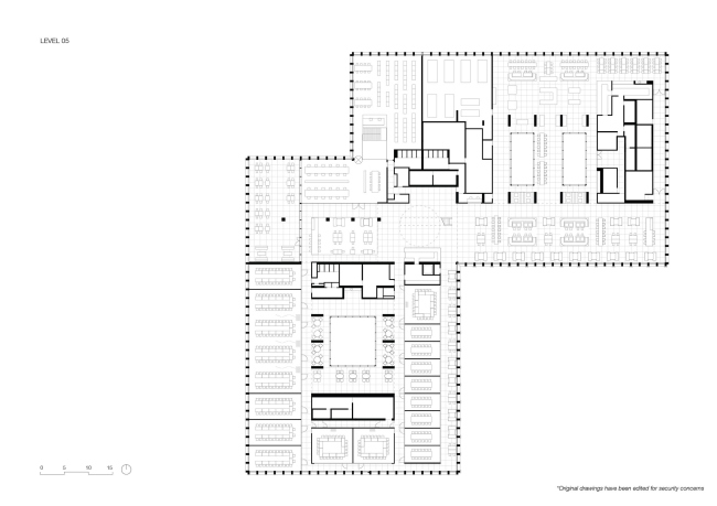
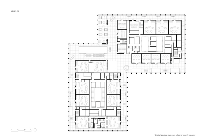
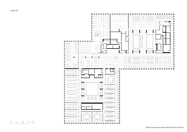
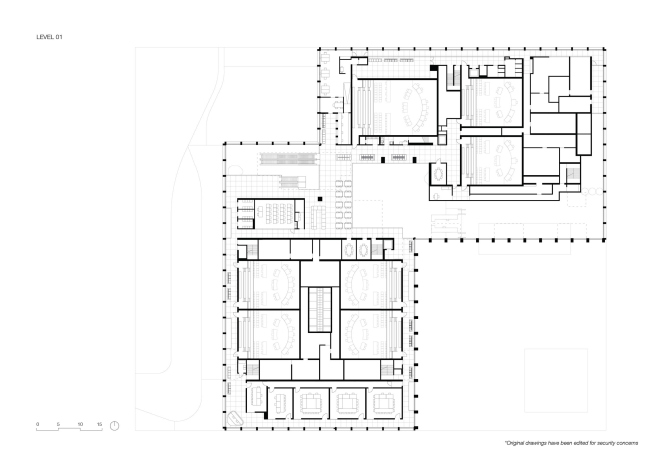
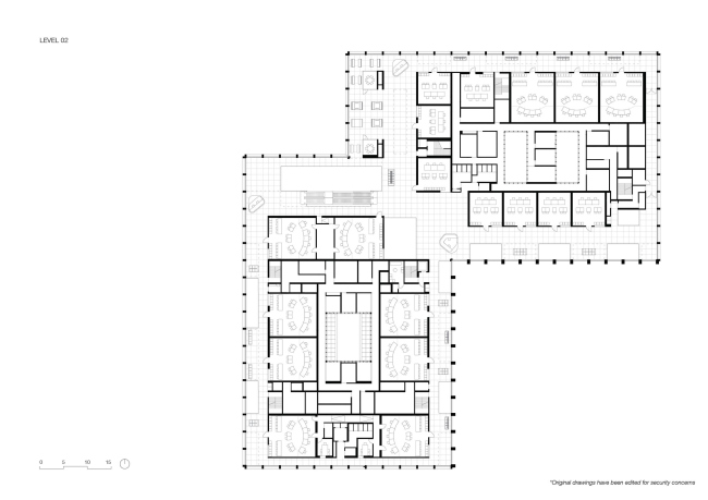
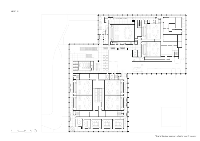
На площади в 60 200 м2 размещены 50 залов для судебных заседаний, кабинеты судей, библиотека и конференц-центр, столовая с полезным для здоровья меню. В здании работает около 1200 человек, а еще бывает 800–1000 посетителей в день. Особое внимание архитекторов было уделено разделению маршрутов судей, публики, обвиняемых.
 
Амстердамский суд
Амстердамский суд
Фото © Fernando Guerra FG+SG

Общий бюджет проекта – 235 млн евро, включая 30-летнее обслуживание здания на всех уровнях, включая ресторан, компанией-девелопером.
 
Амстердамский суд
Амстердамский суд
Фото © Fernando Guerra FG+SG
Амстердамский суд Фото © Fernando Guerra FG+SG
Амстердамский суд
Фото © Fernando Guerra FG+SG
Амстердамский суд Фото © Fernando Guerra FG+SG
Амстердамский суд
Фото © Fernando Guerra FG+SG
Амстердамский суд Фото © Fernando Guerra FG+SG
Амстердамский суд
Фото © Fernando Guerra FG+SG
Амстердамский суд Фото © Fernando Guerra FG+SG
Амстердамский суд
Фото © Fernando Guerra FG+SG
Амстердамский суд
Амстердамский суд
Фото © Fernando Guerra FG+SG
Амстердамский суд
Амстердамский суд
Фото © Fernando Guerra FG+SG
Амстердамский суд Фото © Fernando Guerra FG+SG
Амстердамский суд
Фото © Fernando Guerra FG+SG
Амстердамский суд Фото © Fernando Guerra FG+SG
Амстердамский суд
Фото © Fernando Guerra FG+SG
Амстердамский суд Фото © Fernando Guerra FG+SG
Амстердамский суд
Фото © Fernando Guerra FG+SG
Амстердамский суд Фото © Fernando Guerra FG+SG
Амстердамский суд
Фото © Fernando Guerra FG+SG
Амстердамский суд Фото © Fernando Guerra FG+SG
Амстердамский суд
Фото © Fernando Guerra FG+SG
Амстердамский суд Фото © Fernando Guerra FG+SG
Амстердамский суд
Фото © Fernando Guerra FG+SG
Амстердамский суд Фото © Fernando Guerra FG+SG
Амстердамский суд
Фото © Fernando Guerra FG+SG
Амстердамский суд Фото © Fernando Guerra FG+SG
Амстердамский суд
Фото © Fernando Guerra FG+SG
Амстердамский суд
Амстердамский суд
Фото © Fernando Guerra FG+SG
Амстердамский суд
Амстердамский суд
Фото © Fernando Guerra FG+SG
Амстердамский суд
Амстердамский суд
Фото © Fernando Guerra FG+SG
Амстердамский суд
Амстердамский суд
Фото © Fernando Guerra FG+SG
Амстердамский суд Фото © Fernando Guerra FG+SG
Амстердамский суд
Фото © Fernando Guerra FG+SG
Амстердамский суд Фото © Fernando Guerra FG+SG
Амстердамский суд
Фото © Fernando Guerra FG+SG
Амстердамский суд Фото © Fernando Guerra FG+SG
Амстердамский суд
Фото © Fernando Guerra FG+SG
Амстердамский суд
Амстердамский суд
Фото © Fernando Guerra FG+SG
Амстердамский суд
Амстердамский суд
Фото © Fernando Guerra FG+SG
Амстердамский суд
Амстердамский суд
Фото © Fernando Guerra FG+SG
Амстердамский суд Фото © Fernando Guerra FG+SG
Амстердамский суд
Фото © Fernando Guerra FG+SG
Амстердамский суд Фото © Fernando Guerra FG+SG
Амстердамский суд
Фото © Fernando Guerra FG+SG
Амстердамский суд Фото © Fernando Guerra FG+SG
Амстердамский суд
Фото © Fernando Guerra FG+SG
Амстердамский суд Фото © Fernando Guerra FG+SG
Амстердамский суд
Фото © Fernando Guerra FG+SG
Амстердамский суд Фото © Fernando Guerra FG+SG
Амстердамский суд
Фото © Fernando Guerra FG+SG
Амстердамский суд
Амстердамский суд
Фото © Fernando Guerra FG+SG
Амстердамский суд Фото © Fernando Guerra FG+SG
Амстердамский суд
Фото © Fernando Guerra FG+SG
Амстердамский суд Фото © Fernando Guerra FG+SG
Амстердамский суд
Фото © Fernando Guerra FG+SG
Амстердамский суд Фото © Fernando Guerra FG+SG
Амстердамский суд
Фото © Fernando Guerra FG+SG
Амстердамский суд Фото © Fernando Guerra FG+SG
Амстердамский суд
Фото © Fernando Guerra FG+SG
Амстердамский суд
Амстердамский суд
Фото © Fernando Guerra FG+SG
Амстердамский суд
Амстердамский суд
Фото © Fernando Guerra FG+SG
Амстердамский суд
Амстердамский суд
Фото © Fernando Guerra FG+SG
Амстердамский суд
Амстердамский суд
Фото © Fernando Guerra FG+SG
Амстердамский суд
Амстердамский суд
Фото © Fernando Guerra FG+SG
Амстердамский суд
Амстердамский суд
Фото © Fernando Guerra FG+SG
Амстердамский суд
Амстердамский суд
© KAAN Architecten
Амстердамский суд
Амстердамский суд
© KAAN Architecten
Амстердамский суд
Амстердамский суд
© KAAN Architecten
Амстердамский суд
Амстердамский суд
© KAAN Architecten
Амстердамский суд
Амстердамский суд
© KAAN Architecten
Амстердамский суд
Амстердамский суд
© KAAN Architecten
Амстердамский суд
Амстердамский суд
© KAAN Architecten
Амстердамский суд
Амстердамский суд
© KAAN Architecten
Амстердамский суд
Амстердамский суд
© KAAN Architecten
Амстердамский суд
Амстердамский суд
© KAAN Architecten
Амстердамский суд
Амстердамский суд
© KAAN Architecten
Амстердамский суд
Амстердамский суд
© KAAN Architecten
Амстердамский суд
Амстердамский суд
© KAAN Architecten
Амстердамский суд
Амстердамский суд
© KAAN Architecten
Амстердамский суд
Амстердамский суд
© KAAN Architecten
Амстердамский суд
Амстердамский суд
© KAAN Architecten
Амстердамский суд
Амстердамский суд
© KAAN Architecten
Амстердамский суд
Амстердамский суд
© KAAN Architecten
Амстердамский суд
Амстердамский суд
© KAAN Architecten
Амстердамский суд
Амстердамский суд
© KAAN Architecten
Амстердамский суд
Амстердамский суд
© KAAN Architecten
Амстердамский суд
Амстердамский суд
© KAAN Architecten
Амстердамский суд
Амстердамский суд
© KAAN Architecten