Размещено на портале Архи.ру (www.archi.ru)

15.07.2021

Один из самых высокогорных в мире отелей построили в Казахстане

Алина Измайлова

В предгорьях Заилийского Алатау – горного хребта на севере Тянь-Шаня – на высоте 3200 метров над уровнем моря открылся эко-отель Tenir Eco Hotels. В рейтинге самых высокогорных гостиниц мира он занимает седьмую строчку. Архитектурный проект разработало алма-атинское бюро Levelstudio.

Отель Tenir Eco Hotels
Отель Tenir Eco Hotels
Фото © Damir Otegen

Комплекс, состоящий из десяти гостевых домиков, работает в формате ski-in/ski-out: из номера прямо в лыжах можно спуститься к объектам горнолыжной инфраструктуры курорта «Шымбулак», расположенного в черте Алма-Аты.
Отель Tenir Eco Hotels
Отель Tenir Eco Hotels
Фото © Damir Otegen

Разработка проекта и его реализация заняла меньше пяти месяцев: начало было положено в июле, а уже в декабре, прямо к началу нового сезона, Tenir Eco Hotels был открыт. Завершить проект в сжатые сроки позволила модульная технология строительства.
Отель Tenir Eco Hotels Фото © Damir Otegen
Отель Tenir Eco Hotels
Фото © Damir Otegen
Отель Tenir Eco Hotels Фото © Damir Otegen
Отель Tenir Eco Hotels
Фото © Damir Otegen
Отель Tenir Eco Hotels Фото © @miraaas
Отель Tenir Eco Hotels
Фото © @miraaas
Отель Tenir Eco Hotels Фото © @miraaas
Отель Tenir Eco Hotels
Фото © @miraaas
Отель Tenir Eco Hotels Фото © Damir Otegen
Отель Tenir Eco Hotels
Фото © Damir Otegen

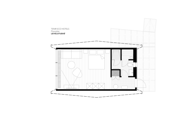
«Хижины» площадью 30 м2 выполнены по единому проекту: каждое здание собрано из трех одинаковых модулей с габаритами 4,5 x 2,7 x 3,15 м. Каркас типовых блоков выполнен из стальных рамок, а стены – из алюминиевых сэндвич-панелей, утепленных каменной ватой. Такая система обеспечивает хорошую термоизоляцию и сейсмостойкость зданий.
Отель Tenir Eco Hotels
Отель Tenir Eco Hotels
Фото © @miraaas

Модули были изготовлены в Алма-Ате на заводе Sputnik Trailers и доставлены на хребет с помощью специально изготовленных саней и бульдозера – в наиболее сложные моменты тягачу приходилось преодолевать уклоны в 45 градусов. Архитекторы подчеркивают, что сборные компоненты рассчитаны на повторное использование: в любой момент их можно разъединить и перевезти на новое место.
Отель Tenir Eco Hotels Фото © Levelstudio
Отель Tenir Eco Hotels
Фото © Levelstudio
Отель Tenir Eco Hotels Фото © Levelstudio
Отель Tenir Eco Hotels
Фото © Levelstudio
Отель Tenir Eco Hotels Фото © Levelstudio
Отель Tenir Eco Hotels
Фото © Levelstudio
Отель Tenir Eco Hotels Фото © Levelstudio
Отель Tenir Eco Hotels
Фото © Levelstudio

Блоки установлены на стальной платформе – от бетонного фундамента Levelstudio отказались, чтобы не навредить грунту и избавить будущих постояльцев от необходимости убирать снеговые завалы, блокирующие двери и окна.
Отель Tenir Eco Hotels
Отель Tenir Eco Hotels
Фото © Damir Otegen

Оболочка гостевых номеров спроектирована с учетом постоянных снеговых и ветровых нагрузок. Фасад построек отделан гонтом из натурального дерева и алюминиевыми фасонными элементами, окрашенными в спокойные серые тона. 
Отель Tenir Eco Hotels
Отель Tenir Eco Hotels
Фото © Damir Otegen
Отель Tenir Eco Hotels
Отель Tenir Eco Hotels
Фото © Damir Otegen
Отель Tenir Eco Hotels
Отель Tenir Eco Hotels
Фото © Damir Otegen
Отель Tenir Eco Hotels
Отель Tenir Eco Hotels
Фото © @miraaas
Отель Tenir Eco Hotels
Отель Tenir Eco Hotels
Фото © @miraaas
Отель Tenir Eco Hotels
Отель Tenir Eco Hotels
Фото © @miraaas
Отель Tenir Eco Hotels
Отель Tenir Eco Hotels
Фото © Damir Otegen
Отель Tenir Eco Hotels
Отель Tenir Eco Hotels
Фото © Damir Otegen
Отель Tenir Eco Hotels
Отель Tenir Eco Hotels
Фото © Damir Otegen
Отель Tenir Eco Hotels
Отель Tenir Eco Hotels
Фото © Damir Otegen
Отель Tenir Eco Hotels
Отель Tenir Eco Hotels
Фото © @miraaas
Отель Tenir Eco Hotels
Отель Tenir Eco Hotels
Фото © @miraaas
Отель Tenir Eco Hotels
Отель Tenir Eco Hotels
Фото © @miraaas
Отель Tenir Eco Hotels
Отель Tenir Eco Hotels
Фото © @miraaas
Отель Tenir Eco Hotels
Отель Tenir Eco Hotels
Фото © @miraaas
Отель Tenir Eco Hotels
Отель Tenir Eco Hotels
Фото © Damir Otegen
Отель Tenir Eco Hotels
Отель Tenir Eco Hotels
Фото © @miraaas
Отель Tenir Eco Hotels
Отель Tenir Eco Hotels
Фото © @miraaas
Отель Tenir Eco Hotels
Отель Tenir Eco Hotels
Фото © @miraaas
Отель Tenir Eco Hotels
Отель Tenir Eco Hotels
Фото © Damir Otegen
Отель Tenir Eco Hotels
Отель Tenir Eco Hotels
Фото © @miraaas
Отель Tenir Eco Hotels
Отель Tenir Eco Hotels
Фото © Levelstudio
Отель Tenir Eco Hotels
Отель Tenir Eco Hotels
Фото © Levelstudio
Отель Tenir Eco Hotels
Отель Tenir Eco Hotels
Фото © Levelstudio
Отель Tenir Eco Hotels
Отель Tenir Eco Hotels
Фото © Levelstudio