Размещено на портале Архи.ру (www.archi.ru)

13.07.2021

Ажурные узоры

Нина Фролова
Объект:
Манчестерский Еврейский музей
Адрес:
Великобритания, None, Манчестер.
Мастерская:
Citizens Design Bureau

Манчестерский Еврейский музей приобрел после реконструкции по проекту Citizens Design Bureau новый корпус с орнаментом на фасаде: он напоминает о культуре сефардов.

Португальская и Испанская синагога в Читэм-хилл – старейшая из сохранившихся в Манчестере. Она была построена в 1874 по проекту Эдварда Саломонса (Edward Salomons) среди процветающих текстильных фабрик, где работало много еврейских иммигрантов, но через сто лет была вынуждена закрыться, так как район, как и весь город, переживал сильную трансформацию, и члены еврейской общины покинули его.
 

Манчестерский Еврейский музей
Манчестерский Еврейский музей
Фото © Philip Vile

В 1984 она открылась в качестве Еврейского музея, но расположение вне центра Манчестера, на оживленной магистрали среди индустриальных сооружений мешало его популярности. Поэтому в 2010-е были задуманы как реконструкция здания музея, так и переосмысление его назначения.
 
Манчестерский Еврейский музей
Манчестерский Еврейский музей
Фото © Philip Vile

Открывшийся в начале июля после двухлетней перестройки Еврейский музей теперь стал более многофункциональным, ориентированным на разные еврейские общины, с их культурными, политическими и социальными особенностями. Он также принимает во внимание изменившуюся демографию района и рассчитан на самых разных посетителей.
 
Манчестерский Еврейский музей
Манчестерский Еврейский музей
Фото © Joel Chester Fildes

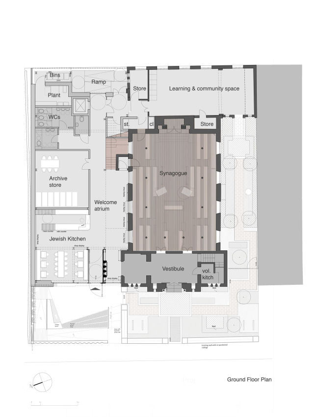
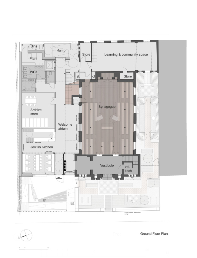
В ходе разработки проекта архитекторы Citizens Design Bureau работали с местным населением, выясняя, какой музей им нужен. Поэтому в новом здании появились пространства, где жители Читэм-хилла могут проводить собственные мероприятия, в том числе общие обеды и праздники. В новой части музея, расположенной параллельно зданию сефардской синагоги и увеличившей ее площадь вдвое, появились вегетарианское кошерное кафе, музейный магазин и запасник. Старую и новую части связывает остекленный атриум.
 
Манчестерский Еврейский музей
Манчестерский Еврейский музей
Фото © Joel Chester Fildes

Синагогу тщательно отреставрировали, раскрыв в интерьере самые старые слои краски и восстановив насыщенный колорит, долгое время закрытый слоями бежевой краски и коричневого лака. Там появился дополнительный выставочный зал, а еще историческое здание стало гораздо более ресурсоэффективным, его углеродный след понизился на 20%.
 
Манчестерский Еврейский музей Фото © Joel Chester Fildes
Манчестерский Еврейский музей
Фото © Joel Chester Fildes
Манчестерский Еврейский музей Фото © Philip Vile
Манчестерский Еврейский музей
Фото © Philip Vile
Манчестерский Еврейский музей Фото © Joel Chester Fildes
Манчестерский Еврейский музей
Фото © Joel Chester Fildes
Манчестерский Еврейский музей Фото © Philip Vile
Манчестерский Еврейский музей
Фото © Philip Vile

Но самым заметным компонентом проекта все же стала не его экологическая составляющая, а новый фасад. Он дополняет исторический и помещает его в контекст: как для синагоги выбраны мавританские мотивы, напоминающие о Пиренейском полуострове и Магрибе как регионе сефардских евреев, так и для современного корпуса создан орнамент на основе восьмиугольных фигур. Прорезанные в поверхности из стали кортен узоры одинаково эффектно выглядят и днем, и в темное время суток, когда они подсвечены изнутри.
Манчестерский Еврейский музей
Манчестерский Еврейский музей
Фото © Philip Vile
Манчестерский Еврейский музей
Манчестерский Еврейский музей
Фото © Philip Vile
Манчестерский Еврейский музей
Манчестерский Еврейский музей
Фото © Philip Vile
Манчестерский Еврейский музей Фото © Philip Vile
Манчестерский Еврейский музей
Фото © Philip Vile
Манчестерский Еврейский музей Фото © Philip Vile
Манчестерский Еврейский музей
Фото © Philip Vile
Манчестерский Еврейский музей Фото © Philip Vile
Манчестерский Еврейский музей
Фото © Philip Vile
Манчестерский Еврейский музей Фото © Philip Vile
Манчестерский Еврейский музей
Фото © Philip Vile
Манчестерский Еврейский музей Фото © Philip Vile
Манчестерский Еврейский музей
Фото © Philip Vile
Манчестерский Еврейский музей Фото © Philip Vile
Манчестерский Еврейский музей
Фото © Philip Vile
Манчестерский Еврейский музей Фото © Philip Vile
Манчестерский Еврейский музей
Фото © Philip Vile
Манчестерский Еврейский музей
Манчестерский Еврейский музей
Фото © Philip Vile
Манчестерский Еврейский музей
Манчестерский Еврейский музей
Фото © Philip Vile
Манчестерский Еврейский музей
Манчестерский Еврейский музей
Фото © Joel Chester Fildes
Манчестерский Еврейский музей
Манчестерский Еврейский музей
Фото © Joel Chester Fildes
Манчестерский Еврейский музей
Манчестерский Еврейский музей
Фото © Joel Chester Fildes
Манчестерский Еврейский музей
Манчестерский Еврейский музей
Фото © Joel Chester Fildes
Манчестерский Еврейский музей
Манчестерский Еврейский музей
Фото © Joel Chester Fildes
Манчестерский Еврейский музей Фото © Philip Vile
Манчестерский Еврейский музей
Фото © Philip Vile
Манчестерский Еврейский музей Фото © Philip Vile
Манчестерский Еврейский музей
Фото © Philip Vile
Манчестерский Еврейский музей Фото © Philip Vile
Манчестерский Еврейский музей
Фото © Philip Vile
Манчестерский Еврейский музей Фото © Philip Vile
Манчестерский Еврейский музей
Фото © Philip Vile
Манчестерский Еврейский музей Фото © Philip Vile
Манчестерский Еврейский музей
Фото © Philip Vile
Манчестерский Еврейский музей Фото © Philip Vile
Манчестерский Еврейский музей
Фото © Philip Vile
Манчестерский Еврейский музей Фото © Joel Chester Fildes
Манчестерский Еврейский музей
Фото © Joel Chester Fildes
Манчестерский Еврейский музей
Манчестерский Еврейский музей
Фото © Joel Chester Fildes
Манчестерский Еврейский музей
Манчестерский Еврейский музей
Фото © Joel Chester Fildes
Манчестерский Еврейский музей Фото © Philip Vile
Манчестерский Еврейский музей
Фото © Philip Vile
Манчестерский Еврейский музей Фото © Philip Vile
Манчестерский Еврейский музей
Фото © Philip Vile
Манчестерский Еврейский музей Фото © Philip Vile
Манчестерский Еврейский музей
Фото © Philip Vile
Манчестерский Еврейский музей Фото © Joel Chester Fildes
Манчестерский Еврейский музей
Фото © Joel Chester Fildes
Манчестерский Еврейский музей Фото © Joel Chester Fildes
Манчестерский Еврейский музей
Фото © Joel Chester Fildes
Манчестерский Еврейский музей
Манчестерский Еврейский музей
Фото © Joel Chester Fildes
Манчестерский Еврейский музей
Манчестерский Еврейский музей
Фото © Joel Chester Fildes
Манчестерский Еврейский музей
Манчестерский Еврейский музей
© Citizens Design Bureau
Манчестерский Еврейский музей
Манчестерский Еврейский музей
© Citizens Design Bureau
Манчестерский Еврейский музей
Манчестерский Еврейский музей
© Citizens Design Bureau