Размещено на портале Архи.ру (www.archi.ru)

30.06.2021

Силуэт прошлого

Нина Фролова
Объект:
Музей и библиотека Цзяшаня
Адрес:
Китай, None, Цзясин.
Мастерская:
Архитектурный проектно-исследовательский институт Чжэцзянского университета (UAD)

Внутренний двор музея и библиотеки в Цзяшане на востоке Китая напоминает силуэтом традиционную печь для обжига керамики, которыми славился этот город.

Архитектурный проектно-исследовательский институт Чжэцзянского университета (UAD) занимался проектом комплекса из музея и библиотеки, когда еще не было ясно, что появится на соседних участках, поэтому авторы сосредоточились на порученной им территории, решив ее как самодостаточную.
 

Музей и библиотека Цзяшаня
Музей и библиотека Цзяшаня
Фото © Qiang Zhao

Цзяшан, уезд в составе городского округа Цзясин в провинции Чжэцзян, тяготеет к расположенному сравнительно недалеко Шанхаю. При этом он обладает собственными насыщенным прошлым и передовым настоящим. При династиях Мин и Цин, то есть с конца XIV по начало XX века это был один из главных центров керамического производства в стране, здесь делали, например, кирпич для строительства императорских дворцов. Цзяшан носил тогда прозвище «город тысячи печей». В наши дни это образцовый центр «зеленых» технологий. Из-за особенностей местности здесь много исторических каналов, по которым доставляют грузы.
 
Музей и библиотека Цзяшаня
Музей и библиотека Цзяшаня
Фото © Qiang Zhao

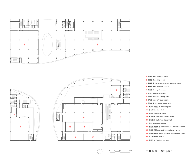
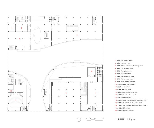
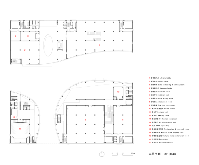
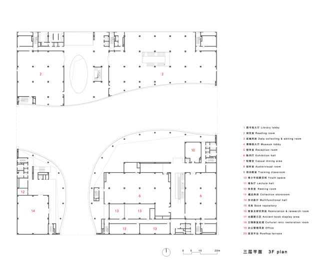
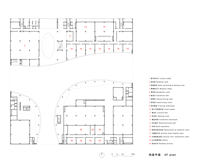
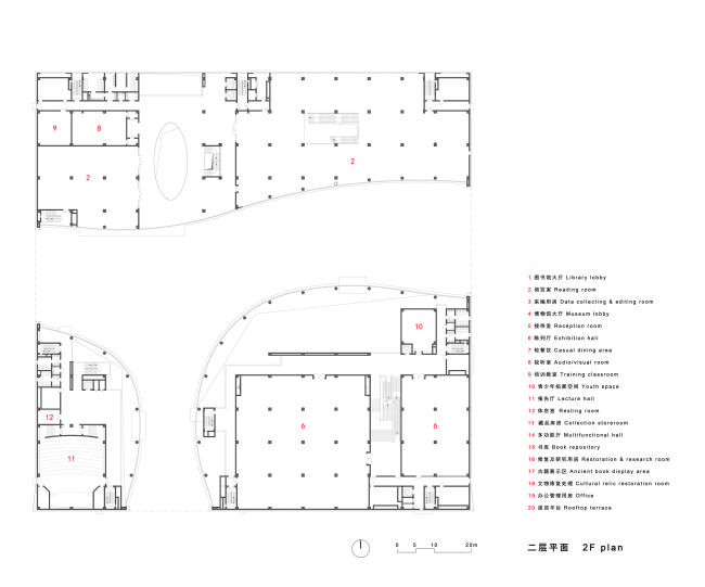
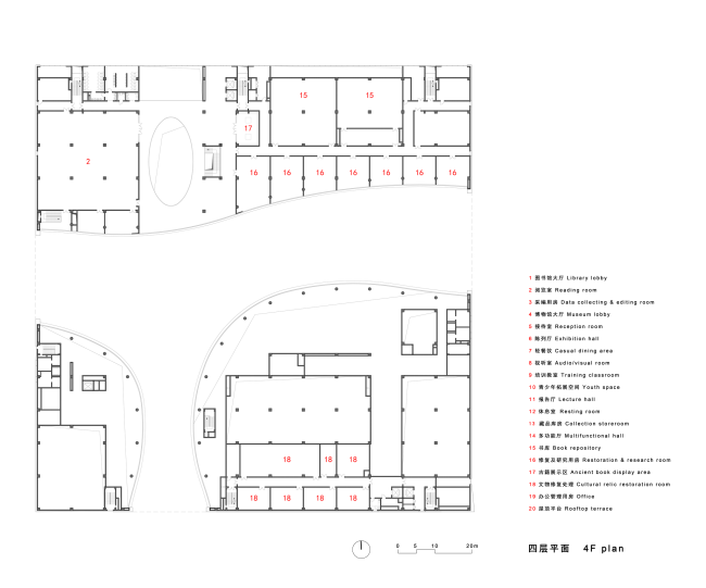
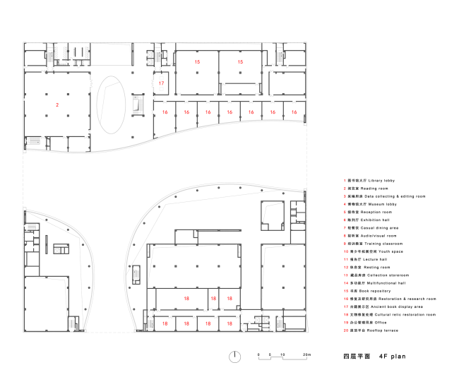
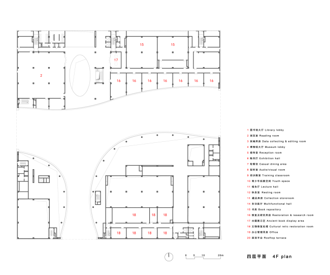
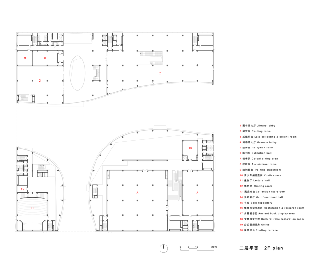
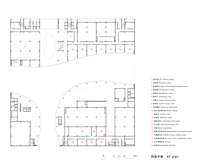
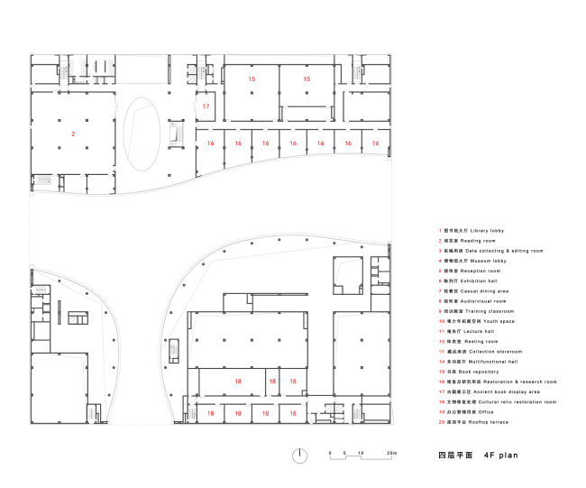
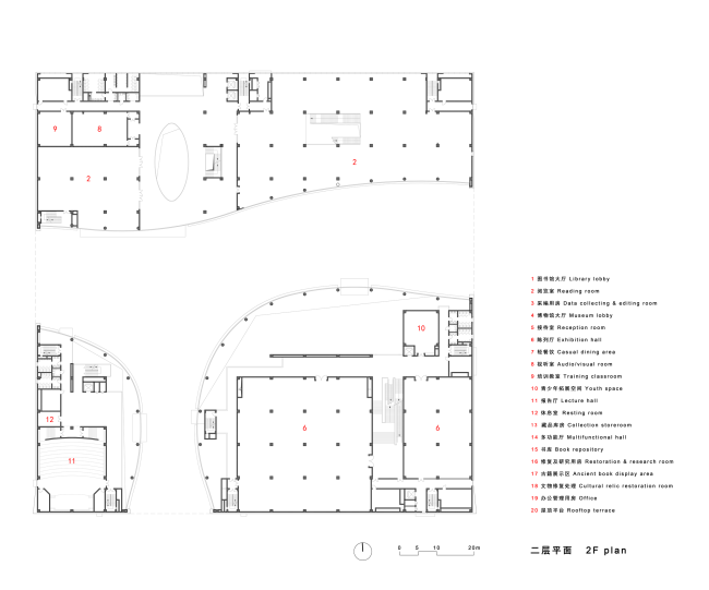
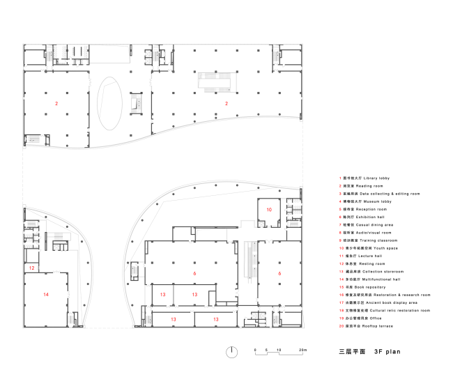
Музей и библиотека задуманы как культурный центр и рекреационная зона для местных жителей. Расположение рядом с оживленными магистралями и в тот момент неясной застройкой соседних участков обусловило появление фасада как крепостной стены – особенно на углу двух трасс. Здесь, с юго-востока, помещен музей, который было легче защитить от шума.
 
Музей и библиотека Цзяшаня
Музей и библиотека Цзяшаня
Фото © Qiang Zhao

С севера вытянулась библиотека, обращенная стеклянной стеной читальных залов  к каналу с зеленым берегом: музей прикрывает ее от воздействия траффика.
 
Музей и библиотека Цзяшаня
Музей и библиотека Цзяшаня
Фото © Qiang Zhao

В юго-западном углу расположен небольшой корпус с общими для обоих учреждений пространствами: лекционной аудиторией, кафе и т. п.
 
Музей и библиотека Цзяшаня
Музей и библиотека Цзяшаня
Фото © Qiang Zhao

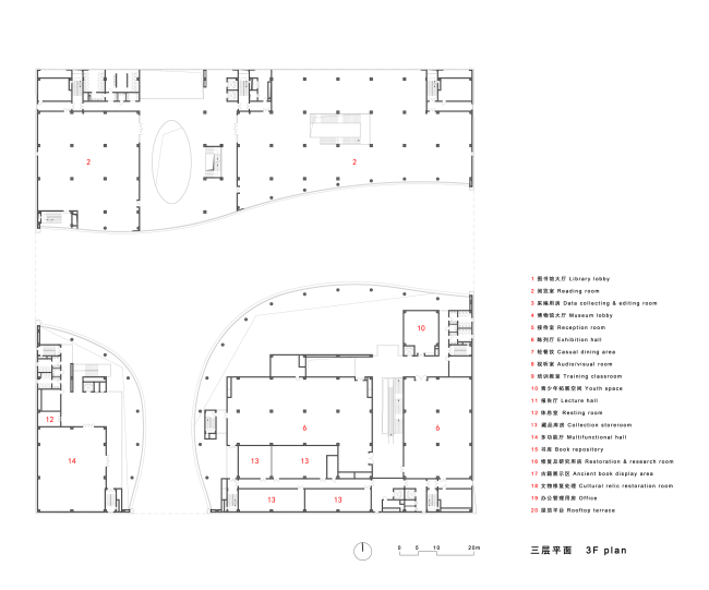
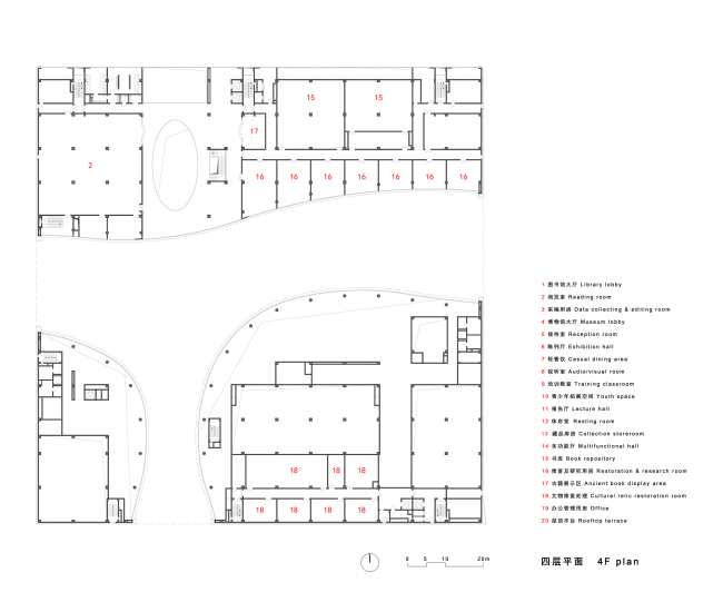
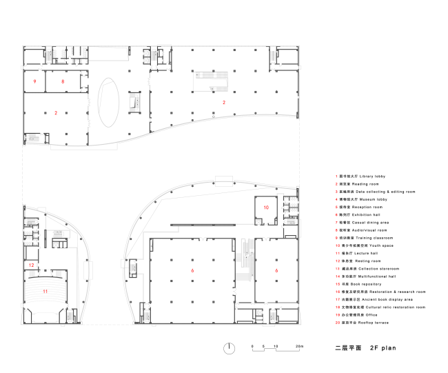
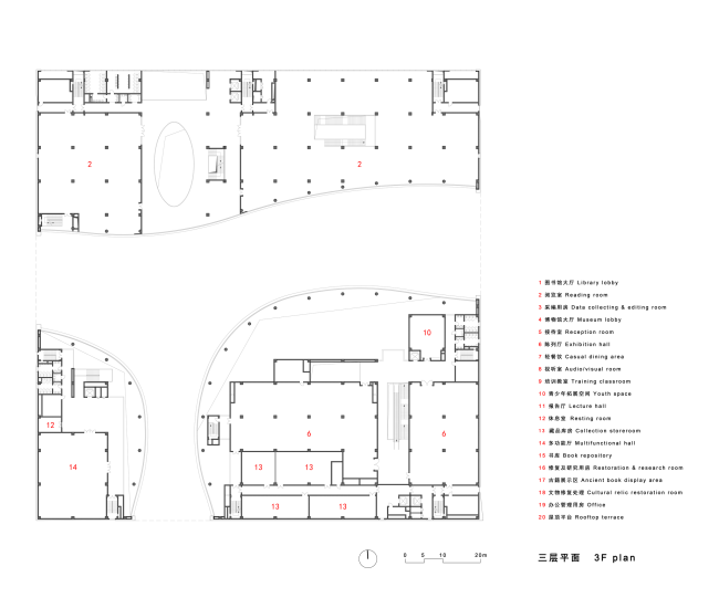
Границы прямоугольного в плане участка повторяют внешние стены комплекса: с трех уличных сторон они облицованы камнем и прорезаны воротами-арками, с четвертой, «водной», фасад, как упоминалось, остеклен. Однако внутри геометрия совсем иная: сложный криволинейный план двора-площади призван напоминать о форме старинной печи для обжига керамики. Ее силуэт прочитывается в этом пустом пространстве, окруженном тремя корпусами: сами они получили ламели на фасадах кирпичного цвета как еще одну дань прошлому.
 
Музей и библиотека Цзяшаня
Музей и библиотека Цзяшаня
Фото © Qiang Zhao
Музей и библиотека Цзяшаня
Музей и библиотека Цзяшаня
Фото © Qiang Zhao
Музей и библиотека Цзяшаня
Музей и библиотека Цзяшаня
Фото © Qiang Zhao
Музей и библиотека Цзяшаня
Музей и библиотека Цзяшаня
Фото © Qiang Zhao
Музей и библиотека Цзяшаня
Музей и библиотека Цзяшаня
Фото © Qiang Zhao
Музей и библиотека Цзяшаня
Музей и библиотека Цзяшаня
Фото © Qiang Zhao
Музей и библиотека Цзяшаня
Музей и библиотека Цзяшаня
Фото © Qiang Zhao
Музей и библиотека Цзяшаня
Музей и библиотека Цзяшаня
Фото © Qiang Zhao
Музей и библиотека Цзяшаня
Музей и библиотека Цзяшаня
Фото © Qiang Zhao
Музей и библиотека Цзяшаня
Музей и библиотека Цзяшаня
Фото © Qiang Zhao
Музей и библиотека Цзяшаня
Музей и библиотека Цзяшаня
Фото © Qiang Zhao
Музей и библиотека Цзяшаня
Музей и библиотека Цзяшаня
© Architectural Design & Research Institute of Zhejiang University
Музей и библиотека Цзяшаня
Музей и библиотека Цзяшаня
© Architectural Design & Research Institute of Zhejiang University
Музей и библиотека Цзяшаня
Музей и библиотека Цзяшаня
© Architectural Design & Research Institute of Zhejiang University
Музей и библиотека Цзяшаня
Музей и библиотека Цзяшаня
© Architectural Design & Research Institute of Zhejiang University
Музей и библиотека Цзяшаня
Музей и библиотека Цзяшаня
© Architectural Design & Research Institute of Zhejiang University
Музей и библиотека Цзяшаня
Музей и библиотека Цзяшаня
© Architectural Design & Research Institute of Zhejiang University
Музей и библиотека Цзяшаня
Музей и библиотека Цзяшаня
© Architectural Design & Research Institute of Zhejiang University
Музей и библиотека Цзяшаня
Музей и библиотека Цзяшаня
© Architectural Design & Research Institute of Zhejiang University