Размещено на портале Архи.ру (www.archi.ru)

24.06.2021

Геометрические игры

Нина Фролова
Объект:
Офисное здание Never Never Cube
Адрес:
Индия, None, Мохали.
Мастерская:
Studio Ardete

В Мохали, городе-спутнике Чандигарха, архитекторы Studio Ardete снабдили офисное здание выразительным фасадом с асимметричными балконами, оставшись в жестких рамках бюджета.

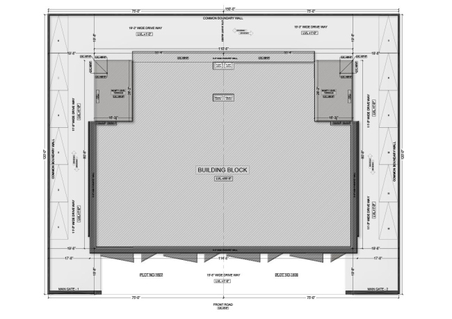
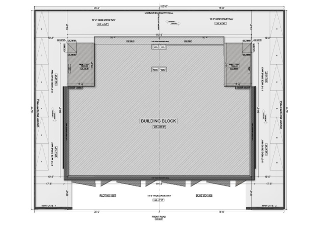
Мохали возник на месте одноименной деревни в конце 1960-х гг. – сначала как промышленный район, затем там появились жилые дома, а в наши дни это важный центр IT-индустрии штата Пенджаб.
 

Офисное здание Never Never Cube
Офисное здание Never Never Cube
Фото © Purnesh Dev Nikhanj

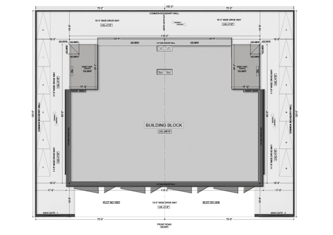
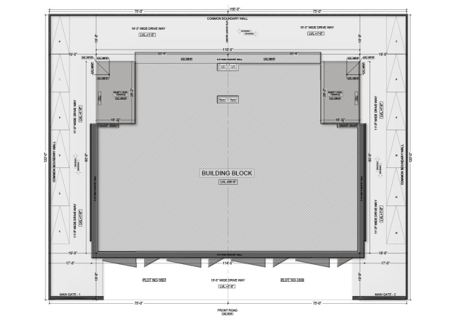
Задачей архитекторов было построить офисное здание на обращенном на юго-восток участке, который заставлял особенно учитывать климатические условия, защищая интерьер от солнечного жара. Также было важным подчеркнуть отличия Never Never Cube от окружающих сооружений, часто довольно банальных на вид.
 
Офисное здание Never Never Cube
Офисное здание Never Never Cube
Фото © Purnesh Dev Nikhanj

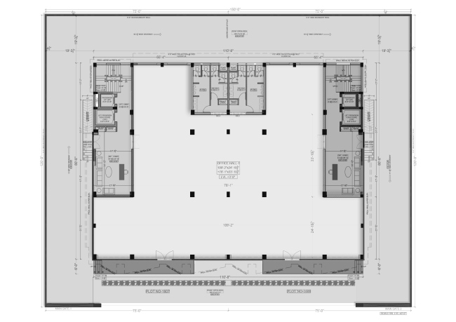
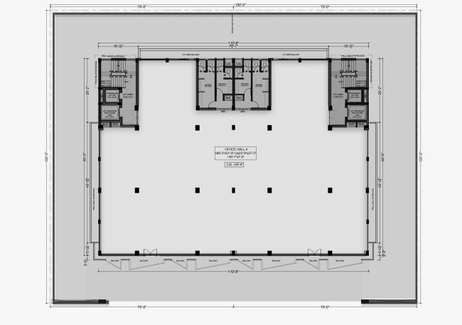
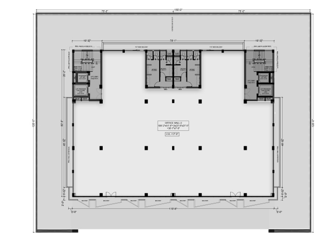
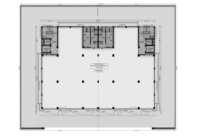
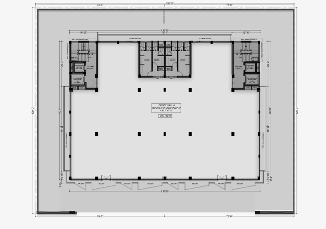
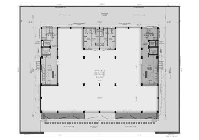
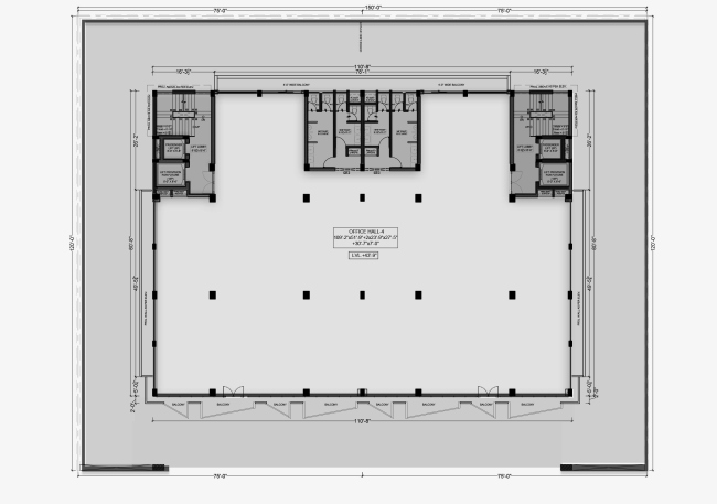
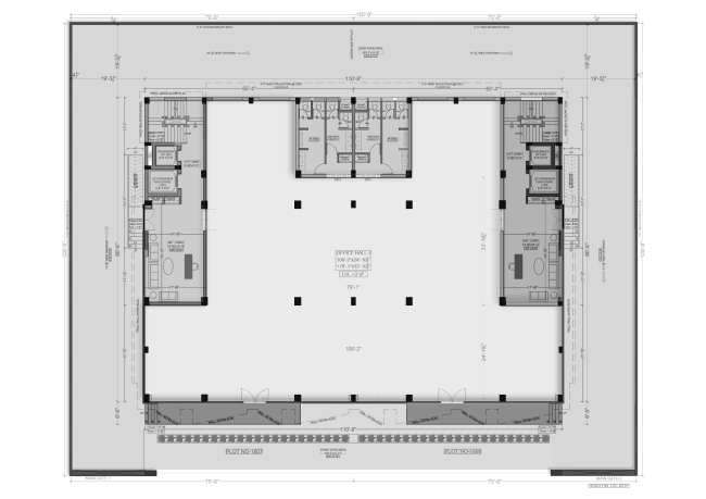
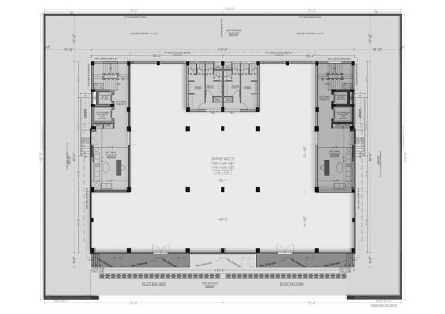
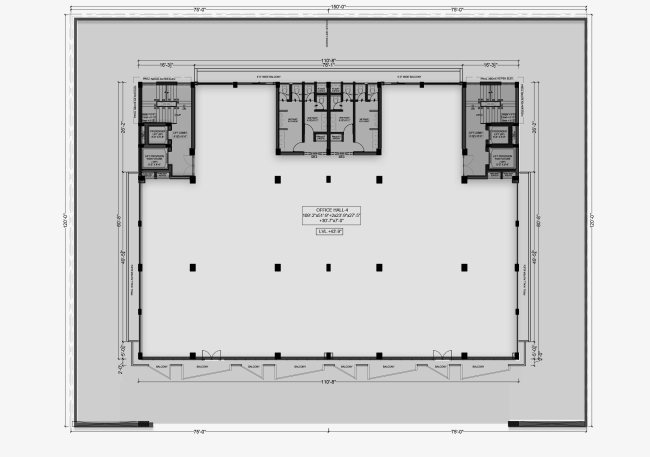
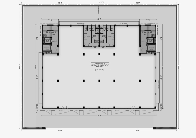
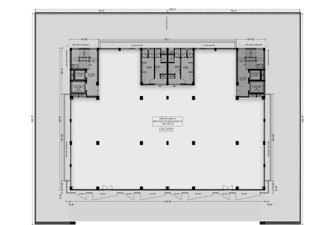
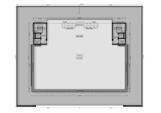
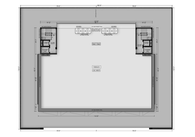
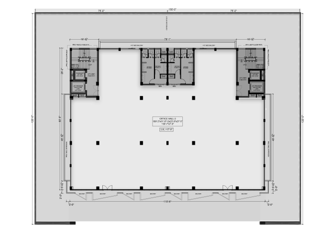
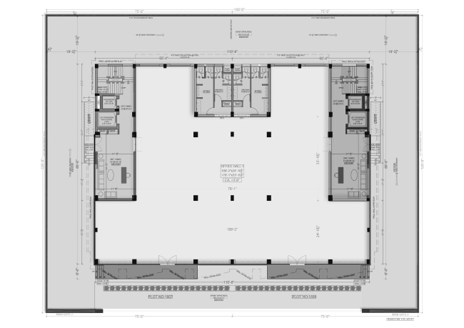
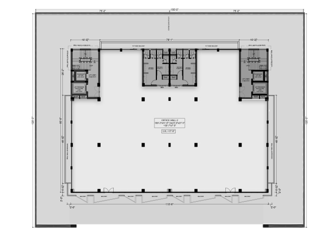
Соображения эффективности и экономии определили суть проекта: это призматический объем со свободной планировкой, подходящей разным арендаторам. Архитекторам оставалось проявить свою фантазию только на фасаде.
 
Офисное здание Never Never Cube
Офисное здание Never Never Cube
Фото © Purnesh Dev Nikhanj

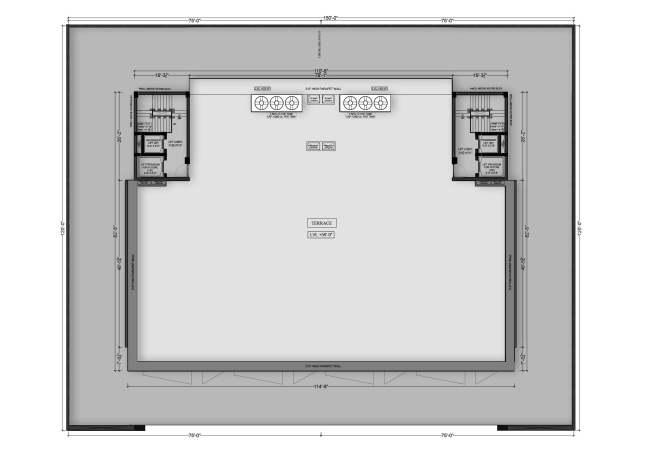
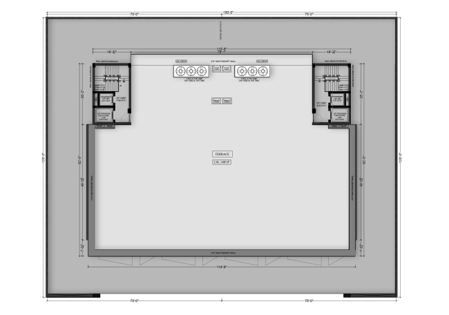
Внутренний, остекленный слой авторы закрыли конструкцией из бетона: разнообразные угловатые формы содержат балконы, где сотрудники офисов могут выпить кофе или размяться во время небольшого перерыва. Необходимое общественное пространство превращается в занимательную геометрическую игру в отличие от типичных балконов-террас, охватывающих здание по периметру.
 
Офисное здание Never Never Cube
Офисное здание Never Never Cube
Фото © Purnesh Dev Nikhanj

Кроме того, архитекторы встроили в конструкцию фасада «вазоны» для растений, тем самым обеспечив обитателям офиса свою долю природной среды, столь ценную в городе.
 
Офисное здание Never Never Cube
Офисное здание Never Never Cube
Фото © Purnesh Dev Nikhanj

При  этом им удалось вписаться в бюджет 1000 рупий за квадратный фут, то есть около 10 450 рублей за квадратный метр.
Офисное здание Never Never Cube
Офисное здание Never Never Cube
Фото © Purnesh Dev Nikhanj
Офисное здание Never Never Cube
Офисное здание Never Never Cube
Фото © Purnesh Dev Nikhanj
Офисное здание Never Never Cube
Офисное здание Never Never Cube
Фото © Purnesh Dev Nikhanj
Офисное здание Never Never Cube
Офисное здание Never Never Cube
© Studio Ardete
Офисное здание Never Never Cube
Офисное здание Never Never Cube
© Studio Ardete
Офисное здание Never Never Cube
Офисное здание Never Never Cube
Фото © Purnesh Dev Nikhanj
Офисное здание Never Never Cube
Офисное здание Never Never Cube
Фото © Purnesh Dev Nikhanj
Офисное здание Never Never Cube
Офисное здание Never Never Cube
Фото © Purnesh Dev Nikhanj
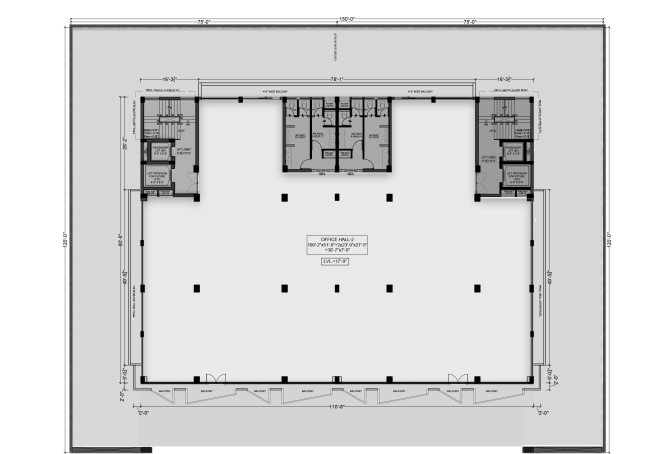
Офисное здание Never Never Cube
Офисное здание Never Never Cube
© Studio Ardete
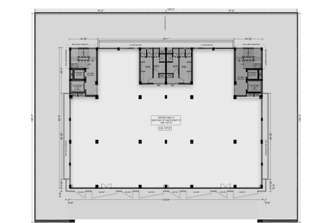
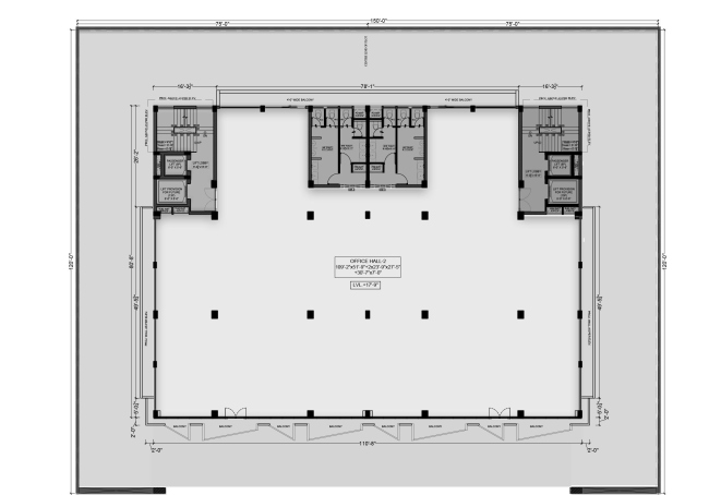
Офисное здание Never Never Cube
Офисное здание Never Never Cube
© Studio Ardete
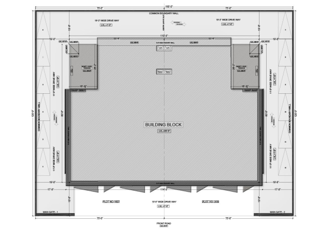
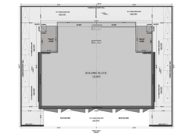
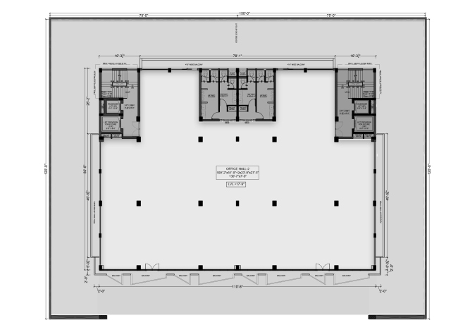
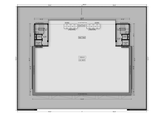
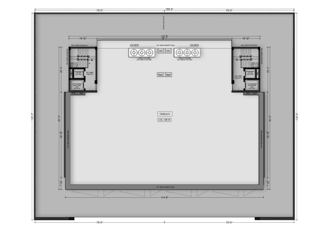
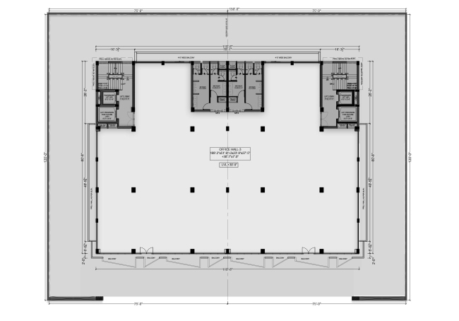
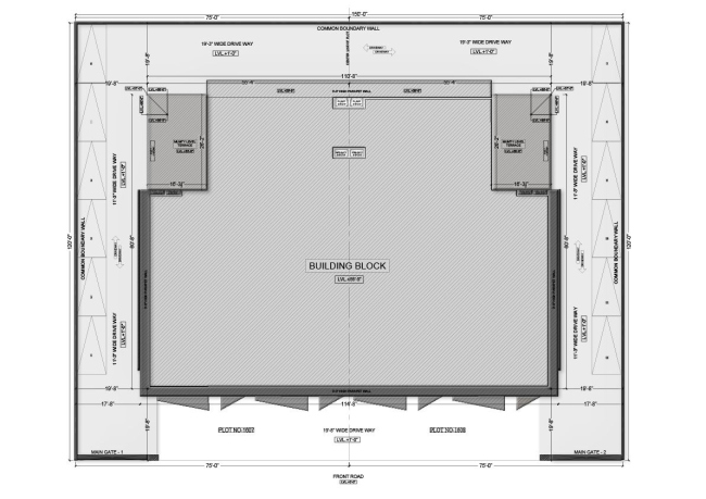
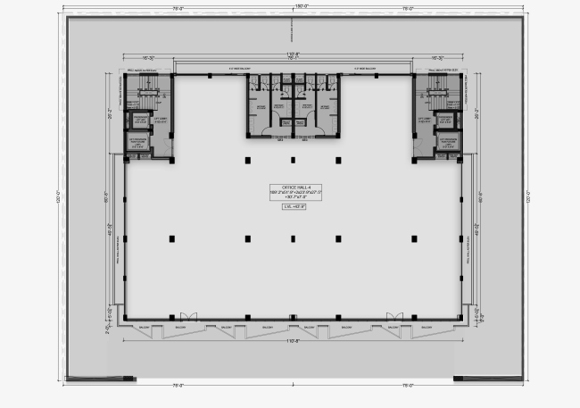
Офисное здание Never Never Cube
Офисное здание Never Never Cube
© Studio Ardete
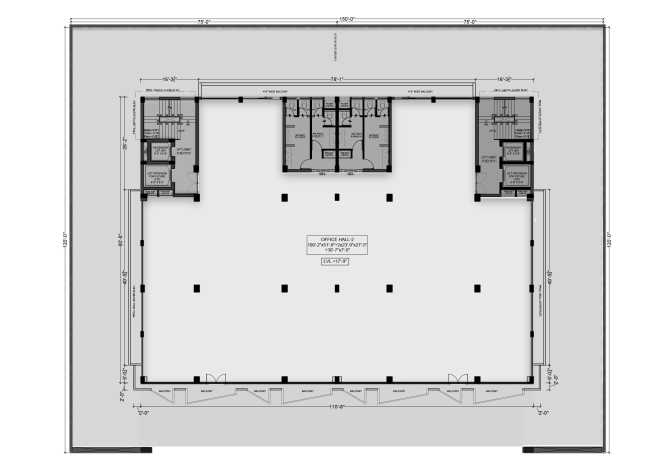
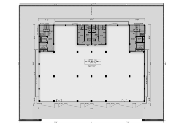
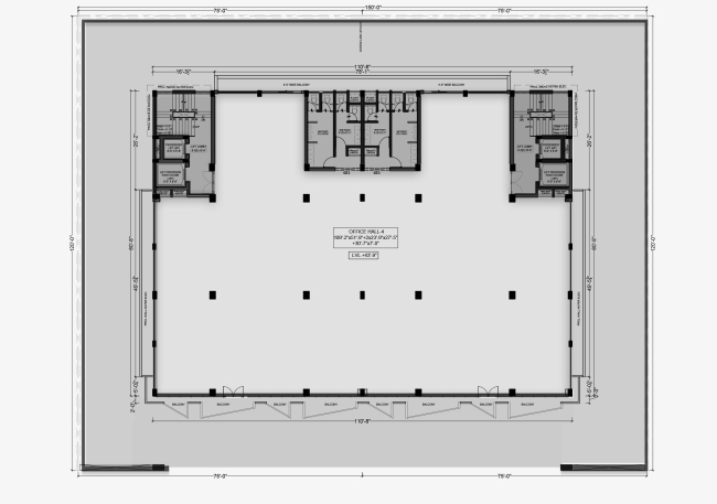
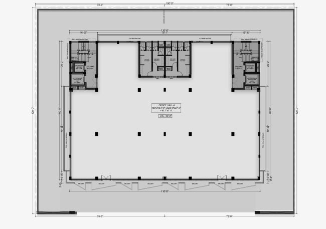
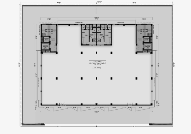
Офисное здание Never Never Cube
Офисное здание Never Never Cube
© Studio Ardete
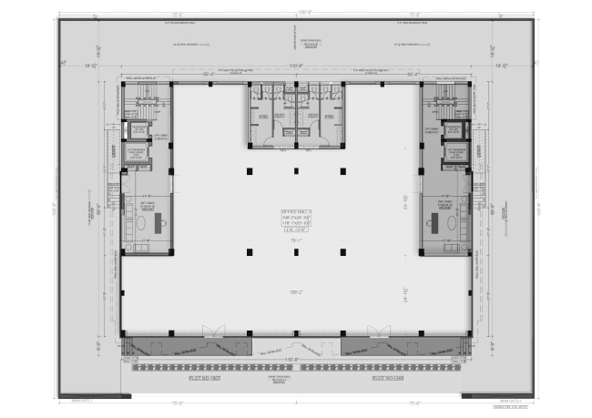
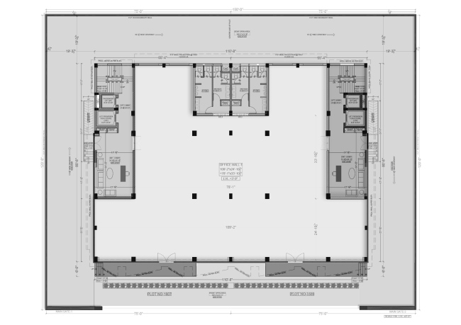
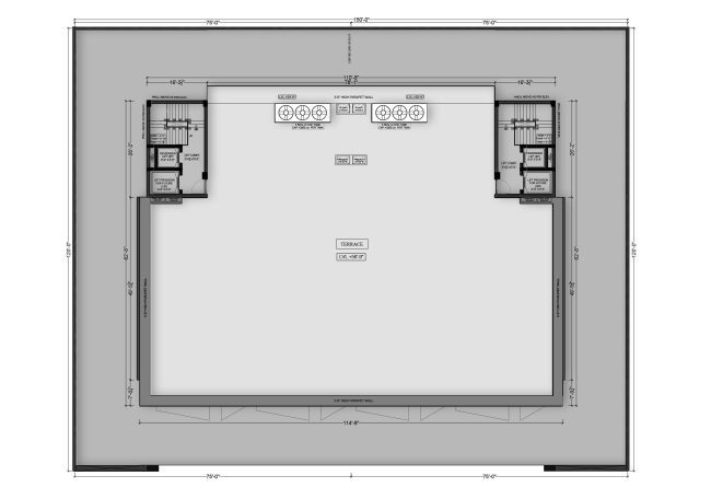
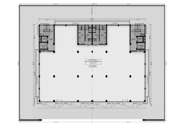
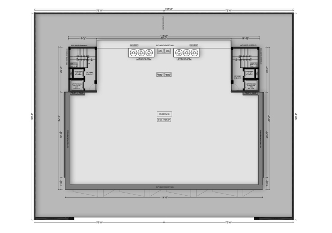
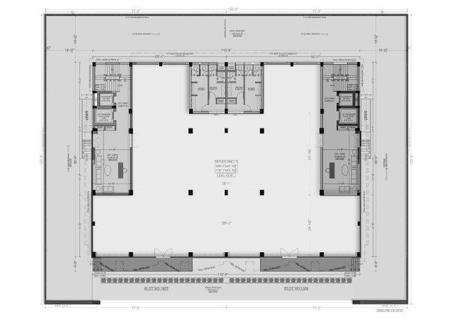
Офисное здание Never Never Cube
Офисное здание Never Never Cube
© Studio Ardete
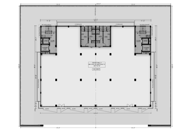
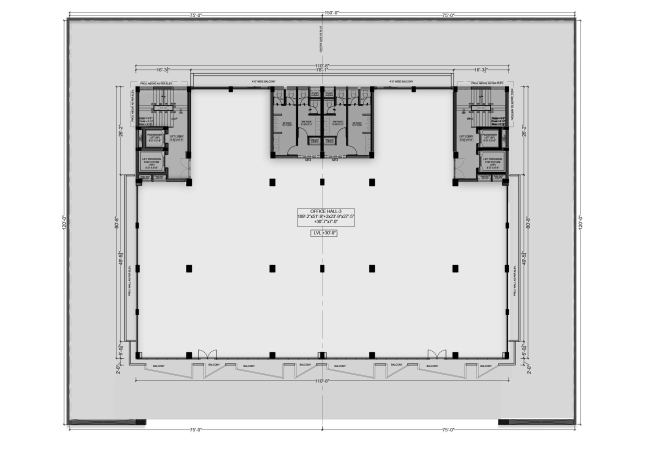
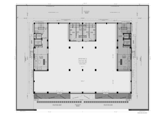
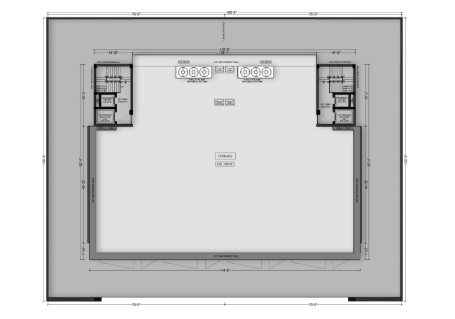
Офисное здание Never Never Cube
Офисное здание Never Never Cube
© Studio Ardete
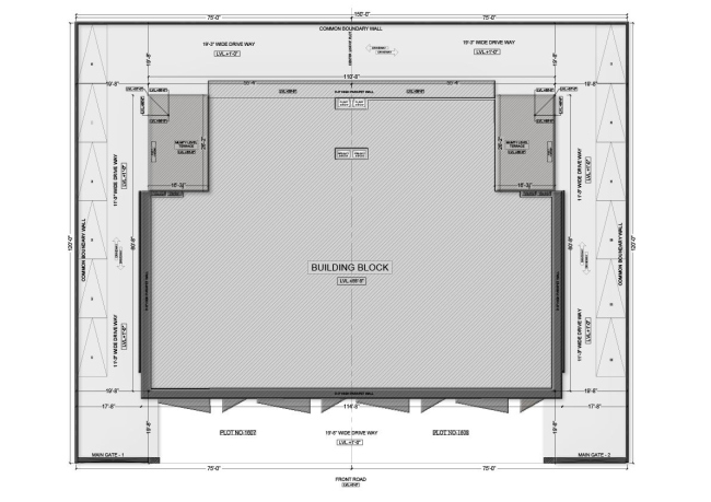
Офисное здание Never Never Cube
Офисное здание Never Never Cube
© Studio Ardete
Офисное здание Never Never Cube
Офисное здание Never Never Cube
© Studio Ardete