Размещено на портале Архи.ру (www.archi.ru)

03.06.2021

Керамические тома

Нина Фролова
Объект:
Публичная библиотека Дорнбирна
Адрес:
Австрия, None, Дорнбирн.
Мастерская:
Dietrich Untertrifaller

Ажурный фасад новой библиотеки по проекту Dietrich | Untertrifaller в австрийском Дорнбирне покрыт полками с книгами – но не бумажными, а из керамики.

Библиотека в цифровую эпоху меняет функцию, превращаясь в первую очередь в общественный центр: информацию теперь редко получают из взятых на абонемент книг. Поэтому архитекторы Dietrich | Untertrifaller сразу задумали свое здание как «городскую гостиную», «третье место», где можно провести время вне дома, в обществе других людей.
 

Публичная библиотека Дорнбирна
Публичная библиотека Дорнбирна
Фото © Albrecht Schnabel

Там предусмотрены тихие уголки для чтения, но не меньше пространства создано для тех, кто планирует заниматься в группе или просто обмениваться впечатлениями от хранящихся в библиотеке материалов.
 
Публичная библиотека Дорнбирна
Публичная библиотека Дорнбирна
Фото © Aldo Amoretti

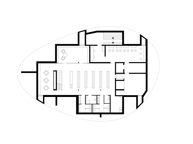
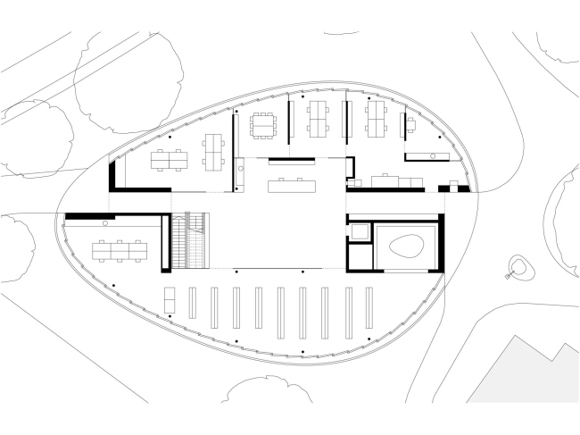
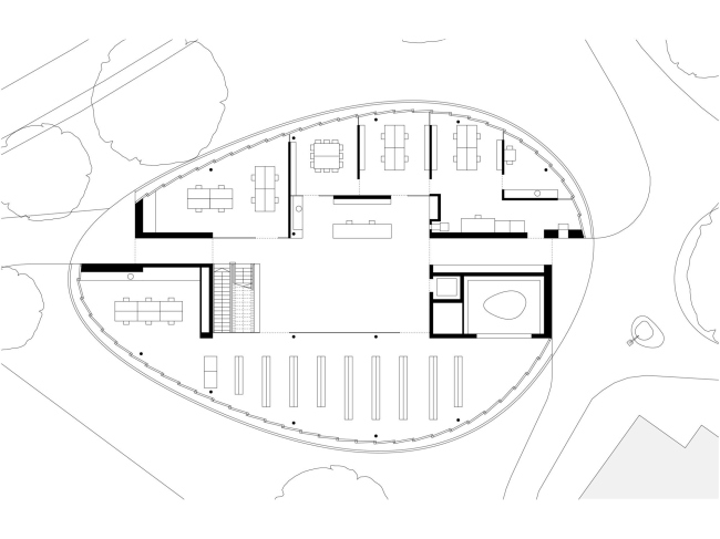
Овальный объем нового здания контрастирует с обычными, прямоугольными постройками вокруг. Снаружи он закрыт ажурным керамическим экраном, имитирующим книжные полки и защищающим интерьер от солнца. За ним на расстоянии 70 см находится основной фасад с тройным остеклением.
 
Публичная библиотека Дорнбирна
Публичная библиотека Дорнбирна
Фото © Albrecht Schnabel

В центре здания помещен атриум с главной стойкой выдачи книг и фильтрованным верхним светом. Вокруг на двух уровнях расставлены стеллажи свободного доступа. На цокольном этаже находятся медиатека, игротека с видеоиграми и мастерская с разнообразным оборудованием.
 
Публичная библиотека Дорнбирна
Публичная библиотека Дорнбирна
Фото © Albrecht Schnabel

На общей площади в 1200 м2 поместилось 100 000 книг и экземпляров периодики. Кроме читальных зон и книгохранилища, здесь также есть административные помещения и переговорные. Особое внимание уделено медиа-материалам для детей и подростков, для которых предусмотрены свои зоны общения, где можно обсудить только что услышанную музыку или опробованную игру.
 
Публичная библиотека Дорнбирна
Публичная библиотека Дорнбирна
Фото © Albrecht Schnabel

Атриум может использоваться для концертов, собраний, лекций, кинопоказов. В перилах лестницы скрывается экран, с противоположной стороны размещен проектор, а остекленные перекрытия можно при необходимости затемнить.
Публичная библиотека Дорнбирна
Публичная библиотека Дорнбирна
Фото © Albrecht Schnabel
Публичная библиотека Дорнбирна
Публичная библиотека Дорнбирна
Фото © Albrecht Schnabel
Публичная библиотека Дорнбирна
Публичная библиотека Дорнбирна
Фото © Albrecht Schnabel
Публичная библиотека Дорнбирна
Публичная библиотека Дорнбирна
Фото © Albrecht Schnabel
Публичная библиотека Дорнбирна
Публичная библиотека Дорнбирна
Фото © Albrecht Schnabel
Публичная библиотека Дорнбирна
Публичная библиотека Дорнбирна
© Dietrich | Untertrifaller
Публичная библиотека Дорнбирна
Публичная библиотека Дорнбирна
© Dietrich | Untertrifaller
Публичная библиотека Дорнбирна
Публичная библиотека Дорнбирна
© Dietrich | Untertrifaller
Публичная библиотека Дорнбирна
Публичная библиотека Дорнбирна
© Dietrich | Untertrifaller