Размещено на портале Архи.ру (www.archi.ru)

01.06.2021

Союз Церкви и государства

Нина Фролова
Объект:
Библиотека Ламбетского дворца
Адрес:
Великобритания, None, Лондон.
Мастерская:
Wright & Wright Architects

Новое здание библиотеки Ламбетского дворца, лондонской резиденции архиепископа Кентерберийского, построено на берегу Темзы напротив Парламента. Авторы проекта – Wright & Wright Architects.

Ламбетский дворец стал резиденцией архиепископов Кентерберийских около 1200 года, но уже тогда напротив него, через Темзу, располагался королевский Вестминстерский дворец. В наши дни актуальность этого соседства светской и религиозной власти сохраняется уже в рамках Англиканской церкви, главой которой является правящий монарх – пусть Вестминстер и занял Парламент.
 

Библиотека Ламбетского дворца
Библиотека Ламбетского дворца
Фото © Hufton + Crow

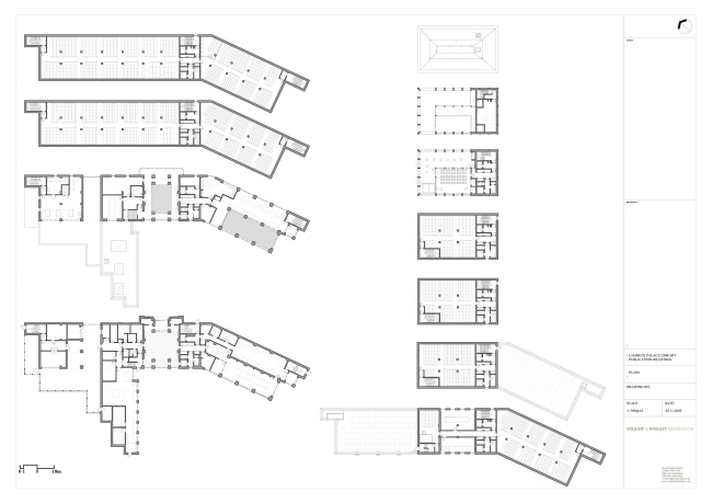
Об этой градостроительной и исторической связи не забыли архитекторы новой библиотеки Ламбетского дворца, первого здания в его комплексе за последние 185 лет. Wright & Wright Architects сделали свое здание девятиэтажным – с невысокими крыльями по бокам. Эта «башня» перекликается через Темзу с Вестминстерским дворцом в его нынешнем варианте, что уместно также потому, что в ней хранятся документы, рассказывающие именно об отношениях Церкви и государства. Также она заявляет о значении учреждения и продолжает, как считают авторы, линию заметных архитектурных предприятий архиепископов Кентерберийских.
 
Библиотека Ламбетского дворца
Библиотека Ламбетского дворца
Фото © Hufton + Crow

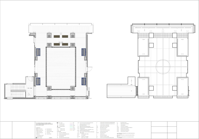
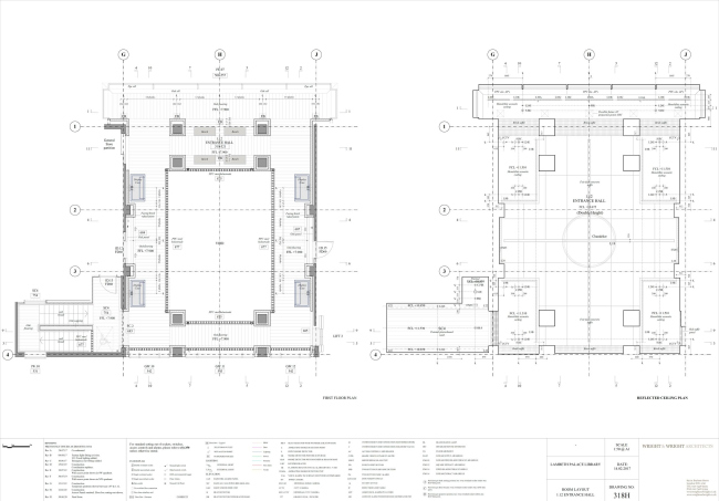
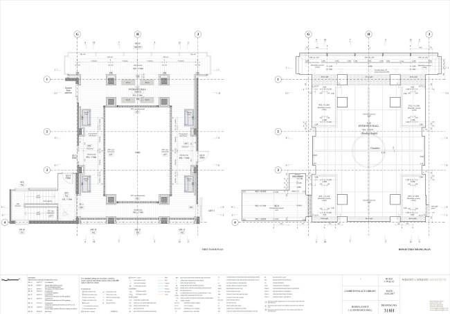
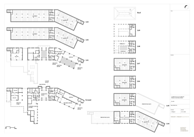
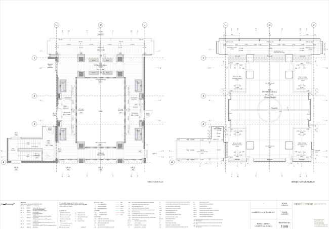
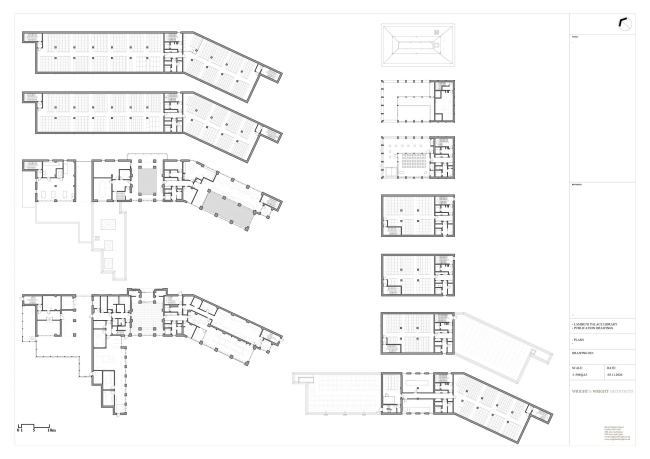
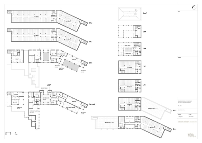
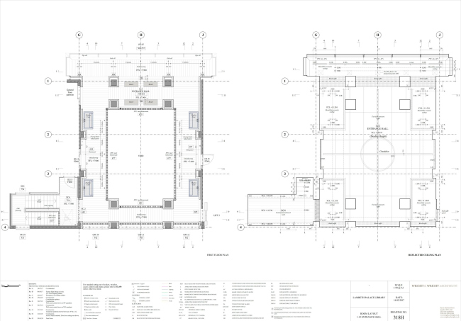
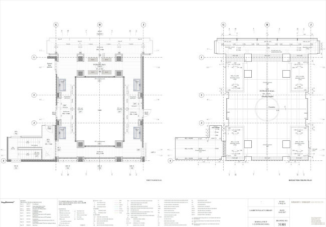
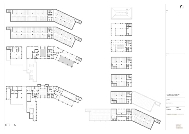
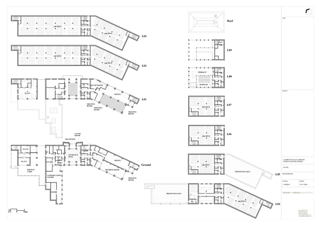
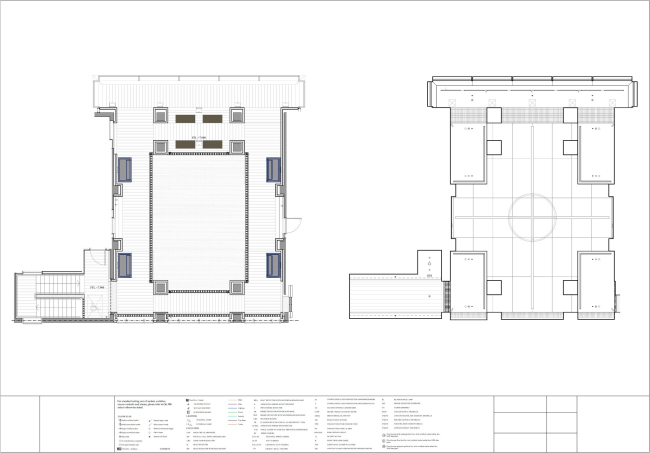
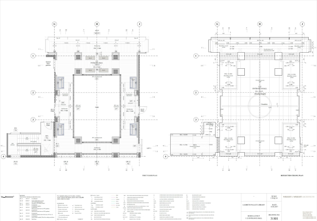
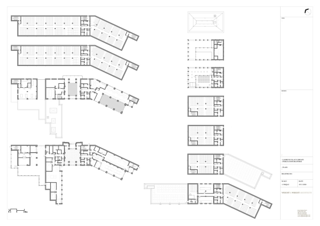
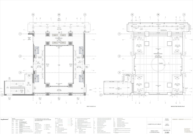
Библиотека построена на краю парка, вдали от собственно дворца. Рядом создан пруд и «заболоченный» луг. Их пешеходы видят сквозь стеклянный вестибюль: так исторически закрытый комплекс немного приоткрылся горожанам. Кроме того, в этом холле размещены виртуальные и реальные экспонаты, что должно привлекать внимание прохожих и так оживлять фронт улицы. Новая библиотека – исследовательское учреждение с небольшой пропускной способностью (ее читальный зал – всего на 22 места), однако там есть и «периодически» общественное пространство. Наверху «башни» помещен зал для лекций на 70 слушателей и терраса с эффектными видами Лондона.
 
Библиотека Ламбетского дворца
Библиотека Ламбетского дворца
Фото © Hufton + Crow

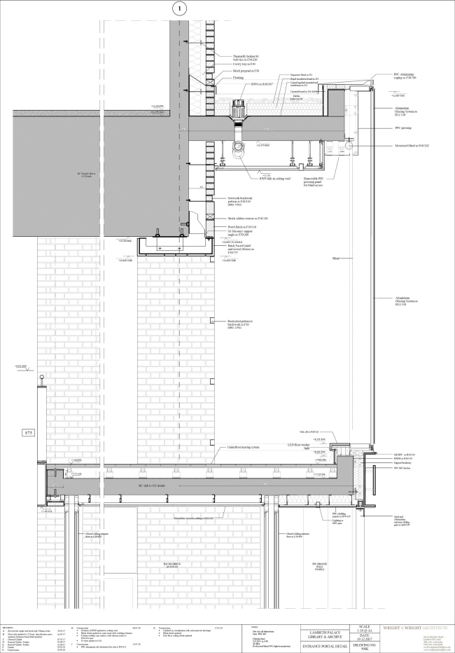
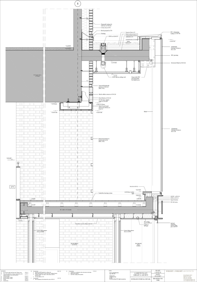
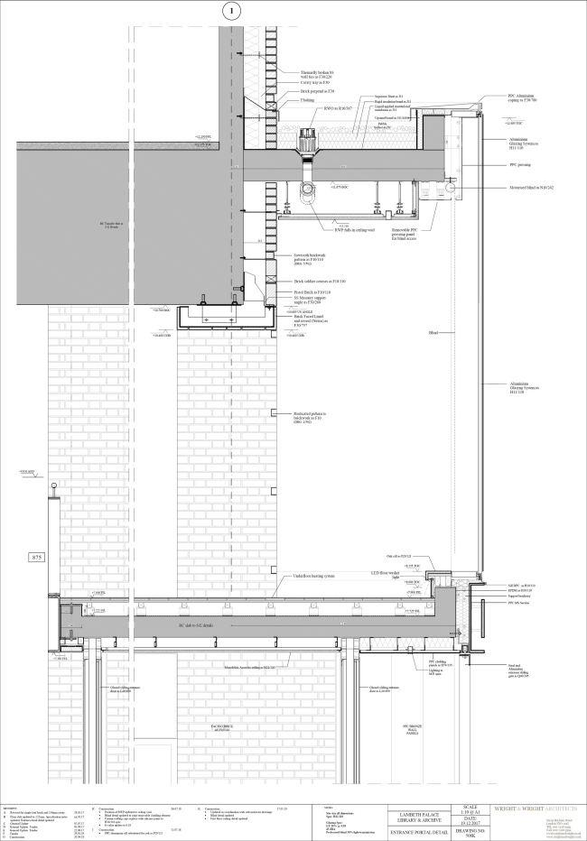
Для фасадов выбрали узорную кирпичную кладку: она перекликается с тюдоровскими воротами дворца и его старой, несущей следы времени оградой.
 
Библиотека Ламбетского дворца
Библиотека Ламбетского дворца
Фото © Hufton + Crow

В новом здании собраны прежде разрозненные коллекции – архив Церкви Англии и собственно библиотека Ламбетского дворца, находившаяся до последнего времени прямо в историческом здании: основанная в 1610, она стала одной из первых публичных библиотек Британии. Вместе это собрание – крупнейший корпус религиозных материалов в Европе за пределами Ватикана, причем самые ранние из них относятся к IX веку. Среди них и молитвенник Елизаветы I, и единственный дошедший для нас экземпляр приказа о смертной казни Марии Стюарт.
 
Библиотека Ламбетского дворца
Библиотека Ламбетского дворца
Фото © Hufton + Crow

Для коллекций предусмотрены 20 километров полок, размещенных выше паводкового уровня Темзы: бывшее имение Ламбет находится в ее пойме. Помещения архива близки к герметичности, причем нужную температуру и влажность там поддерживают в основном «пассивными» средствами. Здание в целом «устойчивое»: так, солнечные батареи на крыше обеспечивают его половиной необходимой электроэнергии.
 
Библиотека Ламбетского дворца
Библиотека Ламбетского дворца
Фото © Hufton + Crow

В программу проекта (5400 м2, бюджет 23,5 млн фунтов), помимо упомянутых помещений, входят также небольшие семинарские аудитории, офис на 30 сотрудников, реставрационная мастерская на 8 специалистов.
Библиотека Ламбетского дворца
Библиотека Ламбетского дворца
Фото © Hufton + Crow
Библиотека Ламбетского дворца
Библиотека Ламбетского дворца
Фото © Hufton + Crow
Библиотека Ламбетского дворца
Библиотека Ламбетского дворца
Фото © Hufton + Crow
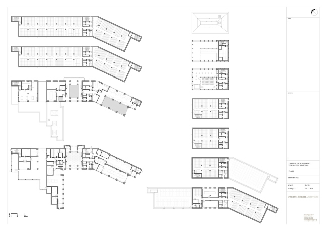
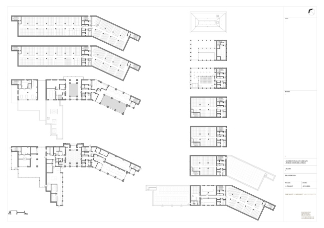
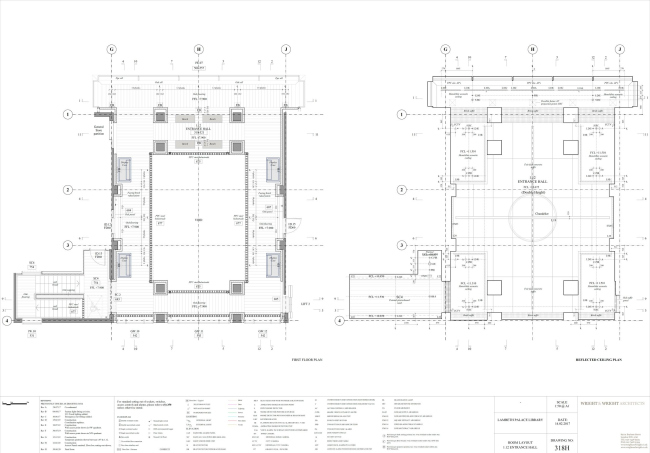
Библиотека Ламбетского дворца
Библиотека Ламбетского дворца
© Wright & Wright Architects
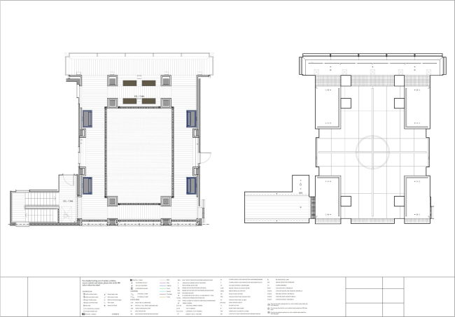
Библиотека Ламбетского дворца
Библиотека Ламбетского дворца
© Wright & Wright Architects
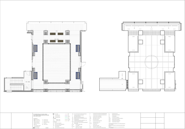
Библиотека Ламбетского дворца
Библиотека Ламбетского дворца
© Wright & Wright Architects
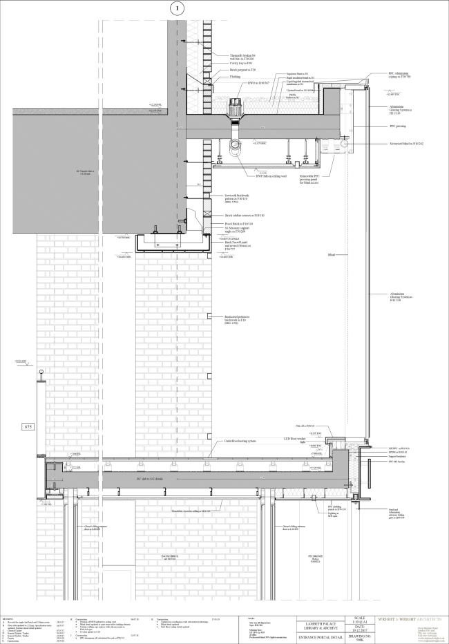
Библиотека Ламбетского дворца
Библиотека Ламбетского дворца
© Wright & Wright Architects
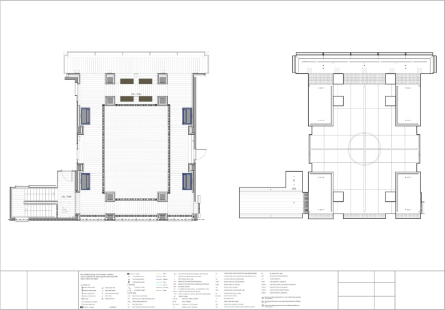
Библиотека Ламбетского дворца
Библиотека Ламбетского дворца
© Wright & Wright Architects
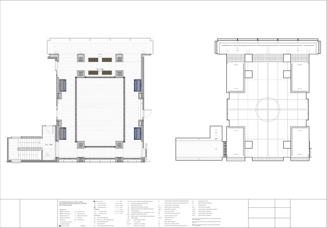
Библиотека Ламбетского дворца
Библиотека Ламбетского дворца
© Wright & Wright Architects
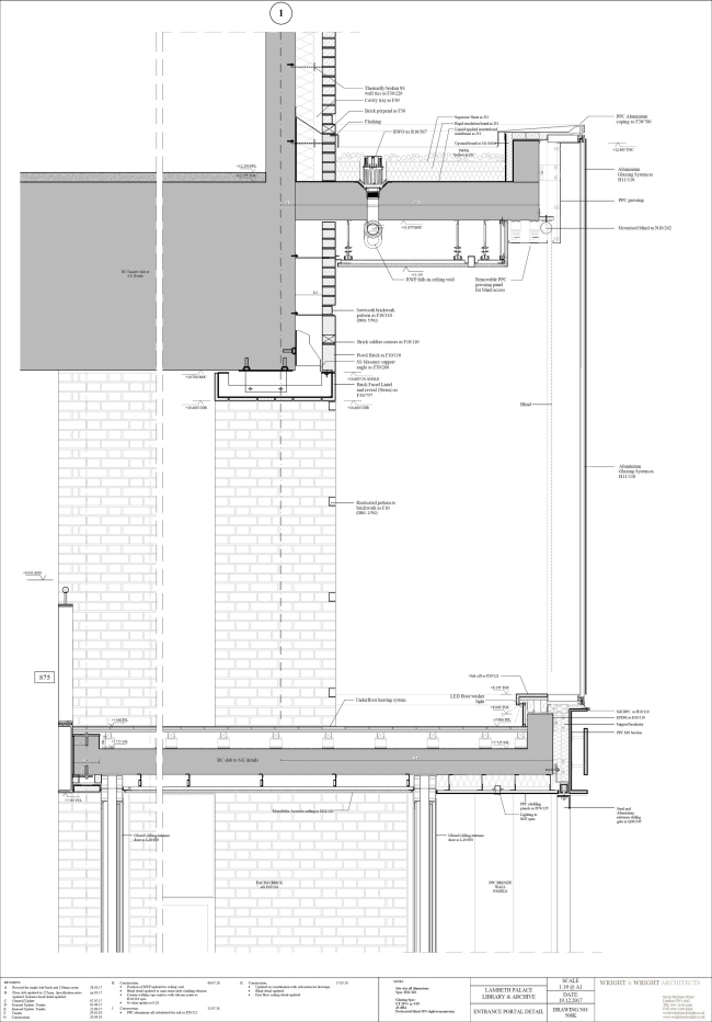
Библиотека Ламбетского дворца
Библиотека Ламбетского дворца
© Wright & Wright Architects
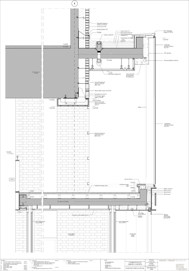
Библиотека Ламбетского дворца
Библиотека Ламбетского дворца
© Wright & Wright Architects
Библиотека Ламбетского дворца
Библиотека Ламбетского дворца
© Wright & Wright Architects
Библиотека Ламбетского дворца
Библиотека Ламбетского дворца
© Wright & Wright Architects
Библиотека Ламбетского дворца
Библиотека Ламбетского дворца
© Wright & Wright Architects
Библиотека Ламбетского дворца
Библиотека Ламбетского дворца
© Wright & Wright Architects