Размещено на портале Архи.ру (www.archi.ru)

28.05.2021

Дом между деревьев

Объект:
Дом Villa Robles
Адрес:
Аргентина, None,
Мастерская:
Diez Pasos
РЕХАУ
Авторский коллектив:
Мара Амбросио (Mara Ambrosio) и Херардо Норьега (Gerardo Noriega)

Вилла в лесу на аргентинском побережье Атлантики по проекту бюро Diez Pasos.

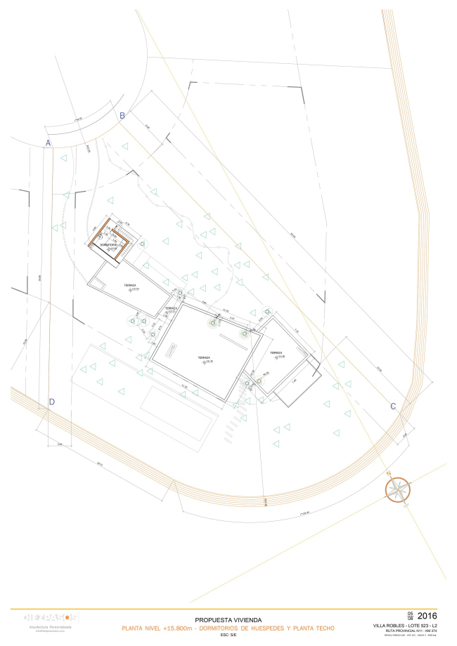
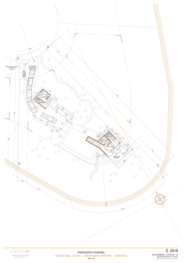
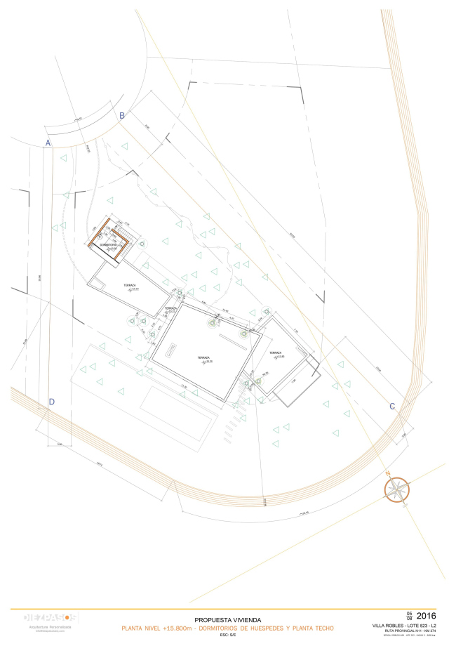
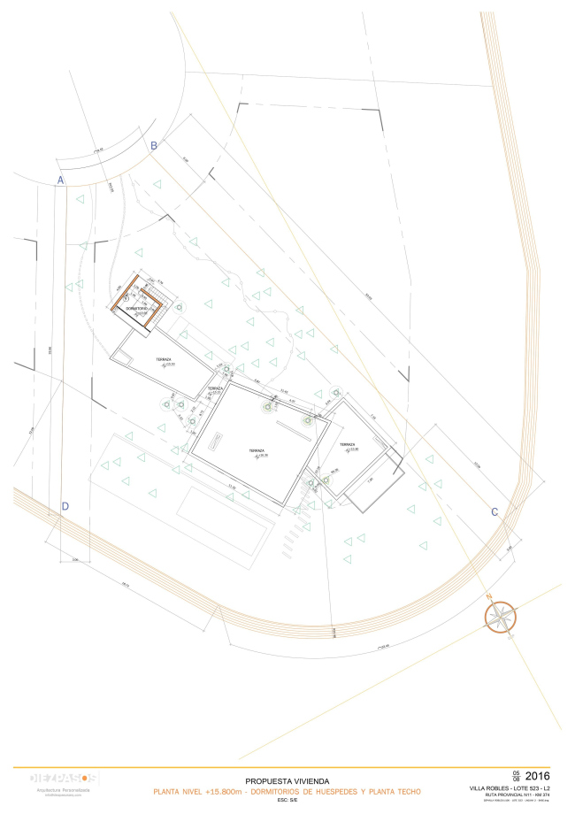
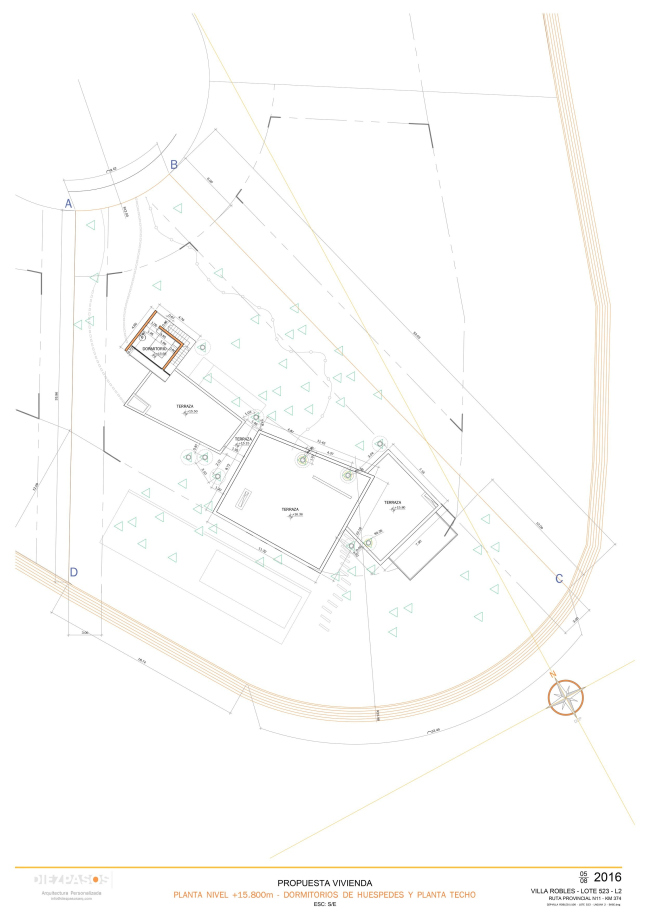
Дом Villa Robles построен в лесистой местности у реки совсем рядом с берегом океана. Архитекторы Мара Амбросио (Mara Ambrosio) и Херардо Норьега (Gerardo Noriega) аккуратно вписали его в перепад рельефа, а также – между деревьями, чтобы сохранить большинство из них при строительстве.
 

Дом Villa Robles
Дом Villa Robles
Фото © Diego Medina

Поэтому у виллы площадью почти 350 м2 сложный план, она вытянулась между соснами, тополями и акациями. Небольшая глубина постройки позволила наполнить интерьеры естественным светом: окна здесь играют ключевую роль.
 
Дом Villa Robles
Дом Villa Robles
Фото © Diego Medina

В проекте использованы три оконные системы Rehau: Euro-Design 60, Euro-Design Slide и High-Design Slide. Их произвел южноамериканский партнер Rehau – компания Voss 2000.
 
Дом Villa Robles
Дом Villa Robles
Фото © Diego Medina

Черные ламинированные оконные рамы служат четким акцентом на границе дерева или камня и поверхности стекла. Панорамные окна впускают внутрь не только солнечные лучи, но и природное окружение. Часть из них можно раздвинуть, превращая комнаты и террасы в единое целое.
 
Дом Villa Robles Фото © Diego Medina
Дом Villa Robles
Фото © Diego Medina
Дом Villa Robles Фото © Diego Medina
Дом Villa Robles
Фото © Diego Medina
Дом Villa Robles Фото © Diego Medina
Дом Villa Robles
Фото © Diego Medina
Дом Villa Robles Фото © Diego Medina
Дом Villa Robles
Фото © Diego Medina
Дом Villa Robles Фото © Diego Medina
Дом Villa Robles
Фото © Diego Medina
Дом Villa Robles
Дом Villa Robles
Фото © Diego Medina
Дом Villa Robles Фото © Diego Medina
Дом Villa Robles
Фото © Diego Medina
Дом Villa Robles Фото © Diego Medina
Дом Villa Robles
Фото © Diego Medina
Дом Villa Robles Фото © Diego Medina
Дом Villa Robles
Фото © Diego Medina
Дом Villa Robles Фото © Diego Medina
Дом Villa Robles
Фото © Diego Medina
Дом Villa Robles
Дом Villa Robles
Фото © Diego Medina
Дом Villa Robles
Дом Villa Robles
Фото © Diego Medina
Дом Villa Robles
Дом Villa Robles
Фото © Diego Medina
Дом Villa Robles Фото © Diego Medina
Дом Villa Robles
Фото © Diego Medina
Дом Villa Robles Фото © Diego Medina
Дом Villa Robles
Фото © Diego Medina
Дом Villa Robles Фото © Diego Medina
Дом Villa Robles
Фото © Diego Medina
Дом Villa Robles Фото © Diego Medina
Дом Villa Robles
Фото © Diego Medina
Дом Villa Robles Фото © Diego Medina
Дом Villa Robles
Фото © Diego Medina
Дом Villa Robles
Дом Villa Robles
Фото © Diego Medina
Дом Villa Robles Фото © Diego Medina
Дом Villa Robles
Фото © Diego Medina
Дом Villa Robles Фото © Diego Medina
Дом Villa Robles
Фото © Diego Medina
Дом Villa Robles Фото © Diego Medina
Дом Villa Robles
Фото © Diego Medina
Дом Villa Robles Фото © Diego Medina
Дом Villa Robles
Фото © Diego Medina
Дом Villa Robles Фото © Diego Medina
Дом Villa Robles
Фото © Diego Medina
Дом Villa Robles Фото © Diego Medina
Дом Villa Robles
Фото © Diego Medina
Дом Villa Robles Фото © Diego Medina
Дом Villa Robles
Фото © Diego Medina
Дом Villa Robles
Дом Villa Robles
Фото © Diego Medina
Дом Villa Robles Фото © Diego Medina
Дом Villa Robles
Фото © Diego Medina
Дом Villa Robles Фото © Diego Medina
Дом Villa Robles
Фото © Diego Medina
Дом Villa Robles Фото © Diego Medina
Дом Villa Robles
Фото © Diego Medina
Дом Villa Robles Фото © Diego Medina
Дом Villa Robles
Фото © Diego Medina
Дом Villa Robles Фото © Diego Medina
Дом Villa Robles
Фото © Diego Medina
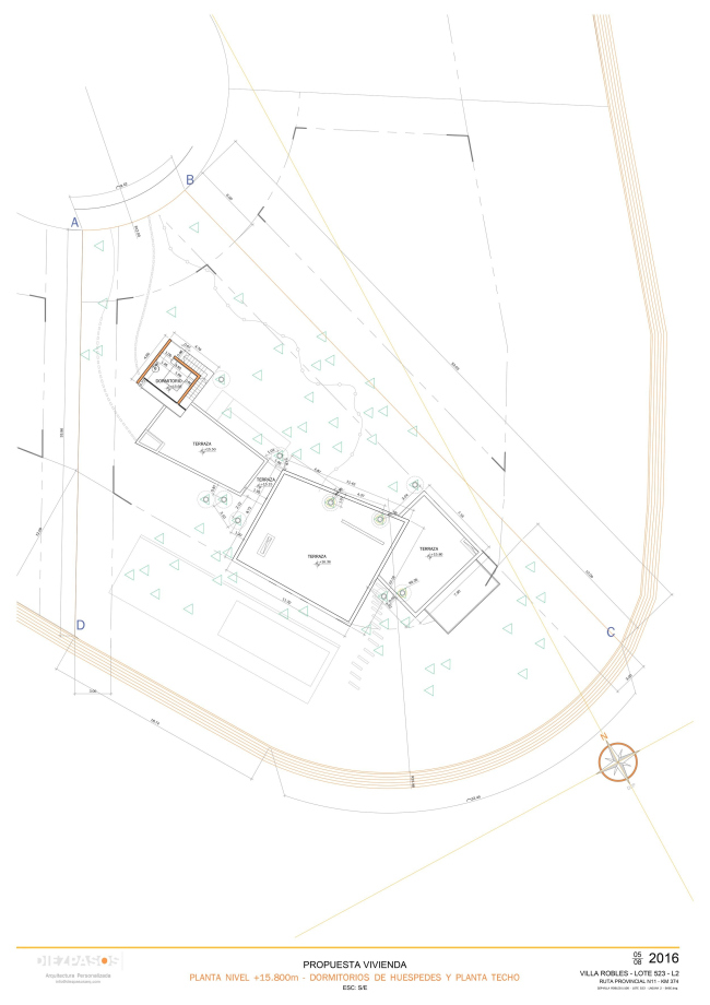
Дом Villa Robles
Дом Villa Robles
© Estudio Diez Pasos
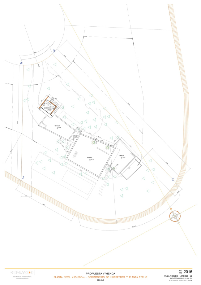
Дом Villa Robles
Дом Villa Robles
© Estudio Diez Pasos
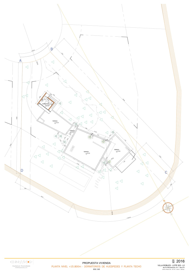
Дом Villa Robles
Дом Villa Robles
© Estudio Diez Pasos
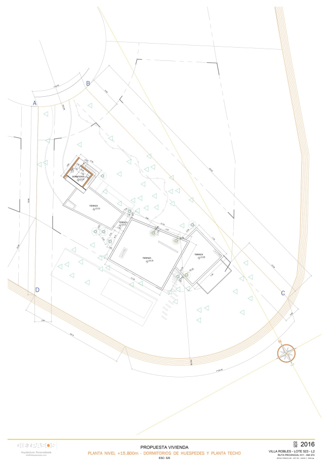
Дом Villa Robles
Дом Villa Robles
© Estudio Diez Pasos
Дом Villa Robles
Дом Villa Robles
© Estudio Diez Pasos
Дом Villa Robles © Estudio Diez Pasos
Дом Villa Robles
© Estudio Diez Pasos
Дом Villa Robles © Estudio Diez Pasos
Дом Villa Robles
© Estudio Diez Pasos
Дом Villa Robles © Estudio Diez Pasos
Дом Villa Robles
© Estudio Diez Pasos
Дом Villa Robles © Estudio Diez Pasos
Дом Villa Robles
© Estudio Diez Pasos
Дом Villa Robles © Estudio Diez Pasos
Дом Villa Robles
© Estudio Diez Pasos
Дом Villa Robles © Estudio Diez Pasos
Дом Villa Robles
© Estudio Diez Pasos
Дом Villa Robles © Estudio Diez Pasos
Дом Villa Robles
© Estudio Diez Pasos
Дом Villa Robles © Estudio Diez Pasos
Дом Villa Robles
© Estudio Diez Pasos
Дом Villa Robles © Estudio Diez Pasos
Дом Villa Robles
© Estudio Diez Pasos
Дом Villa Robles © Estudio Diez Pasos
Дом Villa Robles
© Estudio Diez Pasos
Дом Villa Robles © Estudio Diez Pasos
Дом Villa Robles
© Estudio Diez Pasos
Дом Villa Robles © Estudio Diez Pasos
Дом Villa Robles
© Estudio Diez Pasos
Дом Villa Robles
Дом Villa Robles
© Estudio Diez Pasos
Дом Villa Robles
Дом Villa Robles
© Estudio Diez Pasos
Дом Villa Robles
Дом Villa Robles
© Estudio Diez Pasos
Дом Villa Robles
Дом Villa Robles
© Estudio Diez Pasos
Дом Villa Robles
Дом Villa Robles
© Estudio Diez Pasos