Размещено на портале Архи.ру (www.archi.ru)

12.05.2021

Белые башни

Объект:
Жилой комплекс Y-Loft City
Адрес:
Китай, None, Чанчжи.
Мастерская:
Superimpose Architecture
Авторский коллектив:
Carolyn Leung, Ben de Lange, Ruben Bergambagt, Pablo Gonzalez Gonzalez, Xie Huimin

Жилой комплекс Y-Loft City в городе Чанчжи по проекту пекинского бюро Superimpose Architecture предназначен для поколения Y.

Описание предоставлено архитекторами.
 

Жилой комплекс Y-Loft City
Жилой комплекс Y-Loft City
Фото © CreatAR

Бюро Superimpose Architecture вышло за рамки традиционного жилого проектирования в промышленных районах Китая, создав три башни Y-Loft City, которые меняют понятие «жилье» для покупателей, родившихся после 1980-х.
 
Жилой комплекс Y-Loft City
Жилой комплекс Y-Loft City
Фото © CreatAR

Архитекторы спроектировали три белые скульптурные башни с квартирами-лофтами для так называемого поколения Y, с фокусом на качество жизни и вне традиционной типологии жилой застройки. В течение нескольких месяцев все квартиры были проданы за 160% от рыночной стоимости квартир в окружающих домах. Башни общей площадью 50 000 м2 и высотой 100 м расположены над открытой «торговой деревней» и являются частью генерального плана центрального делового района Чанчжи, также разработанного Superimpose Architecture.
 
Жилой комплекс Y-Loft City
Жилой комплекс Y-Loft City
Фото © CreatAR

План комплекса построен по Y-образной оси; Y-Loft City не окружен забором, как соседние дома. Такая стратегия соединяет участок с окружением, включая пятнадцать бывших подшипниковых заводов, построенных в 1945 и принадлежащих тому же заказчику, что и ЖК. Они представляют собой значительную историческую и культурную ценность для города Чанчжи. В рамках генерального плана Superimpose убедили собственника и власти не сносить эти промышленные объекты. Трансформация этого района в местный культурный центр повышает общественную ценность Y-Loft City. Благодаря своей открытости комплекс связан с окружающими школами, гостиницей, учреждениями культуры и больницей.
 
Жилой комплекс Y-Loft City
Жилой комплекс Y-Loft City
Фото © CreatAR

Башни получили свою форму, расположение и ориентацию с учетом максимальных видов из каждого жилого помещения, а также наибольшей инсоляции. Светлые материалы призваны контрастировать со скучным окружением. Концепция лофта использована для того, чтобы дать наибольшее количество жилой площади на квадратный метр. Также башни получили разнообразные балконы, которые придают им оригинальный облик, а жильцов обеспечивают ценным пространством на открытом воздухе. Вместе с тем, заказчик, согласившись с архитекторами, разработал строгие правила по использованию этих балконов именно как открытого пространства.
 
Жилой комплекс Y-Loft City
Жилой комплекс Y-Loft City
Фото © CreatAR

Архитекторы стремились сделать бюджет проекта сравнительно низким, чтобы комплекс стал доступным жильем для поколения Y. Балконы играют роль скульптурных деталей, что позволило сэкономить на фасадных материалах. Белые части фасадов контрастируют с оконными рамами и панелями из темного алюминия. Балконы выполнены из белого перфорированного алюминия.
 
Жилой комплекс Y-Loft City
Жилой комплекс Y-Loft City
Фото © CreatAR
Жилой комплекс Y-Loft City
Жилой комплекс Y-Loft City
Фото © CreatAR
Жилой комплекс Y-Loft City
Жилой комплекс Y-Loft City
Фото © CreatAR
Жилой комплекс Y-Loft City
Жилой комплекс Y-Loft City
Фото © CreatAR
Жилой комплекс Y-Loft City
Жилой комплекс Y-Loft City
Фото © CreatAR
Жилой комплекс Y-Loft City
Жилой комплекс Y-Loft City
Фото © CreatAR
Жилой комплекс Y-Loft City
Жилой комплекс Y-Loft City
Фото © CreatAR
Жилой комплекс Y-Loft City
Жилой комплекс Y-Loft City
Фото © CreatAR
Жилой комплекс Y-Loft City
Жилой комплекс Y-Loft City
Фото © CreatAR
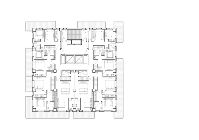
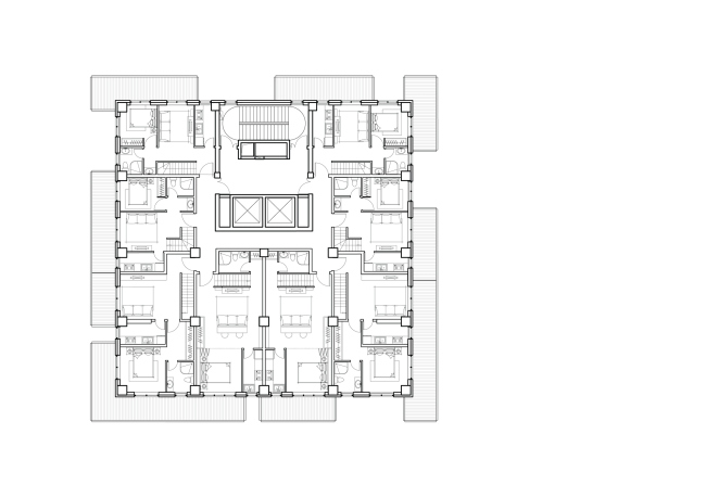
Жилой комплекс Y-Loft City
Жилой комплекс Y-Loft City
© Superimpose Architecture
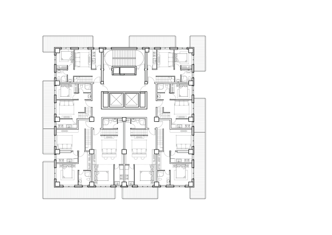
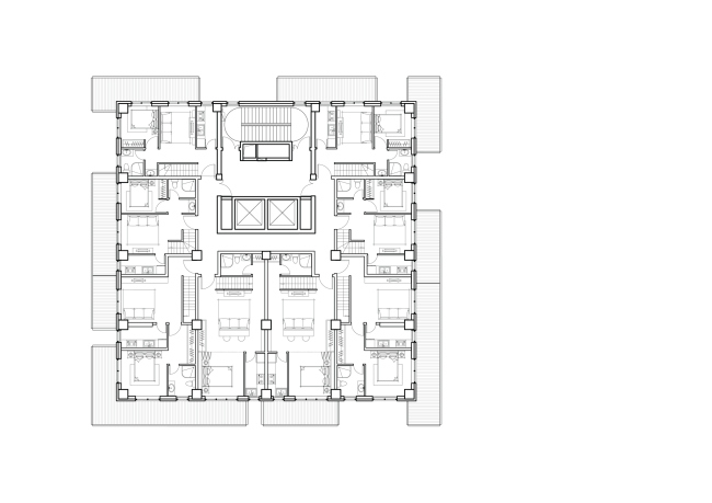
Жилой комплекс Y-Loft City
Жилой комплекс Y-Loft City
© Superimpose Architecture
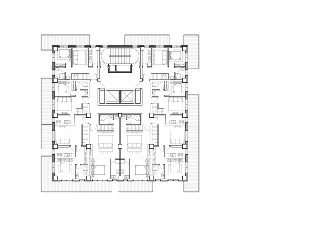
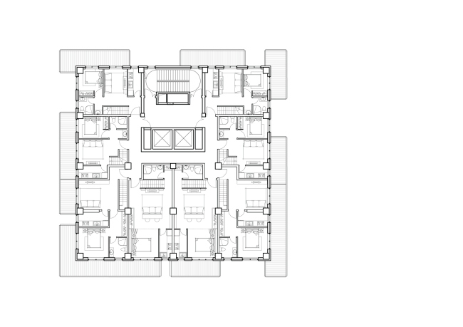
Жилой комплекс Y-Loft City
Жилой комплекс Y-Loft City
© Superimpose Architecture
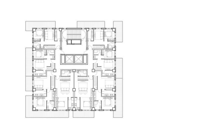
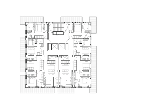
Жилой комплекс Y-Loft City
Жилой комплекс Y-Loft City
© Superimpose Architecture