Размещено на портале Архи.ру (www.archi.ru)

06.05.2021

Кино под куполом

Нина Фролова
Объект:
Научно-образовательный центр Curiosum
Адрес:
Швеция, None, Умео.
Мастерская:
White

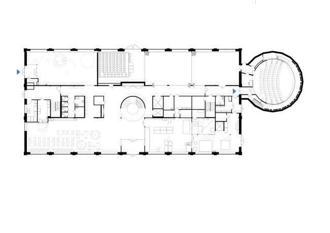
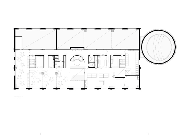
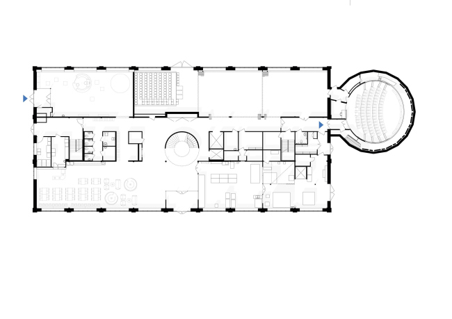
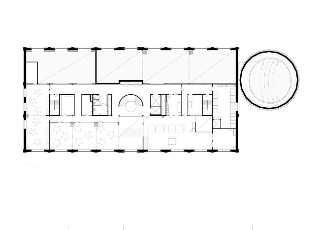
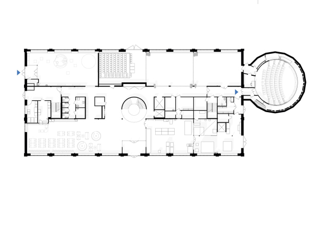
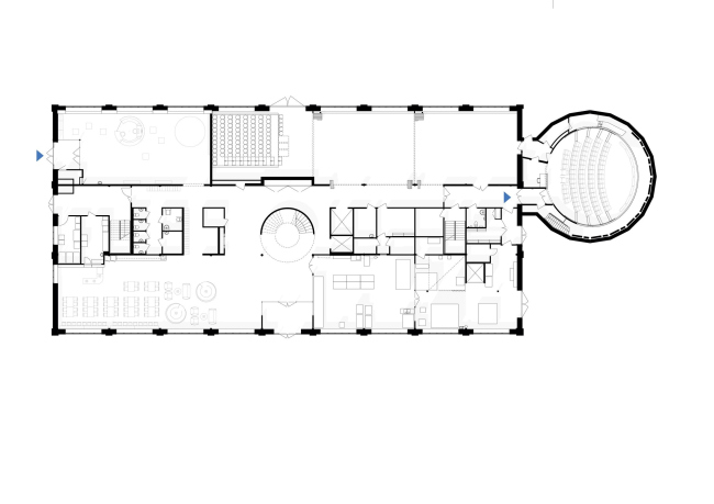
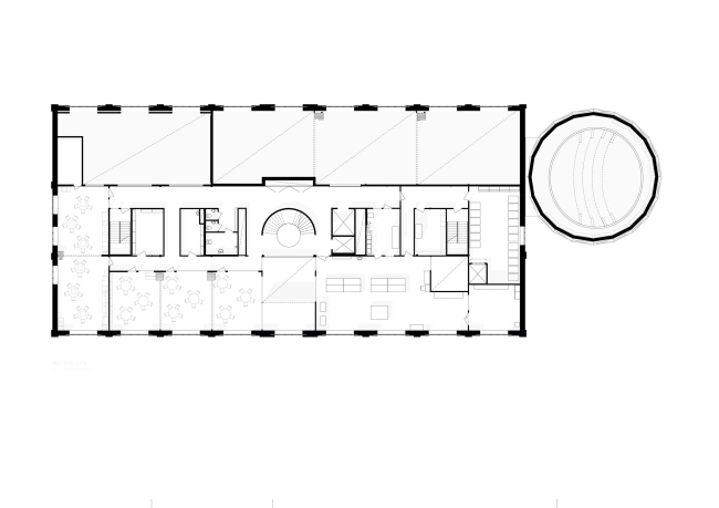
Музей науки Curiosum с купольным кинотеатром по проекту White Arkitekter расположился в исторической промзоне на севере Швеции, занятой сейчас университетом Умео.

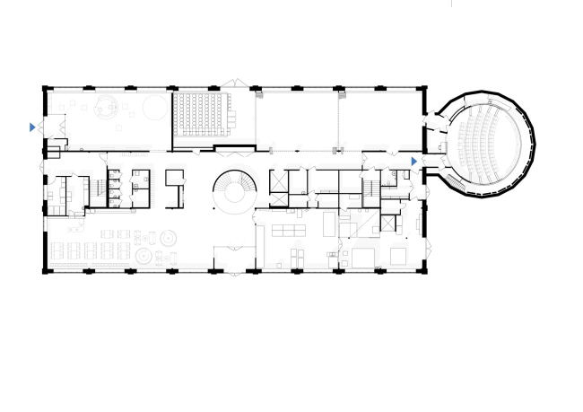
Кампус университета города Умео, столицы округа Вестерботтен, известен своей архитектурой: там находятся архитектурный факультет и художественный музей по проекту Henning Larsen Architects. Совсем рядом появился теперь музей науки Curiosum. Частью его вместило здание целлюлозной фабрики начала XX века: здесь расположены «интерактивные» лаборатории и выставочные пространства. Но для купольного кинотеатра шведской образовательной сети Wisdome требовалось собственное здание.
 

Научно-образовательный центр Curiosum
Научно-образовательный центр Curiosum
Фото © Andreas Nilsson
Научно-образовательный центр Curiosum
Научно-образовательный центр Curiosum
Фото © Andreas Nilsson
Научно-образовательный центр Curiosum
Научно-образовательный центр Curiosum
Фото © Andreas Nilsson

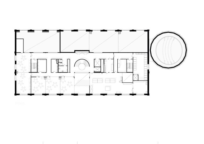
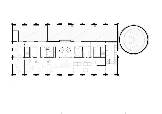
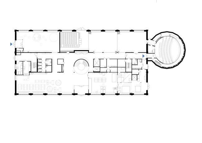
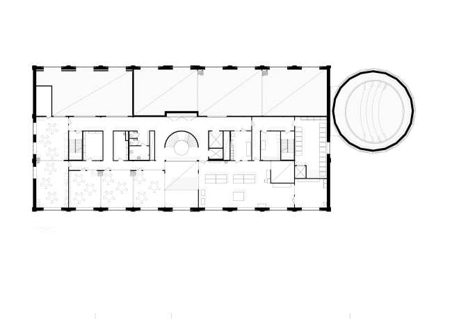
Устройство кинотеатра определило его форму: это купол из треугольных перфорированных пластин, у основания они крупней, к вершине становятся меньше. Материал, анодированный алюминий, с одной стороны, напоминает об индустриальном прошлом этой городской территории, с другой – достаточно нейтрален, чтобы не нарушать сложившейся ее облик. То же самое касается системы подсветки, также разработанной White Arkitekter: ей доступны любые цвета, но авторы не хотели, чтобы она слишком контрастировала с темно-синей зимней ночью (наступающей в этих широтах уже в 14 часов), поэтому их замысел использует и отражение естественного освещения блестящими панелями.
 
Научно-образовательный центр Curiosum
Научно-образовательный центр Curiosum
Фото © Andreas Nilsson
Научно-образовательный центр Curiosum
Научно-образовательный центр Curiosum
Фото © Andreas Nilsson
Научно-образовательный центр Curiosum Фото © Andreas Nilsson
Научно-образовательный центр Curiosum
Фото © Andreas Nilsson
Научно-образовательный центр Curiosum Фото © Andreas Nilsson
Научно-образовательный центр Curiosum
Фото © Andreas Nilsson
Научно-образовательный центр Curiosum Фото © Andreas Nilsson
Научно-образовательный центр Curiosum
Фото © Andreas Nilsson

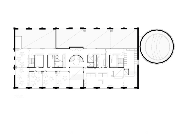
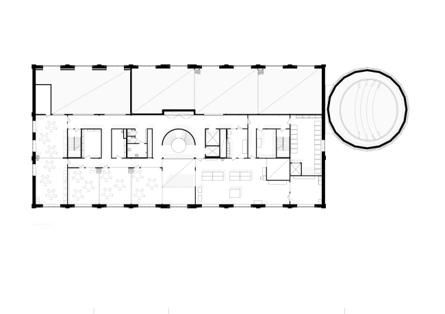
В историческом здании фабрики отреставрирован охраняемый как объект наследия фасад, а в интерьере убрано большинство перегородок, часть из них заменена на стеклянные. Чтобы напомнить о промышленной функции здания, вместо навесных потолков применена металлическая сетка, за которой видны все коммуникации.
Научно-образовательный центр Curiosum
Научно-образовательный центр Curiosum
Фото © Andreas Nilsson
Научно-образовательный центр Curiosum Фото © Andreas Nilsson
Научно-образовательный центр Curiosum
Фото © Andreas Nilsson
Научно-образовательный центр Curiosum Фото © Andreas Nilsson
Научно-образовательный центр Curiosum
Фото © Andreas Nilsson
Научно-образовательный центр Curiosum Фото © Andreas Nilsson
Научно-образовательный центр Curiosum
Фото © Andreas Nilsson
Научно-образовательный центр Curiosum Фото © Andreas Nilsson
Научно-образовательный центр Curiosum
Фото © Andreas Nilsson
Научно-образовательный центр Curiosum
Научно-образовательный центр Curiosum
Фото © Andreas Nilsson
Научно-образовательный центр Curiosum
Научно-образовательный центр Curiosum
Фото © Andreas Nilsson
Научно-образовательный центр Curiosum
Научно-образовательный центр Curiosum
Фото © Andreas Nilsson
Научно-образовательный центр Curiosum
Научно-образовательный центр Curiosum
Фото © Andreas Nilsson
Научно-образовательный центр Curiosum
Научно-образовательный центр Curiosum
Фото © Andreas Nilsson
Научно-образовательный центр Curiosum
Научно-образовательный центр Curiosum
© White Arkitekter
Научно-образовательный центр Curiosum
Научно-образовательный центр Curiosum
© White Arkitekter
Научно-образовательный центр Curiosum
Научно-образовательный центр Curiosum
© White Arkitekter
Научно-образовательный центр Curiosum
Научно-образовательный центр Curiosum
© White Arkitekter
Научно-образовательный центр Curiosum
Научно-образовательный центр Curiosum
© White Arkitekter
Научно-образовательный центр Curiosum
Научно-образовательный центр Curiosum
© White Arkitekter
Научно-образовательный центр Curiosum
Научно-образовательный центр Curiosum
© White Arkitekter
Научно-образовательный центр Curiosum
Научно-образовательный центр Curiosum
© White Arkitekter