Размещено на портале Архи.ру (www.archi.ru)

05.05.2021

Авангардный каркас из прошлого

Нина Фролова
Объект:
Луврский почтамт – реконструкция
Адрес:
Франция, None, Париж.

В Париже завершилась реконструкция почтамта на улице Лувра по проекту Доминика Перро: почтовая функция сведена к минимуму, вместо нее возникло множество других, включая социальное жилье.

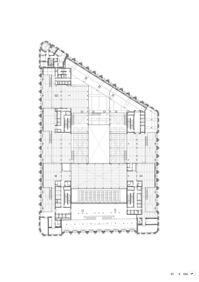
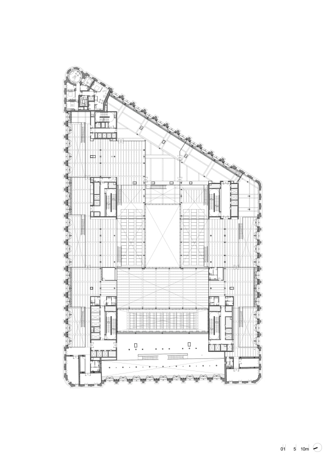
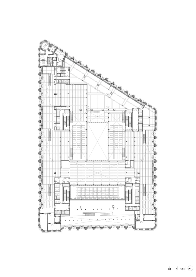
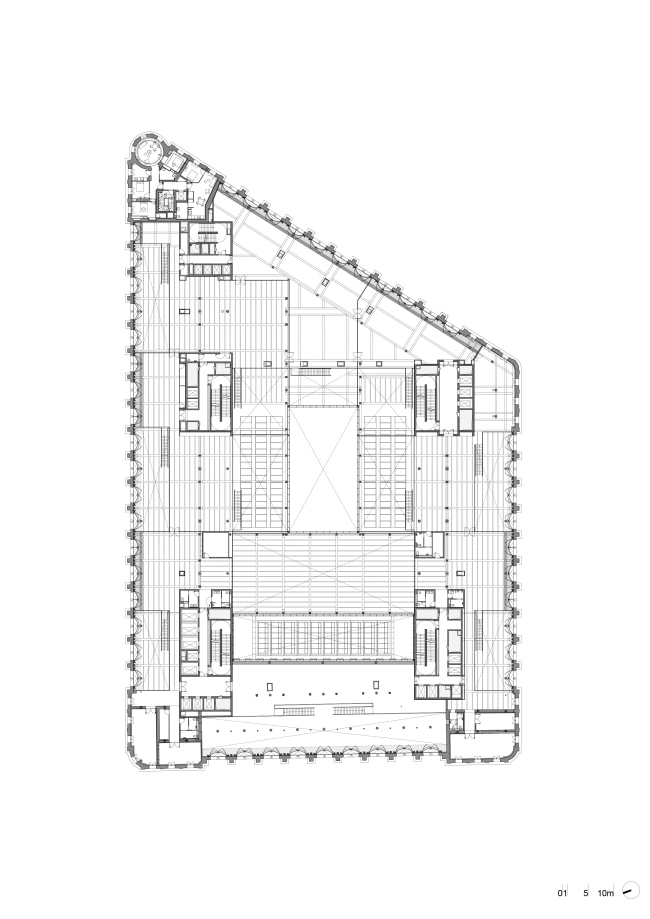
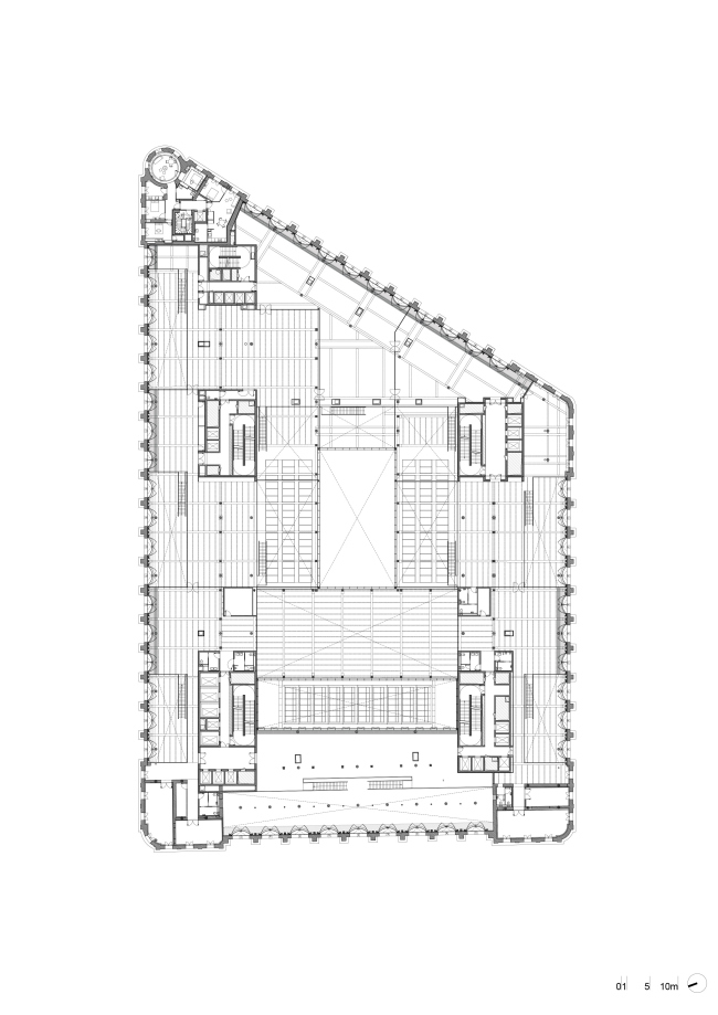
Луврский почтамт, еще недавно – центральное почтовое отделение страны, был построен в 1878–1888 архитектором Жюльеном Гаде как сочетание «отеля» и «завода». «Отель» – открытая для публики сравнительно небольшая часть здания за одним из четырех фасадов. Остальное отдавалось под индустриальные нужды доставки, сортировки и отправки почты. По этой причине Гаде задумал для своего здания гибкую структуру, во многом опередив время: он прямо рассчитывал на будущие перемены в почтовом деле и связанные с этим трансформации почтамта. Металлические конструкции типа эйфелевских с достаточно большим шагом по ширине и высоте позволяли менять назначение конкретных помещений, а спустя полтора века – полностью изменить функцию здания.
 

Луврский почтамт – реконструкция
Луврский почтамт – реконструкция
Фото © Michel Denancé/Dominique Perrault Architecte/Adagp

В ходе начавшихся в 2016 работ были удалены следы позднейших перестроек, в том числе 1960-х и 1980-х, вызванных изменениями в схеме обработки почты, а также пожаром (1975). Здание получило эффективную «оболочку», зеленую крышу, солнечные батареи, точки для подзарядки электротранспорта (автомобилей,  самокатов и подобных устройств) в двухъярусном подземном гараже, а также другие «зеленые» компоненты, которые позволяют рассчитывать на «золотые» сертификаты BREEAM и LEED.
 
Луврский почтамт – реконструкция
Луврский почтамт – реконструкция
Фото © Michel Denancé/Dominique Perrault Architecte/Adagp

Внешний и дворовый фасады получили современное, максимально прозрачное остекление. Площадь окон даже в парадном фасаде значительно возросла за счет новых переплетов, а стены двора теперь полностью состоят из стекла и металла.
 
Луврский почтамт – реконструкция
Луврский почтамт – реконструкция
Фото © Michel Denancé/Dominique Perrault Architecte/Adagp

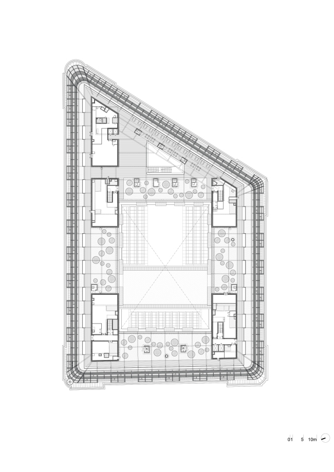
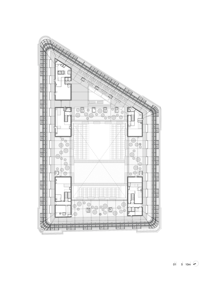
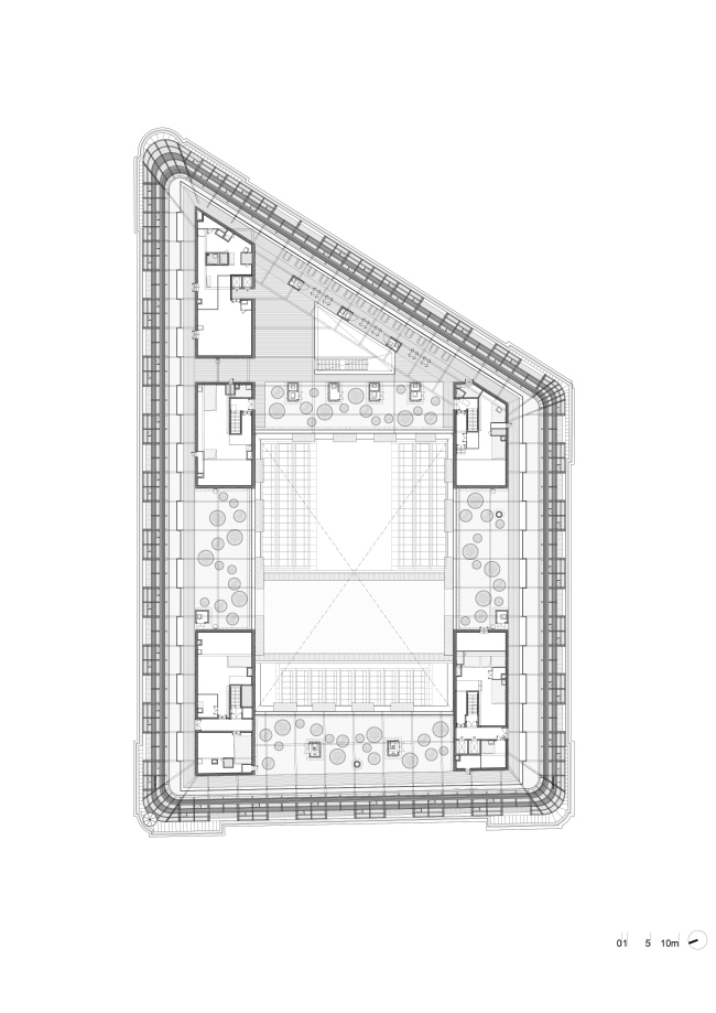
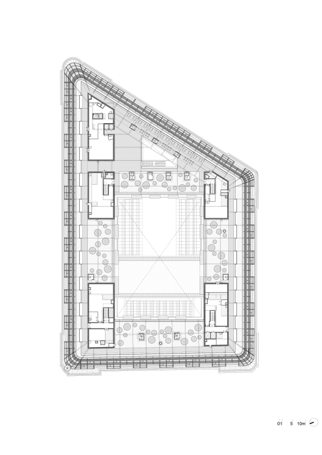
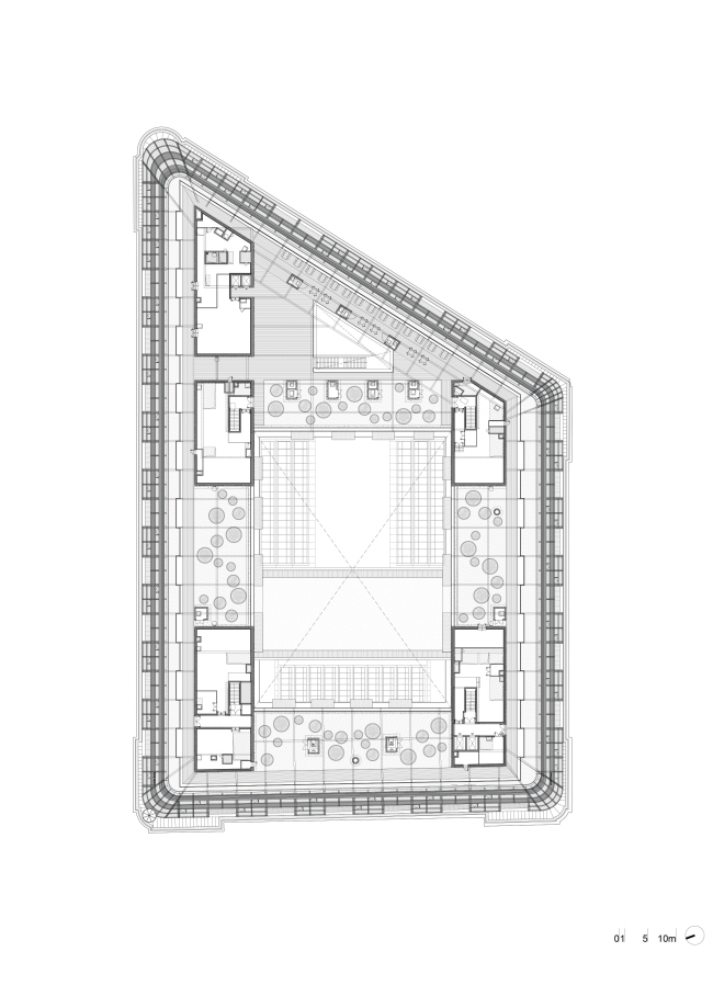
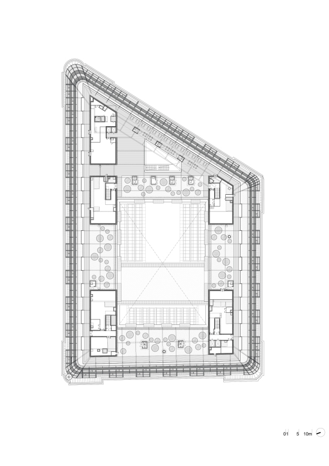
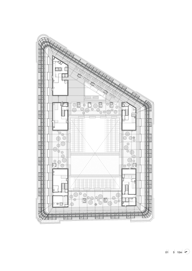
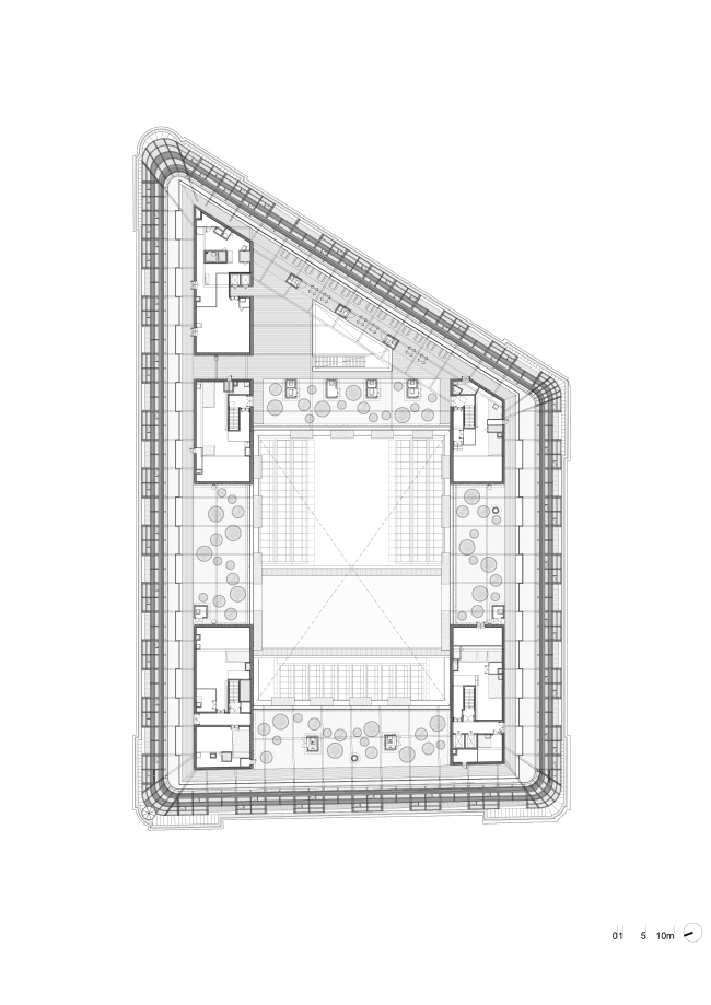
На площади в 32 000 м2 размещены самые разные учреждения и функции. Первый этаж занимают 13 магазинов и кафе, а также почтовое отделение. Выше бывший «завод» заменили фабрики наших дней – офисы, ждущие своих арендаторов (14 400 м2). Исторический металлический каркас полностью открыт в интерьер и дополнен современными деталями, например, антресольным этажом-галереей на втором этаже. Высота потолков – 6,8 м, но арендатор может ограничиться пространством вполовину ниже.
 
Луврский почтамт – реконструкция
Луврский почтамт – реконструкция
Фото © Michel Denancé/Dominique Perrault Architecte/Adagp

Острый угол здания отдан под социальное жилье (17 квартир), верхний этаж занимает отель на 84 номера, а также бар. Есть и терраса на крыше, где могут поместиться 399 гостей. Для тяжелых верхних ярусов предусмотрен свой, современный каркас, независимый от исторического.
Луврский почтамт – реконструкция
Луврский почтамт – реконструкция
Фото © Michel Denancé/Dominique Perrault Architecte/Adagp
Луврский почтамт – реконструкция
Луврский почтамт – реконструкция
Фото © Michel Denancé/Dominique Perrault Architecte/Adagp
Луврский почтамт – реконструкция
Луврский почтамт – реконструкция
Фото © Michel Denancé/Dominique Perrault Architecte/Adagp
Луврский почтамт – реконструкция
Луврский почтамт – реконструкция
Фото © Michel Denancé/Dominique Perrault Architecte/Adagp
Луврский почтамт – реконструкция
Луврский почтамт – реконструкция
Фото © Michel Denancé/Dominique Perrault Architecte/Adagp
Луврский почтамт – реконструкция
Луврский почтамт – реконструкция
Фото © Michel Denancé/Dominique Perrault Architecte/Adagp
Луврский почтамт – реконструкция
Луврский почтамт – реконструкция
Фото © Michel Denancé/Dominique Perrault Architecte/Adagp
Луврский почтамт – реконструкция
Луврский почтамт – реконструкция
Фото © Michel Denancé/Dominique Perrault Architecte/Adagp
Луврский почтамт – реконструкция
Луврский почтамт – реконструкция
Фото © Michel Denancé/Dominique Perrault Architecte/Adagp
Луврский почтамт – реконструкция
Луврский почтамт – реконструкция
© Dominique Perrault Architecte/Adagp
Луврский почтамт – реконструкция
Луврский почтамт – реконструкция
© Dominique Perrault Architecte/Adagp
Луврский почтамт – реконструкция
Луврский почтамт – реконструкция
© Dominique Perrault Architecte/Adagp
Луврский почтамт – реконструкция
Луврский почтамт – реконструкция
© Dominique Perrault Architecte/Adagp
Луврский почтамт – реконструкция
Луврский почтамт – реконструкция
© Dominique Perrault Architecte/Adagp