Размещено на портале Архи.ру (www.archi.ru)

30.04.2021

Шелковые рукава

Нина Фролова
Объект:
Культурный центр Сучжоу
Адрес:
Китай, None, Сучжоу.

Металлические ленты Культурного центра по проекту Кристиана де Портзампарка в Сучжоу – парафраз шелковых рукавов артистов куньцюй: для спектаклей этого оперного жанра также предназначен комплекс.

Культурный центр построен на берегу озера Тайху, в «Новом городе Тайху» – районе Уцзян. Постройки Кристиана де Портзампарка завершают у воды главную пешеходную ось новой застройки. Именно над этой эспланадой и перекинуты соединяющие два здания ленты, облицованные сплавом стали и алюминия.
 

Культурный центр Сучжоу
Культурный центр Сучжоу
© 2Portzamparc

Общая длина лент – почти 500 м, они достигают высоты в 50 м, причем предусмотрен и пешеходный мост (высота 40 м), позволяющий рассмотреть их вблизи, а также полюбоваться озером и городом. От инженеров Arup потребовались особые усилия, чтобы сделать эту конструкцию безопасной: Сучжоу находится в сейсмоопасном районе.
 
Культурный центр Сучжоу
Культурный центр Сучжоу
© 2Portzamparc

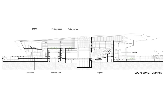
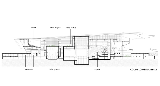
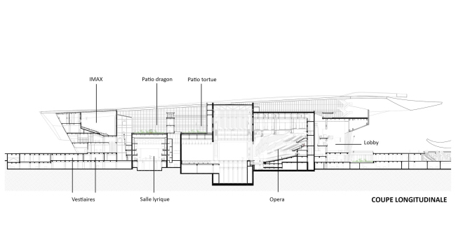
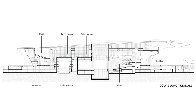
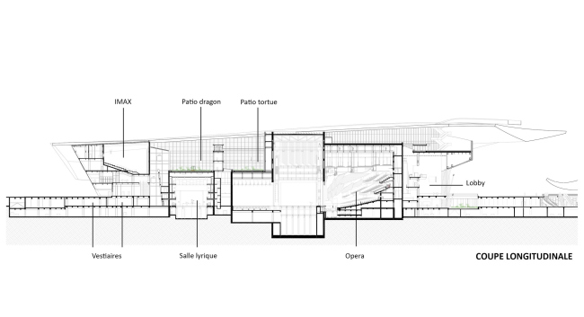
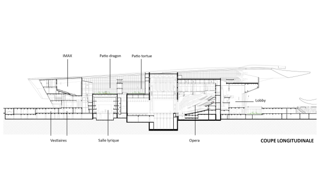
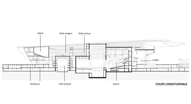
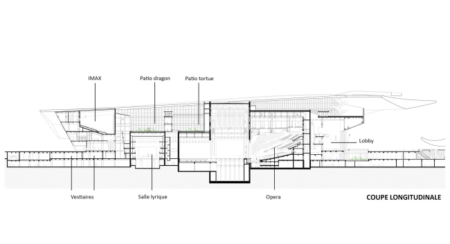
Общая площадь комплекса – 202 000 м2. В северном здании вестибюль ведет к многофункциональному залу (600 мест) и залу для исполнения оперы (1600 мест), в том числе жанра куньцюй: струящиеся шелковые рукава артистов такой музыкальной драмы и вдохновили Портзампарка на создание летящих лент. Выше расположены кинотеатр и IMAX и консерватория.
 
Культурный центр Сучжоу
Культурный центр Сучжоу
© 2Portzamparc

Южный корпус вмещает исторический и городской музеи (посвящен планам развития Уцзяна), конференц-центр и пространство для торжественных церемоний.
 
Культурный центр Сучжоу
Культурный центр Сучжоу
© 2Portzamparc
Культурный центр Сучжоу
Культурный центр Сучжоу
© 2Portzamparc
Культурный центр Сучжоу © 2Portzamparc
Культурный центр Сучжоу
© 2Portzamparc
Культурный центр Сучжоу © 2Portzamparc
Культурный центр Сучжоу
© 2Portzamparc
Культурный центр Сучжоу © 2Portzamparc
Культурный центр Сучжоу
© 2Portzamparc
Культурный центр Сучжоу © 2Portzamparc
Культурный центр Сучжоу
© 2Portzamparc
Культурный центр Сучжоу © 2Portzamparc
Культурный центр Сучжоу
© 2Portzamparc
Культурный центр Сучжоу © 2Portzamparc
Культурный центр Сучжоу
© 2Portzamparc
Культурный центр Сучжоу
Культурный центр Сучжоу
© 2Portzamparc
Культурный центр Сучжоу © 2Portzamparc
Культурный центр Сучжоу
© 2Portzamparc
Культурный центр Сучжоу © 2Portzamparc
Культурный центр Сучжоу
© 2Portzamparc
Культурный центр Сучжоу © 2Portzamparc
Культурный центр Сучжоу
© 2Portzamparc
Культурный центр Сучжоу © 2Portzamparc
Культурный центр Сучжоу
© 2Portzamparc
Культурный центр Сучжоу © 2Portzamparc
Культурный центр Сучжоу
© 2Portzamparc
Культурный центр Сучжоу
Культурный центр Сучжоу
© 2Portzamparc
Культурный центр Сучжоу
Культурный центр Сучжоу
© 2Portzamparc
Культурный центр Сучжоу © 2Portzamparc
Культурный центр Сучжоу
© 2Portzamparc
Культурный центр Сучжоу © 2Portzamparc
Культурный центр Сучжоу
© 2Portzamparc
Культурный центр Сучжоу © 2Portzamparc
Культурный центр Сучжоу
© 2Portzamparc
Культурный центр Сучжоу © 2Portzamparc
Культурный центр Сучжоу
© 2Portzamparc
Культурный центр Сучжоу © 2Portzamparc
Культурный центр Сучжоу
© 2Portzamparc
Культурный центр Сучжоу
Культурный центр Сучжоу
© 2Portzamparc
Культурный центр Сучжоу
Культурный центр Сучжоу
© 2Portzamparc
Культурный центр Сучжоу © 2Portzamparc
Культурный центр Сучжоу
© 2Portzamparc
Культурный центр Сучжоу © 2Portzamparc
Культурный центр Сучжоу
© 2Portzamparc
Культурный центр Сучжоу © 2Portzamparc
Культурный центр Сучжоу
© 2Portzamparc
Культурный центр Сучжоу
Культурный центр Сучжоу
© 2Portzamparc
Культурный центр Сучжоу
Культурный центр Сучжоу
© 2Portzamparc
Культурный центр Сучжоу
Культурный центр Сучжоу
© 2Portzamparc
Культурный центр Сучжоу
Культурный центр Сучжоу
© 2Portzamparc
Культурный центр Сучжоу
Культурный центр Сучжоу
© 2Portzamparc
Культурный центр Сучжоу
Культурный центр Сучжоу
© 2Portzamparc
Культурный центр Сучжоу
Культурный центр Сучжоу
© 2Portzamparc
Культурный центр Сучжоу
Культурный центр Сучжоу
© 2Portzamparc
Культурный центр Сучжоу
Культурный центр Сучжоу
© 2Portzamparc
Культурный центр Сучжоу © 2Portzamparc
Культурный центр Сучжоу
© 2Portzamparc
Культурный центр Сучжоу © 2Portzamparc
Культурный центр Сучжоу
© 2Portzamparc
Культурный центр Сучжоу © 2Portzamparc
Культурный центр Сучжоу
© 2Portzamparc
Культурный центр Сучжоу © 2Portzamparc
Культурный центр Сучжоу
© 2Portzamparc
Культурный центр Сучжоу © 2Portzamparc
Культурный центр Сучжоу
© 2Portzamparc
Культурный центр Сучжоу
Культурный центр Сучжоу
© 2Portzamparc
Культурный центр Сучжоу
Культурный центр Сучжоу
© 2Portzamparc
Культурный центр Сучжоу
Культурный центр Сучжоу
© 2Portzamparc
Культурный центр Сучжоу
Культурный центр Сучжоу
© 2Portzamparc
Культурный центр Сучжоу
Культурный центр Сучжоу
© 2Portzamparc
Культурный центр Сучжоу © 2Portzamparc
Культурный центр Сучжоу
© 2Portzamparc
Культурный центр Сучжоу © 2Portzamparc
Культурный центр Сучжоу
© 2Portzamparc
Культурный центр Сучжоу © 2Portzamparc
Культурный центр Сучжоу
© 2Portzamparc
Культурный центр Сучжоу
Культурный центр Сучжоу
© 2Portzamparc
Культурный центр Сучжоу
Культурный центр Сучжоу
© 2Portzamparc
Культурный центр Сучжоу
Культурный центр Сучжоу
© 2Portzamparc
Культурный центр Сучжоу
Культурный центр Сучжоу
© 2Portzamparc