Размещено на портале Архи.ру (www.archi.ru)

29.04.2021

Медные стены, медные баки

Нина Фролова
Объект:
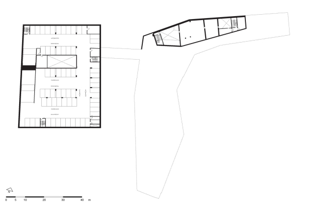
Штаб-квартира Carlsberg Group
Адрес:
Дания, None, Копенгаген.
Мастерская:
C. F. Møller

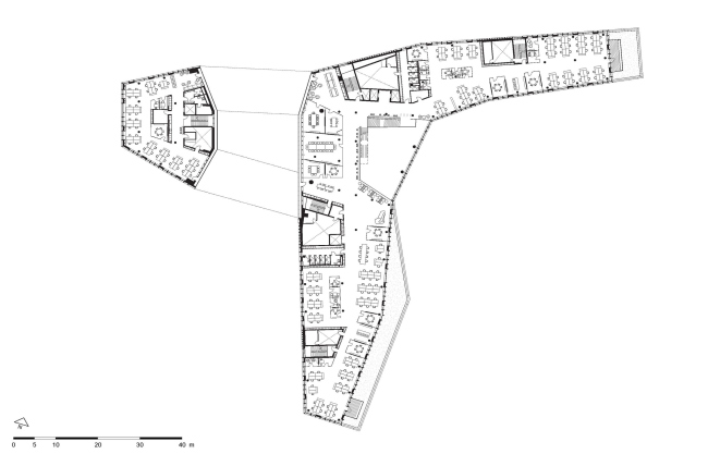
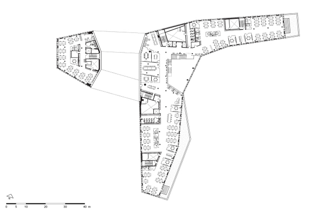
Новая штаб-квартира Carlsberg Group в Копенгагене по проекту C. F. Møller получила фасады из медных панелей, напоминающие об исторических чанах для варки пива.

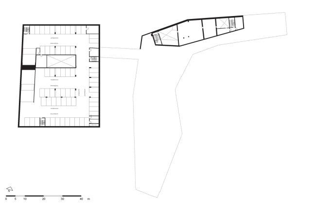
Штаб-квартира расположена в районе Карлсберг, где в 1847 Якоб Кристиан Якобсен основал свой пивоваренный завод: он и дал название этой местности. В 2008 основное производство было выведено в Фредерисию, а огромная промышленная территория постепенно превращается в район смешанной застройки.
 

Штаб-квартира Carlsberg Group
Штаб-квартира Carlsberg Group
Фото © Adam Mørk

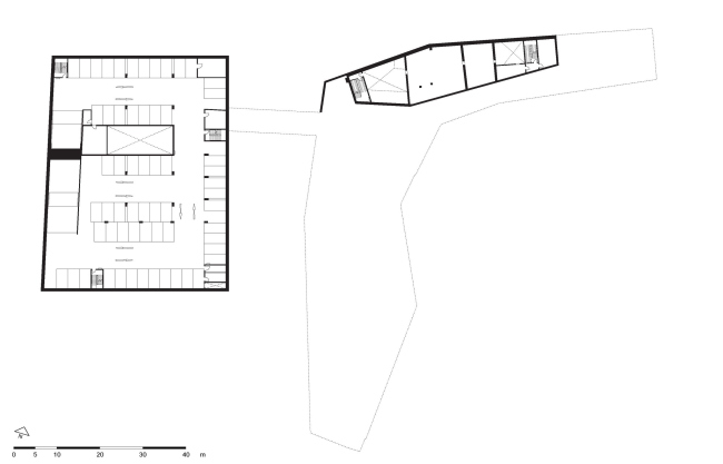
Здание архитекторов C. F. Møller, результат их победы в архитектурном конкурсе 2007–2008 годов, граничит с виллой и садом Якобсена, которые впервые стали доступны широкой публике. Сооружение приподнято над одной из важных улиц и потому служит своего рода воротами района, что в целом характерно для комплекса завода с его разнообразной и даже причудливой архитектурой.
 
Штаб-квартира Carlsberg Group
Штаб-квартира Carlsberg Group
Фото © Adam Mørk

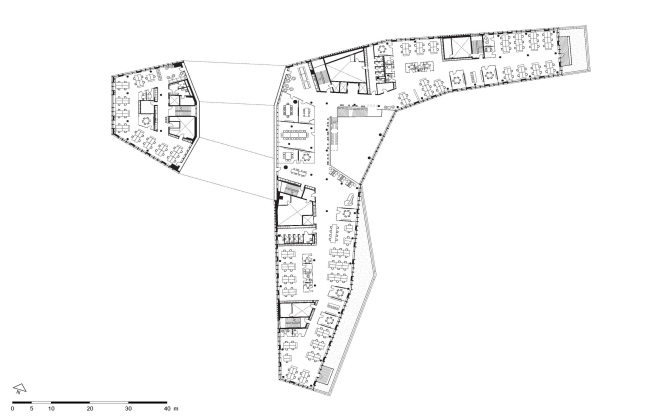
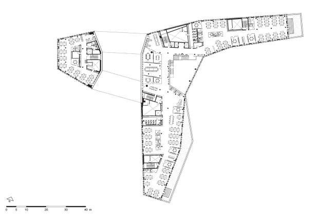
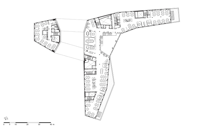
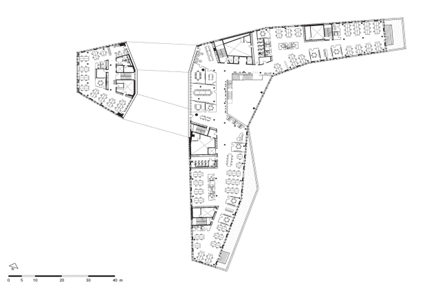
Центр постройки – обращенный в парк атриум: стеклянная стена позволяет заглянуть внутрь и обеспечивает его солнечным светом и визуальной связью с окружением. Крыло, примыкающее к вилле Якобсена, постепенно понижается, чтобы не нарушать ее исторический облик.
 
Штаб-квартира Carlsberg Group
Штаб-квартира Carlsberg Group
Фото © Adam Mørk

Протяженный водоем отделяет новое здание и его территорию от парка, имеющего статус памятника. Водоем напоминает об источнике, который в свое время привлек сюда Якобсена: именно его вода использовалась для производства пива.
 
Штаб-квартира Carlsberg Group
Штаб-квартира Carlsberg Group
Фото © Adam Mørk

Водоем помогает управлять дождевой водой, как и зеленая крыша постройки. На кровле также размещены солнечные батареи.
 
Штаб-квартира Carlsberg Group
Штаб-квартира Carlsberg Group
Фото © Adam Mørk

Здание Carlsberg Group – не первая постройка C. F. Møller с медными фасадами: многочисленными премиями отмечен их университетский корпус – башня Maersk.
Штаб-квартира Carlsberg Group Фото © Adam Mørk
Штаб-квартира Carlsberg Group
Фото © Adam Mørk
Штаб-квартира Carlsberg Group Фото © Adam Mørk
Штаб-квартира Carlsberg Group
Фото © Adam Mørk
Штаб-квартира Carlsberg Group Фото © Adam Mørk
Штаб-квартира Carlsberg Group
Фото © Adam Mørk
Штаб-квартира Carlsberg Group
Штаб-квартира Carlsberg Group
Фото © Adam Mørk
Штаб-квартира Carlsberg Group Фото © Adam Mørk
Штаб-квартира Carlsberg Group
Фото © Adam Mørk
Штаб-квартира Carlsberg Group Фото © Adam Mørk
Штаб-квартира Carlsberg Group
Фото © Adam Mørk
Штаб-квартира Carlsberg Group Фото © Adam Mørk
Штаб-квартира Carlsberg Group
Фото © Adam Mørk
Штаб-квартира Carlsberg Group Фото © Adam Mørk
Штаб-квартира Carlsberg Group
Фото © Adam Mørk
Штаб-квартира Carlsberg Group Фото © Adam Mørk
Штаб-квартира Carlsberg Group
Фото © Adam Mørk
Штаб-квартира Carlsberg Group Фото © Adam Mørk
Штаб-квартира Carlsberg Group
Фото © Adam Mørk
Штаб-квартира Carlsberg Group Фото © Adam Mørk
Штаб-квартира Carlsberg Group
Фото © Adam Mørk
Штаб-квартира Carlsberg Group Фото © Adam Mørk
Штаб-квартира Carlsberg Group
Фото © Adam Mørk
Штаб-квартира Carlsberg Group
Штаб-квартира Carlsberg Group
Фото © Adam Mørk
Штаб-квартира Carlsberg Group Фото © Adam Mørk
Штаб-квартира Carlsberg Group
Фото © Adam Mørk
Штаб-квартира Carlsberg Group Фото © Adam Mørk
Штаб-квартира Carlsberg Group
Фото © Adam Mørk
Штаб-квартира Carlsberg Group Фото © Adam Mørk
Штаб-квартира Carlsberg Group
Фото © Adam Mørk
Штаб-квартира Carlsberg Group Фото © Adam Mørk
Штаб-квартира Carlsberg Group
Фото © Adam Mørk
Штаб-квартира Carlsberg Group
Штаб-квартира Carlsberg Group
Фото © Adam Mørk
Штаб-квартира Carlsberg Group
Штаб-квартира Carlsberg Group
Фото © Adam Mørk
Штаб-квартира Carlsberg Group
Штаб-квартира Carlsberg Group
Фото © Adam Mørk
Штаб-квартира Carlsberg Group Фото © Adam Mørk
Штаб-квартира Carlsberg Group
Фото © Adam Mørk
Штаб-квартира Carlsberg Group Фото © Adam Mørk
Штаб-квартира Carlsberg Group
Фото © Adam Mørk
Штаб-квартира Carlsberg Group Фото © Adam Mørk
Штаб-квартира Carlsberg Group
Фото © Adam Mørk
Штаб-квартира Carlsberg Group Фото © Adam Mørk
Штаб-квартира Carlsberg Group
Фото © Adam Mørk
Штаб-квартира Carlsberg Group Фото © Adam Mørk
Штаб-квартира Carlsberg Group
Фото © Adam Mørk
Штаб-квартира Carlsberg Group Фото © Adam Mørk
Штаб-квартира Carlsberg Group
Фото © Adam Mørk
Штаб-квартира Carlsberg Group Фото © Adam Mørk
Штаб-квартира Carlsberg Group
Фото © Adam Mørk
Штаб-квартира Carlsberg Group Фото © Adam Mørk
Штаб-квартира Carlsberg Group
Фото © Adam Mørk
Штаб-квартира Carlsberg Group Фото © Adam Mørk
Штаб-квартира Carlsberg Group
Фото © Adam Mørk
Штаб-квартира Carlsberg Group
Штаб-квартира Carlsberg Group
Фото © Adam Mørk
Штаб-квартира Carlsberg Group
Штаб-квартира Carlsberg Group
Фото © Adam Mørk
Штаб-квартира Carlsberg Group
Штаб-квартира Carlsberg Group
Фото © Adam Mørk
Штаб-квартира Carlsberg Group
Штаб-квартира Carlsberg Group
Фото © Adam Mørk
Штаб-квартира Carlsberg Group Фото © Adam Mørk
Штаб-квартира Carlsberg Group
Фото © Adam Mørk
Штаб-квартира Carlsberg Group Фото © Adam Mørk
Штаб-квартира Carlsberg Group
Фото © Adam Mørk
Штаб-квартира Carlsberg Group Фото © Adam Mørk
Штаб-квартира Carlsberg Group
Фото © Adam Mørk
Штаб-квартира Carlsberg Group Фото © Adam Mørk
Штаб-квартира Carlsberg Group
Фото © Adam Mørk
Штаб-квартира Carlsberg Group Фото © Adam Mørk
Штаб-квартира Carlsberg Group
Фото © Adam Mørk
Штаб-квартира Carlsberg Group
Штаб-квартира Carlsberg Group
Фото © Adam Mørk
Штаб-квартира Carlsberg Group Фото © Adam Mørk
Штаб-квартира Carlsberg Group
Фото © Adam Mørk
Штаб-квартира Carlsberg Group Фото © Adam Mørk
Штаб-квартира Carlsberg Group
Фото © Adam Mørk
Штаб-квартира Carlsberg Group Фото © Adam Mørk
Штаб-квартира Carlsberg Group
Фото © Adam Mørk
Штаб-квартира Carlsberg Group Фото © Adam Mørk
Штаб-квартира Carlsberg Group
Фото © Adam Mørk
Штаб-квартира Carlsberg Group Фото © Adam Mørk
Штаб-квартира Carlsberg Group
Фото © Adam Mørk
Штаб-квартира Carlsberg Group
Штаб-квартира Carlsberg Group
© C. F. Møller
Штаб-квартира Carlsberg Group
Штаб-квартира Carlsberg Group
© C. F. Møller
Штаб-квартира Carlsberg Group
Штаб-квартира Carlsberg Group
© C. F. Møller
Штаб-квартира Carlsberg Group
Штаб-квартира Carlsberg Group
© C. F. Møller
Штаб-квартира Carlsberg Group
Штаб-квартира Carlsberg Group
© C. F. Møller
Штаб-квартира Carlsberg Group
Штаб-квартира Carlsberg Group
© C. F. Møller
Штаб-квартира Carlsberg Group
Штаб-квартира Carlsberg Group
© C. F. Møller
Штаб-квартира Carlsberg Group
Штаб-квартира Carlsberg Group
© C. F. Møller
Штаб-квартира Carlsberg Group
Штаб-квартира Carlsberg Group
© C. F. Møller
Штаб-квартира Carlsberg Group
Штаб-квартира Carlsberg Group
© C. F. Møller
Штаб-квартира Carlsberg Group
Штаб-квартира Carlsberg Group
© C. F. Møller
Штаб-квартира Carlsberg Group
Штаб-квартира Carlsberg Group
© C. F. Møller
Штаб-квартира Carlsberg Group
Штаб-квартира Carlsberg Group
© C. F. Møller
Штаб-квартира Carlsberg Group
Штаб-квартира Carlsberg Group
© C. F. Møller
Штаб-квартира Carlsberg Group
Штаб-квартира Carlsberg Group
© C. F. Møller
Штаб-квартира Carlsberg Group
Штаб-квартира Carlsberg Group
© C. F. Møller
Штаб-квартира Carlsberg Group
Штаб-квартира Carlsberg Group
© C. F. Møller
Штаб-квартира Carlsberg Group
Штаб-квартира Carlsberg Group
© C. F. Møller
Штаб-квартира Carlsberg Group
Штаб-квартира Carlsberg Group
© C. F. Møller
Штаб-квартира Carlsberg Group
Штаб-квартира Carlsberg Group
© C. F. Møller
Штаб-квартира Carlsberg Group © C. F. Møller
Штаб-квартира Carlsberg Group
© C. F. Møller
Штаб-квартира Carlsberg Group © C. F. Møller
Штаб-квартира Carlsberg Group
© C. F. Møller
Штаб-квартира Carlsberg Group © C. F. Møller
Штаб-квартира Carlsberg Group
© C. F. Møller
Штаб-квартира Carlsberg Group Фото © Adam Mørk
Штаб-квартира Carlsberg Group
Фото © Adam Mørk
Штаб-квартира Carlsberg Group Фото © Adam Mørk
Штаб-квартира Carlsberg Group
Фото © Adam Mørk
Штаб-квартира Carlsberg Group Фото © Adam Mørk
Штаб-квартира Carlsberg Group
Фото © Adam Mørk
Штаб-квартира Carlsberg Group Фото © Adam Mørk
Штаб-квартира Carlsberg Group
Фото © Adam Mørk
Штаб-квартира Carlsberg Group
Штаб-квартира Carlsberg Group
© C. F. Møller
Штаб-квартира Carlsberg Group
Штаб-квартира Carlsberg Group
© C. F. Møller
Штаб-квартира Carlsberg Group
Штаб-квартира Carlsberg Group
© C. F. Møller
Штаб-квартира Carlsberg Group
Штаб-квартира Carlsberg Group
© C. F. Møller
Штаб-квартира Carlsberg Group © C. F. Møller
Штаб-квартира Carlsberg Group
© C. F. Møller
Штаб-квартира Carlsberg Group © C. F. Møller
Штаб-квартира Carlsberg Group
© C. F. Møller
Штаб-квартира Carlsberg Group © C. F. Møller
Штаб-квартира Carlsberg Group
© C. F. Møller
Штаб-квартира Carlsberg Group © C. F. Møller
Штаб-квартира Carlsberg Group
© C. F. Møller