Размещено на портале Архи.ру (www.archi.ru)

28.04.2021

Искусство вычитания

Нина Фролова
Объект:
Гостиница Sindhorn Kempinski Hotel
Адрес:
Таиланд, Бангкок.
Мастерская:
Plan Architect
Авторский коллектив:
Sinn Phonghanyudh, Somsak Chanokprasit, Wara Jithpratugs, Paveen Rojchanavisart, Ponlawat Trakulwattanakit, Sitthinon Chanchaiworawit

Гостиница Sindhorn Kempinski Hotel в Бангкоке по проекту местного бюро Plan Architect.

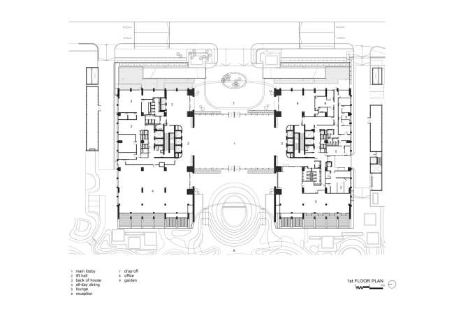
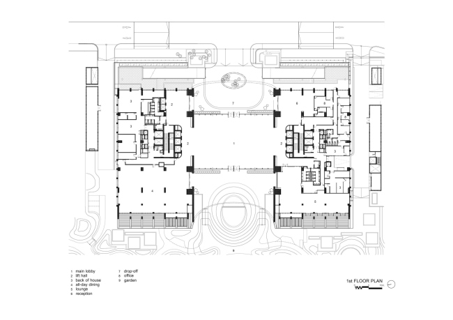
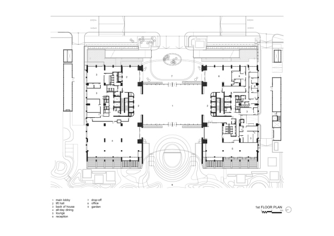
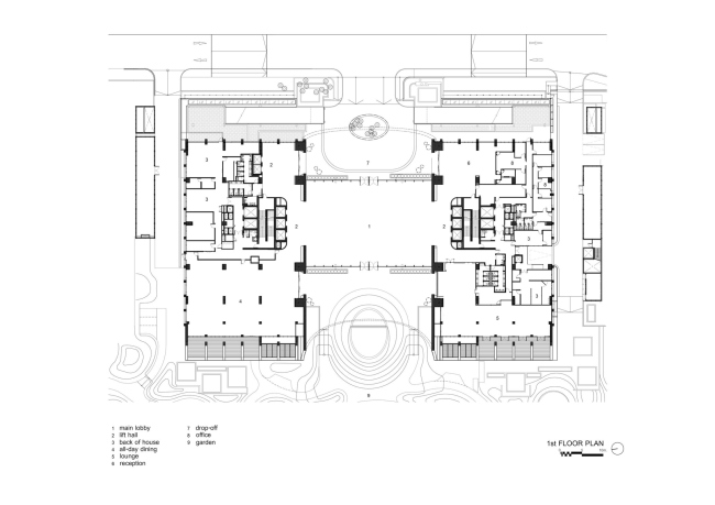
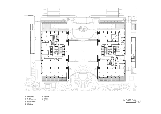
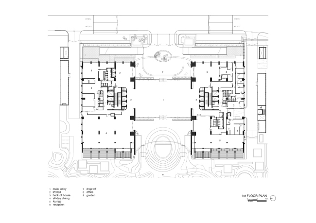
Гостиница Sindhorn Kempinski Hotel на 274 номера расположена в новом жилом массиве Sindhorn Village и служит его воротами. Точнее, этим парадным входом выступает масштабная бетонная ниша, через которую гости попадают и в сам отель.
 

Гостиница Sindhorn Kempinski Hotel
Гостиница Sindhorn Kempinski Hotel
Фото © Ketsiree Wongwan

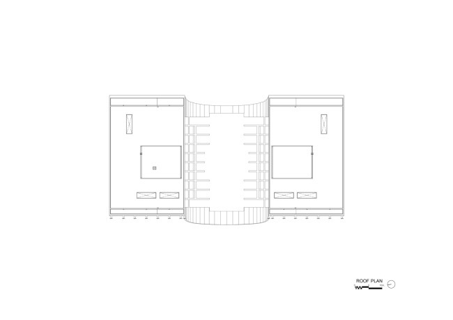
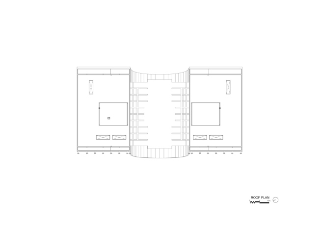
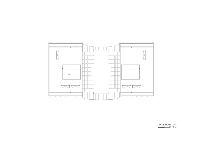
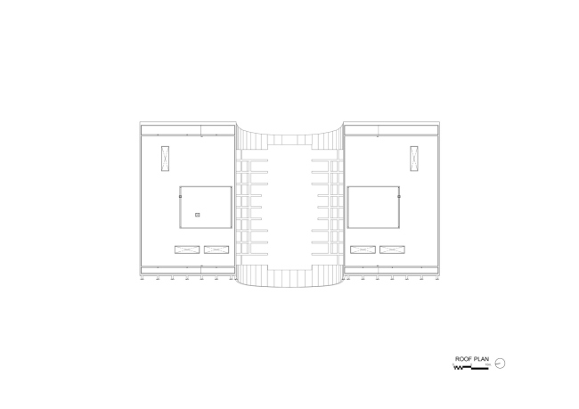
Ее функция – выступать буферной зоной между окружающей зеленью и интерьером здания. Эта ниша – не единственный «вырезанный» из объема здания элемент. Внутри главную роль играет атриум, куда выходит большинство номеров. Девятый этаж – открытая терраса с бассейном, куда удобно добираться обитателям как нижних, так и верхних этажей. Еще один объем вырезан сверху, чтобы обеспечить светом и атриум, и верхние номера: на его «дне» также устроена зеленая терраса.
 
Гостиница Sindhorn Kempinski Hotel
Гостиница Sindhorn Kempinski Hotel
Фото © Ketsiree Wongwan

Изогнутая форма здания позволила затенить балконы номеров и тем самым уменьшить нагрев фасадов. В проекте сочетаются естественная и механическая системы вентиляции, которые используются в зависимости от температуры снаружи.
Гостиница Sindhorn Kempinski Hotel
Гостиница Sindhorn Kempinski Hotel
Фото © Ketsiree Wongwan
Гостиница Sindhorn Kempinski Hotel
Гостиница Sindhorn Kempinski Hotel
Фото © Ketsiree Wongwan
Гостиница Sindhorn Kempinski Hotel
Гостиница Sindhorn Kempinski Hotel
Фото © Ketsiree Wongwan
Гостиница Sindhorn Kempinski Hotel
Гостиница Sindhorn Kempinski Hotel
Фото © Ketsiree Wongwan
Гостиница Sindhorn Kempinski Hotel
Гостиница Sindhorn Kempinski Hotel
Фото © Ketsiree Wongwan
Гостиница Sindhorn Kempinski Hotel
Гостиница Sindhorn Kempinski Hotel
Фото © Ketsiree Wongwan
Гостиница Sindhorn Kempinski Hotel
Гостиница Sindhorn Kempinski Hotel
Фото © Ketsiree Wongwan
Гостиница Sindhorn Kempinski Hotel
Гостиница Sindhorn Kempinski Hotel
Фото © Ketsiree Wongwan
Гостиница Sindhorn Kempinski Hotel
Гостиница Sindhorn Kempinski Hotel
Фото © Ketsiree Wongwan
Гостиница Sindhorn Kempinski Hotel
Гостиница Sindhorn Kempinski Hotel
Фото © Ketsiree Wongwan
Гостиница Sindhorn Kempinski Hotel
Гостиница Sindhorn Kempinski Hotel
Фото © Ketsiree Wongwan
Гостиница Sindhorn Kempinski Hotel
Гостиница Sindhorn Kempinski Hotel
Фото © Ketsiree Wongwan
Гостиница Sindhorn Kempinski Hotel
Гостиница Sindhorn Kempinski Hotel
Фото © Ketsiree Wongwan
Гостиница Sindhorn Kempinski Hotel
Гостиница Sindhorn Kempinski Hotel
Фото © Ketsiree Wongwan
Гостиница Sindhorn Kempinski Hotel
Гостиница Sindhorn Kempinski Hotel
© Plan Architect
Гостиница Sindhorn Kempinski Hotel
Гостиница Sindhorn Kempinski Hotel
© Plan Architect
Гостиница Sindhorn Kempinski Hotel
Гостиница Sindhorn Kempinski Hotel
© Plan Architect
Гостиница Sindhorn Kempinski Hotel
Гостиница Sindhorn Kempinski Hotel
© Plan Architect
Гостиница Sindhorn Kempinski Hotel
Гостиница Sindhorn Kempinski Hotel
© Plan Architect
Гостиница Sindhorn Kempinski Hotel
Гостиница Sindhorn Kempinski Hotel
© Plan Architect
Гостиница Sindhorn Kempinski Hotel
Гостиница Sindhorn Kempinski Hotel
© Plan Architect
Гостиница Sindhorn Kempinski Hotel
Гостиница Sindhorn Kempinski Hotel
© Plan Architect
Гостиница Sindhorn Kempinski Hotel
Гостиница Sindhorn Kempinski Hotel
© Plan Architect
Гостиница Sindhorn Kempinski Hotel
Гостиница Sindhorn Kempinski Hotel
© Plan Architect
Гостиница Sindhorn Kempinski Hotel
Гостиница Sindhorn Kempinski Hotel
© Plan Architect
Гостиница Sindhorn Kempinski Hotel
Гостиница Sindhorn Kempinski Hotel
© Plan Architect
Гостиница Sindhorn Kempinski Hotel
Гостиница Sindhorn Kempinski Hotel
© Plan Architect