Размещено на портале Архи.ру (www.archi.ru)

25.04.2021

Диалог в кирпиче

Нина Фролова
Объект:
Школа Скиннерс
Адрес:
Великобритания, None, Роял-Тандбридж-Уэллс. St John's Rd, Tunbridge Wells TN4 9PG
Мастерская:
Bell Phillips Architects

Новый корпус школы Скиннерс по проекту Bell Phillips Architects к юго-востоку от Лондона продолжает викторианскую традицию кирпичной архитектуры.

Школа Скиннерс была основана в 1887 в графстве Кент гильдией кожевников, точнее, ремесленников, свежевавших туши (отсюда ее название), а в наши дни имеет статус грамматической: государственной, но с более сложной программой, чем обычно, и попасть туда можно только по конкурсу. За прошедшие почти полтора века к двум изначальным неоготическим зданиям из кирпича с каменными деталями добавились разновременные постройки, и комплекс утратил цельность.
 

Школа Скиннерс
Школа Скиннерс
Фото © Kilian O′Sullivan/VIEW

Задачей Bell Phillips Architects было вернуть ее, а также сохранить и усилить общественную роль Верхнего двора: теперь он также служит «точкой входа» и транзитным пространством.
 
Школа Скиннерс
Школа Скиннерс
Фото © Kilian O′Sullivan/VIEW

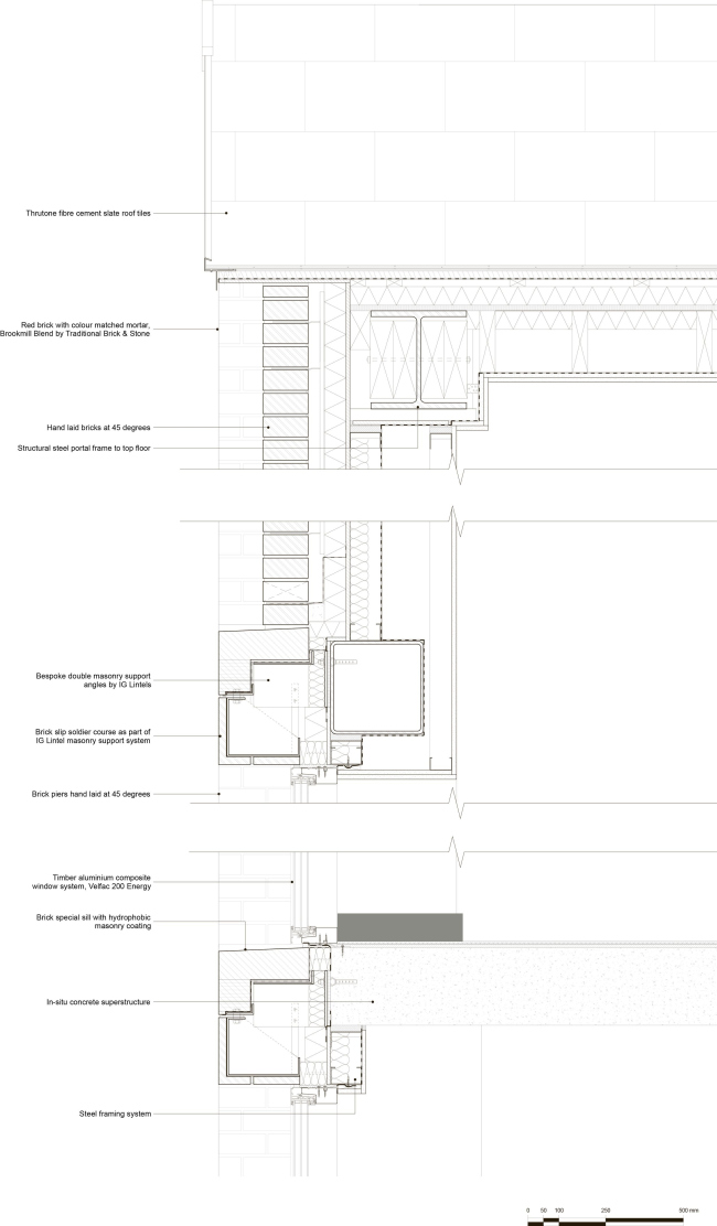
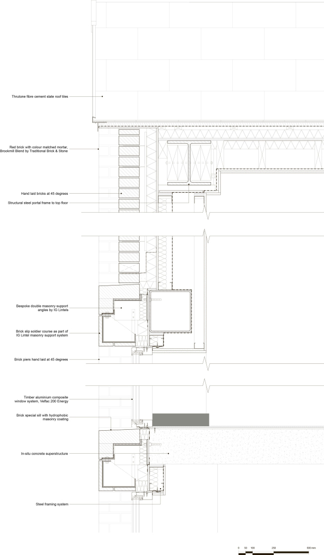
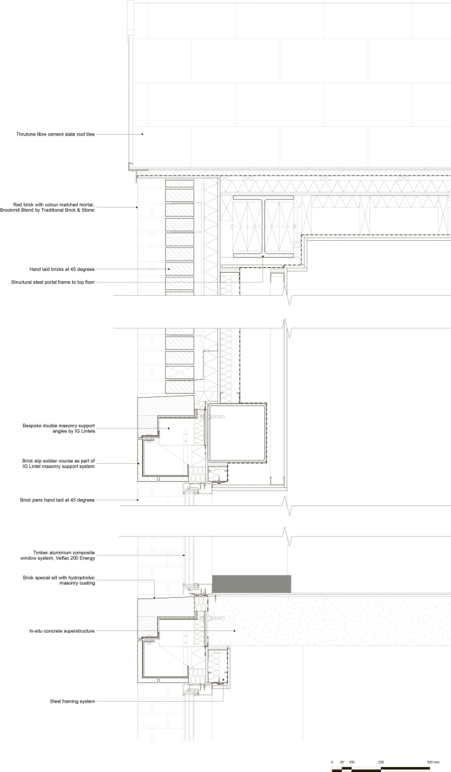
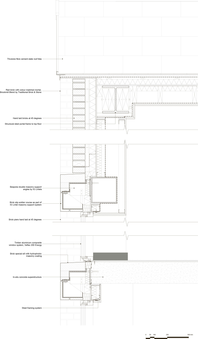
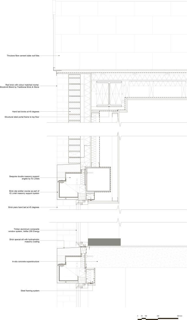
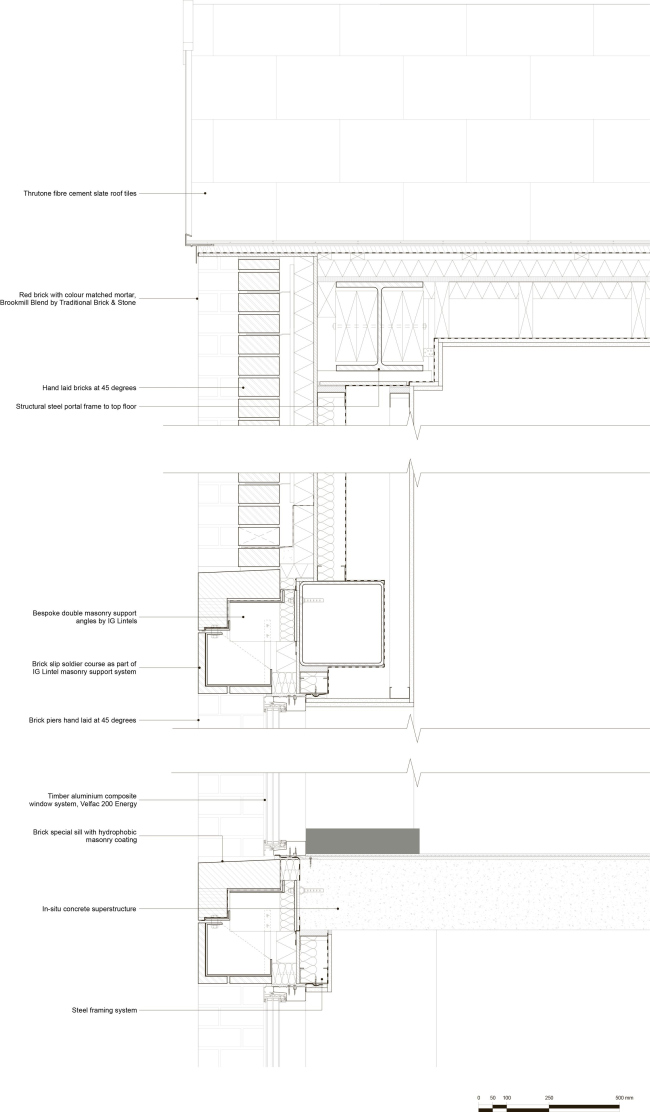
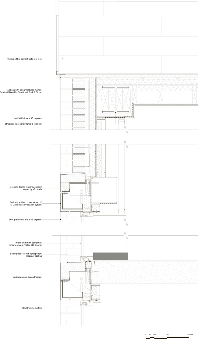
Новый корпус развивает мотивы, заимствованные у исторических корпусов: выразительный щипец, профили из выложенного под углом в 45 градусов кирпича как версия декора из треугольников, вместо горизонтальных поясов из камня – перемычки из вертикальной кладки.
 
Школа Скиннерс
Школа Скиннерс
Фото © Kilian O′Sullivan/VIEW

На первом этаже находится учебный центр для шестого, самого старшего, класса: на площади в 200 м2 есть тихая зона для индивидуальных занятий и отдельные, «неформальные» пространства, граничащие с рекреацией. На втором этаже – классы английского языка, а на самом верху, под крышей – наполненная светом библиотека.
Школа Скиннерс
Школа Скиннерс
Фото © Kilian O′Sullivan/VIEW
Школа Скиннерс
Школа Скиннерс
Фото © Kilian O′Sullivan/VIEW
Школа Скиннерс
Школа Скиннерс
Фото © Kilian O′Sullivan/VIEW
Школа Скиннерс
Школа Скиннерс
Фото © Kilian O′Sullivan/VIEW
Школа Скиннерс
Школа Скиннерс
Фото © Kilian O′Sullivan/VIEW
Школа Скиннерс
Школа Скиннерс
Фото © Kilian O′Sullivan/VIEW
Школа Скиннерс
Школа Скиннерс
Фото © Kilian O′Sullivan/VIEW
Школа Скиннерс
Школа Скиннерс
Фото © Kilian O′Sullivan/VIEW
Школа Скиннерс
Школа Скиннерс
Фото © Kilian O′Sullivan/VIEW
Школа Скиннерс
Школа Скиннерс
Фото © Kilian O′Sullivan/VIEW
Школа Скиннерс
Школа Скиннерс
Фото © Kilian O′Sullivan/VIEW
Школа Скиннерс
Школа Скиннерс
Фото © Kilian O′Sullivan/VIEW
Школа Скиннерс
Школа Скиннерс
Фото © Kilian O′Sullivan/VIEW
Школа Скиннерс
Школа Скиннерс
Фото © Kilian O′Sullivan/VIEW
Школа Скиннерс
Школа Скиннерс
Фото © Kilian O′Sullivan/VIEW
Школа Скиннерс
Школа Скиннерс
Фото © Kilian O′Sullivan/VIEW
Школа Скиннерс
Школа Скиннерс
Фото © Kilian O′Sullivan/VIEW
Школа Скиннерс
Школа Скиннерс
Фото © Kilian O′Sullivan/VIEW
Школа Скиннерс
Школа Скиннерс
Фото © Kilian O′Sullivan/VIEW
Школа Скиннерс
Школа Скиннерс
Фото © Kilian O′Sullivan/VIEW
Школа Скиннерс
Школа Скиннерс
Фото © Kilian O′Sullivan/VIEW
Школа Скиннерс
Школа Скиннерс
Фото © Kilian O′Sullivan/VIEW
Школа Скиннерс
Школа Скиннерс
© Bell Phillips Architects
Школа Скиннерс
Школа Скиннерс
© Bell Phillips Architects
Школа Скиннерс
Школа Скиннерс
© Bell Phillips Architects
Школа Скиннерс
Школа Скиннерс
© Bell Phillips Architects
Школа Скиннерс
Школа Скиннерс
© Bell Phillips Architects
Школа Скиннерс
Школа Скиннерс
© Bell Phillips Architects
Школа Скиннерс
Школа Скиннерс
© Bell Phillips Architects
Школа Скиннерс
Школа Скиннерс
© Bell Phillips Architects
Школа Скиннерс
Школа Скиннерс
© Bell Phillips Architects
Школа Скиннерс
Школа Скиннерс
© Bell Phillips Architects
Школа Скиннерс
Школа Скиннерс
© Bell Phillips Architects
Школа Скиннерс
Школа Скиннерс
© Bell Phillips Architects
Школа Скиннерс
Школа Скиннерс
© Bell Phillips Architects