Размещено на портале Архи.ру (www.archi.ru)

06.04.2021

86 арок

Нина Фролова
Объект:
Жилой комплекс Westbeat
Адрес:
Нидерланды, None, Амстердам.
Мастерская:
Studioninedots
Авторский коллектив:
Дизайн: Albert Herder, Vincent van der Klei, Arie van der Neut, Metin van Zijl
ГАП: Joost Maatkamp
Проект: Wouter Hermanns, Rutger van der Meer, Laura Berasaluce, Joost Körver

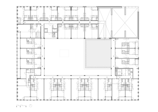
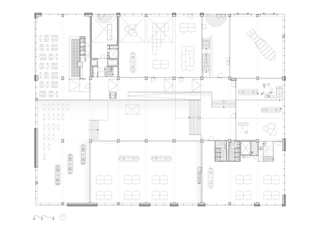
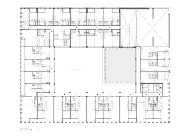
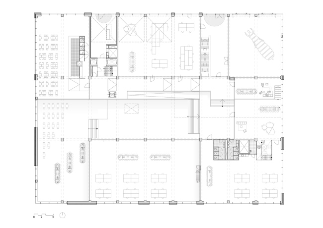
В жилом комплексе Westbeat по проекту бюро Studioninedots на западе Амстердама обширный подиум вмещает многофункциональное общественное и коммерческое пространство для нужд жителей района.

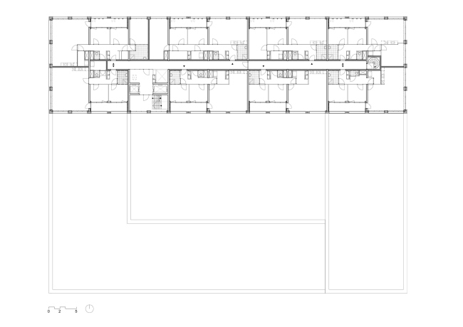
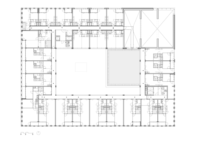
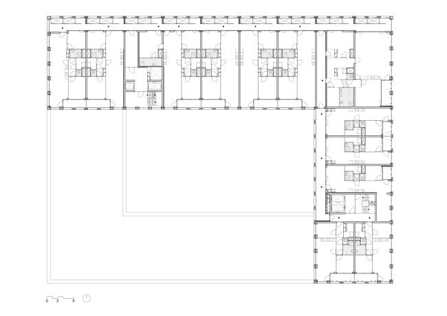
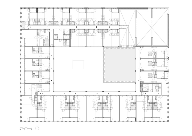
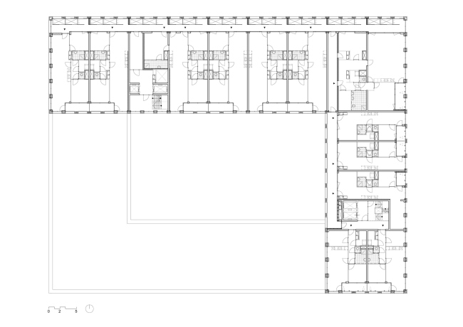
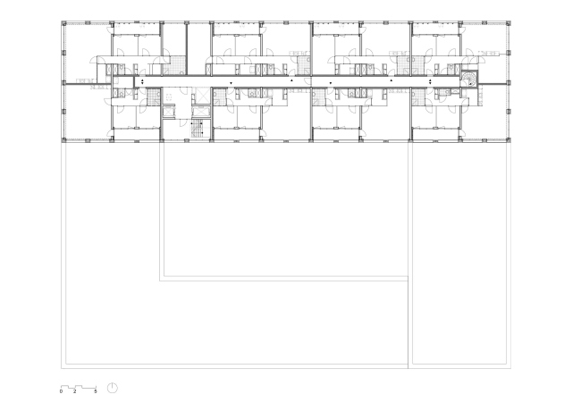
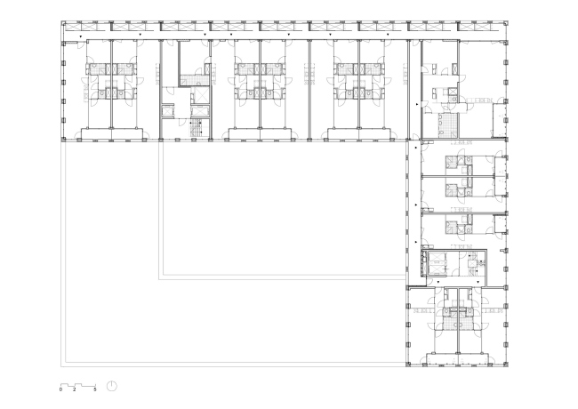
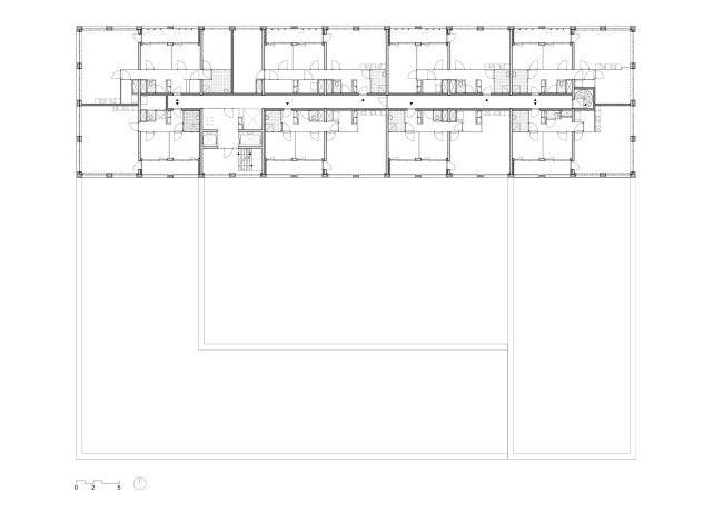
Westbeat на 150 квартир появился на западном краю Амстердама, в районе Ньив-Вест. Он начал застраиваться жильем в 1950-х, затем там возникли бизнес-парки, а  теперь добавляются и новые, культурные функции.
 

Жилой комплекс Westbeat. Проект бюро Studioninedots
Жилой комплекс Westbeat. Проект бюро Studioninedots
Фото © Frans Parthesius

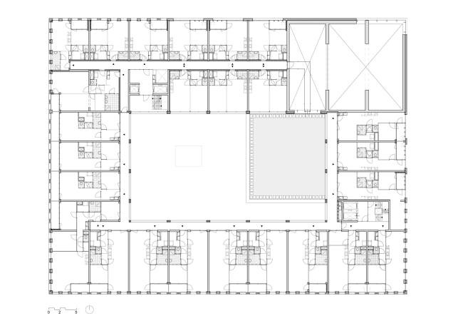
Постройка бюро Studioninedots стоит почти на перекрестке оживленных магистралей и вместе со своим подиумом размером 65 м х 80 м и высотой 8,5 м служит для сглаживания перепада рельефа (он резко понижается от дороги вглубь квартала, и пешеходы теперь могут с удобством пройти сквозь здание) и смягчения шума машин (у него шумоподавляющие фасады).
 
Жилой комплекс Westbeat. Проект бюро Studioninedots
Жилой комплекс Westbeat. Проект бюро Studioninedots
Фото © Frans Parthesius

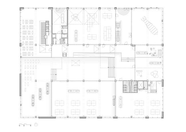
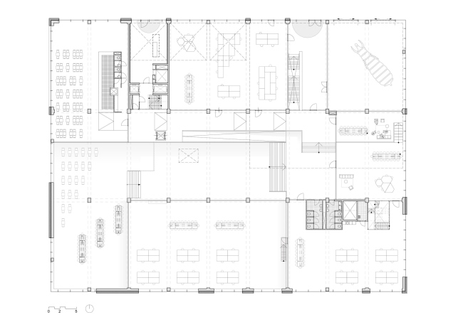
Но важней – социальная функция. Подиум недаром снабжен 86 арками внутри и снаружи, причем самые большие как знак открытости помещены на углах. Внутри расположено многофункциональное пространство, подходящее для устройства офисов, кафе, проведения концертов и спектаклей, и так далее. Оно намеренно сделано гибким, чтобы можно было менять его назначение по требованию момента.
 
Жилой комплекс Westbeat. Проект бюро Studioninedots
Жилой комплекс Westbeat. Проект бюро Studioninedots
Фото © Frans Parthesius

В первую очередь оно ориентировано на молодых горожан как арендаторов и пользователей. Архитекторы Studioninedots разработают интерьер подиума в сотрудничестве с первыми его «обитателями».
 
Жилой комплекс Westbeat. Проект бюро Studioninedots
Жилой комплекс Westbeat. Проект бюро Studioninedots
Фото © Frans Parthesius

Идея такого пространства возникла у авторов в связи с чрезмерной, по их мнению, прописанностью программ общественных пространств, рассчитанных на конкретные занятия конкретных групп горожан. В ответ архитекторы предлагают свой подиум, который должен пробудить воображение, предлагает человеку играть и экспериментировать.
Жилой комплекс Westbeat. Проект бюро Studioninedots
Жилой комплекс Westbeat. Проект бюро Studioninedots
Фото © Frans Parthesius
Жилой комплекс Westbeat. Проект бюро Studioninedots
Жилой комплекс Westbeat. Проект бюро Studioninedots
Фото © Frans Parthesius
Жилой комплекс Westbeat. Проект бюро Studioninedots
Жилой комплекс Westbeat. Проект бюро Studioninedots
Фото © Frans Parthesius
Жилой комплекс Westbeat. Проект бюро Studioninedots
Жилой комплекс Westbeat. Проект бюро Studioninedots
Фото © Frans Parthesius
Жилой комплекс Westbeat. Проект бюро Studioninedots
Жилой комплекс Westbeat. Проект бюро Studioninedots
Фото © Frans Parthesius
Жилой комплекс Westbeat. Проект бюро Studioninedots
Жилой комплекс Westbeat. Проект бюро Studioninedots
Фото © Frans Parthesius
Жилой комплекс Westbeat. Проект бюро Studioninedots
Жилой комплекс Westbeat. Проект бюро Studioninedots
Фото © Frans Parthesius
Жилой комплекс Westbeat. Проект бюро Studioninedots
Жилой комплекс Westbeat. Проект бюро Studioninedots
Фото © Frans Parthesius
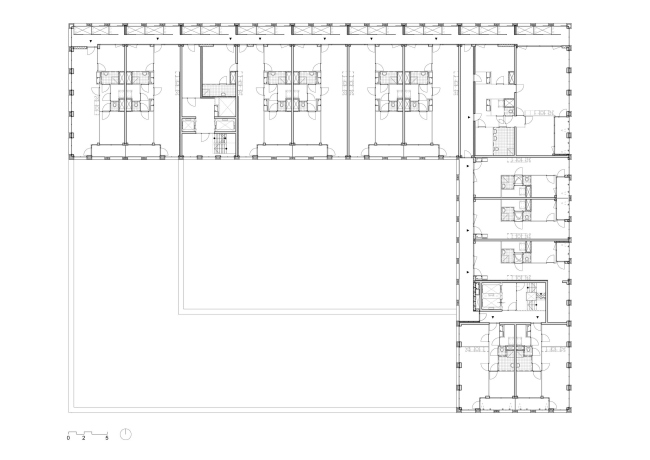
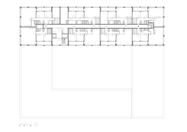
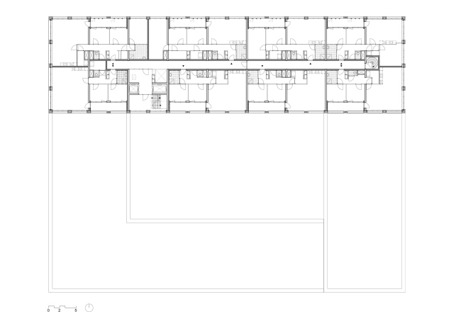
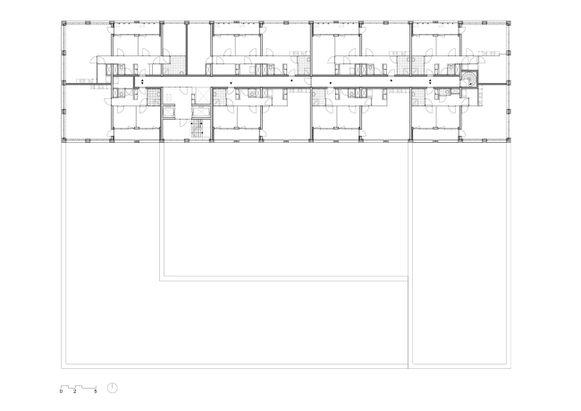
Жилой комплекс Westbeat. Проект бюро Studioninedots
Жилой комплекс Westbeat. Проект бюро Studioninedots
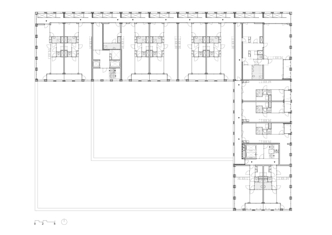
© Studioninedots
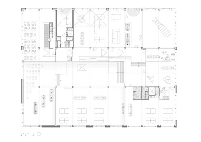
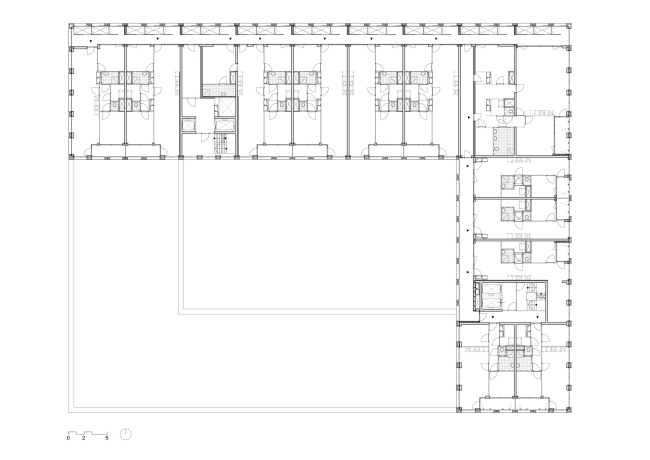
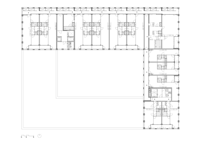
Жилой комплекс Westbeat. Проект бюро Studioninedots
Жилой комплекс Westbeat. Проект бюро Studioninedots
© Studioninedots
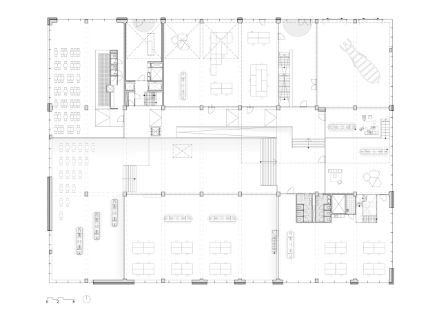
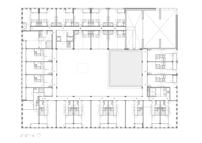
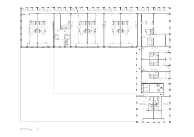
Жилой комплекс Westbeat. Проект бюро Studioninedots
Жилой комплекс Westbeat. Проект бюро Studioninedots
© Studioninedots
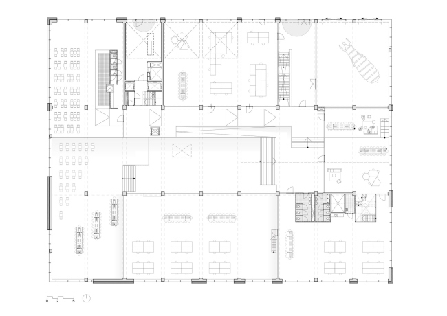
Жилой комплекс Westbeat. Проект бюро Studioninedots
Жилой комплекс Westbeat. Проект бюро Studioninedots
© Studioninedots
Жилой комплекс Westbeat. Проект бюро Studioninedots
Жилой комплекс Westbeat. Проект бюро Studioninedots
© Studioninedots
Жилой комплекс Westbeat. Проект бюро Studioninedots
Жилой комплекс Westbeat. Проект бюро Studioninedots
© Studioninedots