Размещено на портале Архи.ру (www.archi.ru)

01.04.2021

Ценность подиума

Нина Фролова
Объект:
Комплекс Schindler City
Адрес:
Китай, None, Шанхай.
Мастерская:
Neri&Hu

В китайской штаб-квартире компании Schindler в Шанхае по проекту Neri&Hu проблема разобщенности производственных и офисных корпусов решена с помощью выразительного подиума.


Производитель лифтов Schindler задумал объединить на своем кампусе в районе Цзядин на северо-западе Шанхая офисы, шоу-рум, заводские корпуса, склады, центр исследований и разработок (R&D), испытательную башню.
 

Комплекс Schindler City
Комплекс Schindler City
Фото © Annika Feuss

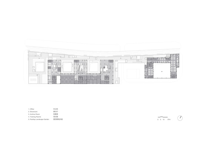
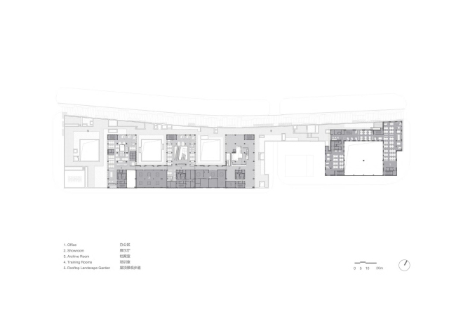
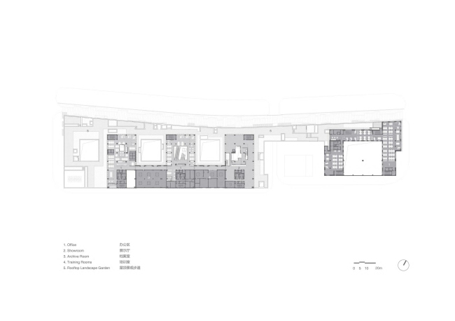
Вдоль поперечной оси участка протянулся административный центр комплекса, который поднят на подиум, облицованный традиционным для Китая серым кирпичом – причем вторично использованным, то есть более экологичным и фактурным, чем новый.
 
Комплекс Schindler City
Комплекс Schindler City
Фото © Annika Feuss

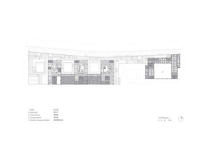
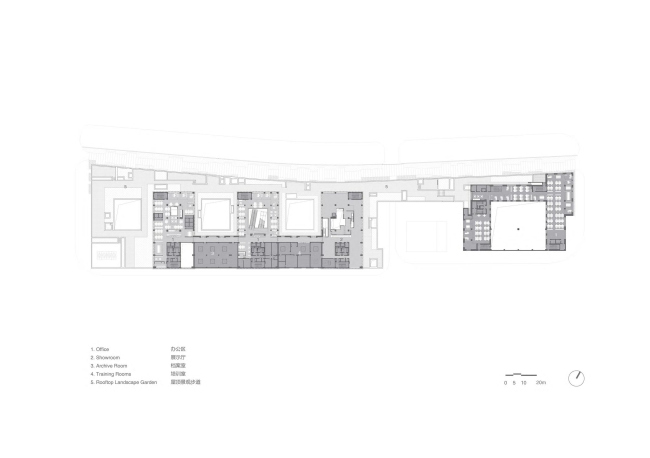
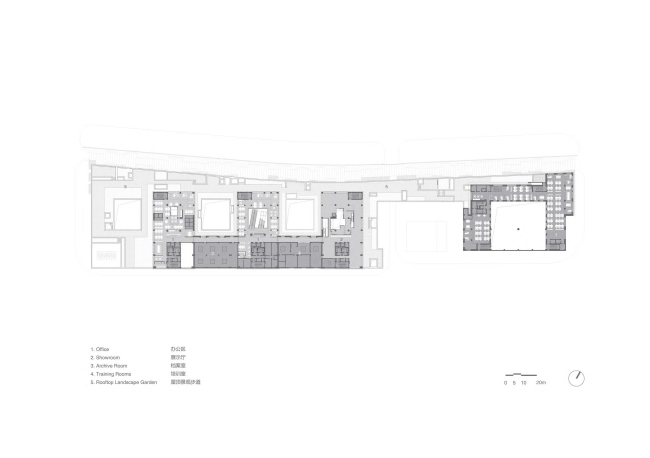
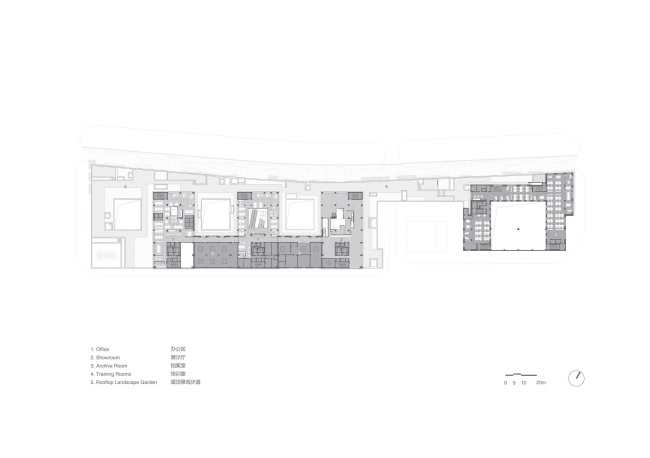
С востока подиум превращается в «крепость» с динамичной композицией: там размещен отдел R&D. С запада из подиума вырастают три остекленных объема: офисы на 800 сотрудников, переговорные, архив, шоу-рум и учебный центр. Подиум объединяет ряд функций: столовую на 600 человек, аудиторию на 200 мест, кафе и салоны, сады, а также 300-метровый переход с траволатором.
Комплекс Schindler City
Комплекс Schindler City
Фото © Annika Feuss
Комплекс Schindler City
Комплекс Schindler City
Фото © Annika Feuss
Комплекс Schindler City
Комплекс Schindler City
Фото © Annika Feuss
Комплекс Schindler City
Комплекс Schindler City
Фото © Annika Feuss
Комплекс Schindler City
Комплекс Schindler City
Фото © Dirk Weiblen
Комплекс Schindler City
Комплекс Schindler City
Фото © Dirk Weiblen
Комплекс Schindler City
Комплекс Schindler City
Фото © Dirk Weiblen
Комплекс Schindler City
Комплекс Schindler City
© Neri&Hu
Комплекс Schindler City
Комплекс Schindler City
© Neri&Hu
Комплекс Schindler City
Комплекс Schindler City
© Neri&Hu
Комплекс Schindler City
Комплекс Schindler City
© Neri&Hu