Размещено на портале Архи.ру (www.archi.ru)

24.03.2021

Музей в «холодной куртке»

Нина Фролова
Объект:
Хьюстонский музей изобразительных искусств – реконструкция
Адрес:
США, None, Хьюстон.

Корпус Киндер Хьюстонского музея изобразительных искусств по проекту Steven Holl Architects: фасады из полупрозрачного стекла отражают 70% солнечного жара.

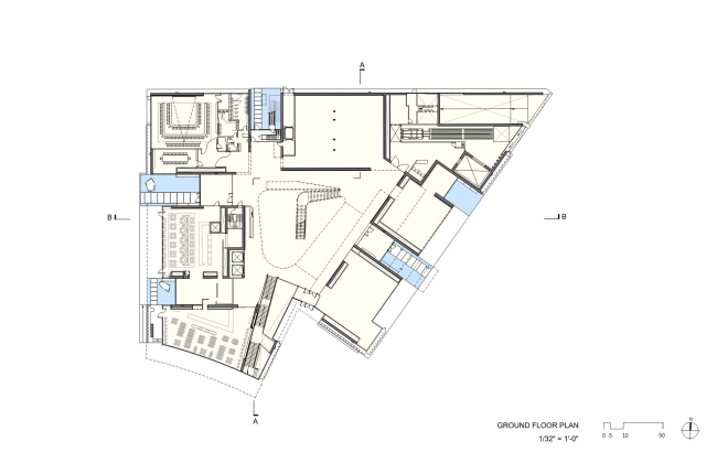
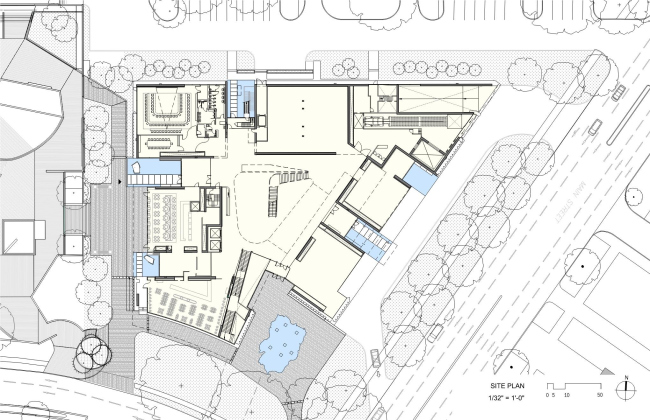
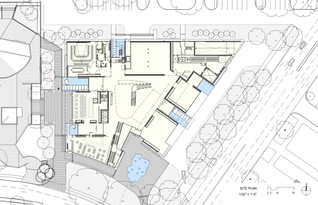
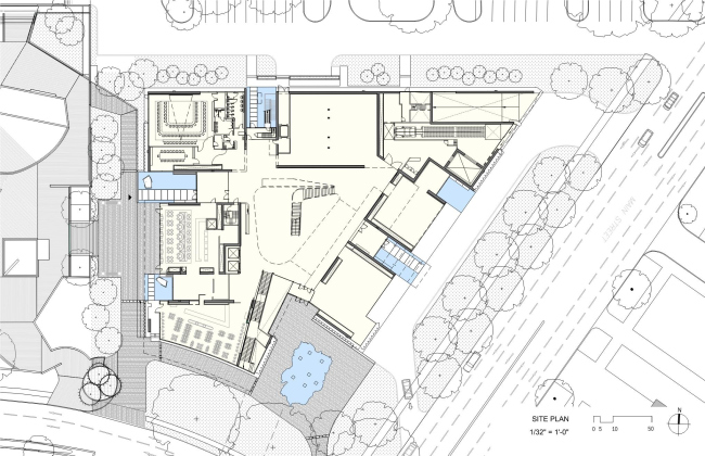
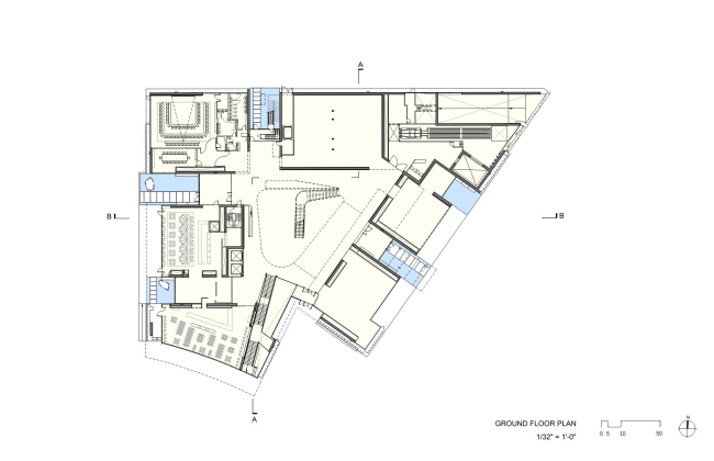
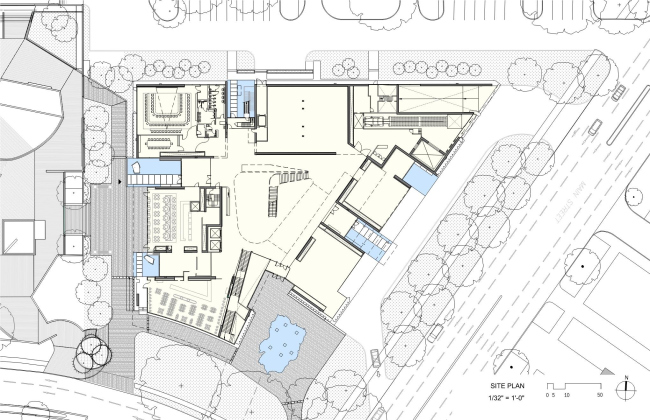
Корпус имени Нэнси и Рича Киндер в Хьюстонском музее искусств – последний этап разработанного в бюро Стивена Холла мастерплана (5,8 га). Благодаря ему пространство вокруг музея с его несколькими корпусами, включая постройки Людвига Мис ван дер Роэ и Рафаэля Монео, а также сад скульптур Исаму Ногучи, теперь приобрело большую цельность, там появились новые зеленые зоны и общественные пространства. В 2018 открылась школа искусств Гласселл, а теперь наступил черед корпуса Киндер.
 

Корпус Киндер Хьюстонского музея изобразительных искусств
Корпус Киндер Хьюстонского музея изобразительных искусств
Фото © Richard Barnes, предоставлено Museum of Fine Arts, Houston

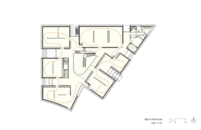
Это здание получило свою окончательную форму, помимо прочего, из-за желания Стивена Холла сохранить все росшие рядом дубы. Поэтому постройка как будто надрезана семью двориками, оформляющими входы или просто задающими акцент фасаду. Криволинейные поверхности перекрытий вдохновлены облаками, но также помогают фильтровать солнечный свет для выставочных залов верхнего яруса, а внутри их стальные поверхности отражают и рассеивают этот свет.
 
Корпус Киндер Хьюстонского музея изобразительных искусств
Корпус Киндер Хьюстонского музея изобразительных искусств
Фото © Richard Barnes, предоставлено Museum of Fine Arts, Houston
Корпус Киндер Хьюстонского музея изобразительных искусств
Корпус Киндер Хьюстонского музея изобразительных искусств
Фото © Richard Barnes, предоставлено Museum of Fine Arts, Houston

Но самое интересное – это внешний слой фасадов, скрывающий за собой бетонные стены с оконными проемами. Он выполнен из полупрозрачного стекла: полуцилиндрические элементы, напоминающие разрезанную пополам трубу 76 см в диаметре, достигают в высоту 6 метров. Всего было использовано 1103 стеклянные детали 459 разных размеров.
 
Корпус Киндер Хьюстонского музея изобразительных искусств Фото © Richard Barnes, предоставлено Museum of Fine Arts, Houston
Корпус Киндер Хьюстонского музея изобразительных искусств
Фото © Richard Barnes, предоставлено Museum of Fine Arts, Houston
Корпус Киндер Хьюстонского музея изобразительных искусств Фото © Richard Barnes, предоставлено Museum of Fine Arts, Houston
Корпус Киндер Хьюстонского музея изобразительных искусств
Фото © Richard Barnes, предоставлено Museum of Fine Arts, Houston
Корпус Киндер Хьюстонского музея изобразительных искусств Фото © Richard Barnes, предоставлено Museum of Fine Arts, Houston
Корпус Киндер Хьюстонского музея изобразительных искусств
Фото © Richard Barnes, предоставлено Museum of Fine Arts, Houston
Корпус Киндер Хьюстонского музея изобразительных искусств
Корпус Киндер Хьюстонского музея изобразительных искусств
Фото © Richard Barnes, предоставлено Museum of Fine Arts, Houston

Кроме необычного облика, придающего границам здания размытость, такие фасады отфильтровывают попадающий внутрь солнечный свет, но главное – отражают 70% солнечного жара благодаря метровому, открытому сверху и снизу зазору между ними и бетонной стеной. Такую схему архитекторы придумали совместно с инженерами Transsolar: они назвали ее «холодной курткой» или, точнее, «курткой из холода», в которую обернут музей. Для жаркого Техаса это важнейшее изобретение.
 
Корпус Киндер Хьюстонского музея изобразительных искусств
Корпус Киндер Хьюстонского музея изобразительных искусств
Фото © Richard Barnes, предоставлено Museum of Fine Arts, Houston

Внутри, на площади в 22 000 м2, расположились организованные вокруг трехэтажного атриума семь выставочных залов, аудитория на 215 мест, кафе и ресторан, конференц-залы, а также два пешеходных тоннеля, соединяющих корпус Киндер с другими зданиями музея.
Корпус Киндер Хьюстонского музея изобразительных искусств
Корпус Киндер Хьюстонского музея изобразительных искусств
Фото © Richard Barnes, предоставлено Museum of Fine Arts, Houston
Корпус Киндер Хьюстонского музея изобразительных искусств
Корпус Киндер Хьюстонского музея изобразительных искусств
Фото © Richard Barnes, предоставлено Museum of Fine Arts, Houston
Корпус Киндер Хьюстонского музея изобразительных искусств
Корпус Киндер Хьюстонского музея изобразительных искусств
Фото © Richard Barnes, предоставлено Museum of Fine Arts, Houston
Корпус Киндер Хьюстонского музея изобразительных искусств
Корпус Киндер Хьюстонского музея изобразительных искусств
Фото © Richard Barnes, предоставлено Museum of Fine Arts, Houston
Корпус Киндер Хьюстонского музея изобразительных искусств
Корпус Киндер Хьюстонского музея изобразительных искусств
Фото © Richard Barnes, предоставлено Museum of Fine Arts, Houston
Корпус Киндер Хьюстонского музея изобразительных искусств
Корпус Киндер Хьюстонского музея изобразительных искусств
Фото © Richard Barnes, предоставлено Museum of Fine Arts, Houston
Корпус Киндер Хьюстонского музея изобразительных искусств
Корпус Киндер Хьюстонского музея изобразительных искусств
© Steven Holl Architects
Корпус Киндер Хьюстонского музея изобразительных искусств
Корпус Киндер Хьюстонского музея изобразительных искусств
© Steven Holl Architects
Корпус Киндер Хьюстонского музея изобразительных искусств
Корпус Киндер Хьюстонского музея изобразительных искусств
© Steven Holl Architects
Корпус Киндер Хьюстонского музея изобразительных искусств
Корпус Киндер Хьюстонского музея изобразительных искусств
© Steven Holl Architects
Корпус Киндер Хьюстонского музея изобразительных искусств
Корпус Киндер Хьюстонского музея изобразительных искусств
© Steven Holl Architects
Корпус Киндер Хьюстонского музея изобразительных искусств
Корпус Киндер Хьюстонского музея изобразительных искусств
© Steven Holl Architects
Корпус Киндер Хьюстонского музея изобразительных искусств
Корпус Киндер Хьюстонского музея изобразительных искусств
© Steven Holl Architects
Корпус Киндер Хьюстонского музея изобразительных искусств
Корпус Киндер Хьюстонского музея изобразительных искусств
© Steven Holl Architects
Корпус Киндер Хьюстонского музея изобразительных искусств
Корпус Киндер Хьюстонского музея изобразительных искусств
© Steven Holl Architects
Корпус Киндер Хьюстонского музея изобразительных искусств
Корпус Киндер Хьюстонского музея изобразительных искусств
© Steven Holl Architects
Корпус Киндер Хьюстонского музея изобразительных искусств
Корпус Киндер Хьюстонского музея изобразительных искусств
© Steven Holl Architects
Корпус Киндер Хьюстонского музея изобразительных искусств
Корпус Киндер Хьюстонского музея изобразительных искусств
© Steven Holl Architects
Корпус Киндер Хьюстонского музея изобразительных искусств
Корпус Киндер Хьюстонского музея изобразительных искусств
© Steven Holl Architects