Размещено на портале Архи.ру (www.archi.ru)

19.03.2021

Поликарбонат над рекой

Нина Фролова
Объект:
Корпус Powerhouse Белойтского колледжа
Адрес:
США, None, Белойт.
Мастерская:
Studio Gang

Студенческий центр Powerhouse для Белойтского колледжа в штате Висконсин – реконструированная по проекту Studio Gang историческая электростанция.

Угольная электростанция Блэкхок на берегу Рок-ривер в городе Белойт к западу от Чикаго строилась в несколько этапов в течение всей первой половины XX века, но в наши дни закрылась как устаревшая. Расположенный через магистраль кампус Белойтского колледжа теперь вобрал ее в свой состав: с этой целью через оживленную улицу перекинули пешеходный мост с лифтом. Они нивелируют перепад рельефа – кампус раскинулся на холме – и усиливают связь между ним и рекой как для студентов, так и для горожан.
 

Корпус Powerhouse Белойтского колледжа
Корпус Powerhouse Белойтского колледжа
Фотография © Tom Harris. Предоставлено Studio Gang

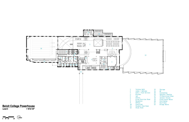
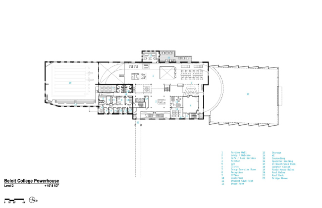
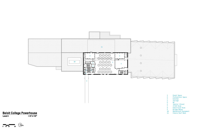
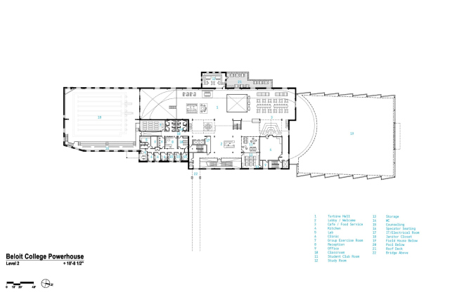
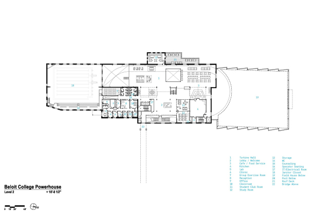
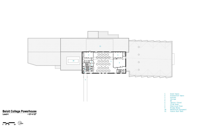
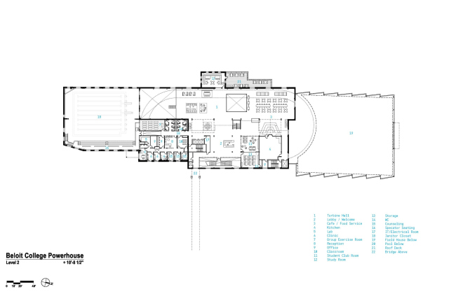
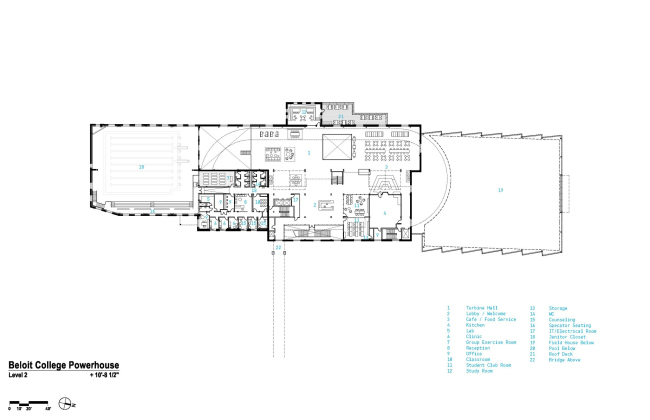
После реконструкции электростанция занята, в основном, спортивными сооружениями, но обычные для студенческого центра кофейня, пространства для индивидуальных и групповых занятий, разного рода помещения для собраний и конференций, включая зал на 164 места, там тоже есть.
 
Корпус Powerhouse Белойтского колледжа
Корпус Powerhouse Белойтского колледжа
Фото © Tom Harris. Предоставлено Studio Gang

В новой части с фасадом из поликарбоната, обеспечивающим там рассеянное естественное освещение, расположилось игровое поле. В историческом здании есть подходящий для проведения соревнований бассейн на восемь дорожек и фитнес-центр. По периметру подвешена 175-метровая беговая дорожка, с которой можно охватить взглядом всю электростанцию, где ради впечатления подлинности сохранены индустриальные детали.
 
Корпус Powerhouse Белойтского колледжа
Корпус Powerhouse Белойтского колледжа
Фотография © Tom Harris. Предоставлено Studio Gang

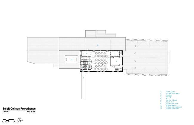
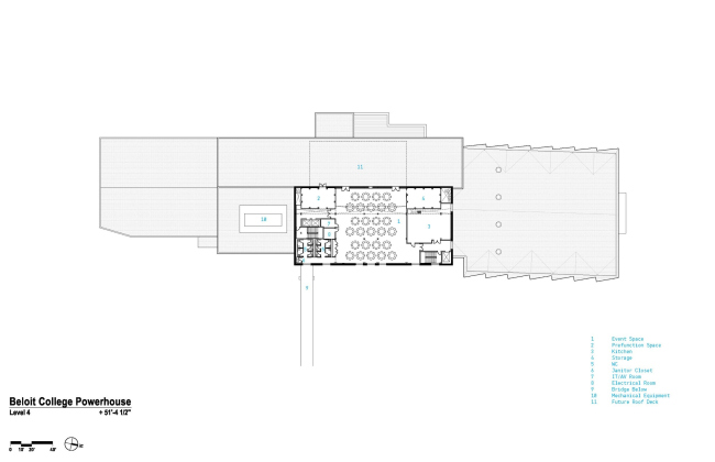
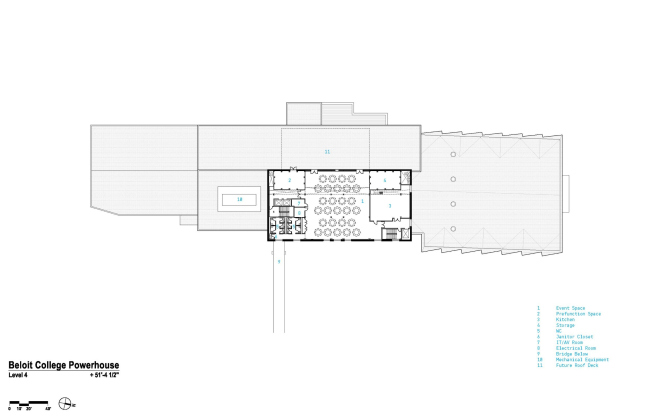
Одной из самых сложных частей проекта было обеспечение ресурсоэффективности старой части. Фасады получили новую изоляцию, а внутри установили систему излучательного отопления и охлаждения (использованы плиты и панели), причем она почти полностью работает на речной воде. Такая система позволила, помимо прочего, обеспечить высокое качество воздуха внутри здания. Архитекторы планируют получить для проекта (11 150 м2) сертификат LEED Silver.
Корпус Powerhouse Белойтского колледжа
Корпус Powerhouse Белойтского колледжа
Фото © Tom Harris. Предоставлено Studio Gang
Корпус Powerhouse Белойтского колледжа
Корпус Powerhouse Белойтского колледжа
Фото © Tom Harris. Предоставлено Studio Gang
Корпус Powerhouse Белойтского колледжа
Корпус Powerhouse Белойтского колледжа
Фотография © Tom Harris. Предоставлено Studio Gang
Корпус Powerhouse Белойтского колледжа
Корпус Powerhouse Белойтского колледжа
Фото © Tom Harris. Предоставлено Studio Gang
Корпус Powerhouse Белойтского колледжа
Корпус Powerhouse Белойтского колледжа
Фото © Tom Harris. Предоставлено Studio Gang
Корпус Powerhouse Белойтского колледжа
Корпус Powerhouse Белойтского колледжа
Фото © Tom Harris. Предоставлено Studio Gang
Корпус Powerhouse Белойтского колледжа
Корпус Powerhouse Белойтского колледжа
Фото © Tom Harris. Предоставлено Studio Gang
Корпус Powerhouse Белойтского колледжа
Корпус Powerhouse Белойтского колледжа
Фото © Tom Harris. Предоставлено Studio Gang
Корпус Powerhouse Белойтского колледжа
Корпус Powerhouse Белойтского колледжа
Фото © Tom Harris. Предоставлено Studio Gang
Корпус Powerhouse Белойтского колледжа
Корпус Powerhouse Белойтского колледжа
Фото © Tom Harris. Предоставлено Studio Gang
Корпус Powerhouse Белойтского колледжа
Корпус Powerhouse Белойтского колледжа
Фото © Tom Harris. Предоставлено Studio Gang
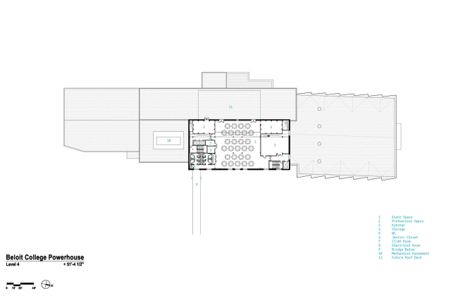
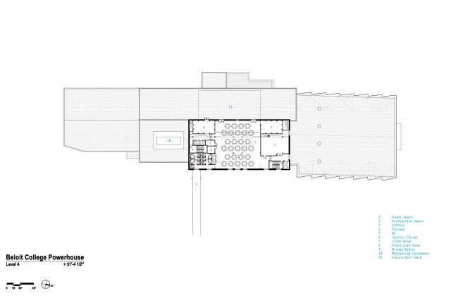
Корпус Powerhouse Белойтского колледжа
Корпус Powerhouse Белойтского колледжа
© Studio Gang
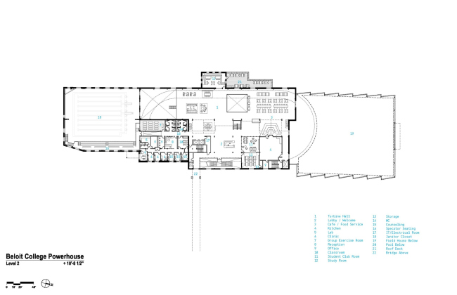
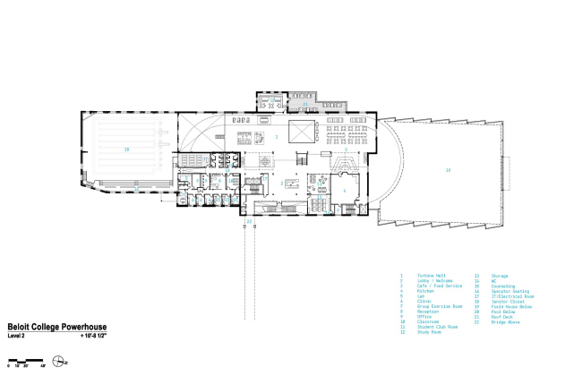
Корпус Powerhouse Белойтского колледжа
Корпус Powerhouse Белойтского колледжа
© Studio Gang
Корпус Powerhouse Белойтского колледжа
Корпус Powerhouse Белойтского колледжа
© Studio Gang
Корпус Powerhouse Белойтского колледжа
Корпус Powerhouse Белойтского колледжа
© Studio Gang
Корпус Powerhouse Белойтского колледжа
Корпус Powerhouse Белойтского колледжа
© Studio Gang
Корпус Powerhouse Белойтского колледжа
Корпус Powerhouse Белойтского колледжа
© Studio Gang
Корпус Powerhouse Белойтского колледжа
Корпус Powerhouse Белойтского колледжа
© Studio Gang