Размещено на портале Архи.ру (www.archi.ru)

18.03.2021

Новое внутри старого

Нина Фролова
Объект:
Королевский музей изящных искусств в Антверпене – реконструкция
Адрес:
Бельгия, None, Антверпен.
Мастерская:
KAAN Architecten

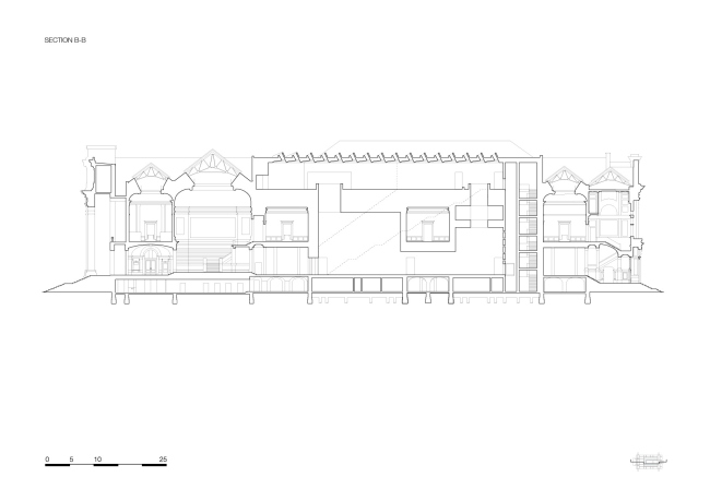
В ходе реконструкции Королевского музея изящных искусств в Антверпене KAAN Architecten полностью скрыли современное крыло внутри исторического здания, чтобы не нарушать его облик.

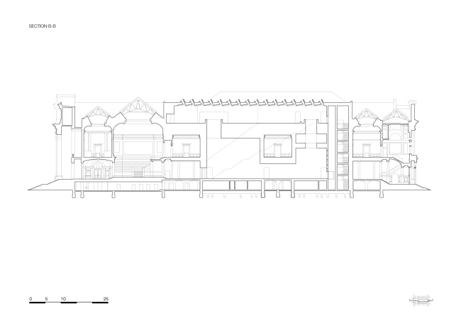
Открывшийся в 1890 музей, пышное произведение эклектики, помещен в центре площади и служит «точкой схода» для прилегающих улиц, образующих современную ему звездчатую планировку. Заметное новейшее дополнение могло иначе расставить акценты в этой довольно скучной композиции, но решение KAAN Architecten было иным, основанным на сохранении исторического облика ансамбля.
 

Королевский музей изящных искусств в Антверпене – реконструкция
Королевский музей изящных искусств в Антверпене – реконструкция
Фото © Stijn Bollaert

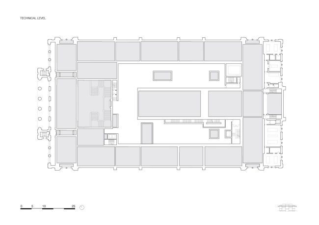
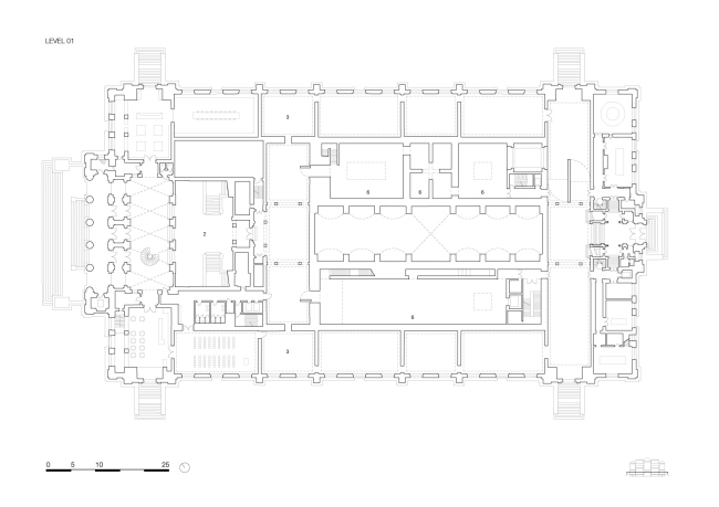
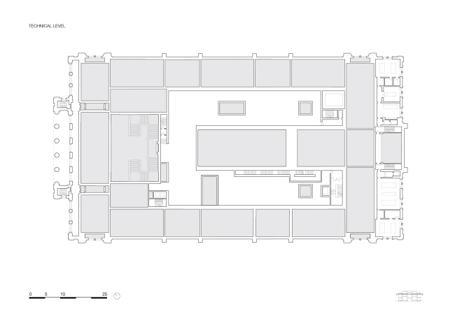
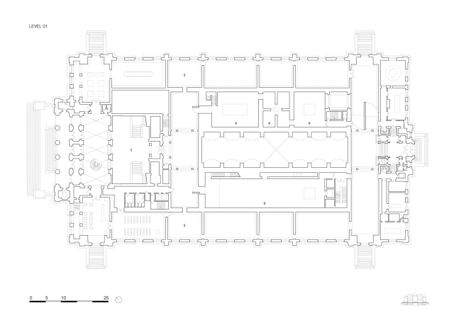
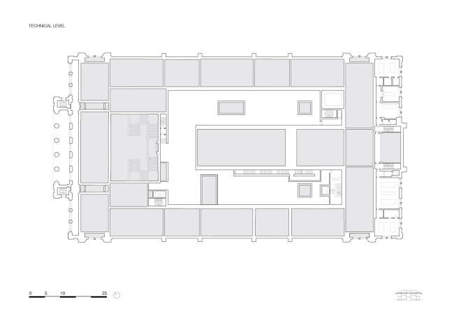
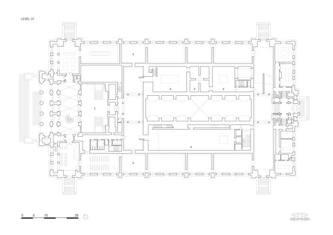
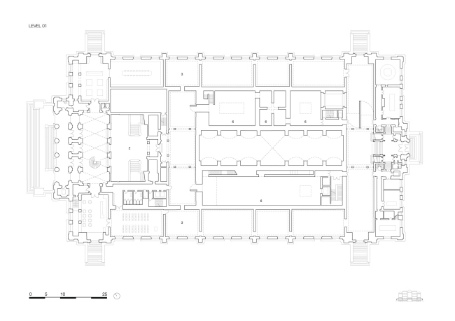
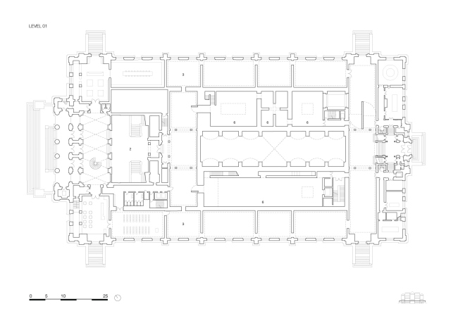
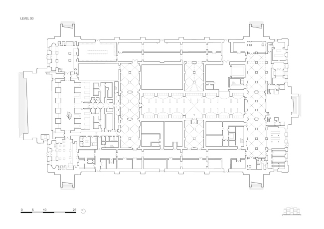
Архитекторы занимаются зданием Королевского музея изящных искусств в Антверпене (KMSKA) с 2003 и пока завершили две очереди проекта – впереди еще третья. Их план – вписать музей XXI века в здание музея XIX столетия, при этом их разное устройство, стиль, назначение должны создать динамичный диалог. Пространством для вставки стали внутренние дворы исторической постройки Якоба Вандерса и Франса Ван Дейка.
 
Королевский музей изящных искусств в Антверпене – реконструкция
Королевский музей изящных искусств в Антверпене – реконструкция
Фото © Mediamixer

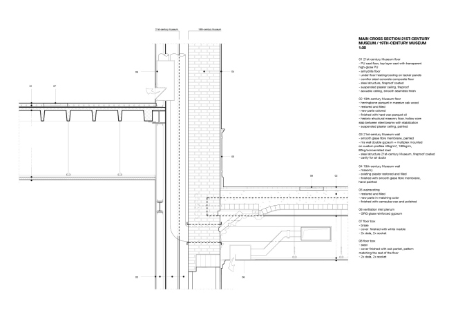
Солнечный свет попадает в новую часть сквозь остекление кровли в форме эффектных треугольных элементов. Они ориентированы на север, чтобы улавливать оптимальный для выставочных залов свет, однако схема освещения также рассчитана на сезонное снижение его интенсивности – и компенсацию этих колебаний. Распределителями света служат четыре световых колодца высотой 23 м, ощущение отличной освещенности в белых залах обеспечивают и блестящие полы. Это все ведет к некоторой дематериализации пространства, особому контрасту с плотными, насыщенными старыми залами, хотя «мостик» с ними перекинут с помощью использования мрамора.
 
Королевский музей изящных искусств в Антверпене – реконструкция
Королевский музей изящных искусств в Антверпене – реконструкция
Фото © Stijn Bollaert

Особый, контрастный этаж составляют «синие кабинеты» для экспонирования гравюр и рисунков. Их темный по цвету и освещению ярус – прослойка между первым и третьим белыми сияющими этажами.
 
Королевский музей изящных искусств в Антверпене – реконструкция
Королевский музей изящных искусств в Антверпене – реконструкция
Фото © Stijn Bollaert

В новые залы посетитель приходит из расположенного на том же первом этаже вестибюля, где теперь появилась информационная зона, а рядом – кафе и аудитория. Ажурная винтовая лестница спускается на цокольный этаж (по сути – на уровень улицы), где расположились библиотека, гардероб и вход для туристических групп.
 
Королевский музей изящных искусств в Антверпене – реконструкция Фото © Stijn Bollaert
Королевский музей изящных искусств в Антверпене – реконструкция
Фото © Stijn Bollaert
Королевский музей изящных искусств в Антверпене – реконструкция Фото © Sebastian van Damme
Королевский музей изящных искусств в Антверпене – реконструкция
Фото © Sebastian van Damme
Королевский музей изящных искусств в Антверпене – реконструкция Фото © Sebastian van Damme
Королевский музей изящных искусств в Антверпене – реконструкция
Фото © Sebastian van Damme
Королевский музей изящных искусств в Антверпене – реконструкция Фото © Sebastian van Damme
Королевский музей изящных искусств в Антверпене – реконструкция
Фото © Sebastian van Damme
Королевский музей изящных искусств в Антверпене – реконструкция Фото © Stijn Bollaert
Королевский музей изящных искусств в Антверпене – реконструкция
Фото © Stijn Bollaert
Королевский музей изящных искусств в Антверпене – реконструкция Фото © Stijn Bollaert
Королевский музей изящных искусств в Антверпене – реконструкция
Фото © Stijn Bollaert
Королевский музей изящных искусств в Антверпене – реконструкция Фото © Stijn Bollaert
Королевский музей изящных искусств в Антверпене – реконструкция
Фото © Stijn Bollaert

Если подняться из вестибюля вверх по исторической лестницы, то окажешься в реконструированных старых залах, где сохранены старые цвета – темные красный, зеленый и розовый – но их использование и оттенки напоминают о современности; впрочем, новые диваны легко вписались бы по своему дизайну в интерьер позапрошлого столетия.
 
Королевский музей изящных искусств в Антверпене – реконструкция
Королевский музей изящных искусств в Антверпене – реконструкция
Фото © Sebastian van Damme

Особого упоминания заслуживают технические детали: архитекторы добавили к уже существовавшим в стенах залов «щелям» для транспортировки больших картин новые. Такие устройства необходимы, потому что многие полотна не проходят в обычные двери, но искусно замаскированы, поэтому рядовой посетитель их никогда не заметит. Также появилась целая стена (5,5 х 9 м) на втором этаже, которую можно повернуть вокруг своей оси – для той же удобной транспортировки экспонатов до грузового лифта. Еще архитекторам пришлось передвинуть стену между двумя главными залами – Рубенса и Ван Дейка, чтобы связать части нового «крыла».
 
Королевский музей изящных искусств в Антверпене – реконструкция Фото © Sebastian van Damme
Королевский музей изящных искусств в Антверпене – реконструкция
Фото © Sebastian van Damme
Королевский музей изящных искусств в Антверпене – реконструкция Фото © Stijn Bollaert
Королевский музей изящных искусств в Антверпене – реконструкция
Фото © Stijn Bollaert
Королевский музей изящных искусств в Антверпене – реконструкция Фото © Stijn Bollaert
Королевский музей изящных искусств в Антверпене – реконструкция
Фото © Stijn Bollaert
Королевский музей изящных искусств в Антверпене – реконструкция Фото © Stijn Bollaert
Королевский музей изящных искусств в Антверпене – реконструкция
Фото © Stijn Bollaert
Королевский музей изящных искусств в Антверпене – реконструкция Фото © Stijn Bollaert
Королевский музей изящных искусств в Антверпене – реконструкция
Фото © Stijn Bollaert

Помещения для сотрудников составляют третью очередь проекта (пока воплощены две первых), но уже оборудован запасник: он занял место бомбоубежища на случай атомной войны, которое находилось под музеем.
 
Королевский музей изящных искусств в Антверпене – реконструкция
Королевский музей изящных искусств в Антверпене – реконструкция
Фото © Sebastian van Damme
Королевский музей изящных искусств в Антверпене – реконструкция
Королевский музей изящных искусств в Антверпене – реконструкция
Фото © Sebastian van Damme
Королевский музей изящных искусств в Антверпене – реконструкция
Королевский музей изящных искусств в Антверпене – реконструкция
Фото © Stijn Bollaert
Королевский музей изящных искусств в Антверпене – реконструкция
Королевский музей изящных искусств в Антверпене – реконструкция
Фото © Mediamixer
Королевский музей изящных искусств в Антверпене – реконструкция
Королевский музей изящных искусств в Антверпене – реконструкция
Фото © Sebastian van Damme
Королевский музей изящных искусств в Антверпене – реконструкция
Королевский музей изящных искусств в Антверпене – реконструкция
Фото © Stijn Bollaert
Королевский музей изящных искусств в Антверпене – реконструкция Фото © Sebastian van Damme
Королевский музей изящных искусств в Антверпене – реконструкция
Фото © Sebastian van Damme
Королевский музей изящных искусств в Антверпене – реконструкция Фото © Stijn Bollaert
Королевский музей изящных искусств в Антверпене – реконструкция
Фото © Stijn Bollaert
Королевский музей изящных искусств в Антверпене – реконструкция Фото © Stijn Bollaert
Королевский музей изящных искусств в Антверпене – реконструкция
Фото © Stijn Bollaert
Королевский музей изящных искусств в Антверпене – реконструкция Фото © Stijn Bollaert
Королевский музей изящных искусств в Антверпене – реконструкция
Фото © Stijn Bollaert
Королевский музей изящных искусств в Антверпене – реконструкция Фото © Stijn Bollaert
Королевский музей изящных искусств в Антверпене – реконструкция
Фото © Stijn Bollaert
Королевский музей изящных искусств в Антверпене – реконструкция Фото © Stijn Bollaert
Королевский музей изящных искусств в Антверпене – реконструкция
Фото © Stijn Bollaert
Королевский музей изящных искусств в Антверпене – реконструкция Фото © Stijn Bollaert
Королевский музей изящных искусств в Антверпене – реконструкция
Фото © Stijn Bollaert
Королевский музей изящных искусств в Антверпене – реконструкция Фото © Stijn Bollaert
Королевский музей изящных искусств в Антверпене – реконструкция
Фото © Stijn Bollaert
Королевский музей изящных искусств в Антверпене – реконструкция
Королевский музей изящных искусств в Антверпене – реконструкция
Фото © Stijn Bollaert
Королевский музей изящных искусств в Антверпене – реконструкция
Королевский музей изящных искусств в Антверпене – реконструкция
Фото © Stijn Bollaert
Королевский музей изящных искусств в Антверпене – реконструкция
Королевский музей изящных искусств в Антверпене – реконструкция
Фото © Stijn Bollaert
Королевский музей изящных искусств в Антверпене – реконструкция
Королевский музей изящных искусств в Антверпене – реконструкция
Фото © Stijn Bollaert
Королевский музей изящных искусств в Антверпене – реконструкция
Королевский музей изящных искусств в Антверпене – реконструкция
Фото © Stijn Bollaert
Королевский музей изящных искусств в Антверпене – реконструкция
Королевский музей изящных искусств в Антверпене – реконструкция
Фото © Sebastian van Damme
Королевский музей изящных искусств в Антверпене – реконструкция Фото © Karin Borghouts
Королевский музей изящных искусств в Антверпене – реконструкция
Фото © Karin Borghouts
Королевский музей изящных искусств в Антверпене – реконструкция Фото © Karin Borghouts
Королевский музей изящных искусств в Антверпене – реконструкция
Фото © Karin Borghouts
Королевский музей изящных искусств в Антверпене – реконструкция Фото © Karin Borghouts
Королевский музей изящных искусств в Антверпене – реконструкция
Фото © Karin Borghouts
Королевский музей изящных искусств в Антверпене – реконструкция Фото © Karin Borghouts
Королевский музей изящных искусств в Антверпене – реконструкция
Фото © Karin Borghouts
Королевский музей изящных искусств в Антверпене – реконструкция
Королевский музей изящных искусств в Антверпене – реконструкция
Фото © Mediamixer
Королевский музей изящных искусств в Антверпене – реконструкция
Королевский музей изящных искусств в Антверпене – реконструкция
Фото © KAAN Architecten
Королевский музей изящных искусств в Антверпене – реконструкция
Королевский музей изящных искусств в Антверпене – реконструкция
Фото © KAAN Architecten
Королевский музей изящных искусств в Антверпене – реконструкция
Королевский музей изящных искусств в Антверпене – реконструкция
Фото © KAAN Architecten
Королевский музей изящных искусств в Антверпене – реконструкция
Королевский музей изящных искусств в Антверпене – реконструкция
Фото © KAAN Architecten
Королевский музей изящных искусств в Антверпене – реконструкция
Королевский музей изящных искусств в Антверпене – реконструкция
Фото © KAAN Architecten
Королевский музей изящных искусств в Антверпене – реконструкция
Королевский музей изящных искусств в Антверпене – реконструкция
Фото © KAAN Architecten
Королевский музей изящных искусств в Антверпене – реконструкция
Королевский музей изящных искусств в Антверпене – реконструкция
Фото © KAAN Architecten
Королевский музей изящных искусств в Антверпене – реконструкция
Королевский музей изящных искусств в Антверпене – реконструкция
Фото © KAAN Architecten
Королевский музей изящных искусств в Антверпене – реконструкция
Королевский музей изящных искусств в Антверпене – реконструкция
Фото © KAAN Architecten
Королевский музей изящных искусств в Антверпене – реконструкция
Королевский музей изящных искусств в Антверпене – реконструкция
Фото © KAAN Architecten
Королевский музей изящных искусств в Антверпене – реконструкция
Королевский музей изящных искусств в Антверпене – реконструкция
Фото © KAAN Architecten
Королевский музей изящных искусств в Антверпене – реконструкция
Королевский музей изящных искусств в Антверпене – реконструкция
Фото © KAAN Architecten
Королевский музей изящных искусств в Антверпене – реконструкция
Королевский музей изящных искусств в Антверпене – реконструкция
Фото © KAAN Architecten
Королевский музей изящных искусств в Антверпене – реконструкция
Королевский музей изящных искусств в Антверпене – реконструкция
Фото © KAAN Architecten
Королевский музей изящных искусств в Антверпене – реконструкция
Королевский музей изящных искусств в Антверпене – реконструкция
Фото © KAAN Architecten
Королевский музей изящных искусств в Антверпене – реконструкция
Королевский музей изящных искусств в Антверпене – реконструкция
Фото © KAAN Architecten
Королевский музей изящных искусств в Антверпене – реконструкция
Королевский музей изящных искусств в Антверпене – реконструкция
Фото © KAAN Architecten
Королевский музей изящных искусств в Антверпене – реконструкция
Королевский музей изящных искусств в Антверпене – реконструкция
Фото © KAAN Architecten
Королевский музей изящных искусств в Антверпене – реконструкция
Королевский музей изящных искусств в Антверпене – реконструкция
Фото © KAAN Architecten
Королевский музей изящных искусств в Антверпене – реконструкция
Королевский музей изящных искусств в Антверпене – реконструкция
Фото © KAAN Architecten