Размещено на портале Архи.ру (www.archi.ru)

01.03.2021

В контексте исторического ландшафта

Объект:
Подстанция в Иматре
Адрес:
Финляндия, None, Иматра.
Мастерская:
Kivinen Rusanen Architects
Авторский коллектив:
Главный архитектор проекта: Tuomas Kivinen
Команда проекта: Anna Blomqvist, Maria Karjalainen

Новая подстанция по проекту Virkkunen & Co в Иматре на востоке Финляндии учитывает как природный контекст знаменитого водоската, так и соседство исторической ГЭС.

Описание предоставлено архитекторами

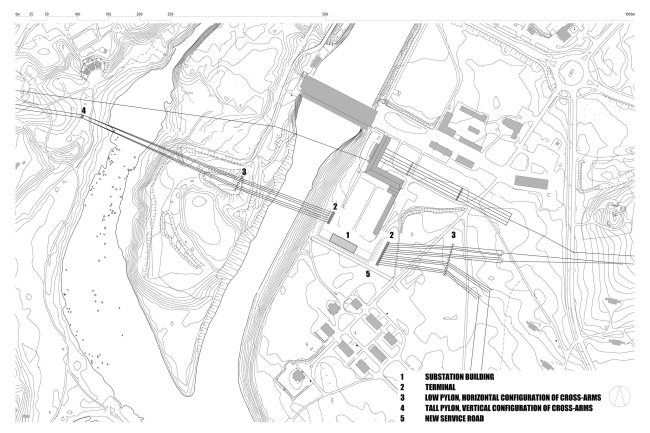
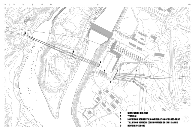
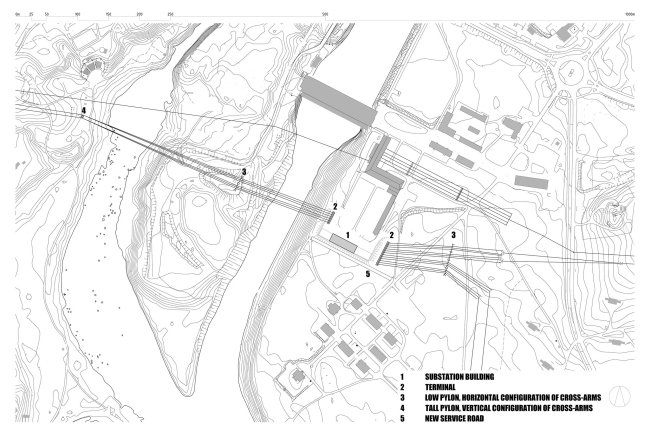
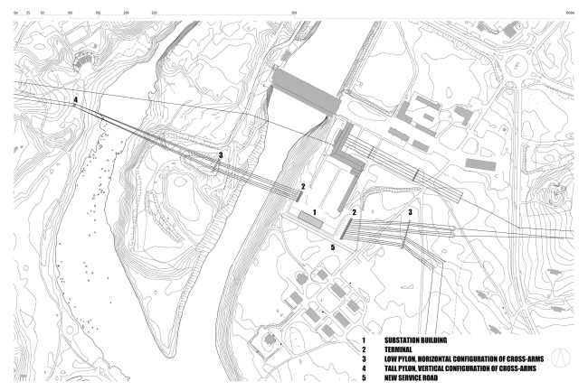
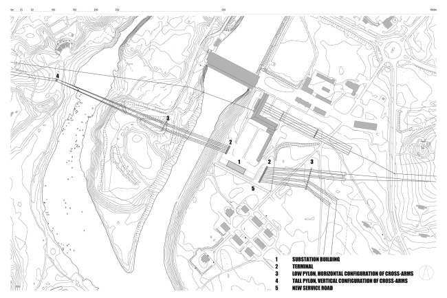
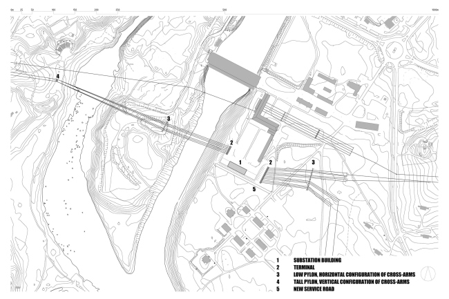
Проект Virkkunen & Co состоит из здания электроподстанции и серии «пейзажных» опор ЛЭП, включая концевые. Они расположены внутри и вокруг «национального ландшафта» водоската Иматранкоски в Восточной Финляндии. Комплекс находится рядом с построенной в 1920-е годы в Иматре ГЭС – начальной точкой главной энергосистемы Финляндии. Именно из-за исторического значения этой территории заказчик, Fingrid Oyj, поставил своей целью построить выдающееся здание подстанции.

Подстанция в Иматре
Подстанция в Иматре
Фото © Tuomas Kivinen

Главная техническая цель проекта – замена старого распределительного устройства с воздушной изоляцией на современное, с газовой изоляцией, помещенное в новом здании. Несколько старых опор ЛЭП к востоку и к западу от будущей подстанции были заменены также на новые, спроектированные Virkkunen & Co. Благодаря демонтажу старого распределительного устройства, между подстанцией и существующими корпусами возникло открытое пространство: этот двор подходит для нового строительства.
Подстанция в Иматре
Подстанция в Иматре
Фото © Tuomas Kivinen

Проект охватывает два притока реки Иматранкоски. Новые сооружения спроектированы так, чтобы находиться в гармонии с окружающей застроенной и природной средой. Кроме одной высокой опоры, новые опоры ЛЭП ниже верхушек окружающих деревьев. По тому же принципу, нижний этаж подстанции помещен под землю, чтобы здание не было выше ближайшей к нему части старой электростанции.
Подстанция в Иматре
Подстанция в Иматре
Фото © Tuomas Kivinen

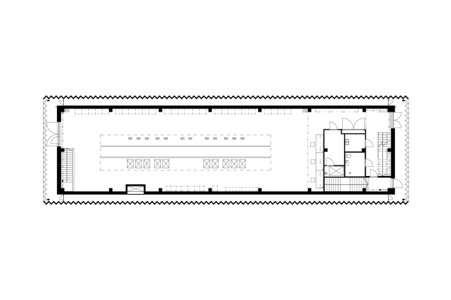
У подстанции бетонный каркас и двойные фасады. Их внешний слой состоит из длинного кирпича ручной работы, выложенного зигзагообразно: этот мотив связывает фасады с треугольными стальными профилями новых опор ЛЭП. Выбор материала основан на прекрасной кирпичной облицовке исторического здания ГЭС. Верх кирпичной стены подстанции состоит из проницаемого решетчатого узора, который пропускает свет и воздух.
Подстанция в Иматре
Подстанция в Иматре
Фото © Tuomas Kivinen

Внутренний слой фасада возведен из монолитного бетона и сборных бетонных деталей; он прорезан поверху непрерывной полосой остекления, видной за кирпичной решеткой. Дополнительный стальной каркас, поддерживающий кирпичные стены, закреплен на бетонных фасадах.
Подстанция в Иматре
Подстанция в Иматре
Фото © Tuomas Kivinen

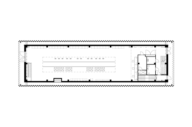
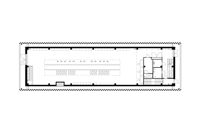
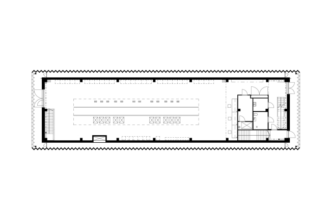
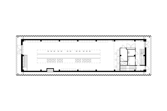
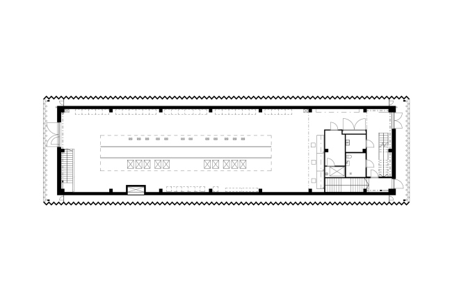
Внутри здания двухсветный вестибюль обеспечивает доступ в главное помещение через низкий коридор. Лестницы в машинное отделение и в подвал начинаются там же. Главное помещение и вестибюль обеспечены естественным освещением через «клеристорий», сквозь который видна ажурная кирпичная кладка.
Подстанция в Иматре
Подстанция в Иматре
Фото © Max Plunger

Интерьер определен конструктивной логикой, детальностью и материальностью сборных бетонных частей. В некотором смысле, тектонический характер подстанции – результат эволюции исторической гидроэлектростанции. У ее корпусов тоже каркасы из железобетона и облицовка фасадов из кирпича.
Подстанция в Иматре
Подстанция в Иматре
Фото © Tuomas Kivinen

В рамках проекта разработаны три типа опор линии электропередач. Высокая опора с расположенными друг над другом поперечными балками,две низких опоры с горизонтальной конфигурацией поперечных балок и две концевые опоры, где воздушные линии переходят в подземные кабели. Эти конструкции из треугольных стальных профилей, архитектурные и пространственные по своей форме, составляют повторяющиеся мотивы. Все они похожи друг на друга по форме и конструктивным принципам, хотя и различаются по функции.
Подстанция в Иматре Фото © Tuomas Kivinen
Подстанция в Иматре
Фото © Tuomas Kivinen
Подстанция в Иматре Фото © Max Plunger
Подстанция в Иматре
Фото © Max Plunger
Подстанция в Иматре Фото © Tuomas Kivinen
Подстанция в Иматре
Фото © Tuomas Kivinen
Подстанция в Иматре Фото © Tuomas Kivinen
Подстанция в Иматре
Фото © Tuomas Kivinen

Помимо расположения новых линий электропередач, на выбор участка для подстанции и ее конфигурации в первую очередь повлияли масштаб и местоположение корпусов ГЭС. Подстанция и одна из концевых опор построены на насыпной части территории, которая была создана при строительстве исторической электростанции. Склоны этой «возвышенности» теперь озеленены растениями, которые естественно сочетаются с окружающим лесом.
Подстанция в Иматре
Подстанция в Иматре
Фото © Tuomas Kivinen

Новый служебный проезд по юго-западной границе участка соединяет существующую и планируемую дороги, а также лесные тропинки.
Подстанция в Иматре
Подстанция в Иматре
Фото © Tuomas Kivinen

Проект деконструирует аспекты существующей застроенной среды и собирает их в новую абстрактную форму. Тяжелые неоклассические фасады ГЭС из красного кирпича систематически прорезаны дверными и оконными проемами: это вдохновило авторов нового проекта, поэтому ритм также играет главную роль на фасадах подстанции и в композиции опор ЛЭП. Для них выбрана монохромная гамма, которая напоминает сохраненные старые решетчатые опоры ЛЭП из окрашенной в светло-серый цвет стали. «Производный» формальный язык придает новому проекту цельную идентичность и помогает вписать его в контекст.
Подстанция в Иматре
Подстанция в Иматре
Фото © Max Plunger
Подстанция в Иматре
Подстанция в Иматре
Фото © Max Plunger
Подстанция в Иматре
Подстанция в Иматре
Фото © Tuomas Kivinen
Подстанция в Иматре
Подстанция в Иматре
Фото © Tuomas Kivinen
Подстанция в Иматре Фото © Tuomas Kivinen
Подстанция в Иматре
Фото © Tuomas Kivinen
Подстанция в Иматре Фото © Max Plunger
Подстанция в Иматре
Фото © Max Plunger
Подстанция в Иматре Фото © Tuomas Kivinen
Подстанция в Иматре
Фото © Tuomas Kivinen
Подстанция в Иматре Фото © Tuomas Kivinen
Подстанция в Иматре
Фото © Tuomas Kivinen
Подстанция в Иматре Фото © Tuomas Kivinen
Подстанция в Иматре
Фото © Tuomas Kivinen
Подстанция в Иматре
Подстанция в Иматре
© Virkkunen & Co Architects
Подстанция в Иматре
Подстанция в Иматре
© Virkkunen & Co Architects
Подстанция в Иматре
Подстанция в Иматре
© Virkkunen & Co Architects
Подстанция в Иматре
Подстанция в Иматре
© Virkkunen & Co Architects
Подстанция в Иматре
Подстанция в Иматре
© Virkkunen & Co Architects
Подстанция в Иматре
Подстанция в Иматре
© Virkkunen & Co Architects
Подстанция в Иматре
Подстанция в Иматре
© Virkkunen & Co Architects
Подстанция в Иматре
Подстанция в Иматре
© Virkkunen & Co Architects