Размещено на портале Архи.ру (www.archi.ru)

24.02.2021

Медная крыша

Нина Фролова
Объект:
Международная школа Berlin Metropolitan School
Адрес:
Германия, None, Берлин.
Мастерская:
Sauerbruch Hutton

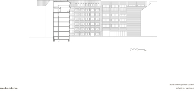
Архитекторы Sauerbruch Hutton надстроили панельное школьное здание времен ГДР в Берлине деревянной «мансардой» с медной обшивкой.

Заказчику, международной Berlin Metropolitan School в берлинском районе Митте, перестало хватать места в типовом школьном здании 1987 года постройки (Schulbaureihe 80 – SBR 80, тип Erfurt): помимо прочего, было необходимым разместить там старшие классы, которых раньше в BMS не было.

Международная школа Berlin Metropolitan School
Международная школа Berlin Metropolitan School
Фото © Jan Bitter

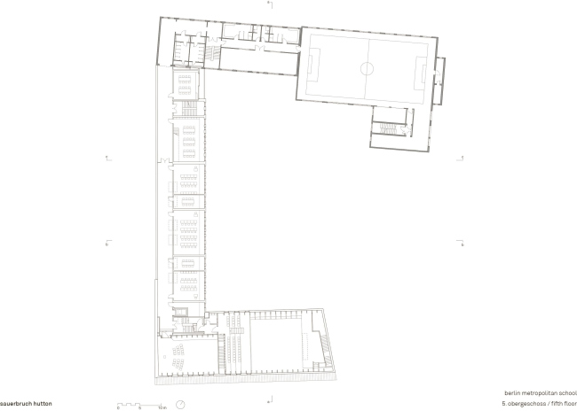
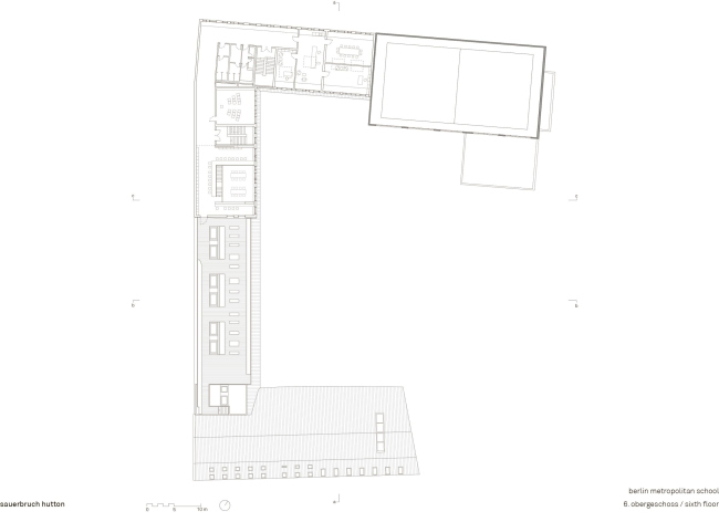
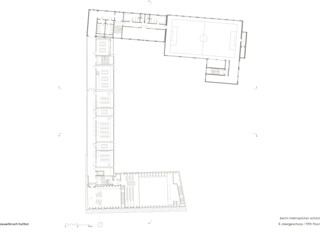
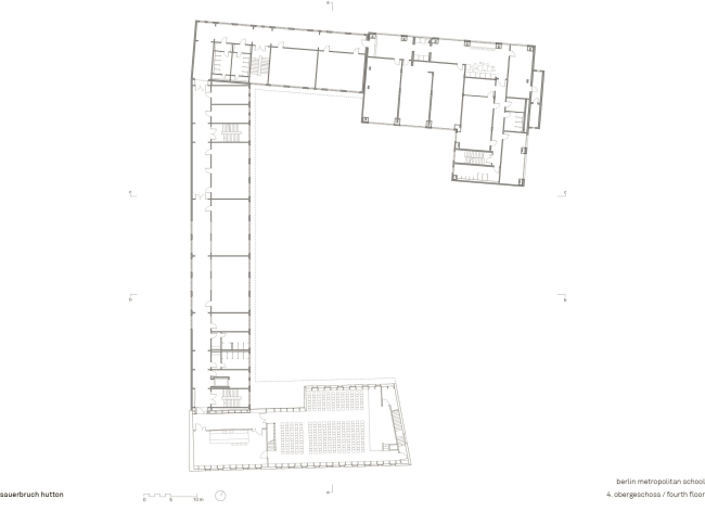
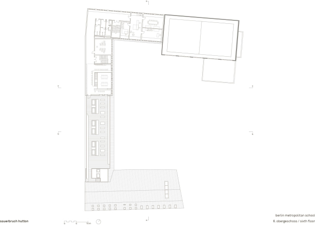
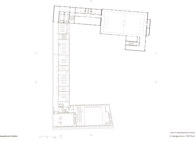
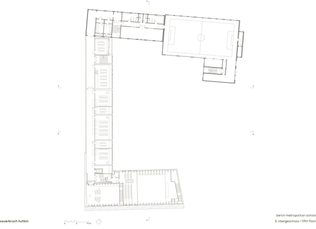
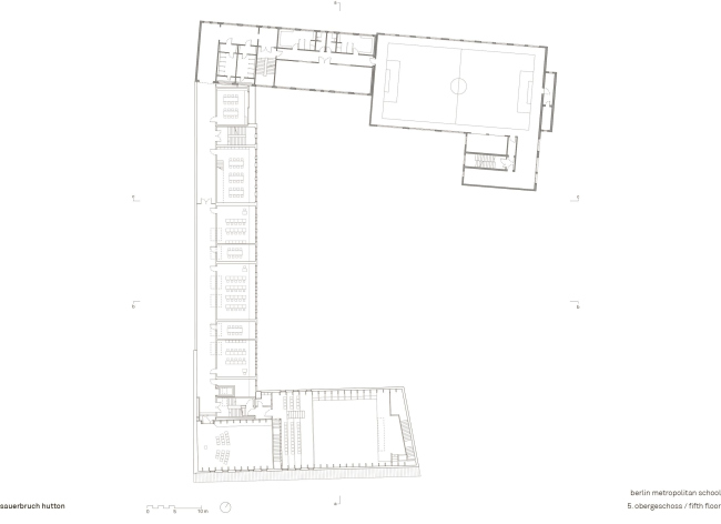
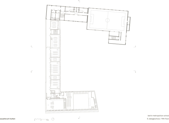
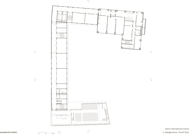
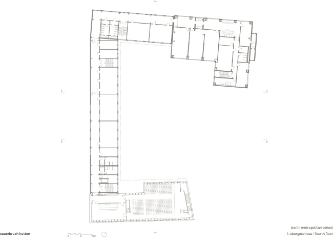
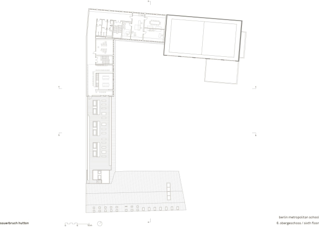
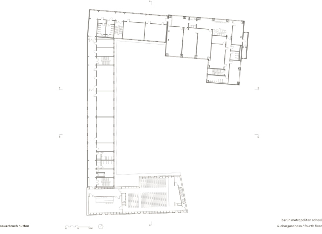
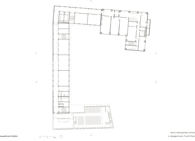
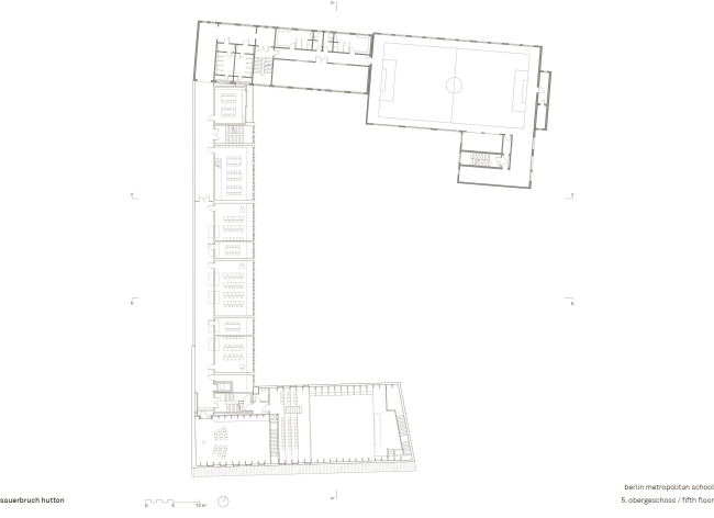
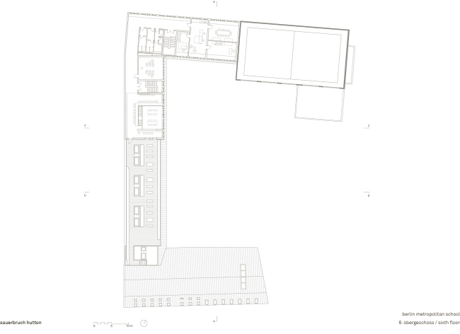
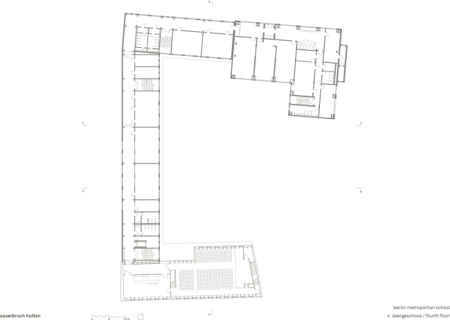
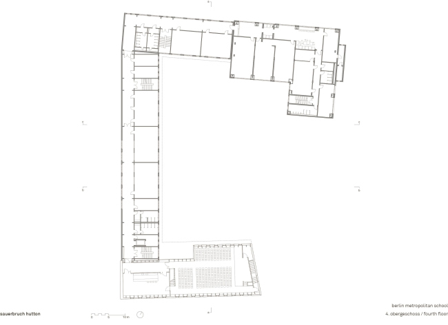
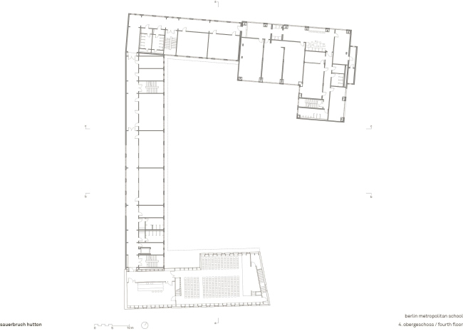
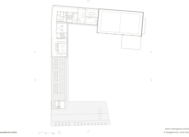
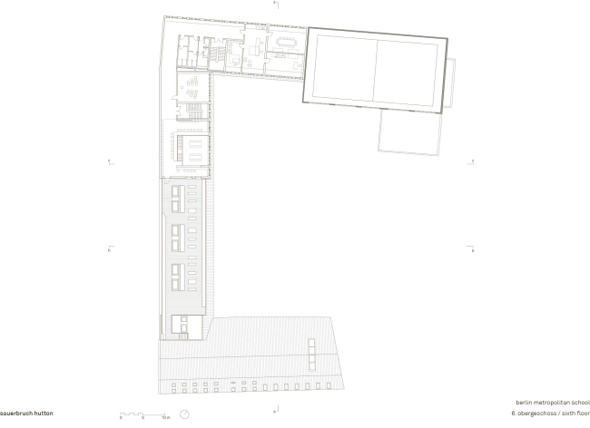
Квадрат школы с двором в центре расположен в районе плотной застройки, поэтому естественным вариантом расширения был «рост» здания. Архитекторы надстроили три из четырех корпусов, а также добавили небольшое новое крыло во всю высоту панельного сооружения. В функциональной программе – классы, в том числе для занятий музыкой, библиотека, офисы администрации и актовый зал.
Международная школа Berlin Metropolitan School
Международная школа Berlin Metropolitan School
Фото © Jan Bitter

Реализация проекта, который был задуман еще в 2014, шла поэтапно, чтобы не мешать учебному процессу – в соответствии с растущей потребностью в новых площадях. Чтобы упростить процесс строительства, была выбрана сборная деревянная конструкция, что также позволило – благодаря ее небольшому весу – не усиливать каркас или фундамент панельного здания.
Международная школа Berlin Metropolitan School
Международная школа Berlin Metropolitan School
Фото © Jan Bitter

Дерево в интерьере создает комфортную визуально и на ощупь среду для учеников и учителей, а медь снаружи хорошо сочетается с керамическим покрытием фасадных панелей.
Международная школа Berlin Metropolitan School
Международная школа Berlin Metropolitan School
Фото © Jan Bitter
Международная школа Berlin Metropolitan School
Международная школа Berlin Metropolitan School
Фото © Jan Bitter
Международная школа Berlin Metropolitan School
Международная школа Berlin Metropolitan School
Фото © Jan Bitter
Международная школа Berlin Metropolitan School
Международная школа Berlin Metropolitan School
Фото © Jan Bitter
Международная школа Berlin Metropolitan School
Международная школа Berlin Metropolitan School
Фото © Jan Bitter
Международная школа Berlin Metropolitan School
Международная школа Berlin Metropolitan School
Фото © Jan Bitter
Международная школа Berlin Metropolitan School
Международная школа Berlin Metropolitan School
Фото © Jan Bitter
Международная школа Berlin Metropolitan School
Международная школа Berlin Metropolitan School
© Sauerbruch Hutton
Международная школа Berlin Metropolitan School
Международная школа Berlin Metropolitan School
© Sauerbruch Hutton
Международная школа Berlin Metropolitan School
Международная школа Berlin Metropolitan School
© Sauerbruch Hutton
Международная школа Berlin Metropolitan School
Международная школа Berlin Metropolitan School
© Sauerbruch Hutton
Международная школа Berlin Metropolitan School
Международная школа Berlin Metropolitan School
© Sauerbruch Hutton
Международная школа Berlin Metropolitan School
Международная школа Berlin Metropolitan School
© Sauerbruch Hutton
Международная школа Berlin Metropolitan School
Международная школа Berlin Metropolitan School
© Sauerbruch Hutton
Международная школа Berlin Metropolitan School
Международная школа Berlin Metropolitan School
© Sauerbruch Hutton
Международная школа Berlin Metropolitan School
Международная школа Berlin Metropolitan School
© Sauerbruch Hutton
Международная школа Berlin Metropolitan School
Международная школа Berlin Metropolitan School
© Sauerbruch Hutton