Размещено на портале Архи.ру (www.archi.ru)

05.03.2021

GRAPHISOFT Basecamp: Как прошел бесплатный курс для лучших студентов со всего мира?

Ежегодно лучшие студенты со всего мира принимают участие в GRAPHISOFT Basecamp. В процессе интенсива они получают еще больше практических навыков и помощь в старте собственной карьеры.

Мы уже рассказывали, что Basecamp – это курс из пяти модулей, который длится 5 недель и в течение курса всем участникам необходимо выполнять как групповые, так и индивидуальные задания.

Но ведь намного интереснее обратиться непосредственно к участникам! Мы воспользовались случаем и попросили их рассказать о своих впечатлениях. Несмотря на то, что они прошли одну и ту же учебную программу, рассказы получились совершенно разными, но каждый по-своему вдохновляющий!

Полина Бовтрукевич
Полина Бовтрукевич
Фотография предоставлена компанией Graphisoft
Полина Бовтрукевич
  • 21 год, БрГТУ, 5 курс, Беларусь
  • Изучает Archicad 4 года,
  • Использует приложения: Archicad, Rhino + Grasshopper, 3Ds max, Adobe InDesign и Photoshop.

Если говорить про опыт обучения на курсе Basecamp, то было необычно и даже немного страшно поначалу. Беспокоило прежде всего то, что вдруг не буду что-то понимать в силу языкового барьера, и важная информация пройдет мимо меня. Переживала за судьбу взаимоотношений с ребятами, вдруг они не сложатся? Наверное, дело в том, что я часто себя недооцениваю. Хочу вас успокоить, весь мандраж улетучился после первого часа общения с командой!

В ходе интенсива мы постоянно “зарабатывали” баллы за наши успехи. Расскажу про это поподробнее и про то, как проходила групповая и индивидуальная работа.

Занятия были 2-3 раза в неделю, но по факту мы почти каждый день созванивались с ребятами по команде. Один такой звонок в целом занимал 4-5 часов.Мы общались по работе и просто так. Это очень сильно нас сплотило. Два мексиканца, одна итальянка и я из Беларуси стали одной большой очень дружной командой. Нам всем было около 22-25 лет, я и Алина из России были самыми молодыми участниками.

Все вместе мы работали над моделью, вдохновленной одним из шедевром архитектуры. В нашем случае, вдохновением послужил Оскар Нимейер.
В процессе работы нас постоянно хвалили и подбадривали наши менторы!

Напоминаем, что работали ребята в одном файле благодаря функции “Teamwork”. Совместный доступ к проекту доступен всем пользователям Archicad, в том числе, эта возможность есть и в учебной версии программы.

Узнать больше о Teamwork https://graphisoft.com/ru/press-releases/tw-step-by-step

Ознакомиться с подробной инструкцией “Как получить учебную версию Archicad 24 бесплатно?” https://vk.com/@Archicad_club-1-kak-poluchit-uchebnuu-versiu-Archicad-21-besplatno


Презентовали проект мы также в онлайн-режиме. Защищали его два наших парня из Мексики, остальная женская часть команды слишком эмоциональна для этого:) Мы были на подхвате. Дружная командная работа, теплые слова менторов – это очень прибавляло сил, таким образом, мы заработали целых 116 баллов при максимуме 120! Мы показали самый высокий результат из всех.
Basecamp 2020 Team 4 (Polina, Victor, Diego, Erika) Фотография предоставлена компанией Graphisoft
Basecamp 2020 Team 4 (Polina, Victor, Diego, Erika)
Фотография предоставлена компанией Graphisoft
Basecamp 2020 Team 4 (Polina, Victor, Diego, Erika) Фотография предоставлена компанией Graphisoft
Basecamp 2020 Team 4 (Polina, Victor, Diego, Erika)
Фотография предоставлена компанией Graphisoft
Basecamp 2020 Team 4 (Polina, Victor, Diego, Erika) Фотография предоставлена компанией Graphisoft
Basecamp 2020 Team 4 (Polina, Victor, Diego, Erika)
Фотография предоставлена компанией Graphisoft
Basecamp 2020 Team 4 (Polina, Victor, Diego, Erika) Фотография предоставлена компанией Graphisoft
Basecamp 2020 Team 4 (Polina, Victor, Diego, Erika)
Фотография предоставлена компанией Graphisoft
Basecamp 2020 Team 4 (Polina, Victor, Diego, Erika) Фотография предоставлена компанией Graphisoft
Basecamp 2020 Team 4 (Polina, Victor, Diego, Erika)
Фотография предоставлена компанией Graphisoft
Basecamp 2020 Team 4 (Polina, Victor, Diego, Erika) Фотография предоставлена компанией Graphisoft
Basecamp 2020 Team 4 (Polina, Victor, Diego, Erika)
Фотография предоставлена компанией Graphisoft
Basecamp 2020 Team 4 (Polina, Victor, Diego, Erika) Фотография предоставлена компанией Graphisoft
Basecamp 2020 Team 4 (Polina, Victor, Diego, Erika)
Фотография предоставлена компанией Graphisoft

Параллельно каждый работал над павильоном. Он должен был также отражать эстетику Оскара Нимейера, максимально за это задание можно было получить 60 баллов.
GRAPHISOFT Pavilion BaseCamp 2020, осень 2020 г. Archicad, Twinmotion Фотография предоставлена компанией Graphisoft
GRAPHISOFT Pavilion BaseCamp 2020, осень 2020 г. Archicad, Twinmotion
Фотография предоставлена компанией Graphisoft
GRAPHISOFT Pavilion BaseCamp 2020, осень 2020 г. Archicad, Twinmotion Фотография предоставлена компанией Graphisoft
GRAPHISOFT Pavilion BaseCamp 2020, осень 2020 г. Archicad, Twinmotion
Фотография предоставлена компанией Graphisoft
GRAPHISOFT Pavilion BaseCamp 2020, осень 2020 г. Archicad, Twinmotion Фотография предоставлена компанией Graphisoft
GRAPHISOFT Pavilion BaseCamp 2020, осень 2020 г. Archicad, Twinmotion
Фотография предоставлена компанией Graphisoft
GRAPHISOFT Pavilion BaseCamp 2020, осень 2020 г. Archicad, Twinmotion Фотография предоставлена компанией Graphisoft
GRAPHISOFT Pavilion BaseCamp 2020, осень 2020 г. Archicad, Twinmotion
Фотография предоставлена компанией Graphisoft
GRAPHISOFT Pavilion BaseCamp 2020, осень 2020 г. Archicad, Twinmotion Фотография предоставлена компанией Graphisoft
GRAPHISOFT Pavilion BaseCamp 2020, осень 2020 г. Archicad, Twinmotion
Фотография предоставлена компанией Graphisoft
GRAPHISOFT Pavilion BaseCamp 2020, осень 2020 г. Archicad, Twinmotion Фотография предоставлена компанией Graphisoft
GRAPHISOFT Pavilion BaseCamp 2020, осень 2020 г. Archicad, Twinmotion
Фотография предоставлена компанией Graphisoft
GRAPHISOFT Pavilion BaseCamp 2020, осень 2020 г. Archicad, Twinmotion Фотография предоставлена компанией Graphisoft
GRAPHISOFT Pavilion BaseCamp 2020, осень 2020 г. Archicad, Twinmotion
Фотография предоставлена компанией Graphisoft

Кроме того, после каждой практики были тесты. Максимально за прохождение мы получали 12 баллов. При этом последний вопрос в тесте всегда требовал большого развернутого ответа. Например, после одной из практик нужно было ответить на вопрос: «Что для Вас значит BIM?»

А потом началась самая приятная часть!
После всего этого мы считали свои очки, и выбирали, что мы хотим за них “купить” из специального каталога. Мне хватило на все физические вещи: теперь у меня есть футболка Basecamp, скетчбук, книга про создание компании, масштабная линейка и карандаш-пушка с логотипом GRAPHISOFT!
Также можно было купить полезные pdf-ки и курсы на портале GRAPHISOFT Learn.

Как думаете, что было самым трудным в том, чтобы эти вещи появились у меня? Может быть набор баллов и командная работа со студентами со всего мира? Может быть преодоление трудностей? Нет, самым сложным этапом была доставка этого всего в Беларусь. Так уж получилось, что в мою страну сейчас очень непросто приходят посылки из-за рубежа. Но нам обещали одно: посылки будут до Нового года у всех, и это обещание сдержали: посылка мне пришла 31-ого декабря!

В Basecamp было очень много того, о чем я не знала и о чем слышала в первый раз! Например, способ конвертации dwg-файла в объект. Таким образом, его видно и в 3D-окне, что очень упростило мне жизнь. Особенно помогает в градостроительных проектах. И еще мне понравилось работать с облаком точек! Да, конечно, не всегда его можно получить в реальной практике, но опыт очень важный и интересный!

На протяжении всего пути я была максимально прилежной студенткой: мне важно все зафиксировать. Каждое слово преподавателей было занесено в конспект. Все видео, которые присылали, были пересмотрены по несколько раз: это несомненный плюс дистанционного обучения, которое выпало студентам в этом году.

Если вы сейчас боитесь сделать шаг в сторону Basecamp, то призываю вас не бояться. Нет, я вас понимаю, мне самой было очень страшно, я не буду врать. Но большего всего меня мотивировали новые знания по Archicad и то, что я хочу общаться на английском! Дерзайте, и тоже пройдете этот курс!

Модель BIMx Полины Бовтрукевич 
Алина Криц
Алина Криц
Фотография предоставлена компанией Graphisoft

Алина Криц
  • 21 год, МГСУ, 4 курс, Россия
  • Изучает Archicad 4 года
  • Использует приложения: Archicad, Twinmotion, 3DsMax

На этот интенсив я прошла, как и большая часть участников Basecamp – через международный конкурс BIM PROJECT. О нем я впервые узнала от своей подруги. Потом, честно говоря, я закрутилась в ежедневных делах. О конкурсе я вспомнила за пару дней до дедлайна приема работ!

Ну в целом, у BIM PROJECT «удобные» номинации, поэтому я просто окинула взглядом все свои работы и поняла, что мне нужно срочно доделывать свою последнюю курсовую, чтобы отправить ее на конкурс.
Мне невероятно «повезло»: на тот период у меня начались каникулы, мы с подругами прилетели в Сочи. При этом день нашего прибытия совпал с последним днем приема работ на конкурс. И как вы думаете, я побежала загорать и плескаться? Конечно, нет, я начала борьбу с интернетом, потому что у меня не отправлялась моя работа.Когда мои подруги звали меня пойти на пляж, я сказала им: «Просто бросьте меня и идите!».
Party Pavilion for BaseCamp 2020, осень 2020 г. Archicad Фотография предоставлена компанией Graphisoft
Party Pavilion for BaseCamp 2020, осень 2020 г. Archicad
Фотография предоставлена компанией Graphisoft
Party Pavilion for BaseCamp 2020, осень 2020 г. Archicad Фотография предоставлена компанией Graphisoft
Party Pavilion for BaseCamp 2020, осень 2020 г. Archicad
Фотография предоставлена компанией Graphisoft
Party Pavilion for BaseCamp 2020, осень 2020 г. Archicad Фотография предоставлена компанией Graphisoft
Party Pavilion for BaseCamp 2020, осень 2020 г. Archicad
Фотография предоставлена компанией Graphisoft

О том, что я заняла третье место узнала, всё еще находясь в Сочи. Был ступор, шок и полное неприятие происходящего! Потом эйфория! Потому что, честно говоря, на конкурс были заявлены такие классные и серьезные проекты, что я была бы рада даже сертификату участника.

Я думаю, что значительную роль сыграл тот фактор, что я очень трепетно отношусь к своим проектам. Мне хочется довести их до идеального состояния. Пока я не почувствую, что замысел полностью отражен в подаче – не успокоюсь!
Многоквартирный жилой дом с элементами вертикального озеленения, лето 2020 год. Archicad, Twinmotion, Photoshop
Многоквартирный жилой дом с элементами вертикального озеленения, лето 2020 год. Archicad, Twinmotion, Photoshop
Фотография предоставлена компанией Graphisoft

И вот в тот момент, когда я доделывала последние два листа до идеала, мне было неважно море и красивый сочинский закат, меня волновал только проект.

При этом этот опыт для меня очень важен. Я не про героический отказ от пляжа, я вообще в целом про то, что конкурсы – важная часть профессии архитектора. И чем раньше ты начнёшь привыкать к участию в конкурсах, тем лучше! Уже будешь меньше беспокоиться, научишься рассчитывать свои силы, чтобы успеть до дедлайна, в следующий раз постаравшись не забыть о нем.

Нашу задачу на Basecamp можно разделить на два направления: групповое и индивидуальное. Задача группового проекта была повторить в Archicad какой-то уже существующий шедевр архитектурной мысли. Нашей команде досталась Жилая Единица Ле Корбюзье. Я думала, что я сойду с ума от одного количества окон, но в нашей команде нашлись мастера связки Archicad Grasshopper Live Connection, и не дали мне пасть духом!

Хотите также не бояться бесчисленного количества окон, а уметь все параметризировать и буквально “программировать” архитектуру? Начните тоже применять связку Archicad Grasshopper-Live Connection! Вебинар и наглядное применение связки от Александра Анищенко https://graphisoft.com/ru/events/gh-ac-connection-webinar
Мост для наблюдения миграции птиц, осень 2018, выполнено до обучения в Basecamp. Archicad, Photoshop
Мост для наблюдения миграции птиц, осень 2018, выполнено до обучения в Basecamp. Archicad, Photoshop
Фотография предоставлена компанией Graphisoft

Вообще у нас была сильная команда: Тиффани из Бразилии, она почти уже закончила институт, уже работала архитектором на тот момент. Брендон из Мексики, у него своя школа по изучению Grasshopperа. И Лоренс из Германии, с ним мы разделили участь моделирования связей для модели.

Я не была самой опытной из нашей команды, но я старалась как могла. Очень помогало обучение, которое проходило параллельно, там поднимали темы, которые были необходимы в данный момент. И еще большое спасибо нашим менторам, которые подсказывали и всегда приходили на помощь!

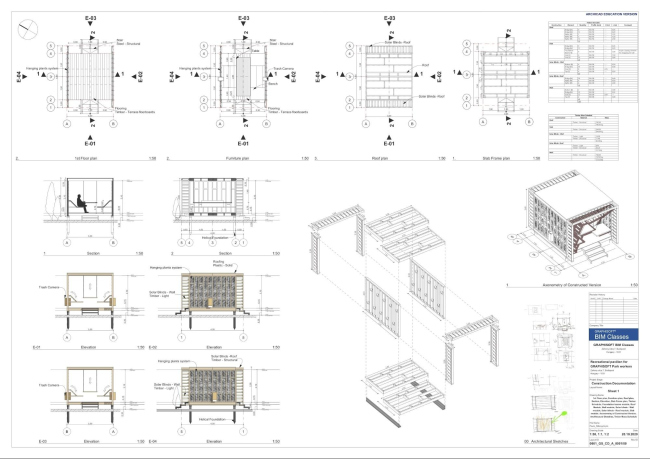
Индивидуальное задание состояло в том, чтобы спроектировать павильон. Конечно, корректная BIM-модель – обязательное условие!
Важное достижение, которого я достигла в этой работе, первый раз сделала подачу только в Archicad!
Basecamp 2020 Team 1 (Tiffany, Alina, Brandon, Lorenz)
Basecamp 2020 Team 1 (Tiffany, Alina, Brandon, Lorenz)
Фотография предоставлена компанией Graphisoft

Когда я села за проект после Basecamp, то почувствовала, что у меня изменился подход! Я сразу настроила себе рабочее пространство, подготовила в файле всё для работы. И стало намного легче! Ведь теперь я узнала, как делать красивые подачи в Archicad, поэтому я не перескакивала постоянно с одной программы в другую. Сделала проект большего объема за меньший срок! Правильная работа со всеми инструментами – это +150% к быстрой работе!

Больше всего я счастлива, что теперь знаю хитрый метод работы со связанными модулями. Это дар свыше! А что если бы я не прошла Basecamp и не узнала бы об этом? Моя жизнь просто была бы прожита зря! Как еще сделать 25 этажей, чтобы не взорвался ноутбук?!
В целом, это большое открытие, которое сделало всю мою жизнь проще!

Узнать больше о связанных модулях, которые покорили Алину https://helpcenter.graphisoft.com/ru/user-guide/65489/

Если говорить о навыках, которые помогли выиграть, то в первую очередь, надо сказать, что учу я Archicad с первого курса. Параллельно изучала другие программы, но, честно говоря, в других BIM-приложениях мне не понравился интерфейс и вся система взаимодействия с программой. Мне сложно сказать объективно, потому что, может, к тому моменту я уже очень сильно привязалась к Archicad -у. Ещё я начинала изучать 3dsMax, но он, мне кажется, больше подходит для работы с интерьером. В SketchUp работает мой молодой человек, я подсматриваю вечерами, что он делает за компьютером. Но я осталась в недоумении: «Получается, нужно качать каждый плагин даже для элементарного скручивания или выдавливания?!»

Чем больше я узнавала Archicad, тем больше он мне нравился. Сейчас я уже получила сертификат профессионала, поэтому почему бы не доучиться до BIM-менеджера, чтобы знать программу идеально?
После Basecamp Алина успела принять участие в конкурсе с проектом AP2020-MC/BL: After Pandemic 2020- Multyfunctional Complex for Better Living (Многофункциональный жилой комплекс для лучшей жизни), осень 2020 г. Archicad, Photoshop Фотография предоставлена компанией Graphisoft
После Basecamp Алина успела принять участие в конкурсе с проектом AP2020-MC/BL: After Pandemic 2020- Multyfunctional Complex for Better Living (Многофункциональный жилой комплекс для лучшей жизни), осень 2020 г. Archicad, Photoshop
Фотография предоставлена компанией Graphisoft
После Basecamp Алина успела принять участие в конкурсе с проектом AP2020-MC/BL: After Pandemic 2020- Multyfunctional Complex for Better Living (Многофункциональный жилой комплекс для лучшей жизни), осень 2020 г. Archicad, Photoshop Фотография предоставлена компанией Graphisoft
После Basecamp Алина успела принять участие в конкурсе с проектом AP2020-MC/BL: After Pandemic 2020- Multyfunctional Complex for Better Living (Многофункциональный жилой комплекс для лучшей жизни), осень 2020 г. Archicad, Photoshop
Фотография предоставлена компанией Graphisoft
После Basecamp Алина успела принять участие в конкурсе с проектом AP2020-MC/BL: After Pandemic 2020- Multyfunctional Complex for Better Living (Многофункциональный жилой комплекс для лучшей жизни), осень 2020 г. Archicad, Photoshop Фотография предоставлена компанией Graphisoft
После Basecamp Алина успела принять участие в конкурсе с проектом AP2020-MC/BL: After Pandemic 2020- Multyfunctional Complex for Better Living (Многофункциональный жилой комплекс для лучшей жизни), осень 2020 г. Archicad, Photoshop
Фотография предоставлена компанией Graphisoft
После Basecamp Алина успела принять участие в конкурсе с проектом AP2020-MC/BL: After Pandemic 2020- Multyfunctional Complex for Better Living (Многофункциональный жилой комплекс для лучшей жизни), осень 2020 г. Archicad, Photoshop Фотография предоставлена компанией Graphisoft
После Basecamp Алина успела принять участие в конкурсе с проектом AP2020-MC/BL: After Pandemic 2020- Multyfunctional Complex for Better Living (Многофункциональный жилой комплекс для лучшей жизни), осень 2020 г. Archicad, Photoshop
Фотография предоставлена компанией Graphisoft
После Basecamp Алина успела принять участие в конкурсе с проектом AP2020-MC/BL: After Pandemic 2020- Multyfunctional Complex for Better Living (Многофункциональный жилой комплекс для лучшей жизни), осень 2020 г. Archicad, Photoshop Фотография предоставлена компанией Graphisoft
После Basecamp Алина успела принять участие в конкурсе с проектом AP2020-MC/BL: After Pandemic 2020- Multyfunctional Complex for Better Living (Многофункциональный жилой комплекс для лучшей жизни), осень 2020 г. Archicad, Photoshop
Фотография предоставлена компанией Graphisoft

Каков мой совет студентам, которые сомневаются в том отправлять ли свой проект на конкурс? Поменьше сомневаться и побольше делать! Когда я отправляла свой проект, я понимала, что это мой первый архитектурный конкурс. Для меня это было смелым шагом и все чего я ожидала – это сертификат об участии. Но на тот момент я уже была рада и гордилась собой за то, что преодолела себя! Всем удачи!
Павел Милевич
Павел Милевич
Фотография предоставлена компанией Graphisoft

Павел Милевич
  • 22 года, Национальный университет «Львовская политехника», 6 курс, Украина
  • Изучает Archicad 7 лет
  • Использует приложения: Archicad, Lumion, 3Ds max, SketchUp, Revit, Adobe Photoshop

Всех участников Basecamp условно разделили на 2 группы – Азия и Европа, согласно временным поясам. В первый день мы успешно созвонились и друг с другом познакомились, нас было много, около 40 человек! Каждый рассказал о себе, а после нас поделили на группы по 5 человек, плюс 2 куратора.
Construction Development – Modular Prefab Cafe Design, выполнено в Archicad до учебы в Basecamp Фотография предоставлена компанией Graphisoft
Construction Development – Modular Prefab Cafe Design, выполнено в Archicad до учебы в Basecamp
Фотография предоставлена компанией Graphisoft
Construction Development – Modular Prefab Cafe Design, выполнено в Archicad до учебы в Basecamp Фотография предоставлена компанией Graphisoft
Construction Development – Modular Prefab Cafe Design, выполнено в Archicad до учебы в Basecamp
Фотография предоставлена компанией Graphisoft
Construction Development – Modular Prefab Cafe Design, выполнено в Archicad до учебы в Basecamp Фотография предоставлена компанией Graphisoft
Construction Development – Modular Prefab Cafe Design, выполнено в Archicad до учебы в Basecamp
Фотография предоставлена компанией Graphisoft
Construction Development – Modular Prefab Cafe Design, выполнено в Archicad до учебы в Basecamp Фотография предоставлена компанией Graphisoft
Construction Development – Modular Prefab Cafe Design, выполнено в Archicad до учебы в Basecamp
Фотография предоставлена компанией Graphisoft
Construction Development – Modular Prefab Cafe Design, выполнено в Archicad до учебы в Basecamp Фотография предоставлена компанией Graphisoft
Construction Development – Modular Prefab Cafe Design, выполнено в Archicad до учебы в Basecamp
Фотография предоставлена компанией Graphisoft
Construction Development – Modular Prefab Cafe Design, выполнено в Archicad до учебы в Basecamp Фотография предоставлена компанией Graphisoft
Construction Development – Modular Prefab Cafe Design, выполнено в Archicad до учебы в Basecamp
Фотография предоставлена компанией Graphisoft

Честно сказать, тогда я еще довольно тяжело понимал английский на слух, поэтому в первые недели выбился из колеи. Кроме того, я был на шестом курсе, сессия началась раньше положенного. Обстоятельства были тяжелые, но я сдал экзамены. С тяжелой душой пишу в чате нашей группы, что был занят, отстал… А оказалось, что в такой ситуации были все участники нашей группы, это нас еще больше сплотило. У нас была самая неоднородная команда в смысле часовых поясов: двое из Бразилии, один из Италии и одна девушка из Испании. Поэтому в плане коммуникации и командной работы нам пришлось преодолеть много трудностей.
Chill-out Pavilion for Graphisoft BaseCamp 2020, осень 2020
Chill-out Pavilion for Graphisoft BaseCamp 2020, осень 2020
Фотография предоставлена компанией Graphisoft

В качестве командного задания мы выполняли модульное здание Кишо Куракавы – Накагин. Нужно было иметь совместный файл, разделить задачи между участниками, все вместе запроектировать, проверить модель на коллизии, подготовить документацию и BIMx презентацию.

Чтобы тоже уметь пользоваться BIMx как и Павел, предлагаем ознакомиться со всеми возможностями данного приложения, а также бесплатно загрузить его на планшет или телефон.

Модель BIMx Павла Милевича 

Мы изучили конструктивные особенности, распределили задачи и приступили к работе. Помню, утром просыпаешься, а там опять что-то новое в файле появилось. Я лично занимался тем, что сделал разбивку по осям, запроектировал два коммерческих этажа, проработал конструкцию модулей. Остальные расставили модули по всей модели, выполнили лестницы, моделировали специфические/индивидуальные элементы. И, самое главное, сделали потрясающую презентацию!
Commercial Architecture & Interior Design – Scientific Complex with Exhibition Centre – выполнено в Archicad до учебы в Basecamp Фотография предоставлена компанией Graphisoft
Commercial Architecture & Interior Design – Scientific Complex with Exhibition Centre – выполнено в Archicad до учебы в Basecamp
Фотография предоставлена компанией Graphisoft
Commercial Architecture & Interior Design – Scientific Complex with Exhibition Centre – выполнено в Archicad до учебы в Basecamp Фотография предоставлена компанией Graphisoft
Commercial Architecture & Interior Design – Scientific Complex with Exhibition Centre – выполнено в Archicad до учебы в Basecamp
Фотография предоставлена компанией Graphisoft
Commercial Architecture & Interior Design – Scientific Complex with Exhibition Centre – выполнено в Archicad до учебы в Basecamp Фотография предоставлена компанией Graphisoft
Commercial Architecture & Interior Design – Scientific Complex with Exhibition Centre – выполнено в Archicad до учебы в Basecamp
Фотография предоставлена компанией Graphisoft
Commercial Architecture & Interior Design – Scientific Complex with Exhibition Centre – выполнено в Archicad до учебы в Basecamp Фотография предоставлена компанией Graphisoft
Commercial Architecture & Interior Design – Scientific Complex with Exhibition Centre – выполнено в Archicad до учебы в Basecamp
Фотография предоставлена компанией Graphisoft
Commercial Architecture & Interior Design – Scientific Complex with Exhibition Centre – выполнено в Archicad до учебы в Basecamp Фотография предоставлена компанией Graphisoft
Commercial Architecture & Interior Design – Scientific Complex with Exhibition Centre – выполнено в Archicad до учебы в Basecamp
Фотография предоставлена компанией Graphisoft
Commercial Architecture & Interior Design – Scientific Complex with Exhibition Centre – выполнено в Archicad до учебы в Basecamp Фотография предоставлена компанией Graphisoft
Commercial Architecture & Interior Design – Scientific Complex with Exhibition Centre – выполнено в Archicad до учебы в Basecamp
Фотография предоставлена компанией Graphisoft

Самым главным достижением для меня стало полное понимание процесса работы над проектом в Archicad. Нам предоставили отличный шаблон, и здорово было научиться работать в нем. И что особенно важно, я научился работать по стадиям с полным пониманием, что на какой конкретной стадии делать, какими инструментами, с какой детализацией, как выдать это заказчику. Сложилась полная картина как это работает на реальных примерах, прочувствовал фундаментальные принципы BIM. Много полезной информации было по управлению проектом, его координации. Да, возможно, большинство этих приемов нужны лишь в крупных фирмах, но понимать и разбираться точно нужно.
Recreation Complex – Hotel, Restaurant 2D/3D Design – выполнено в Archicad после учебы в Basecamp Фотография предоставлена компанией Graphisoft
Recreation Complex – Hotel, Restaurant 2D/3D Design – выполнено в Archicad после учебы в Basecamp
Фотография предоставлена компанией Graphisoft
Recreation Complex – Hotel, Restaurant 2D/3D Design – выполнено в Archicad после учебы в Basecamp Фотография предоставлена компанией Graphisoft
Recreation Complex – Hotel, Restaurant 2D/3D Design – выполнено в Archicad после учебы в Basecamp
Фотография предоставлена компанией Graphisoft
Recreation Complex – Hotel, Restaurant 2D/3D Design – выполнено в Archicad после учебы в Basecamp Фотография предоставлена компанией Graphisoft
Recreation Complex – Hotel, Restaurant 2D/3D Design – выполнено в Archicad после учебы в Basecamp
Фотография предоставлена компанией Graphisoft
Recreation Complex – Hotel, Restaurant 2D/3D Design – выполнено в Archicad после учебы в Basecamp Фотография предоставлена компанией Graphisoft
Recreation Complex – Hotel, Restaurant 2D/3D Design – выполнено в Archicad после учебы в Basecamp
Фотография предоставлена компанией Graphisoft
Recreation Complex – Hotel, Restaurant 2D/3D Design – выполнено в Archicad после учебы в Basecamp Фотография предоставлена компанией Graphisoft
Recreation Complex – Hotel, Restaurant 2D/3D Design – выполнено в Archicad после учебы в Basecamp
Фотография предоставлена компанией Graphisoft
Recreation Complex – Hotel, Restaurant 2D/3D Design – выполнено в Archicad после учебы в Basecamp Фотография предоставлена компанией Graphisoft
Recreation Complex – Hotel, Restaurant 2D/3D Design – выполнено в Archicad после учебы в Basecamp
Фотография предоставлена компанией Graphisoft

Когда-то давно я любил только компьютерные игры и какие-то тусовки. Учился через силу, не понимал, что я хочу делать по жизни и постоянно испытывал чувство скуки. Нужно сказать напутственные слова для ваших читателей: делай то, что любишь. Если этого дела нет в жизни, то найди. И время от времени задавайся вопросом: “Действительно ли это то самое дело?”. Это то, что я заметил. Если дело нравится, ты не устаешь, тебе всегда интересно узнавать что-то новое по этой теме. Именно это делает твое существование интересным и осмысленным!


А вы уже посетили нашу виртуальную выставку? Предлагаем и Вам найти павильоны Полины, Алины и Павла! И кто знает, может в следующем году и Ваш павильон окажется там?

О GRAPHISOFT
GRAPHISOFT® позволяет командам создавать великолепную архитектуру с помощью программных решений, получивших множество престижных наград в области архитектурного проектирования, учебных программ и профессиональных услуг для архитектуры и строительства. Archicad®, излюбленное программное BIM-решение архитекторов, предлагает комплексный набор инструментов для проектирования и создания документации для архитектурных бюро любой величины. BIMx®, самое популярное мобильное и веб-приложение в области BIM, расширяет возможности BIM, позволяя подключить все заинтересованные стороны к жизненному циклу проектирования, строительства и эксплуатации здания. BIMcloud®, первое и самое передовое в архитектурно-строительной отрасли решение для совместной работы в облаке, обеспечивает возможность совместной работы в режиме реального времени по всему миру независимо от размера проекта, а также скорости или качества сетевого подключения участников команды. GRAPHISOFT входит в состав концерна Nemetschek Group. Чтобы узнать больше, посетите www.graphisoft.com/ru.
Фотография предоставлена компанией Graphisoft