Размещено на портале Архи.ру (www.archi.ru)

16.02.2021

Здание в шляпе

Нина Фролова
Объект:
Библиотека Тайнаня
Адрес:
Тайвань, None, Тайнань.
Мастерская:
Mecanoo

В программе библиотеки города Тайнань на Тайване по проекту бюро Mecanoo и MAYU – архивы и исторические экспозиции, а также медиатека и «цифровая мастерская».

Новая городская библиотека старейшего города Тайваня напоминает о местных традициях орнаментом своей масштабной «шляпы», охватывающей верхние ярусы здания. Их фасады закрыты золотистыми алюминиевыми профилями, которые защищают интерьер от перегрева.

Библиотека Тайнаня
Библиотека Тайнаня
Фото © Ethan Lee

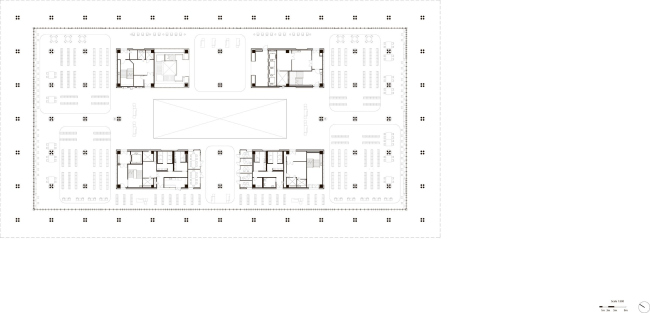
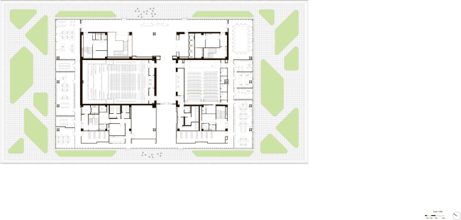
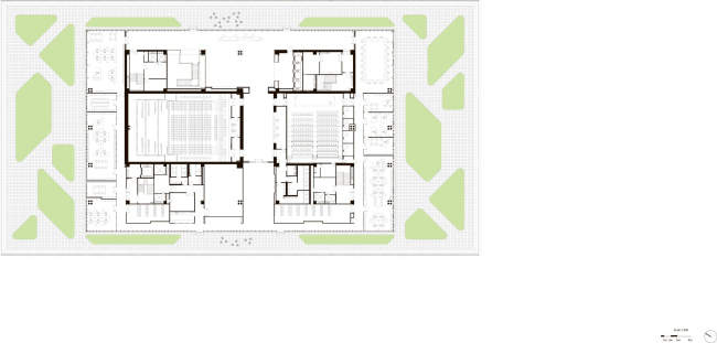
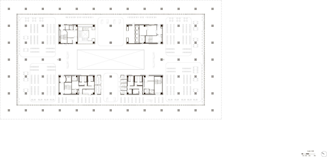
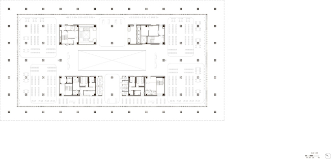
Выступающее завершение здания с профилем перевернутой лестницы поддерживают светлые стройные опоры, которые архитекторы сравнивают с бамбуковым лесом. Под ними устроены четыре заглубленных дворика, один из которых доступен снаружи: там планируется проводить выставки, концерты и лекции.
Библиотека Тайнаня
Библиотека Тайнаня
Фото © Yu-Chen Chao

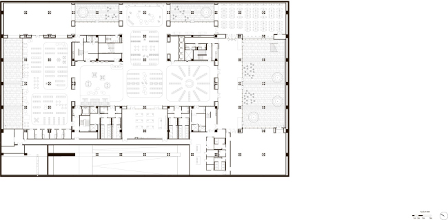
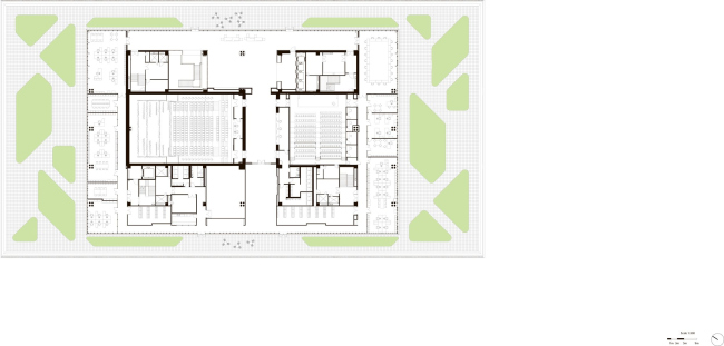
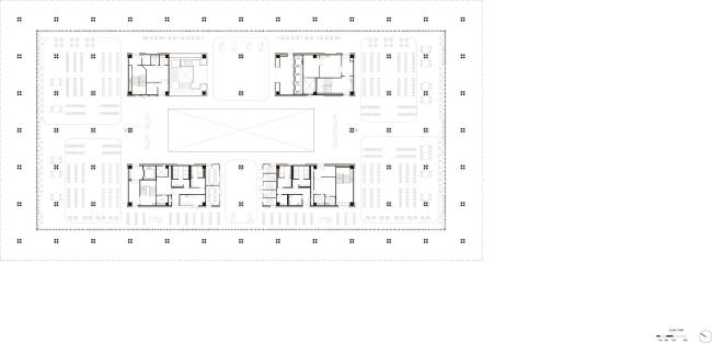
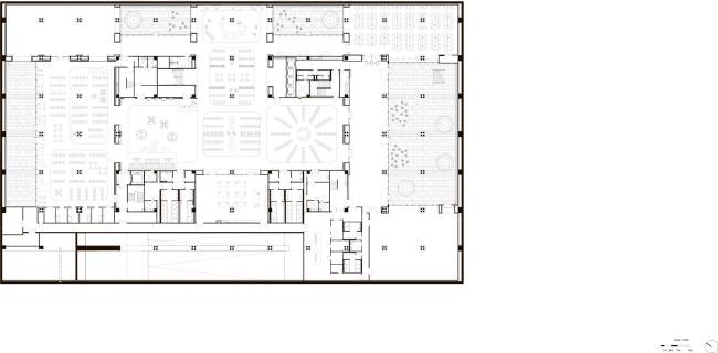
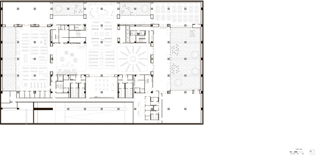
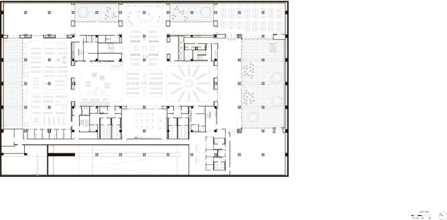
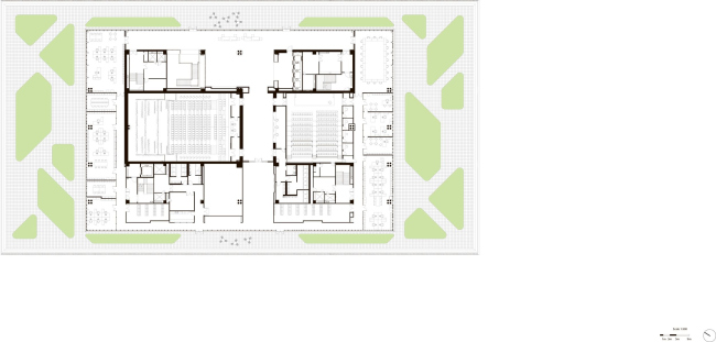
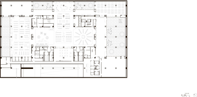
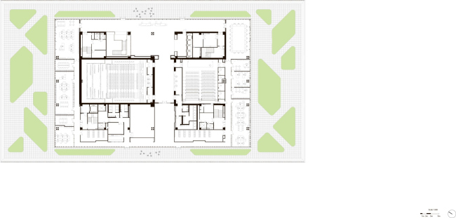
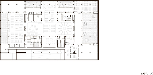
В интерьере двусветный атриум занят инсталляцией британского дизайнера Пола Кокседжа в виде разлетающихся бумажных листков, метафоры свободы мысли. На первом этаже с обилием деревянных деталей находятся «гостиная», где можно почитать свежую прессу, терминалы для самостоятельного заказа книг, круглосуточный читальный зал для студентов на 130 мест, а чуть ниже помещен детский отдел с игровой зоной на открытом воздухе.
Библиотека Тайнаня
Библиотека Тайнаня
Фото © Yu-Chen Chao

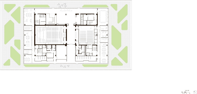
Вверх ведет ярко-красная лестница: сначала – в медиатеку и отдел для подростков, потом – в основное собрание книг, и выше – в раздел «наследия», с мемориальной выставкой, архивом периода японской оккупации, книгами тайваньских авторов. На этом же уровне есть и четыре зеленые террасы и три многофункциональных помещения – студии или классные комнаты, а также кафе. На самом верху – театральный зал на 324 зрителя и конференц-зал на 123 места. В программу библиотеки общей площадью 37 000 м2 также входят уже ставшая привычной «цифровая мастерская», художественная галерея и отдел с книгами, набранными шрифтом Брайля.
Библиотека Тайнаня Фото © Ethan Lee
Библиотека Тайнаня
Фото © Ethan Lee
Библиотека Тайнаня Фото © Yu-Chen Chao
Библиотека Тайнаня
Фото © Yu-Chen Chao
Библиотека Тайнаня Фото © Ethan Lee
Библиотека Тайнаня
Фото © Ethan Lee
Библиотека Тайнаня
Библиотека Тайнаня
Фото © Ethan Lee
Библиотека Тайнаня Фото © Yu-Chen Chao
Библиотека Тайнаня
Фото © Yu-Chen Chao
Библиотека Тайнаня Фото © Ethan Lee
Библиотека Тайнаня
Фото © Ethan Lee
Библиотека Тайнаня Фото © Ethan Lee
Библиотека Тайнаня
Фото © Ethan Lee
Библиотека Тайнаня Фото © Ethan Lee
Библиотека Тайнаня
Фото © Ethan Lee
Библиотека Тайнаня
Библиотека Тайнаня
Фото © Ethan Lee
Библиотека Тайнаня
Библиотека Тайнаня
Фото © Ethan Lee
Библиотека Тайнаня
Библиотека Тайнаня
Фото © Ethan Lee
Библиотека Тайнаня Фото © Ethan Lee
Библиотека Тайнаня
Фото © Ethan Lee
Библиотека Тайнаня Фото © Ethan Lee
Библиотека Тайнаня
Фото © Ethan Lee
Библиотека Тайнаня Фото © Ethan Lee
Библиотека Тайнаня
Фото © Ethan Lee
Библиотека Тайнаня Фото © Ethan Lee
Библиотека Тайнаня
Фото © Ethan Lee
Библиотека Тайнаня Фото © Ethan Lee
Библиотека Тайнаня
Фото © Ethan Lee
Библиотека Тайнаня
Библиотека Тайнаня
Фото © Ethan Lee
Библиотека Тайнаня Фото © Ethan Lee
Библиотека Тайнаня
Фото © Ethan Lee
Библиотека Тайнаня Фото © Ethan Lee
Библиотека Тайнаня
Фото © Ethan Lee
Библиотека Тайнаня Фото © Yu-Chen Chao
Библиотека Тайнаня
Фото © Yu-Chen Chao
Библиотека Тайнаня Фото © Yu-Chen Chao
Библиотека Тайнаня
Фото © Yu-Chen Chao
Библиотека Тайнаня
Библиотека Тайнаня
Фото © Ethan Lee
Библиотека Тайнаня Фото © Ethan Lee
Библиотека Тайнаня
Фото © Ethan Lee
Библиотека Тайнаня Фото © Ethan Lee
Библиотека Тайнаня
Фото © Ethan Lee
Библиотека Тайнаня Фото © Ethan Lee
Библиотека Тайнаня
Фото © Ethan Lee
Библиотека Тайнаня Фото © Ethan Lee
Библиотека Тайнаня
Фото © Ethan Lee
Библиотека Тайнаня
Библиотека Тайнаня
Фото © Ethan Lee
Библиотека Тайнаня
Библиотека Тайнаня
© Mecanoo
Библиотека Тайнаня
Библиотека Тайнаня
© Mecanoo
Библиотека Тайнаня
Библиотека Тайнаня
© Mecanoo
Библиотека Тайнаня
Библиотека Тайнаня
© Mecanoo
Библиотека Тайнаня
Библиотека Тайнаня
© Mecanoo
Библиотека Тайнаня
Библиотека Тайнаня
© Mecanoo
Библиотека Тайнаня
Библиотека Тайнаня
© Mecanoo
Библиотека Тайнаня
Библиотека Тайнаня
© Mecanoo
Библиотека Тайнаня
Библиотека Тайнаня
© Mecanoo
Библиотека Тайнаня
Библиотека Тайнаня
© Mecanoo
Библиотека Тайнаня
Библиотека Тайнаня
© Mecanoo