Размещено на портале Архи.ру (www.archi.ru)

10.02.2021

Миссия на воде

Нина Фролова
Объект:
Плавучая церковь «Бытие»
Адрес:
Великобритания, None, Лондон.
Мастерская:
Denizen Works

Плавучая церковь «Бытие» в Лондоне по проекту архитекторов Denizen Works предназначена для жителей переживающих реконструкцию районов на востоке Лондона.

Первой стоянкой для церкви-баржи стал берег реки/канала Ли в Олимпийском парке королевы Елизаветы: она пробудет здесь от трех до пяти лет, а затем переместится дальше по рекам и каналам. Срок ее службы – 25 лет. Церковь «Бытие» создана для общины Сент-Коламба-Ист-Лондон в округе Степни в рамках столичного епископства.

Плавучая церковь «Бытие»
Плавучая церковь «Бытие»
Фото © Gilbert McCarragher

Кроме религиозной функции, «Бытие», названная в честь первой книги Библии, служит также и общественным центром – как большинство обычных церквей. Там планируется проводить развивающие занятия для родителей с малышами, уроки ИЗО, межконфессиональные праздники, концерты, встречи разного рода групп поддержки и даже занятия пилатес. Кроме того, желающие могут арендовать баржу для своего мероприятия, ее будут использовать и местные школы: это позволит церкви стать самоокупаемой.
Плавучая церковь «Бытие»
Плавучая церковь «Бытие»
Фото © Gilbert McCarragher

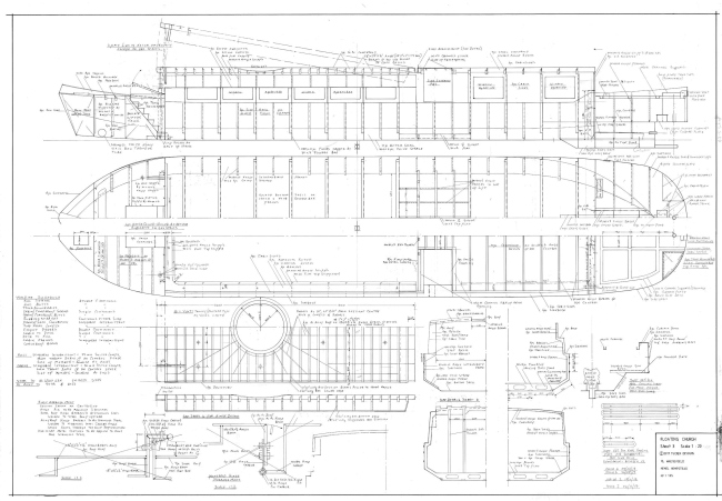
Баржа, созданная в сотрудничестве с инженерами-судостроителями Tucker Designs, очень компактна, что позволит ей проходить под любыми мостами. Но по нажатию кнопки ее крыша раскрывается: эта «гармошка» из парусины вдохновлена мехами органа. Подсвечивающие ее светодиоды сразу привлекают к барже внимание, что важно в контексте ее проповеднической роли, ведь ее даже сравнивают с миссией.
Плавучая церковь «Бытие» Фото © Gilbert McCarragher
Плавучая церковь «Бытие»
Фото © Gilbert McCarragher
Плавучая церковь «Бытие» Фото © Gilbert McCarragher
Плавучая церковь «Бытие»
Фото © Gilbert McCarragher
Плавучая церковь «Бытие» Фото © Gilbert McCarragher
Плавучая церковь «Бытие»
Фото © Gilbert McCarragher
Плавучая церковь «Бытие» Фото © Gilbert McCarragher
Плавучая церковь «Бытие»
Фото © Gilbert McCarragher

Вход расположен посередине борта баржи: у кормы сгруппированы кухня, административное помещение и санузел, с другой стороны – основное пространство с описанной трансформируемой крышей. По периметру его окружают скамьи с ящиками для хранения из МДФ, в зависимости от нужд конкретного дня там расставляют табуреты или складные столы, сделанные на заказ по дизайну студии Plyco. Алтарь тоже складной, напоминающий нос корабля: его авторы – сами Denizen Works. В помещении можно разместить 40 человек сидя или 60 – стоя.
Плавучая церковь «Бытие»
Плавучая церковь «Бытие»
Фото © Gilbert McCarragher

Характерный «парусный» шов, который использовали для крыши-гармошки, украсил ее в виде роспись, а в интерьере появился на закрывающих окна ажурных алюминиевых экранах, плитке на кухне, форме ножек у мебели.
Плавучая церковь «Бытие»
Плавучая церковь «Бытие»
Фото © Gilbert McCarragher
Плавучая церковь «Бытие»
Плавучая церковь «Бытие»
Фото © Gilbert McCarragher
Плавучая церковь «Бытие»
Плавучая церковь «Бытие»
Фото © Gilbert McCarragher
Плавучая церковь «Бытие»
Плавучая церковь «Бытие»
Фото © Gilbert McCarragher
Плавучая церковь «Бытие» Фото © Gilbert McCarragher
Плавучая церковь «Бытие»
Фото © Gilbert McCarragher
Плавучая церковь «Бытие» Фото © Gilbert McCarragher
Плавучая церковь «Бытие»
Фото © Gilbert McCarragher
Плавучая церковь «Бытие» Фото © Gilbert McCarragher
Плавучая церковь «Бытие»
Фото © Gilbert McCarragher
Плавучая церковь «Бытие»
Плавучая церковь «Бытие»
Фото © Gilbert McCarragher
Плавучая церковь «Бытие»
Плавучая церковь «Бытие»
Фото © Gilbert McCarragher
Плавучая церковь «Бытие»
Плавучая церковь «Бытие»
Фото © Gilbert McCarragher
Плавучая церковь «Бытие» Фото © Gilbert McCarragher
Плавучая церковь «Бытие»
Фото © Gilbert McCarragher
Плавучая церковь «Бытие» Фото © Gilbert McCarragher
Плавучая церковь «Бытие»
Фото © Gilbert McCarragher
Плавучая церковь «Бытие» Фото © Gilbert McCarragher
Плавучая церковь «Бытие»
Фото © Gilbert McCarragher
Плавучая церковь «Бытие» Фото © Gilbert McCarragher
Плавучая церковь «Бытие»
Фото © Gilbert McCarragher
Плавучая церковь «Бытие» Фото © Gilbert McCarragher
Плавучая церковь «Бытие»
Фото © Gilbert McCarragher
Плавучая церковь «Бытие»
Плавучая церковь «Бытие»
Фото © Gilbert McCarragher
Плавучая церковь «Бытие»
Плавучая церковь «Бытие»
© Denizen Works
Плавучая церковь «Бытие»
Плавучая церковь «Бытие»
© Denizen Works
Плавучая церковь «Бытие»
Плавучая церковь «Бытие»
© Denizen Works
Плавучая церковь «Бытие»
Плавучая церковь «Бытие»
© Denizen Works
Плавучая церковь «Бытие»
Плавучая церковь «Бытие»
© Denizen Works
Плавучая церковь «Бытие»
Плавучая церковь «Бытие»
© Denizen Works
Плавучая церковь «Бытие»
Плавучая церковь «Бытие»
© Denizen Works
Плавучая церковь «Бытие»
Плавучая церковь «Бытие»
© Tucker Designs
Плавучая церковь «Бытие»
Плавучая церковь «Бытие»
© Tucker Designs