Размещено на портале Архи.ру (www.archi.ru)

04.02.2021

Содержание крупнее формы

Нина Фролова
Объект:
Музей художественного образования Хуамао
Адрес:
Китай, None, Нинбо.
Авторский коллектив:
Architects: Álvaro Siza with Carlos Castanheira
CC&CB, Architects, Lda.
Project Architect:
1st phase (schematic design) – Luis Reis, Elisabete Queirós, Pedro Carvalho
2nd phase (design development/construction) – Pedro Carvalho
Project Team: Jorge Santos, Joana Soeiro, Sara Pinto, Susana Oliveira, Francesca Tiri, Rita Ferreira, Diana Vasconcelos, Inês Bastos. Luísa Felizardo
3d models and renderings: Germano Vieira, Sara Noronha

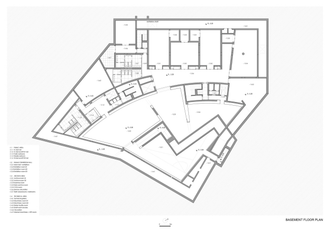
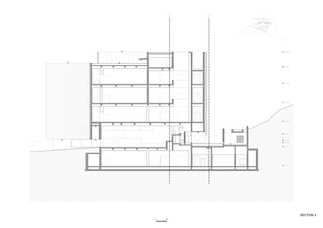
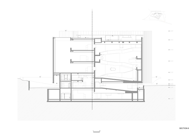
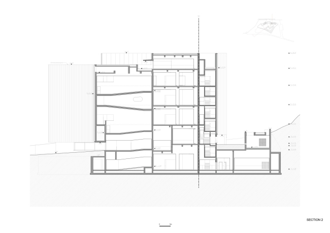
Музей художественного образования Хуамао близ Нинбо по проекту Алвару Сиза и Карлуша Каштанейра – это компактный темный объем с наполненным светом просторным интерьером.

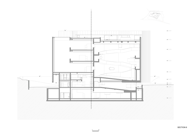
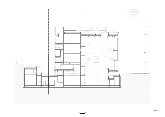
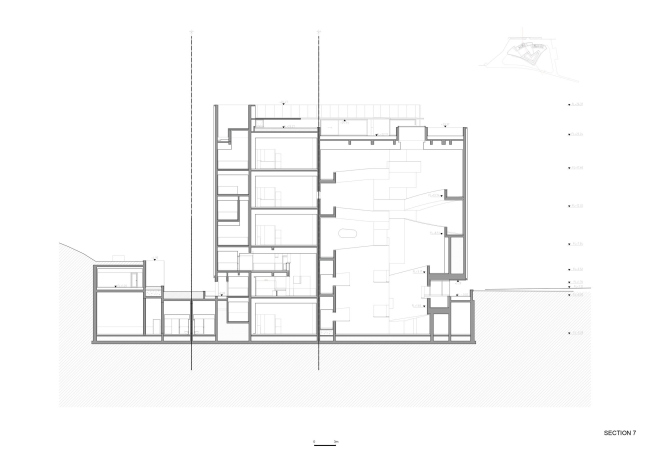
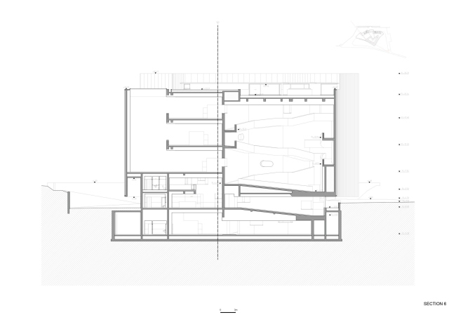
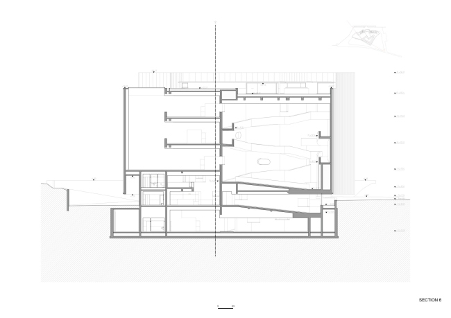
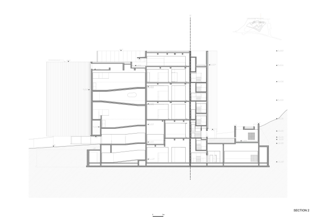
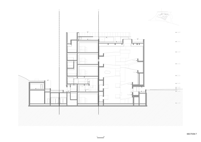
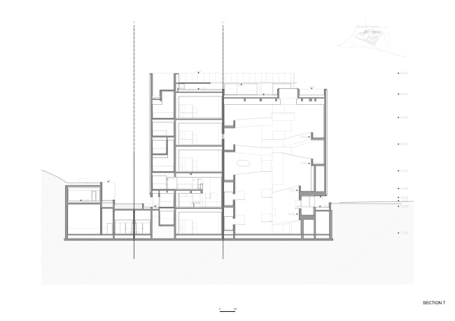
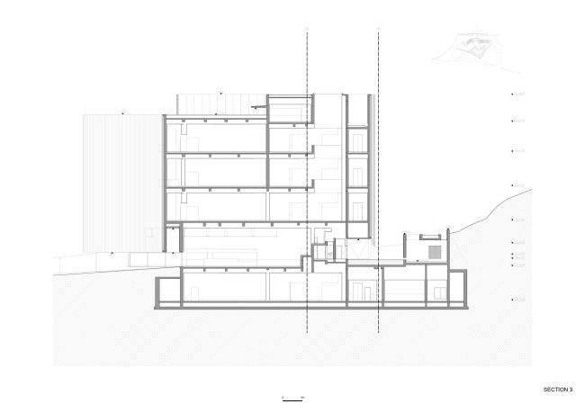
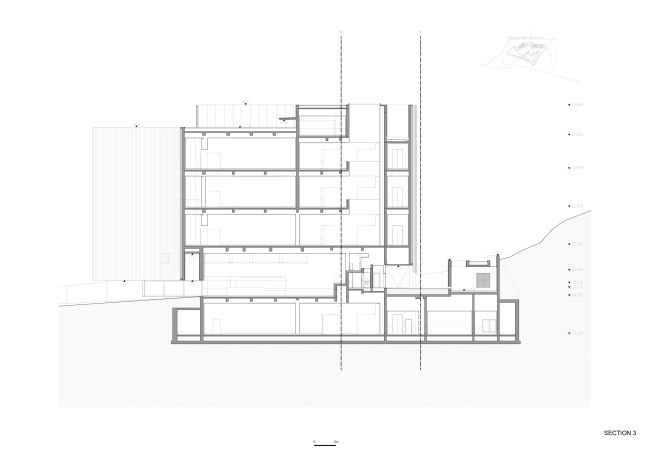
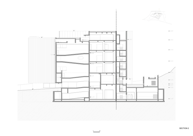
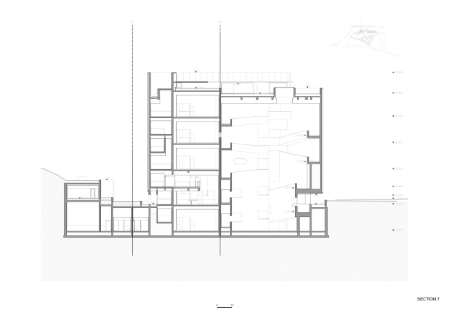
Музей стоит чуть поодаль от комплекса гостиницы: так, что можно со всех сторон оценить его обтекаемую треугольную форму, покрытую темными профилированными листами алюминия. Верхний этаж – меньше по площади, чем остальные, и соседствует с просторной террасой на крыше. Нижний уровень, утопленный в перепад рельефа, также компактней, а еще – остеклен. Это придает основному объему ощущение невесомости, как будто он легко касается земли.

Музей художественного образования Хуамао
Музей художественного образования Хуамао
Фото © Hou Pictures

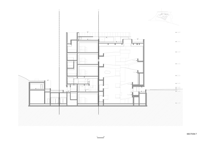
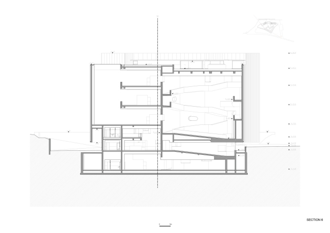
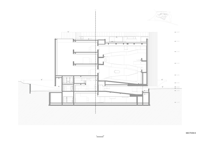
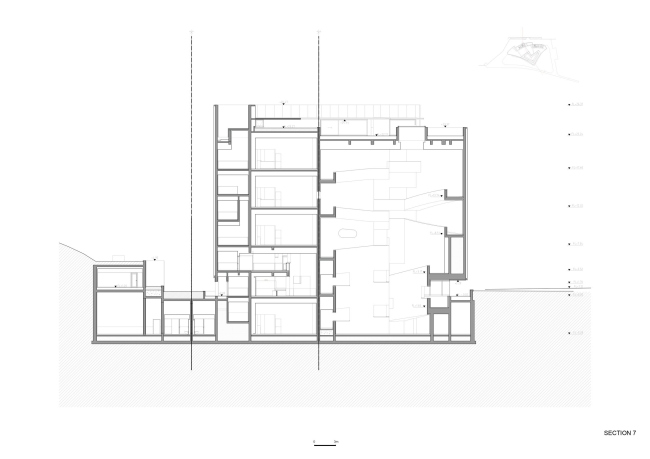
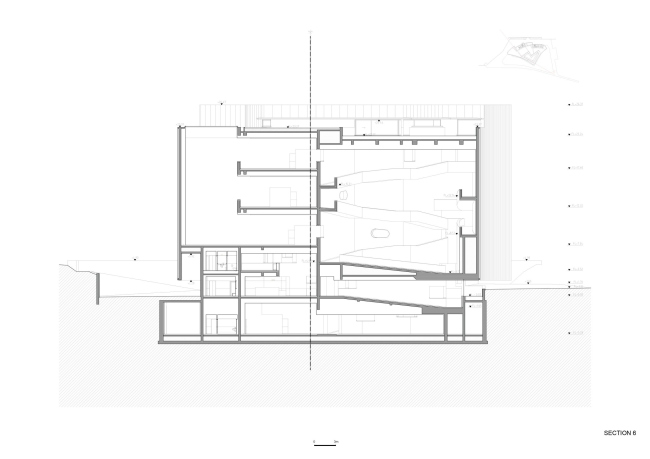
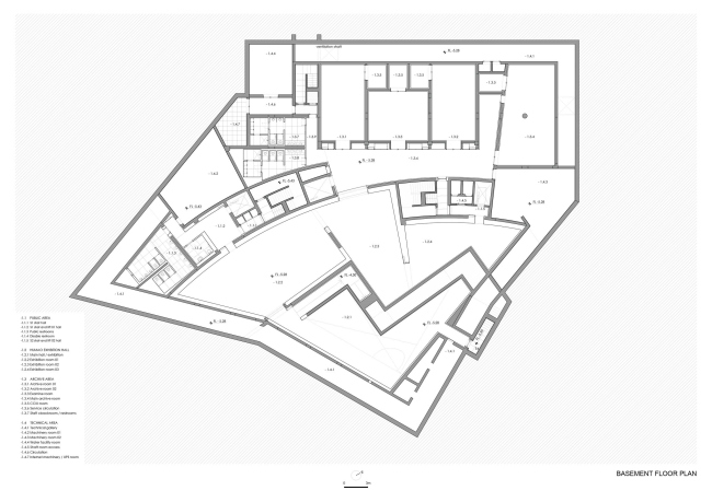
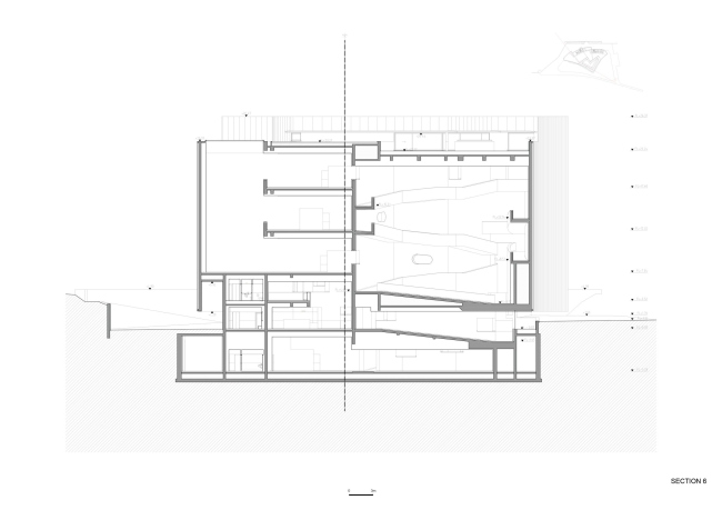
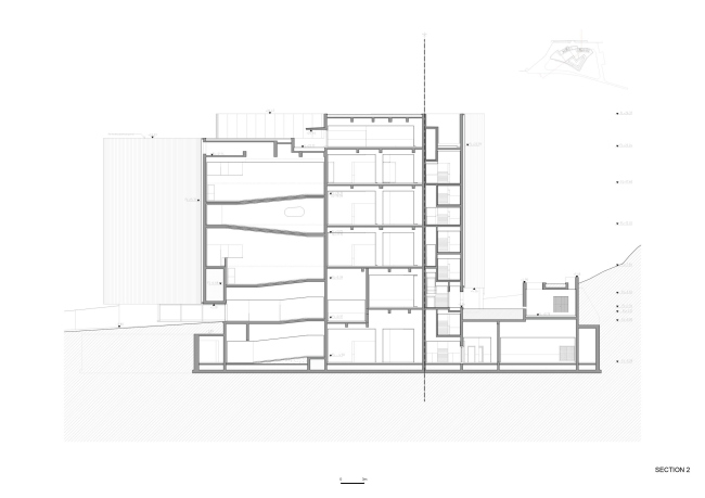
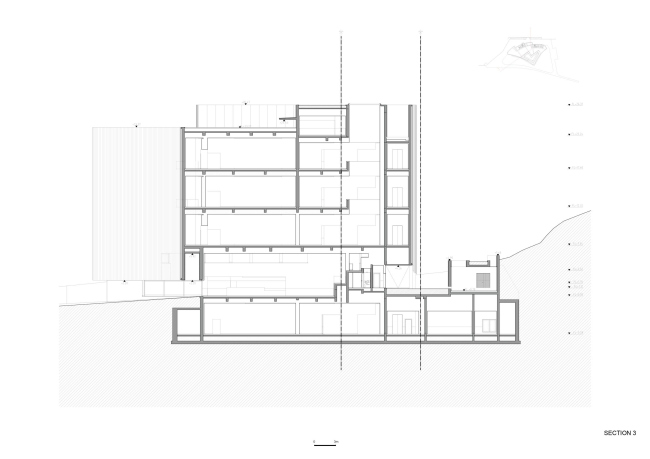
С первого по четвертый этаж музей разделен по вертикали на три зоны. С севера, вдоль основания треугольника, размещены технические и циркуляционные пространства, в центре – выставочные залы, библиотека, вестибюль и административные помещения.
Музей художественного образования Хуамао
Музей художественного образования Хуамао
Фото © Hou Pictures

К вершине треугольника примыкает главная по значению и выразительности часть музея – белый атриум, наполненный солнечным светом. Поднимаясь наверх по его пологим пандусам, можно получить не меньше впечатлений, чем на выставке: архитекторы построили это пространство и весь проект в целом на противопоставлении сжатия и освобождения. Этот эффект возникает и в интерьере, и при входе в музей – после компактного темного объема посетитель оказывается в светлом и просторном помещении, как будто гораздо большем, чем обещал взгляд снаружи.
Музей художественного образования Хуамао
Музей художественного образования Хуамао
Фото © Hou Pictures
Музей художественного образования Хуамао
Музей художественного образования Хуамао
Фото © Hou Pictures
Музей художественного образования Хуамао
Музей художественного образования Хуамао
Фото © Hou Pictures
Музей художественного образования Хуамао Фото © Hou Pictures
Музей художественного образования Хуамао
Фото © Hou Pictures
Музей художественного образования Хуамао Фото © Hou Pictures
Музей художественного образования Хуамао
Фото © Hou Pictures
Музей художественного образования Хуамао Фото © Hou Pictures
Музей художественного образования Хуамао
Фото © Hou Pictures
Музей художественного образования Хуамао Фото © Hou Pictures
Музей художественного образования Хуамао
Фото © Hou Pictures
Музей художественного образования Хуамао Фото © Hou Pictures
Музей художественного образования Хуамао
Фото © Hou Pictures
Музей художественного образования Хуамао
Музей художественного образования Хуамао
Фото © Hou Pictures
Музей художественного образования Хуамао Фото © Hou Pictures
Музей художественного образования Хуамао
Фото © Hou Pictures
Музей художественного образования Хуамао Фото © Hou Pictures
Музей художественного образования Хуамао
Фото © Hou Pictures
Музей художественного образования Хуамао Фото © Hou Pictures
Музей художественного образования Хуамао
Фото © Hou Pictures
Музей художественного образования Хуамао Фото © Hou Pictures
Музей художественного образования Хуамао
Фото © Hou Pictures
Музей художественного образования Хуамао Фото © Hou Pictures
Музей художественного образования Хуамао
Фото © Hou Pictures
Музей художественного образования Хуамао Фото © Hou Pictures
Музей художественного образования Хуамао
Фото © Hou Pictures
Музей художественного образования Хуамао Фото © Hou Pictures
Музей художественного образования Хуамао
Фото © Hou Pictures
Музей художественного образования Хуамао
Музей художественного образования Хуамао
Фото © Hou Pictures
Музей художественного образования Хуамао
Музей художественного образования Хуамао
Фото © Hou Pictures
Музей художественного образования Хуамао
Музей художественного образования Хуамао
Фото © Hou Pictures
Музей художественного образования Хуамао Фото © Hou Pictures
Музей художественного образования Хуамао
Фото © Hou Pictures
Музей художественного образования Хуамао Фото © Hou Pictures
Музей художественного образования Хуамао
Фото © Hou Pictures
Музей художественного образования Хуамао Фото © Hou Pictures
Музей художественного образования Хуамао
Фото © Hou Pictures
Музей художественного образования Хуамао Фото © Hou Pictures
Музей художественного образования Хуамао
Фото © Hou Pictures
Музей художественного образования Хуамао
Музей художественного образования Хуамао
© Álvaro Siza & Carlos Castanheira / CC&CB, Architects, Lda
Музей художественного образования Хуамао © Álvaro Siza & Carlos Castanheira /  CC&CB, Architects, Lda
Музей художественного образования Хуамао
© Álvaro Siza & Carlos Castanheira / CC&CB, Architects, Lda
Музей художественного образования Хуамао © Álvaro Siza & Carlos Castanheira /  CC&CB, Architects, Lda
Музей художественного образования Хуамао
© Álvaro Siza & Carlos Castanheira / CC&CB, Architects, Lda
Музей художественного образования Хуамао © Álvaro Siza & Carlos Castanheira /  CC&CB, Architects, Lda
Музей художественного образования Хуамао
© Álvaro Siza & Carlos Castanheira / CC&CB, Architects, Lda
Музей художественного образования Хуамао © Álvaro Siza & Carlos Castanheira /  CC&CB, Architects, Lda
Музей художественного образования Хуамао
© Álvaro Siza & Carlos Castanheira / CC&CB, Architects, Lda
Музей художественного образования Хуамао © Álvaro Siza & Carlos Castanheira /  CC&CB, Architects, Lda
Музей художественного образования Хуамао
© Álvaro Siza & Carlos Castanheira / CC&CB, Architects, Lda
Музей художественного образования Хуамао © Álvaro Siza & Carlos Castanheira /  CC&CB, Architects, Lda
Музей художественного образования Хуамао
© Álvaro Siza & Carlos Castanheira / CC&CB, Architects, Lda
Музей художественного образования Хуамао © Álvaro Siza & Carlos Castanheira /  CC&CB, Architects, Lda
Музей художественного образования Хуамао
© Álvaro Siza & Carlos Castanheira / CC&CB, Architects, Lda
Музей художественного образования Хуамао
Музей художественного образования Хуамао
© Álvaro Siza & Carlos Castanheira / CC&CB, Architects, Lda
Музей художественного образования Хуамао
Музей художественного образования Хуамао
© Álvaro Siza & Carlos Castanheira / CC&CB, Architects, Lda
Музей художественного образования Хуамао
Музей художественного образования Хуамао
© Álvaro Siza & Carlos Castanheira / CC&CB, Architects, Lda
Музей художественного образования Хуамао
Музей художественного образования Хуамао
© Álvaro Siza & Carlos Castanheira / CC&CB, Architects, Lda
Музей художественного образования Хуамао
Музей художественного образования Хуамао
© Álvaro Siza & Carlos Castanheira / CC&CB, Architects, Lda
Музей художественного образования Хуамао
Музей художественного образования Хуамао
© Álvaro Siza & Carlos Castanheira / CC&CB, Architects, Lda
Музей художественного образования Хуамао
Музей художественного образования Хуамао
© Álvaro Siza & Carlos Castanheira / CC&CB, Architects, Lda
Музей художественного образования Хуамао
Музей художественного образования Хуамао
© Álvaro Siza & Carlos Castanheira / CC&CB, Architects, Lda
Музей художественного образования Хуамао
Музей художественного образования Хуамао
© Álvaro Siza & Carlos Castanheira / CC&CB, Architects, Lda
Музей художественного образования Хуамао
Музей художественного образования Хуамао
© Álvaro Siza & Carlos Castanheira / CC&CB, Architects, Lda
Музей художественного образования Хуамао
Музей художественного образования Хуамао
© Álvaro Siza & Carlos Castanheira / CC&CB, Architects, Lda
Музей художественного образования Хуамао
Музей художественного образования Хуамао
© Álvaro Siza & Carlos Castanheira / CC&CB, Architects, Lda
Музей художественного образования Хуамао
Музей художественного образования Хуамао
© Álvaro Siza & Carlos Castanheira / CC&CB, Architects, Lda
Музей художественного образования Хуамао
Музей художественного образования Хуамао
© Álvaro Siza & Carlos Castanheira / CC&CB, Architects, Lda
Музей художественного образования Хуамао
Музей художественного образования Хуамао
© Álvaro Siza & Carlos Castanheira / CC&CB, Architects, Lda
Музей художественного образования Хуамао
Музей художественного образования Хуамао
© Álvaro Siza & Carlos Castanheira / CC&CB, Architects, Lda
Музей художественного образования Хуамао
Музей художественного образования Хуамао
© Álvaro Siza & Carlos Castanheira / CC&CB, Architects, Lda
Музей художественного образования Хуамао
Музей художественного образования Хуамао
© Álvaro Siza & Carlos Castanheira / CC&CB, Architects, Lda
Музей художественного образования Хуамао
Музей художественного образования Хуамао
© Álvaro Siza & Carlos Castanheira / CC&CB, Architects, Lda
Музей художественного образования Хуамао
Музей художественного образования Хуамао
© Álvaro Siza & Carlos Castanheira / CC&CB, Architects, Lda